SCHOOL OF MECHANICAL ENGINEERING
Project 1587:
The Design and Build of a Biodigester Toilet
James Bass
Nishanth Cheruvu
Natasha Rayan
Charlie Savory
Kieren Sheehan
Supervisors: Dr Cristian Birzer and Dr Paul Medwell
24 October 2014
Word count: 29,797
Executive Summary
Preventable diseases caused by unsafe sanitation practices, and respiratory issues created by burning
solid fuels for cooking, heating, and lighting kill millions of people in developing communities every
year. Providing improved sanitation facilities, and replacing solid fuels (such as wood and dung) with
clean burning modern fuels can improve quality of life for billions of people around the globe, and save
millions of lives each year. A biodigester toilet is a single solution to both of these major issues; it
provides an integrated waste management facility that will convert human excreta into clean burning
biogas, which can be used for cooking, heating, and lighting.
Research was conducted to obtain the background knowledge required to design a biodigester system
that would be capable of successfully producing biogas, while also providing an alternative to unsafe
sanitation practices. A dual tank digester design was chosen, to provide a clarification tank as a
precursor to effluent post-treatment. A thorough risk assessment was performed before construction
and testing of a prototype was conducted. Sponsorship from Barrow and Bench Mitre 10 Malvern,
Caroma and Lynair Logistics enabled the project team to source parts within the project budget, and
construct the prototype. Testing was undertaken at Urrbrae Agricultural High School to determine
whether the system was capable of effectively isolating waste and producing biogas.
The prototype effectively separated feedstock from human contact, and harnessed the anaerobic di-
gestion process to produce biogas. As methane is the primary constituent of biogas, its concentration
was measured throughout the testing period. Results showed an increase in methane concentration,
however the testing period was concluded before flammable biogas was produced. All data indicated
that the anaerobic digestion process was progressing as expected, and it is likely that flammable biogas
would have been produced, given a longer testing period.
i
Acknowledgements
The team would like to thank the following individuals and organisations for their contributions.
Project Supervisors
Dr. Cristian Birzer and Dr. Paul Medwell
Sponsors
Barrow and Bench Mitre 10 Malvern
The University of Adelaide School of Mechanical Engineering
Lynair Logistics
Caroma
Special Thanks
The staff of Urrbrae Agricultural High School
The staff of Barrow and Bench Mitre 10 Malvern
Rob Patterson
Michael Hatch
ii
Statement
This work contains no material which has been accepted for the award of any other degree or diploma
in any university or other tertiary institution and, to the best of our knowledge and belief, contains
no material previously published or written by another person, except where due reference has been
made in the text.
The project team consents to this copy of their report, when deposited in the University Library, being
available for loan and photocopying.
iii
Contents
Executive Summary i
Acknowledgements ii
Signed Statement iii
Nomenclature x
1 Introduction 1
1.1 Report Structure . . . . . . . . . . . . . . . . . . . . . . . . . . . . . . . . . . . . . . . 2
2 Background 3
2.1 Sanitation . . . . . . . . . . . . . . . . . . . . . . . . . . . . . . . . . . . . . . . . . . . 3
2.2 Solid Fuels and Household Air Pollution . . . . . . . . . . . . . . . . . . . . . . . . . . 7
2.3 The Connection . . . . . . . . . . . . . . . . . . . . . . . . . . . . . . . . . . . . . . . . 10
2.4 Project Aim . . . . . . . . . . . . . . . . . . . . . . . . . . . . . . . . . . . . . . . . . . 12
3 Technical Background 13
3.1 Human Waste Management . . . . . . . . . . . . . . . . . . . . . . . . . . . . . . . . . 13
3.2 Single Appropriate Technology . . . . . . . . . . . . . . . . . . . . . . . . . . . . . . . 16
3.3 Anaerobic Digestion . . . . . . . . . . . . . . . . . . . . . . . . . . . . . . . . . . . . . 16
3.4 Biodigester Designs . . . . . . . . . . . . . . . . . . . . . . . . . . . . . . . . . . . . . . 21
3.5 Existing Biodigester Toilets . . . . . . . . . . . . . . . . . . . . . . . . . . . . . . . . . 26
4 Scope, Objectives and Timeline 31
4.1 Scope . . . . . . . . . . . . . . . . . . . . . . . . . . . . . . . . . . . . . . . . . . . . . 31
4.2 Core Objectives . . . . . . . . . . . . . . . . . . . . . . . . . . . . . . . . . . . . . . . . 31
4.3 Extension Goals . . . . . . . . . . . . . . . . . . . . . . . . . . . . . . . . . . . . . . . 32
4.4 Project Timeline . . . . . . . . . . . . . . . . . . . . . . . . . . . . . . . . . . . . . . . 33
5 Design Formation 34
iv
5.1 Standards and Recommendations . . . . . . . . . . . . . . . . . . . . . . . . . . . . . . 34
5.2 Overall Design Specification . . . . . . . . . . . . . . . . . . . . . . . . . . . . . . . . . 37
5.3 Design Criteria . . . . . . . . . . . . . . . . . . . . . . . . . . . . . . . . . . . . . . . . 37
5.4 Essential Design Features . . . . . . . . . . . . . . . . . . . . . . . . . . . . . . . . . . 39
5.5 Conceptual Designs . . . . . . . . . . . . . . . . . . . . . . . . . . . . . . . . . . . . . . 40
6 Final Design 54
6.1 Final System Sizing . . . . . . . . . . . . . . . . . . . . . . . . . . . . . . . . . . . . . 54
6.2 Number of End Users . . . . . . . . . . . . . . . . . . . . . . . . . . . . . . . . . . . . 54
6.3 Materials Selection . . . . . . . . . . . . . . . . . . . . . . . . . . . . . . . . . . . . . . 56
6.4 Waste Collection System . . . . . . . . . . . . . . . . . . . . . . . . . . . . . . . . . . . 57
6.5 Gas Collection System . . . . . . . . . . . . . . . . . . . . . . . . . . . . . . . . . . . . 64
7 Risk Assessment 71
7.1 Likelihood Scale . . . . . . . . . . . . . . . . . . . . . . . . . . . . . . . . . . . . . . . 71
7.2 Consequence Scale . . . . . . . . . . . . . . . . . . . . . . . . . . . . . . . . . . . . . . 72
7.3 Risk Matrix . . . . . . . . . . . . . . . . . . . . . . . . . . . . . . . . . . . . . . . . . . 73
7.4 Heirarchies of Control . . . . . . . . . . . . . . . . . . . . . . . . . . . . . . . . . . . . 74
7.5 Risk Register . . . . . . . . . . . . . . . . . . . . . . . . . . . . . . . . . . . . . . . . . 75
8 Prototype Construction and Cost 76
8.1 Part Sourcing . . . . . . . . . . . . . . . . . . . . . . . . . . . . . . . . . . . . . . . . . 76
8.2 Construction and Tooling . . . . . . . . . . . . . . . . . . . . . . . . . . . . . . . . . . 77
8.3 Personal Protective Equipment . . . . . . . . . . . . . . . . . . . . . . . . . . . . . . . 77
8.4 Costing . . . . . . . . . . . . . . . . . . . . . . . . . . . . . . . . . . . . . . . . . . . . 78
9 Testing and Operation Procedures 82
9.1 System Location . . . . . . . . . . . . . . . . . . . . . . . . . . . . . . . . . . . . . . . 82
9.2 Prototype Assessment . . . . . . . . . . . . . . . . . . . . . . . . . . . . . . . . . . . . 83
9.3 Feedstock Selection . . . . . . . . . . . . . . . . . . . . . . . . . . . . . . . . . . . . . . 83
9.4 System Start-up . . . . . . . . . . . . . . . . . . . . . . . . . . . . . . . . . . . . . . . 84
9.5 Continuous Process Digester . . . . . . . . . . . . . . . . . . . . . . . . . . . . . . . . . 84
9.6 Operating Conditions . . . . . . . . . . . . . . . . . . . . . . . . . . . . . . . . . . . . 85
9.7 Biogas Collection and Results . . . . . . . . . . . . . . . . . . . . . . . . . . . . . . . . 86
9.8 Safe Operating Procedure . . . . . . . . . . . . . . . . . . . . . . . . . . . . . . . . . . 87
10 Results and Discussion 89
10.1 Gas Analysis . . . . . . . . . . . . . . . . . . . . . . . . . . . . . . . . . . . . . . . . . 89
10.2 Methane Concentration . . . . . . . . . . . . . . . . . . . . . . . . . . . . . . . . . . . 90
10.3 pH . . . . . . . . . . . . . . . . . . . . . . . . . . . . . . . . . . . . . . . . . . . . . . . 91
10.4 Temperatures . . . . . . . . . . . . . . . . . . . . . . . . . . . . . . . . . . . . . . . . . 93
10.5 Portability Demonstration . . . . . . . . . . . . . . . . . . . . . . . . . . . . . . . . . . 95
10.6 Completion of Objectives . . . . . . . . . . . . . . . . . . . . . . . . . . . . . . . . . . 95
11 Future Work 98
11.1 Extension Goals . . . . . . . . . . . . . . . . . . . . . . . . . . . . . . . . . . . . . . . 98
11.2 Design Improvements . . . . . . . . . . . . . . . . . . . . . . . . . . . . . . . . . . . . . 98
12 Conclusion 100
Appendix A Project Timeline 109
Appendix B CAD Drawings 114
Appendix C Australian Standards for Polyethylene Pipes 126
Appendix D Australian Standard Gas System Design Factors 130
Appendix E Stirrer CAD Drawings 132
Appendix F Risk Assessment 148
Appendix G Project Cost Matrix 153
Appendix H Sponsorship Prospectus 155
Appendix I Project Hours Spent by Individual Team Members 158
Appendix J SupelTM Sampling Bag Data Sheet 165
Appendix K Picarro Gas Analyser Data Sheet 168
Appendix L Testing Numerical Results 171
List of Figures
2.1 The proportion of the population using improved sanitation (WHO and UNICEF, 2012) 4
2.2 Pit latrine with squatting slab (Furniss, 2011) . . . . . . . . . . . . . . . . . . . . . . 6
2.3 A Chinese shared pit latrine without a platform, slab or seat (Rivard, 2005) . . . . . . 6
2.4 Hanging toilet in Port Haitien, Haiti (Stauffer, 2014) . . . . . . . . . . . . . . . . . . . 7
2.5 Indication of household solid fuel use globally (Chartsbin (2007) using data from WHO
(2007)) . . . . . . . . . . . . . . . . . . . . . . . . . . . . . . . . . . . . . . . . . . . . . 8
3.1 Effect of solids retention time and temperature on volatile solids reduction in a labora-
tory scale anaerobic digester (Wang et al., 2007) . . . . . . . . . . . . . . . . . . . . . 19
3.2 Fixed dome biodigester (Weir, n.d.) . . . . . . . . . . . . . . . . . . . . . . . . . . . . 21
3.3 Floating drum biodigester (Thai Biogas Energy Company, 2008) . . . . . . . . . . . . 23
3.4 Plastic tube plug flow biodigester. Adapted from Energypedia (2014) . . . . . . . . . . 23
3.5 Dismountable FRP biodigester model (Cheng et al., 2014) . . . . . . . . . . . . . . . . 25
3.6 Biodigester created from existing water tanks in Cambodia (Engineers Without Borders,
2011) . . . . . . . . . . . . . . . . . . . . . . . . . . . . . . . . . . . . . . . . . . . . . . 25
3.7 ARTI bioidigester: A prefabricated plastic product based on the existing floating drum
design (Zu, 2005) . . . . . . . . . . . . . . . . . . . . . . . . . . . . . . . . . . . . . . . 26
3.8 EWB Challenge biodigesting toilet (Ashley et al., 2011) . . . . . . . . . . . . . . . . . 27
3.9 Prototype design with flexible membrane gas collection (Coffee et al., 2009) . . . . . . 29
3.10 Prototype design with gasometer gas collection (Coffee et al., 2009) . . . . . . . . . . . 29
5.1 Concept Design 1 . . . . . . . . . . . . . . . . . . . . . . . . . . . . . . . . . . . . . . . 40
5.2 Concept Design 2 . . . . . . . . . . . . . . . . . . . . . . . . . . . . . . . . . . . . . . . 43
5.3 Concept Design 3 . . . . . . . . . . . . . . . . . . . . . . . . . . . . . . . . . . . . . . . 45
5.4 Concept Design 4 . . . . . . . . . . . . . . . . . . . . . . . . . . . . . . . . . . . . . . . 48
5.5 Final concept design . . . . . . . . . . . . . . . . . . . . . . . . . . . . . . . . . . . . . 52
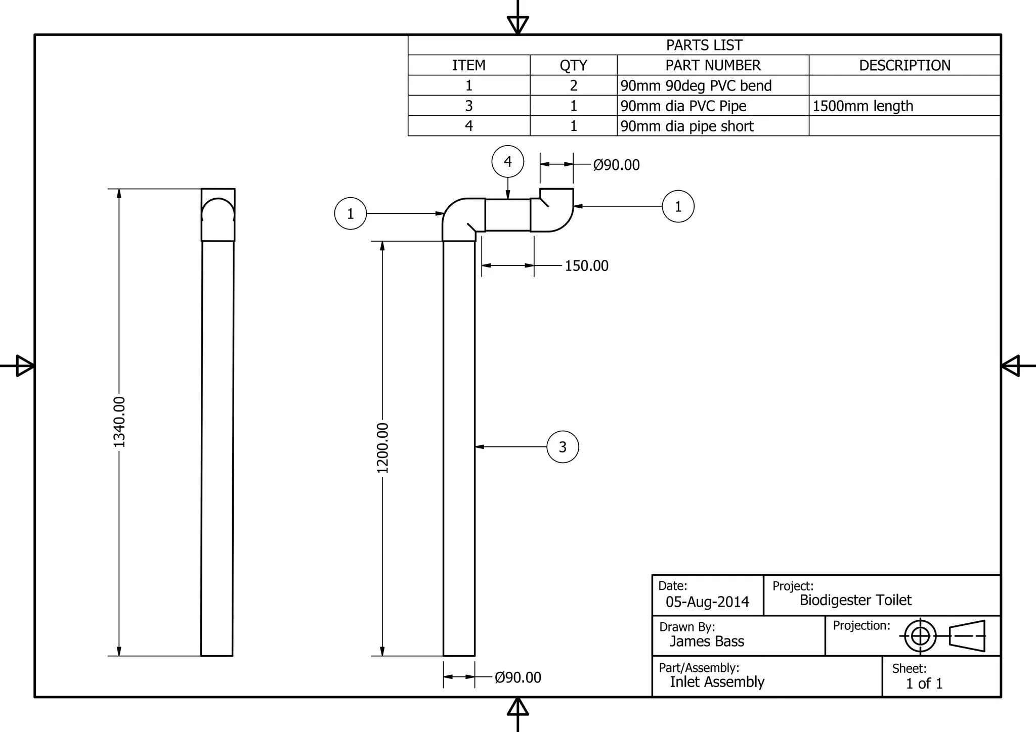
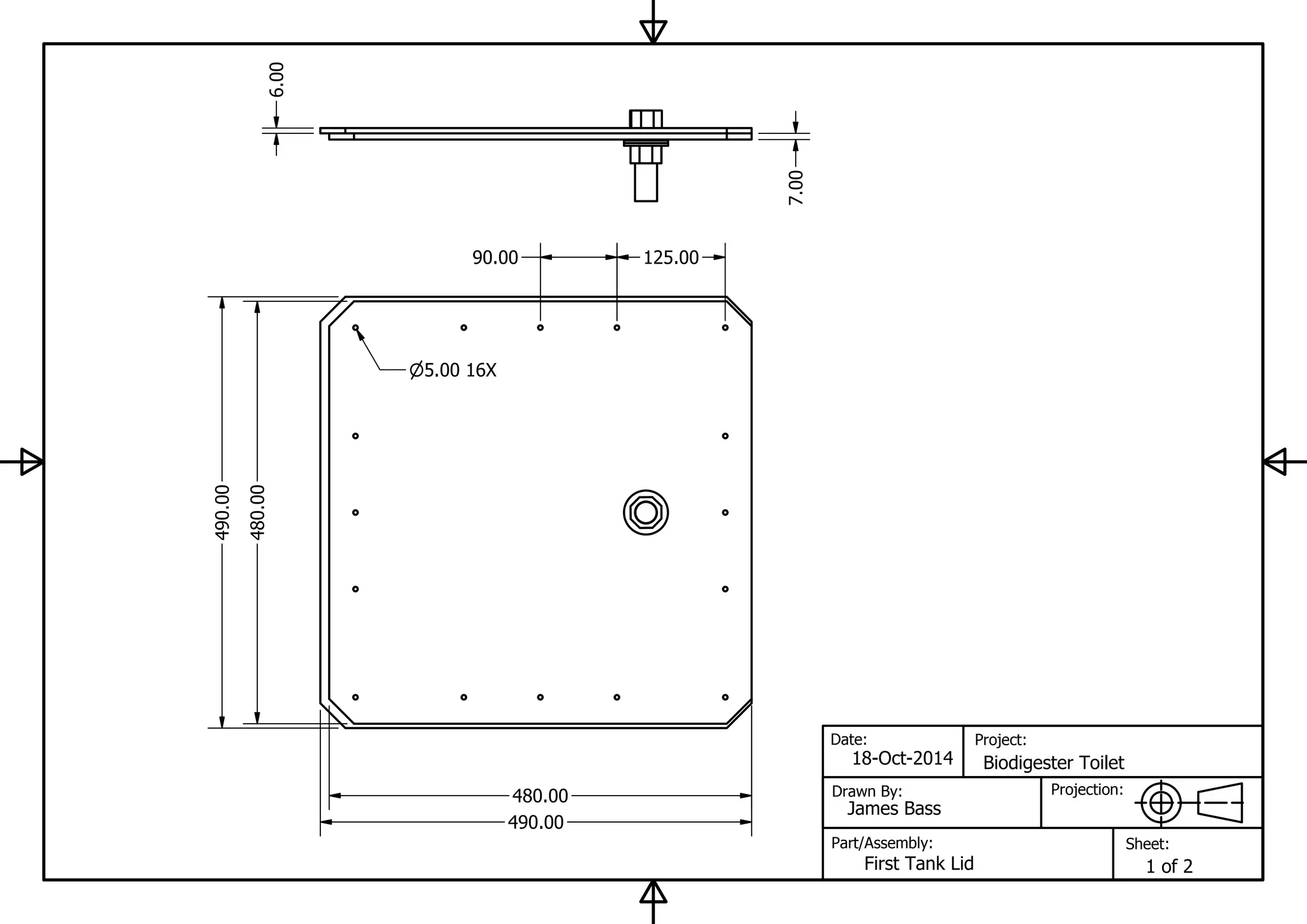
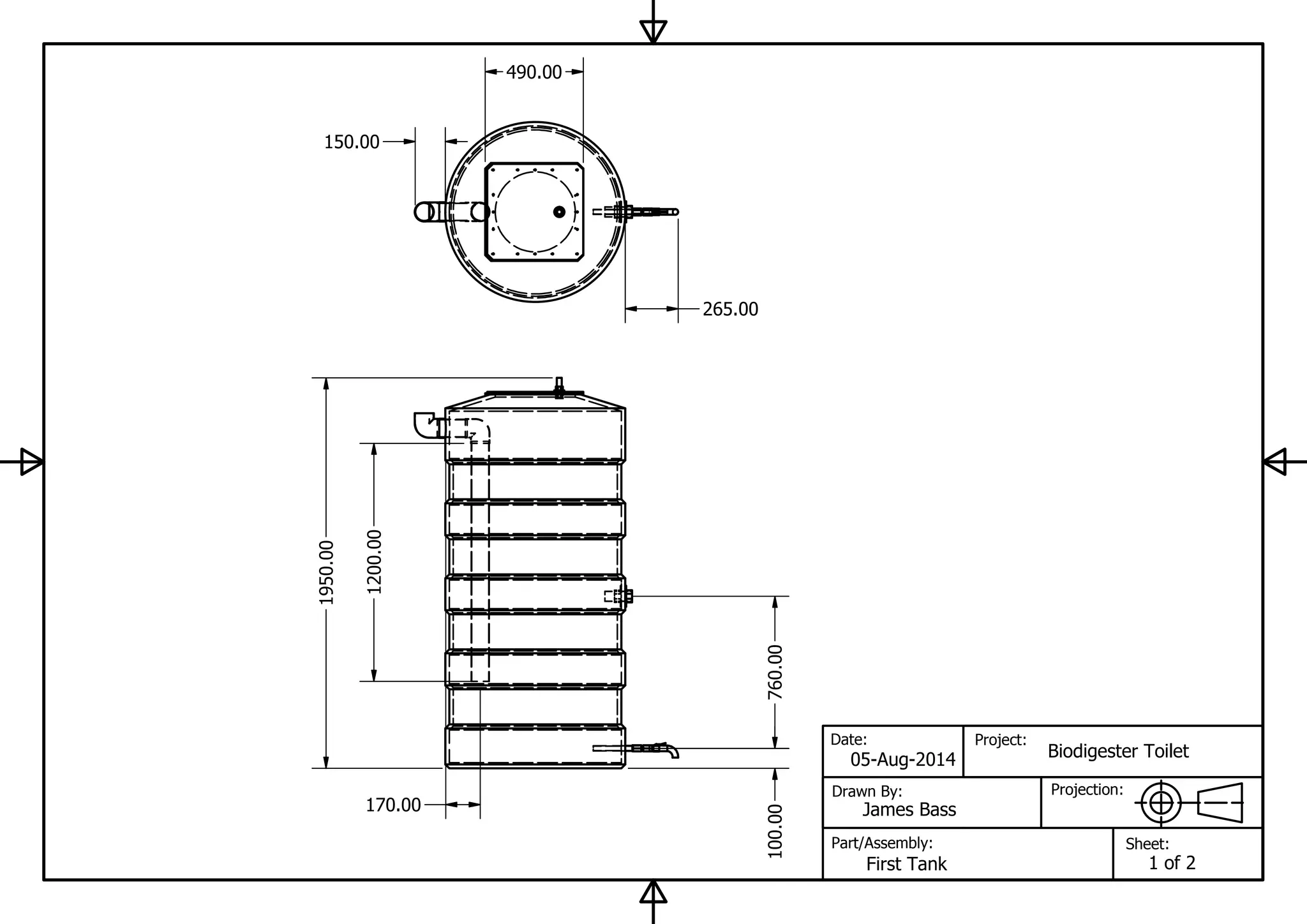
6.1 Drawing of inlet assembly (dimensions in mm) . . . . . . . . . . . . . . . . . . . . . . 58
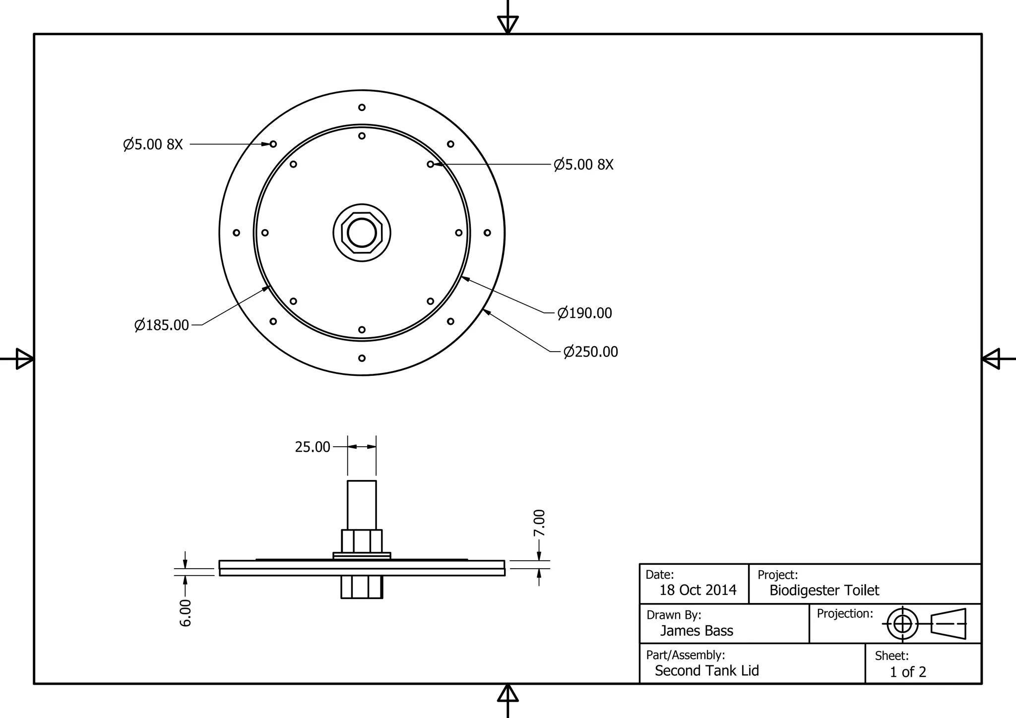
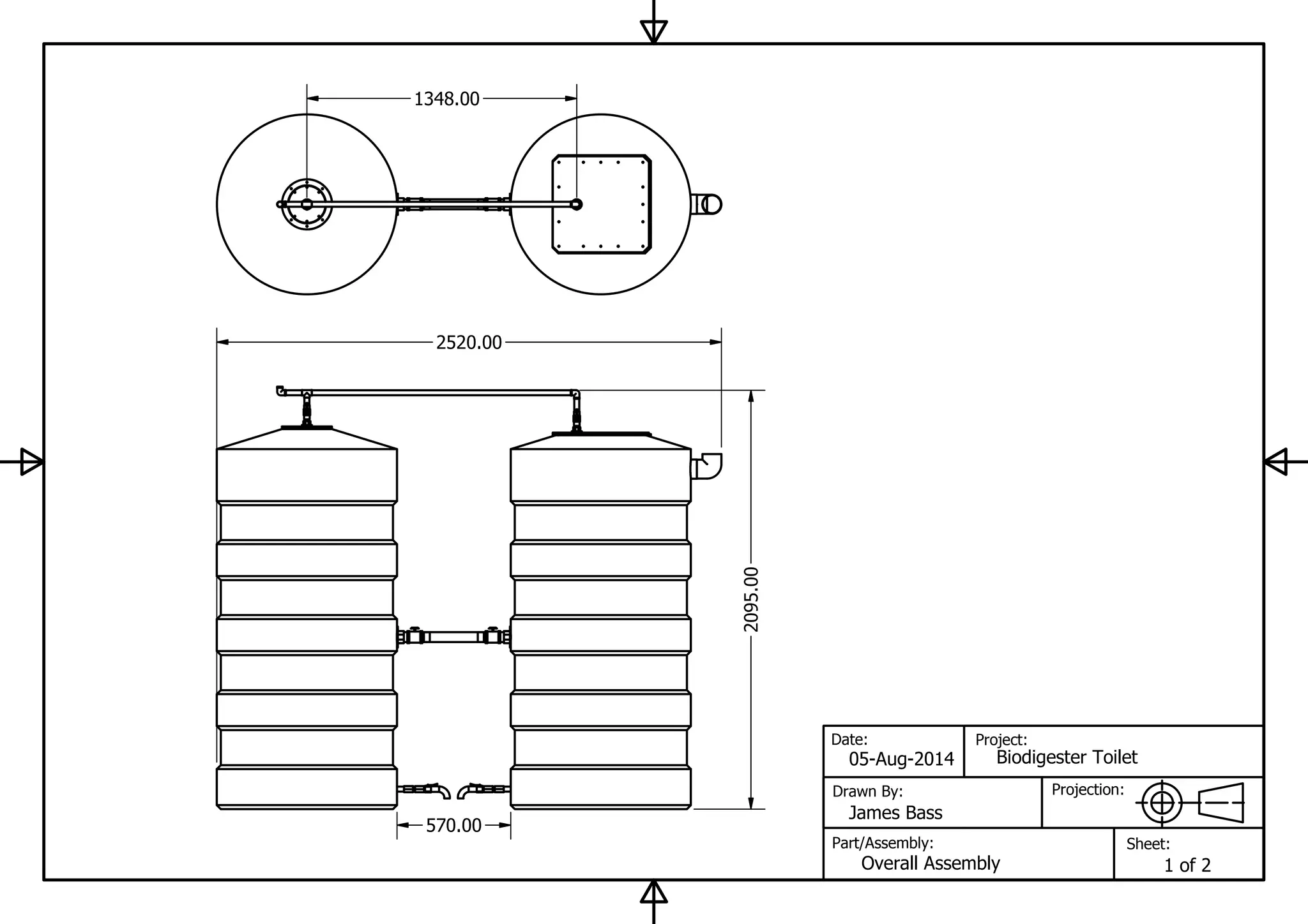
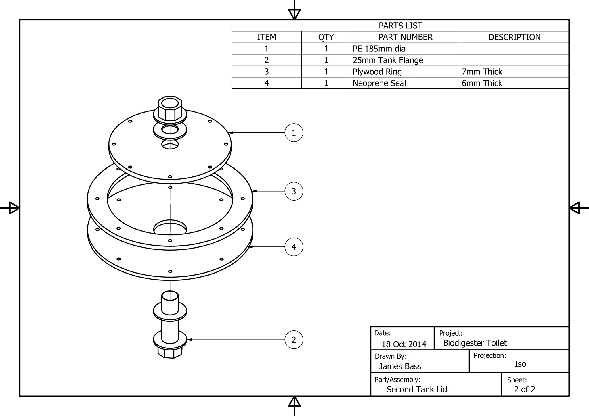
6.2 Final attached lid for second tank in the system . . . . . . . . . . . . . . . . . . . . . . 59
vii
6.3 First tank attached gas connection . . . . . . . . . . . . . . . . . . . . . . . . . . . . . 60
6.4 Gas connection valve on second tank . . . . . . . . . . . . . . . . . . . . . . . . . . . . 60
6.5 A typical bioball shape (Foster and Smith, 2014) . . . . . . . . . . . . . . . . . . . . . 61
6.6 Attached tank flange with neoprene seal . . . . . . . . . . . . . . . . . . . . . . . . . . 62
6.7 Attached ball valve and barb . . . . . . . . . . . . . . . . . . . . . . . . . . . . . . . . 63
6.8 Attached ball valve, barb, and suction hose . . . . . . . . . . . . . . . . . . . . . . . . 63
6.9 Overall connection between two tanks . . . . . . . . . . . . . . . . . . . . . . . . . . . 63
6.10 Outlet tap attached to existing 25 mm diameter threaded hole . . . . . . . . . . . . . 64
6.11 Connection between gas collection membrane and pipe network . . . . . . . . . . . . . 65
6.12 1m3 biogas collection membrane used in the final design . . . . . . . . . . . . . . . . . 67
6.13 Scrap material used for insulation layer . . . . . . . . . . . . . . . . . . . . . . . . . . 68
6.14 Black plastic layer for heat absorption . . . . . . . . . . . . . . . . . . . . . . . . . . . 68
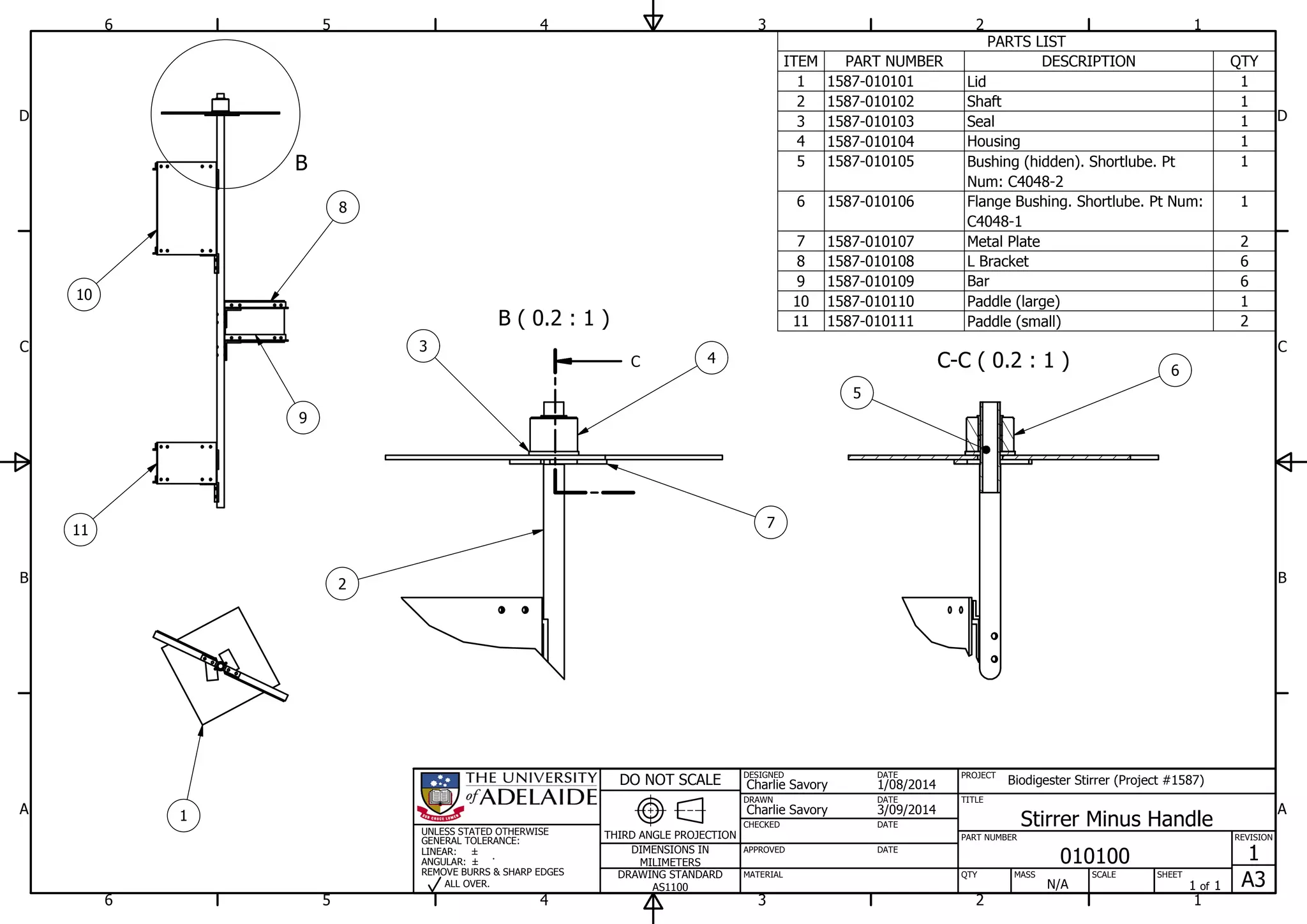
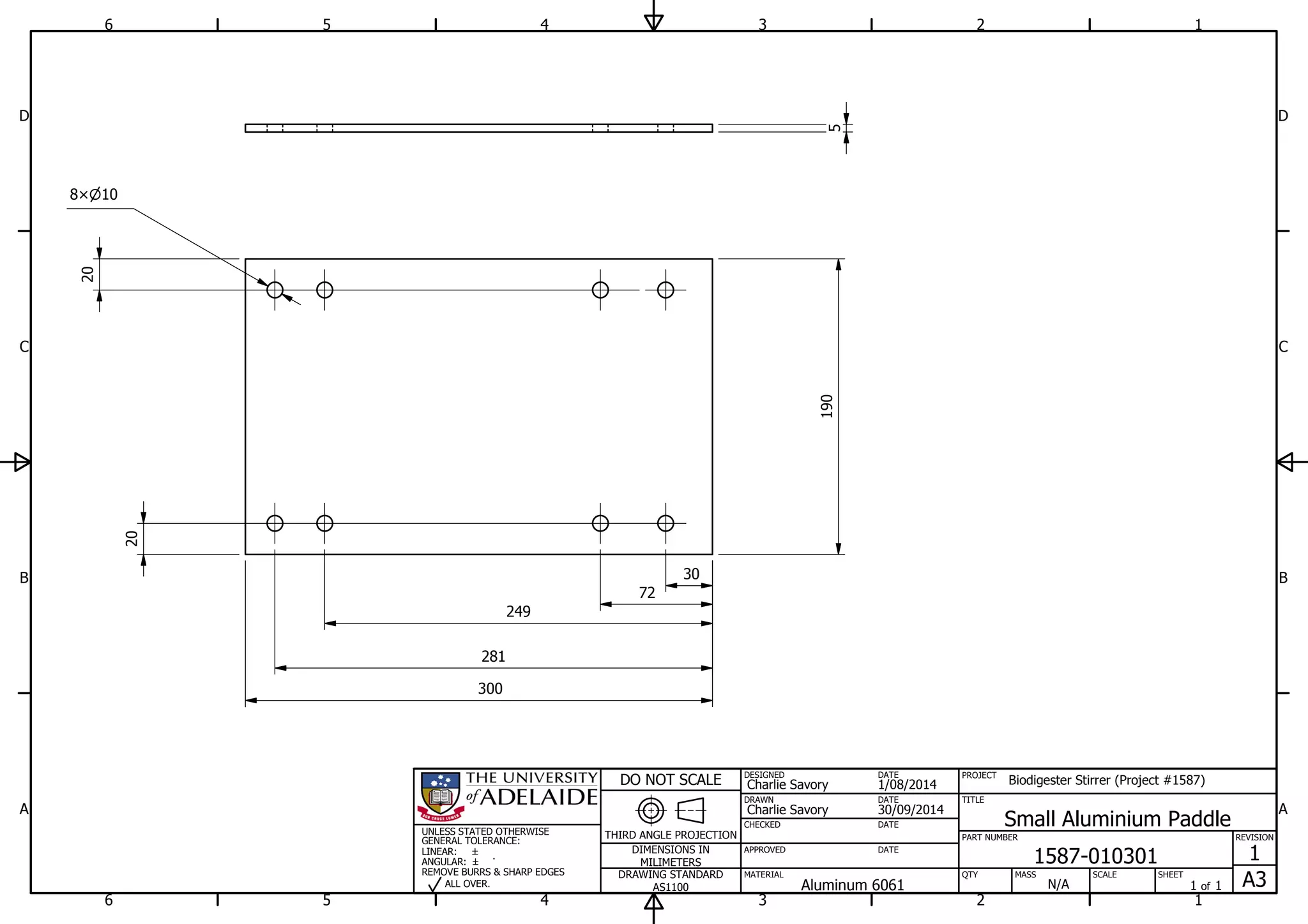
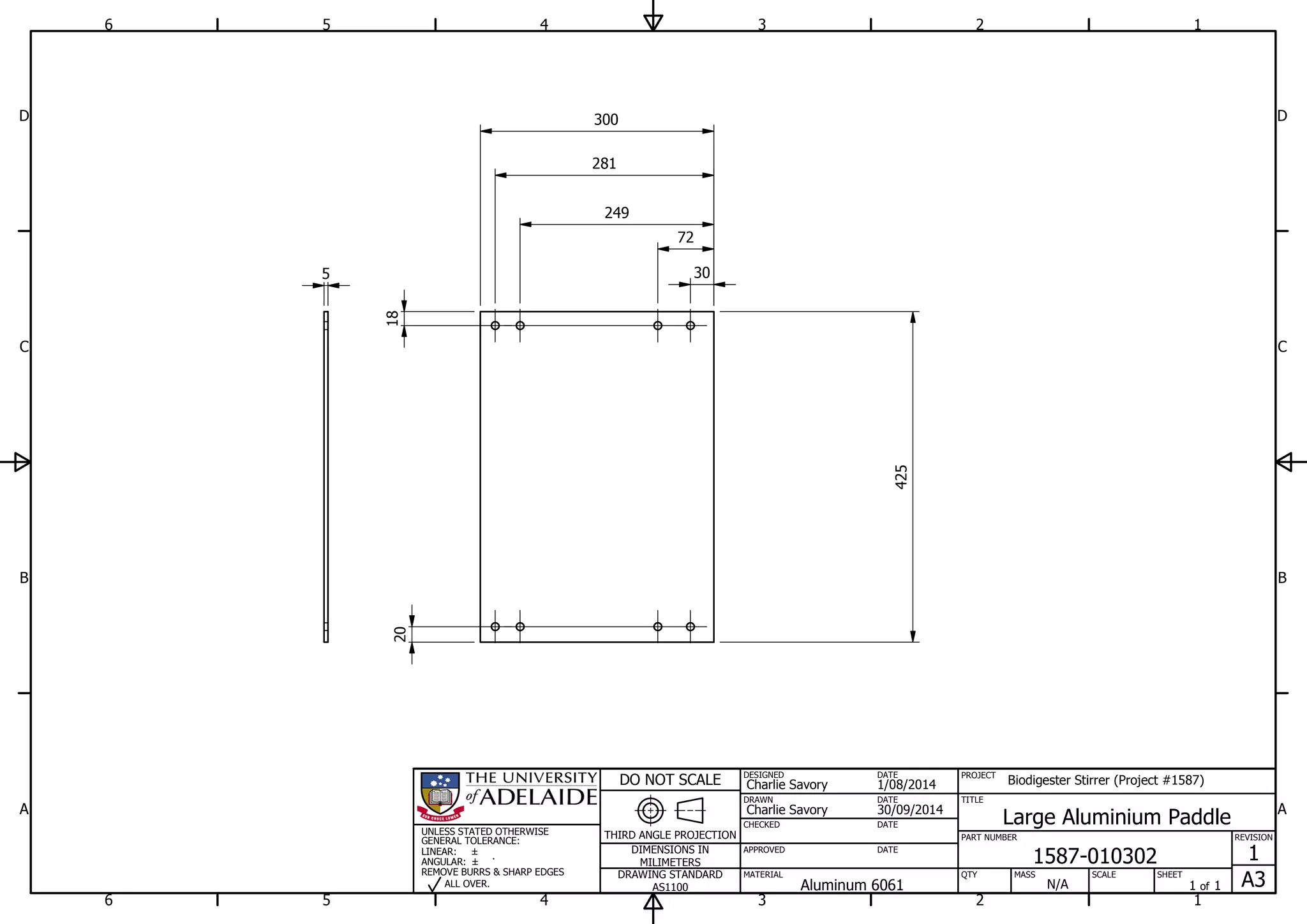
6.15 Final Stirrer Design . . . . . . . . . . . . . . . . . . . . . . . . . . . . . . . . . . . . . 70
9.1 Tedlar bag filled with gas sample . . . . . . . . . . . . . . . . . . . . . . . . . . . . . . 87
10.1 Change in methane concentration over testing period . . . . . . . . . . . . . . . . . . . 90
10.2 Change in methane concentration for different substrates (Sulistyo et al., 2012) . . . . 91
10.3 Change in system pH over testing period . . . . . . . . . . . . . . . . . . . . . . . . . . 92
10.4 Temperature measurements compared to BOM readings . . . . . . . . . . . . . . . . . 94
A.1 Project Gantt Chart . . . . . . . . . . . . . . . . . . . . . . . . . . . . . . . . . . . . . 111
A.2 Project Gantt Chart continued . . . . . . . . . . . . . . . . . . . . . . . . . . . . . . . 112
A.3 Project Gantt Chart continued . . . . . . . . . . . . . . . . . . . . . . . . . . . . . . . 113
B.1 Overall CAD model of prototype . . . . . . . . . . . . . . . . . . . . . . . . . . . . . . 114
E.1 Overall CAD model of stirrer . . . . . . . . . . . . . . . . . . . . . . . . . . . . . . . . 132
List of Tables
3.1 Chemical constituents of biogas (Favre et al., 2009) . . . . . . . . . . . . . . . . . . . . 17
3.2 Biogas production for different animal feedstocks (Junfeng et al., 2005) . . . . . . . . . 18
3.3 C/N ratio of some organic materials (Karki and Dixit, 1984) . . . . . . . . . . . . . . 20
5.1 Relevant Australian Standards (Davidson et al., 2013) . . . . . . . . . . . . . . . . . . 35
5.2 Relevant recommendations for biogas installations relating to a small scale biodigester
toilet (Davidson et al., 2013) . . . . . . . . . . . . . . . . . . . . . . . . . . . . . . . . 36
5.3 Concept Design 1 design criteria analysis . . . . . . . . . . . . . . . . . . . . . . . . . 42
5.4 Concept Design 2 design criteria analysis . . . . . . . . . . . . . . . . . . . . . . . . . 44
5.5 Concept Design 3 design criteria analysis . . . . . . . . . . . . . . . . . . . . . . . . . 47
5.6 Concept Design 4 design criteria analysis . . . . . . . . . . . . . . . . . . . . . . . . . 49
5.7 Evaluation matrix . . . . . . . . . . . . . . . . . . . . . . . . . . . . . . . . . . . . . . 50
5.8 Design feature summary table . . . . . . . . . . . . . . . . . . . . . . . . . . . . . . . . 51
5.9 Final concept design design criteria analysis . . . . . . . . . . . . . . . . . . . . . . . . 53
6.1 Properties of PE100 pipe . . . . . . . . . . . . . . . . . . . . . . . . . . . . . . . . . . 65
7.1 Consequence scale - risks to project success (The University of Adelaide, 2012) . . . . 72
7.2 Consequence scale - safety risks (The University of Adelaide, 2012) . . . . . . . . . . . 73
7.3 Risk matrix (The University of Adelaide, 2012) . . . . . . . . . . . . . . . . . . . . . . 73
7.4 Risk management required (The University of Adelaide, 2012) . . . . . . . . . . . . . . 74
8.1 Sponsorship summary . . . . . . . . . . . . . . . . . . . . . . . . . . . . . . . . . . . . 79
8.2 Prototype cost summary . . . . . . . . . . . . . . . . . . . . . . . . . . . . . . . . . . . 79
8.3 Recycled component alternatives . . . . . . . . . . . . . . . . . . . . . . . . . . . . . . 80
A.1 Project Review Gates . . . . . . . . . . . . . . . . . . . . . . . . . . . . . . . . . . . . 109
A.2 Major Milestones, Review Gates and Due Dates . . . . . . . . . . . . . . . . . . . . . . 110
ix
Nomenclature
AUD Australian Dollar(s)
BOM Bureau of Meteorology
textitC Design factor
CoP Code of Practice
C/N Carbon to nitrogen ratio
CAD Computer Aided Design
Dm min Minimum mean outside diameter
FRP Fiber Reinforced Plastic
GACC Global Alliance for Clean Cookstoves
L Litre
LPG Liquefied Petroleum Gas
m Metre
MAOP Maximum Allowable Operating Pressure
MDGs Millennium Development Goals
mm Millimetre
MRS Maximum Required Strength
NGO Non-governmental Organisation
PPE Personal Protective Equipment
ppm Parts per million
PE Polyethylene
PVC Polyvinyl Chloride
x
RT Retention time
SDR Standard Dimension Ratio
SOP Safe Operating Procedure
Tmin Minimum wall thickness
UAHS Urrbrae Agricultural High School
UNICEF The United Nations Children’s Fund
USD United States Dollar(s)
UV Ultra-Violet
VS Volatile Solids
WHO World Health Organisation
Chapter 1
Introduction
Currently, 2.6 billion people worldwide lack access to adequate sanitation facilities, while 3 billion
people are put at risk from harmful air pollution because they rely on burning solid fuels for cooking,
heating and lighting. Over 4.6 million deaths are caused every year from a wide range of health issues
related to poor sanitation and household air pollution (WHO, 2014; WHO and UNICEF, 2014c). When
considering the global distribution of these problems, it is clear that they are present in similar regions
all over the world; primarily the rural areas of developing countries. Some of the most marginalised
people in the world are subject to diseases associated with exposure to human faeces, along with
serious respiratory health issues (including lung cancer) caused by household air pollution. While not
tolerated in more developed nations, crippling poverty means billions of people living in developing
countries are subject to these conditions every day. Developing a single, cheap solution that will
provide improved means of sanitation while reducing reliance on solid fuels has the potential to save
the lives of millions, and improve the lives of billions, every year.
The design and build of a biodigester toilet is a humanitarian project aimed at providing improved
sanitation facilities, and reducing air pollution for the billions of people affected by these issues.
For this project, a toilet is integrated with a biodigester - a device that stores and ‘digests’ organic
material while also producing biogas, a mixture of primarily methane (CH4) and carbon dioxide (CO2).
Designing a biodigester to accommodate a toilet enables it to become an integrated waste management
system, and provides a means of safe human waste disposal. The biogas produced from the digestion
of human waste can be used as a cleaner burning alternative to solid fuels for cooking, heating, and
lighting. Thus, both issues of unsafe sanitation and household air pollution may be addressed through
implementation of a functional biodigester toilet.
While the concept and use of the biodigester is widespread and well documented, there remain inade-
quacies in the literature pertaining to a system designed solely for use with human waste. Combined
biodigester and toilet systems have been designed and tested in the past, however experimental results
1
CHAPTER 1. INTRODUCTION 2
from these existing systems indicate that neither design, nor execution, were suitable for the system
to have practical applications. Several explanations as to why the systems were ineffective have been
suggested in the literature, but not subsequently implemented into an improved design. An improved
design will better address the health, sanitation, and energy challenges prevalent in many develop-
ing regions. Furthermore, as biodigester systems produce useful secondary products from primary
waste, there is scope for application in developed countries. Research and development into improved
biodigester toilet designs for developed countries could alleviate concerns of growing waste volume,
energy shortages, and climate change. The integration of biodigester toilets into modern waste man-
agement and energy consumption practices could promote greater self-sufficiency, and environmental
sustainability.
1.1 Report Structure
A detailed outline of the global distribution of poor sanitation practices and the use of solid fuels
for cooking, heating, and lighting is presented within the Background chapter of this report. Also
included in this chapter is an outline of the major health problems related to these practices. The
problems outlined in this chapter helped guide the development of the project aim.
After the project aim is identified, the Technical Background chapter presents research into existing
technologies that provide a means of achieving the overall project aim. Of particular focus is methods
of human waste management as well as waste collection systems.
The Scope, Objectives, and Timeline chapter outlines detailed objectives for the project, specifically
relating to the design, build and subsequent testing of a biodigester toilet. A timeline of the project
is also presented in this chapter.
The information presented in the initial chapters is then used in the Design Formation chapter to
develop several concept designs of biodigester toilets. These designs are evaluated against a list of
design criteria. Based on the analysis of the concept designs, a final design is further developed in the
Final Design chapter.
The Risk Assessment, Prototype Construction and Cost, and Testing and Operation chapters outline
the various stages in the production of a prototype biodigester toilet, based on the final design. A risk
assessment was required to ensure construction and testing could be performed safely.
Preliminary testing results, and a discussion of their significance, are presented in the Results and
Discussion chapter. The extent to which the prototype was able to achieve all core project objectives is
assessed in this chapter. Based on these preliminary testing results and the overall effectiveness of the
prototype, possible design modifications and additions are discussed in the Future Work chapter.
Chapter 2
Background
Household air pollution produced by burning solid fuels, and inadequate sanitation are two major
issues facing the developing world. Both problems cause specific health, social, and environmental
issues. Significant improvements have been made in both these areas over the last fourteen years since
the conception of the millennium development goals in 2000 (WHO, 2012) with scope for substantial
progress in the future. Presented in this chapter is a discussion of these problems, along with informa-
tion about biodigesters, biogas, and the contribution they make to alleviating inadequate sanitation,
and household air pollution.
2.1 Sanitation
Currently 2.6 billion people worldwide do not have access to adequate sanitation facilities, resulting
in the contraction of diseases that are responsible for more than two million deaths every year (WHO
and UNICEF, 2014c). Additionally, there are a number of non-fatal diseases associated with poor
sanitation that significantly reduce quality of life. These issues associated with inadequate sanitation
are primarily present in developing communities. Therefore, the development of sanitation systems
that are readily available in affected regions will help improve the quality of life of billions of people
and save a significant number of lives every year.
2.1.1 Location of Current Practices
The distribution of global access to improved sanitation facilities is shown in Figure 2.1. The definition
of an improved sanitation facility is presented in Section 2.1.3. It can be seen that Africa and the
Indian Subcontinent are the worst affected, where most of the countries have less than 50% access.
China, South-East Asia, and Latin America are also affected, though not to the same extent.
3
CHAPTER 2. BACKGROUND 4
Figure 2.1: The proportion of the population using improved sanitation (WHO and UNICEF, 2012)
The global divide of access to improved sanitation is also disproportionately split between the rural
and urban regions. Currently 79% of people living in urban areas have access to improved sanitation
facilities. Conversely, only 47% of people living in rural areas enjoy the same access. Therefore 1.8
billion people worldwide are unable to use improved sanitation facilities, primarily due to the cost of
sanitation facilities in these areas (WHO and UNICEF, 2012). Open defecation occurs primarily in
rural areas; worldwide, 950 million rural residents are forced to practice open defecation compared to
100 million people living in urban locations (WHO and UNICEF, 2012). Open defecation is mainly
concentrated in India, whose population makes up over 60% of the total world population practicing
this type of unimproved sanitation (WHO and UNICEF, 2012).
2.1.2 Health Issues
There are a number of diseases and associated conditions that can arise from the practice of unimproved
sanitation and subsequent contact with human excreta. These include diarrhoea, cholera, fluorosis,
guinea worm disease, hepatitis A, schistosomiasis, trachoma, and typhoid (UNICEF, 2014). Diarrhoea,
schistosomiasis, trachoma, and typhoid are commonly considered the most damaging and widespread
conditions (UNICEF, 2014).
CHAPTER 2. BACKGROUND 5
Diarrhoea
A condition causing the loss of water and electrolytes in a person, leading to dehydration and
sometimes death. With four billion cases occurring annually and 1.8 million deaths (1.6 million
being children under five years old), it is the main health problem associated with poor sanitation
practices (UNICEF, 2014).
Schistomsomiasis
A disease caused by parasitic worms that penetrate the skin of people who come into contact with
contaminated water. It affects 200 million people every year, with 20 million suffering serious
consequences and approximately 200,000 dying annually (Fenwick, 2012; UNICEF, 2014). It is
estimated that adequate sanitation could reduce infection rates by 77% (UNICEF, 2014).
Typhoid
A bacterial infection that can result in headaches and nausea. It affects 12 million people
annually, and is contracted by consuming contaminated food or water (UNICEF, 2014).
Trachoma
An infectious bacterial disease which causes a roughening of the inner surface of the eyelid leading
to pain and possible blindness. Approximately six million people are currently blind because of
this disease. It is estimated that adequate sanitation could reduce infection rates by up to 25%
(UNICEF, 2014).
2.1.3 Definitions and Practices
The WHO classifies sanitation facilities in two broad terms; improved sanitation and unimproved
sanitation facilities. Improved sanitation facilities “...hygienically separate human excreta from human
contact.” (WHO and UNICEF, 2014a). Common toilets that meet this criteria include the western
style flush toilet, flush and pour systems into a pit-latrine (shown in Figure 2.2), and septic tanks.
CHAPTER 2. BACKGROUND 6
Figure 2.2: Pit latrine with squatting slab (Furniss, 2011)
Unimproved sanitation facilities and practices typically do not separate human excreta from human
contact. Latrines without a squatting slab, platform or seat, and hanging toilets that dispose of waste
directly into a river or similar body of water are typical examples of unimproved facilities. They are
pictured in Figures 2.3 and 2.4, respectivley. Shared sanitation facilities are also classified as unim-
proved sanitation. Shared sanitation facilites are “...sanitation facilities of an otherwise acceptable
type that are shared between two or more households.” (WHO and UNICEF, 2014b)
Figure 2.3: A Chinese shared pit latrine without a platform, slab or seat (Rivard, 2005)
CHAPTER 2. BACKGROUND 7
Figure 2.4: Hanging toilet in Port Haitien, Haiti (Stauffer, 2014)
2.2 Solid Fuels and Household Air Pollution
Burning solid fuels, or ‘biomass’, for cooking, heating, and lighting creates significant household air
pollution, and is a serious global issue. Approximately three billion people worldwide rely on burning
solid fuels such as wood, charcoal, dung, and crop residues for their cooking, heating, and lighting
requirements (WHO, 2014). The majority of these people live in developing countries in Africa and
Asia (Rehfuess et al., 2011) where access to improved fuels is restricted by economic, and social
factors. Burning solid fuels releases harmful emissions such as carbon monoxide (CO), carbon dioxide
(CO2), oxides of nitrogen (NOX), and particulate matter into the surrounding atmosphere. When this
is performed indoors it can cause significant household air pollution, especially in poorly ventilated
buildings; this causes serious health effects that result in the deaths of 4.3 million people annually
(WHO, 2014). There are also negative environmental and social effects associated with biomass
burning. These include contributions to global greenhouse gas emissions, and gender inequalities.
The eight United Nations Millennium Development Goals (discussed further in Section 2.3.1) are
goals that when achieved, will significantly improve the lives of the worlds most vulnerable people.
Reducing household air pollution produced from solid fuels will make a direct contribution to achieving
MDGs 1,3,4,5 and 7 (WHO, 2014).
2.2.1 Locations of Solid Fuel Usage
The global distribution of solid fuel use is shown in Figure 2.5. It can be seen that the problem is
concentrated in developing countries in Africa and Asia. Over 86% of the population in most African
countries, and especially those in the Sub-Saharan Africa region, use solid fuels (GACC, 2014). In
most parts of Asia the average rate is lower at approximately 52-66% (GACC, 2014), but still highly
CHAPTER 2. BACKGROUND 8
significant. The death rate in each country logically follows the proportion of solid fuel use of the
population. In Sub-Saharan Africa, between 400-600 people per million die due to solid fuel usage
while in Asia, this is between 200-300 people per million (Ezzati et al., 2005).
Figure 2.5: Indication of household solid fuel use globally (Chartsbin (2007) using data from WHO
(2007))
2.2.2 Health Implications
There are a large number of health issues that arise from smoke inhalation and household air pollu-
tion. Some of the most common issues are pneumonia, chronic obstructive pulmonary disease, and
lung cancer, which represent 12%, 22% and 6% of the total 4.3 million annual deaths associated with
household air pollution, respectively (WHO, 2014). Acute lower respiratory infections including pneu-
monia are especially vicious, having the greatest effect on young children. Over half of the pneumonia
related deaths worldwide in children under five years of age are caused by household air pollution
produced during the combustion of solid fuels (WHO, 2014).
Other issues that seriously affect quality of life, but are not necessarily fatal, include cataract contrac-
tion (which can result in blindness), asthma, and burns (WHO, 2014). While it is difficult to compare
these issues to the fatal conditions, the negative effect they have on the ability of people to function in
life, and of developing countries to improve their situation, cannot be underestimated. Overall, it can
be seen that the problems resulting from solid fuel use, which causes harmful household air pollution,
are some of the most serious global health issues today.
CHAPTER 2. BACKGROUND 9
2.2.3 Environmental Implications
As well as the health related problems discussed in Section 2.2.2, there are a number of significant
environmental issues brought about by the burning of solid fuels. These include contributions to the
greenhouse effect, and deforestation.
The inefficient performance of most cook stoves in the developing world contributes to the greenhouse
effect. In these devices, most fuels undergo a significant degree of incomplete combustion resulting
in the emission of black carbon (soot) into the atmosphere. Soot is one of the largest contributors
to climate change, following CO2 and methane (CH4) (Bond and Sun, 2005). It is estimated that
household solid fuel burning accounts for 18% of these emissions globally (Bond and Sun, 2005).
2.2.4 Social Implications
Women and children are often given the task of gathering fuel for cooking, lighting, and heating
(Parikh, 2011; WHO, 2014). This activity can take a significant period of time, and limits the time
available for schooling, income generation, and other opportunities for economic development (WHO,
2014). The fact that these tasks are often limited to daylight hours only exacerbates the problem.
According to the World Health Organization (2014), women and children also face serious risk of
injury and violence while gathering fuel.
As women are often responsible for household cooking, they are more exposed to air pollution created
in cooking and heating practices (WHO, 2014). Along with women being disproportionately affected
by the use of solid fuels, more than 50% of worldwide deaths among children under five years old can
be directly attributed to household air pollution created by solid fuel use (WHO, 2014).
2.2.5 Modern Fuels and Clean Cookstoves
The main alternatives to biomass burning are modern fuels and clean cookstoves. The term ‘modern
fuels’ encompasses liquefied petroleum gas (LPG), kerosene, ethanol, biodiesel, and biogas. Modern
fuels are superior to solid fuels as they produce fewer harmful emissions (Rehfuess et al., 2011). This
largely eliminates most of the health, environmental, and social issues associated with solid fuel use.
Clean cookstoves are an intermediate measure that still burn biomass, but achieve similar advantages
as using modern fuels.
The main obstacles to modern fuel uptake are affordability, and availability (Foell et al., 2011). For
this reason uptake is significantly higher in wealthier urban areas, where the availability of fuels is
higher due to the centralised location. In rural areas the clean cookstove is often a more attractive
alternative than modern fuels, due to the lower costs and widespread biomass availability (Foell et al.,
CHAPTER 2. BACKGROUND 10
2011). Modern fuel uptake is also affected by cultural preferences. In many cases, even when modern
fuels are readily available and affordable, existing practices will be maintained exclusively, or a mix of
the two options applied (Masera et al., 2000). The motivations behind this are varied, including the
preference for smoke as a mosquito repellent, and cultural practices such as using flat pans for cooking
traditional tortillas in Mexico (Masera et al., 2000). Biogas is one modern fuel that has a history of
widespread uptake in developing countries.
By 2007, 26.5 and four million domestic biogas generators (or ‘biodigesters’) were present in China
and India, respectively (Surendra et al., 2013). The Netherlands Development Organisation (SNV),
has also installed over 500,000 domestic biodigesters across Asia and Africa (Surendra et al., 2013).
Biodigester programs have been set up by governments in many developing countries to promote biogas
production (Buysmanc and Mol, 2013). In these cases, a local biodigester market was created through
initial financial and technical training. High construction costs have prevented these markets from
becoming entirely self-sustainable, and currently most people are still partly reliant on government
assistance to purchase a biodigester (Buysmanc and Mol, 2013). While this reliance on government
assistance is obviously a weakness in the programs, they have been highly successful in terms of the
quality and scale of biodigester dissemination (Buysmanc and Mol, 2013). Clearly, biogas is a modern
fuel that has a history of uptake in developing countries, and as such is considered an excellent potential
replacement for solid fuels.
2.3 The Connection
Based on the information presented in Figures 2.1 and 2.5, it is clear that the countries with the
highest population proportions using unimproved sanitation facilities also have high incidences of
solid fuel use. These countries are some of the most poverty stricken in the world (Socioeconomic
Data and Applications Center, 2005). Therefore, people living in these areas are likely subjected to a
combination of the serious health issues presented by poor sanitation practices, respiratory problems
created by household air pollution, and minimal means to improve their situation due to the poverty
distribution within their country.
As the problems outlined in Sections 2.1 and 2.2 are primarily concentrated in the same poverty
stricken areas, it makes sense to develop a single, cheap solution to both major issues. This way, a
single method can be used to minimise the impact of problems arising from both unsafe sanitation
practices, and solid fuel use. Defining one solution would also prove easier to implement and integrate
into the regions where it is most required. Having a single solution to both these issues will also make
significant inroads into progress towards the Millennium Development Goals.
CHAPTER 2. BACKGROUND 11
2.3.1 Sanitation, Solid Fuels and the Millennium Development Goals
The eight United Nations Millennium Development Goals (MDGs) were created in 2000 to quanti-
tatively measure and target the progress of developing nations. Almost all of these goals relate in
some way to improving sanitation and modern fuel usage in the developing world. All the Millenium
Development Goals, with the exception of Goal 2 and Goal 8, are especially relevant.
The United Nations Millennium Development Goals (United Nations, 2014)
1. To eradicate extreme poverty and hunger
The use of modern fuels eliminates the need to collect traditional solid fuels which can often be
a highly time consuming process. Saving time allows the pursuit of income generating activities,
and education.
2. To achieve universal primary education
3. To promote gender equality and empower women
Solid fuel usage was shown to disproportionately affect women; reducing the use of solid fuels
will significantly act to address this inequality.
4. To reduce child mortality
Household air pollution from solid fuel usage disproportionately affects children to a significant
degree, as shown in Section 2.2.2. Modern fuels produce less household air pollution, and
therefore help to address this goal. In addition, improving sanitation practices will reduce the
incidences of children contracting diseases from unsuitable sanitation facilities.
5. To improve maternal health
The use of modern fuels will reduce the exposure of women to household air pollution. According
to WHO (2014), reducing household air pollution will help to achieve this MDG.
6. To combat HIV/AIDS, malaria and other diseases
Providing improved sanitation facilities will significantly reduce the devastating diseases associ-
ated with poor sanitation, while use of clean burning modern fuels will help reduce incidences
of health problems related to household air pollution.
CHAPTER 2. BACKGROUND 12
7. To ensure environmental sustainability
There are a number of environmental issues associated with the use of solid fuels, explored
in Section 2.2.3. Reducing household air pollution will negate many of these environmental
problems. Providing improved sanitation facilities will also reduce incidences of open defecation,
making for cleaner water bodies.
8. To develop a global partnership for development
2.4 Project Aim
Based on the information presented in this chapter, it is clear that poor sanitation and solid fuel use
are two independent problems causing serious negative effects for billions of people worldwide. Both
problems are typically concentrated in the same developing countries, and often affect the same people.
It is clear that developing a single solution to both of these problems will have a positive impact on
billions of lives worldwide, and has the potential to prevent up to 4.3 million deaths each year. This
leads to the overall aim of the project:
To develop a single appropriate technology that may be implemented in developing communities in
order to alleviate the dangers associated with unsafe sanitation practices and the household burning
of solid fuels.
Chapter 3
Technical Background
3.1 Human Waste Management
It is necessary to consider various waste management techniques in order to develop an appropriate
technology that will help alleviate the dangers associated with unsafe sanitation practices. The term
‘waste management’ comprises practices relating to the treatment and subsequent recycling or disposal
of human waste.
3.1.1 Harmful Pathogens and Health Implications
A pathogen is a broad term for any infectious virus, bacteria, parasite or fungi that may cause disease
to the host organism. They are present in human and animal excreta, contaminated food, industrial
facilities, along with other sources (Wang et al., 2007). Pathogens from human excreta enter the
human body through a number of pathways including direct transmission from inadequate sanitation
facilities, contaminated water sources and contaminated crop fields (WHO and UNICEF, 2012).
Feachem et al. (1980) explains how there is a large range of bacterial pathogens that can grow and
reproduce in excreta under different environmental conditions. Common bacteria include salmonellae,
shigella, vibrios, pathogenic E. coli, Yersinia and campylobacter (Feachem et al., 1980). Bacteria can
remain active for long periods. They become dormant in low temperatures but are likely to become
inactivated under high temperatures. Diarrhoea or gastroenteritis are common symptom of bacterial
infection.
Destruction of these pathogens is a key priority for waste management systems. Human exposure to
harmful pathogens at any stage during the waste management process could result in severe health
implications. Most pathogens in excreta can be minimised by employing one or more various treatment
methods.
13
CHAPTER 3. TECHNICAL BACKGROUND 14
3.1.2 Wastewater Treatment Methods
Wastewater management is a collection of processes that remove the contaminants from wastewater
and sewage. The objective of wastewater management is to convert potentially harmful sewage waste
into a safe product which can be returned to the environment.
3.1.2.1 Sedimentation
As described by Wang et al. (2007), sedimentation is a process involving the separation of dense
suspended particles in a mixture from a lower density fluid, and is often the first phase in a water
treatment process. In sedimentation tanks, solids accumulate at the bottom of the tank to form a
sludge. This process is usually followed by a secondary decantation procedure to separate the sludge
from the fluid.
3.1.2.2 Aerobic Treatment
Aerobic treatment is a process during which biodegradable matter is broken down in the presence of
oxygen, and is commonly referred to as aerobic digestion. Organic matter is oxidised and decomposed
by micro-organisms which feed on the organic material. The basic procedure consists of aerating the
waste in order to oxidise the solids, then allowing the sludge to begin sedimentation. Once settled,
water is decanted, and digested solids are removed or pumped back into the system. During the
oxidation process, organic mass is broken down into carbon dioxide (CO2) and water (H2O), nitrates,
sulphates and energy in the form of heat (Wang et al., 2007).
Odours are minimised during storage and sludge quantities are reduced by removing volatile solids
during aerobic digestion. Aerobic treatment processes are used by many wastewater treatment facilities
due to shorter retention times. One drawback of aerobic digestion is the external energy requirement.
Energy is required to pump recycled bacteria from the settled solids back into the system, along with
providing a continuous oxygen supply to the system (Wang et al., 2007).
3.1.2.3 Anaerobic Treatment
Anaerobic treatment utilises the anaerobic digestion process which breaks down biodegradable matter
in the absence of oxygen (Lettinga, 1995). The process is known to occur naturally in some soils
and lakes where oxygen is restricted, and can also be induced by enclosing organic matter within
a gas-tight vessel to eliminate the supply of oxygen. This gas-tight vessel is commonly referred to
as a ‘biodigester’. Under suitable conditions, the organic material is digested by naturally occurring
anaerobic bacteria which significantly reduces pathogen content of the material (Mata-Alvarez et al.,
CHAPTER 3. TECHNICAL BACKGROUND 15
2000). In addition to reducing pathogen content, anaerobic digestion produces a flammable gas by-
product, commonly known as biogas (Caruana and Olsen, 2012). The production of biogas offers
a unique advantage of anaerobic treatment over other treatment methods; biogas can be used for
cooking, heating and lighting, as well as electricity generation.
The main drawback of anaerobic digestion is the temperamental nature of the anaerobic bacteria.
They are highly sensitive to fluctuating environmental conditions, and if they are not retained within
the system, organic compounds will not be effectively broken down. This will result in ineffective
pathogen treatment and a low biogas yield (Smith et al., 2005).
3.1.2.4 Decomposition
Decomposition, or composting of organic materials is another method of treating potentially harmful
waste products whilst producing a useful by-product. Bacteria and organisms decompose organic
matter into compost. In regards to human waste composting, the end product has minimal odour,
levels of pathogens which are safe for human handling, and may be applied to gardens and crops as a
nutritional soil conditioner and fertiliser (Wang et al., 2007).
Composting is advantageous in locations with a lack of landfill availability for waste disposal, as the
composted product takes up much less space than the primary organic material. As the end product
is a nutritional fertiliser, it can also be used in local agriculture operations. As the composting system
is low cost and effective, it may be appropriate to implement subsequent to anaerobic digestion so
that any exploitable energy by-products are extracted first (Jenkins, 2005).
3.1.3 Toilets
Fundamentally, a toilet is a sanitation facility designed to separate human waste from human contact
by transporting excreta to a location where it is less exposed. Traditionally, wastes were removed from
the human interface using dry systems which collected excreta in a large container or trench. These
systems are still commonly used in rural regions and in a majority of the developing world (Jenkins,
2005). Modern toilets in developed countries are wet systems which use a flush mechanism to remove
the wastes from human exposure, and transport it to a treatment facility.
The standard flushing toilet is not regarded as self-sustainable from a waste management perspective.
In most cases, flushing toilets simply transport waste from the human body to a sewer or septic tank,
the contents of which are eventually transported to a wastewater management facility for further
treatment. Once the water is treated, often with antibacterial chemicals, it is released back into the
environment. The solid matter is occasionally recycled into fertiliser but often discarded in landfills. In
CHAPTER 3. TECHNICAL BACKGROUND 16
some cases the flushing toilet is linked to a self-contained waste treatment unit or septic system which
allows for waste management on site (Jenkins, 2005). Self-contained waste management systems have
potential for environmental sustainability and also lower costs as the waste management processes can
be conducted at or near the toilet site and do not necessarily require as much infrastructure, water,
or treatment methods.
3.2 Single Appropriate Technology
As introduced in Section 2.4, the overall aim of the project is “To develop a single appropriate technol-
ogy that may be implemented in developing communities in order to alleviate the dangers associated
with unsafe sanitation practices and the household burning of solid fuels.”. Improving sanitation prac-
tices using a single technical solution requires the integration of a waste management method with a
toilet. This way, waste is separated from human contact at the source using the toilet, and is treated
by the integrated waste management system. Of the waste management systems considered in Sec-
tion 3.1, anaerobic digestion is the only method that will reduce dependence on solid fuels and the
subsequent prevalence of harmful household air pollution, via the production of clean burning biogas.
Designing a combined biodigester toilet thus establishes a self-contained waste management facility
which generates a clean burning modern fuel, and achieves the overall aim of the project.
3.3 Anaerobic Digestion
A biodigester here will be defined as a vessel in which anaerobic digestion takes place. The literature
relevant to the design and operation of a biodigester can be split into two major sections; the anaerobic
digestion process and existing biodigester technology.
Anaerobic digestion is a complex microbial process involving 4 chemical stages:
1. Hydrolysis: The chemical reduction of complex organic molecules (feedstock) into simple monomers
such as amino acids, fatty acids and simple sugars (Wang et al., 2007).
2. Acidogenesis: The bacterial breakdown of the simple monomers into volatile fatty acids (Wang
et al., 2007).
3. Acetogenesis: The bacterial conversion of volatile fatty acids into acetic acids. Carbon dioxide
and hydrogen sulphide are also produced in this stage (Wang et al., 2007).
4. Methanogenesis: The bacterial conversion of acetates into methane and carbon dioxide, the
primary constituents of biogas (Wang et al., 2007). It is also during this stage that the waste
stabilisation occurs, reducing odours and pathogenic concentration (Lettinga, 1995).
CHAPTER 3. TECHNICAL BACKGROUND 17
Oxygen toxicity occurs when oxygen molecules form free radicals in a cellular environment. These free
radicals are highly reactive and hence toxic to all cells. Unlike aerobic bacteria, anaerobic bacteria do
not possess the enzymes required to defend themselves against these free radicals (Parkin and Owen,
1986). It is therefore necessary for oxygen to be excluded from all stages of anaerobic digestion for
the processes to be performed correctly.
3.3.1 Feedstock
Feedstock for anaerobic digestion is the primary organic material which is broken down by the anaer-
obic bacteria. A number of factors such as the temperature, hydraulic retention time, pH, carbon
nitrogen (C/N) ratio and volatile solids (VS) content of the feedstock affect the rate of anaerobic
digestion. Manure from livestock such as cattle and pigs is commonly used as a feedstock. Systems
operating with these feedstocks are referred to as wet digesters as they require additional water to be
added. Dry digestion systems that do not require water also exist; these use plant based feedstock
such a coffee husks, maize, vegetables and purpose grown crops (Favre et al., 2009).
3.3.2 Anaerobic Digestion Products
The constituents of biogas produced by anaerobic digestion are outlined in Table 3.1. It can be seen
that methane and carbon dioxide are the primary constituents, contributing to approximately 95% of
the mixture. It is this high concentration of flammable methane which makes biogas useful as a fuel
source.
Table 3.1: Chemical constituents of biogas (Favre et al., 2009)
Gas Component Concentration Range Mean Value
Methane (CH4) 45-75% 60%
Carbon Dioxide (CO2) 25-55% 35%
Water Vapour (H2O) 0-10% 3-10%
Nitrogen (N2) 0.01-5% 1%
Oxygen (O2) 0.01-2% 0.3%
Hydrogen (H2) 0-1% <1%
Ammonia (NH3) 0.01-2.5mg/m3 0.7%
Hydrogen Sulphide (H2O) 10-10000mg/m3 <500mg/m3
The solid digested waste, known as effluent, is another useful by-product. Anaerobic digestion removes
a significant amount of pathogens from the primary feedstock leaving a product rich in nutrients (Mata-
CHAPTER 3. TECHNICAL BACKGROUND 18
Alvarez et al., 2000; Wang et al., 2007). The use of the biodigester effluent as a plant fertiliser has
resulted in substantial improvements to basic farming practices in many communities (Junfeng et al.,
2005).
3.3.3 Technical Factors
The rate at which anaerobic digestion is performed is dependent on a number of technical factors.
It is these factors which therefore determine the rate of biogas production and the extent to which
pathogen content is reduced, making them important considerations for the design and operation of
a biodigester.
Volatile Solids:
Volatile solids (VS) are the organic compounds which are reduced by the anaerobic digestion process,
the VS content can be considered the ‘digestible’ proportion of the feedstock (Wang et al., 2007). VS
reduction is often used as a measure of the extent to which anaerobic digestion has occurred. At a
constant temperature and pH, the biogas potential of a feedstock is primarily a function of its VS
content. Table 3.2 provides the VS% and biogas production potential of different waste feedstocks. It
should noted that this biogas potential is significantly influenced by animal diet; hence, actual values
of biogas production can vary significantly (Amon et al., 2007).
Table 3.2: Biogas production for different animal feedstocks (Junfeng et al., 2005)
Feedstock VS%
Biogas Yield
(L/kg)
Daily Production
(kg/day)
Daily Biogas
Production (L/day)
Human 25 30 0.6 18
Cow 18 25 12 300
Chicken 20 100 0.1 10
Pig 20 25 2 50
As shown in Table 3.2, the average human will produce 18 L of biogas per day. It is estimated that
a single person in a developing nation requires between 150 to 300 L of biogas daily (Deublein and
Steinhauser, 2010). It is obvious that a population cannot be completely self-sustainable from the
energy provided by human waste, however it can make up a significant proportion of a populations
total energy demand.
CHAPTER 3. TECHNICAL BACKGROUND 19
Temperature:
For waste treatment purposes anaerobic digestion is typically performed in one of two temperature
ranges; mesophilic, between 30◦C and 38◦C, or thermophilic, between 49◦C and 57◦C. Each range
contains a different species of anaerobic bacteria that is responsible for the methanogenesis conver-
sion; mesophiles are present in the mesophilic range and thermofiles in the thermophilic range. Figure
3.1 shows that with decreasing temperature the time required to reach the maximum volatile solids
reduction is increased, indicating that lower temperatures result in a slower rate of anaerobic diges-
tion. Outside their respective temperature ranges, mesophile and thermophile activity reduces and
eventually ceases as the bacteria perish. It has been found that mesophiles are able to survive in
temperatures as low as 15◦C however the rate of digestion at these temperatures is negligible (Wang
et al., 2007).
Figure 3.1: Effect of solids retention time and temperature on volatile solids reduction in a laboratory
scale anaerobic digester (Wang et al., 2007)
Both mesophilic and thermophilic digestion extract roughly the same amount of biogas from feedstock,
however thermophilic reactions are faster due to a higher energy input (Vindis et al., 2009). Both
reaction types are also very sensitive to rapid temperature changes, suggesting a need for insulation
to dampen the effect of fluctuating temperatures (Chae et al., 2008).
CHAPTER 3. TECHNICAL BACKGROUND 20
Retention Time:
The retention time (RT) is the length of time the organic material remains within the system. The
required RT is directly related to the temperature inside the biodigester. Advanced multistage biodi-
gester designs achieve required retention times for maximum VS reduction as low as five days by using
the high temperature thermophilic process. Single stage mesophilic biodigesters such as those typically
used in the developing countries require a retention time between 30 and 60 days (Suryawanshi et al.,
2013).
pH:
pH affects the methanogenesis stage of anaerobic decomposition, which is most productive between
pH 6.8 to 7.5 (Environmental Protection Agency, 2012). Activities below a pH of 6 and above a pH
of 8 will hinder and potentially cease the digestion process (Karki and Dixit, 1984). During the initial
set up of an anaerobic reaction, when the acetogenesis stage is approaching completion, the acetic
acid produced can create conditions as low as pH 5.5 (Wang et al., 2007). This initial acidic period
is balanced after methanogenesis is complete and ammonia is produced, increasing pH (Wang et al.,
2007).
C/N Ratio:
If the ratio of carbon to nitrogen (C/N) in the feedstock is too high (> 60), nitrogen will be consumed
rapidly during the acidogenesis and acetogenesis stages, and will not be available to react with the
remaining carbon as required in methanogenesis (Parkin and Owen, 1986). If the ratio is too low (<
2), excess nitrogen will lead to a high concentration of ammonia thus increasing the pH which can
then inhibit methanogenesis (Parkin and Owen, 1986). The ideal C/N for the production of biogas
is 25, though ratios between 5 and 40 are acceptable (Parkin and Owen, 1986). Table 3.3 shows that
C/N ratios of cow and pig manure are close to the optimal value of 25. Humans and chickens have
lower C/N ratios that are still within the acceptable range.
Table 3.3: C/N ratio of some organic materials (Karki and Dixit, 1984)
Feedstock C/N Ratio
Human 8
Cow 25
Pig 18
Chicken 8
CHAPTER 3. TECHNICAL BACKGROUND 21
3.4 Biodigester Designs
An extensive range of biodigester designs currently exist, each for its own specific application. These
include large-scale processing plants for all types of biomass, medium-scale designs for farms or restau-
rants and small single-stage designs predominant in developing countries. The primary focus of this
review is the single-stage designs, as their simplicity and relatively low cost make them applicable in
developing regions of the world.
Small-scale designs vary in a number of different ways according to shape, size, complexity and ma-
terials. Nonetheless, it is possible to categorise most designs into one of three models; fixed dome,
floating drum or plug flow. Additionally, designs can be classified by their construction techniques;
prefabricated or permanent structure. On-site permanent biodigesters have historically been the most
reliable and widely implemented, however recent improvements in prefabricated technologies are seeing
the emergence of these as a viable alternative.
3.4.1 Fixed Dome
The fixed dome biodigester (Figure 3.2) is the most simple and reliable of the three major designs. It
originated the 1950s and is now common throughout China and Africa (Amigun and Stafford, 2011).
It usually consists of a cylindrical structure for waste storage with a dome-shaped gas collection area
situated above. A displacement pit is included to collect digested slurry. The design relies on pressure
created by the collection of biogas to force the slurry out of the digester and into the displacement
pit.
Figure 3.2: Fixed dome biodigester (Weir, n.d.)
Fixed dome digesters have an expected lifespan of 20 years as there are no moving parts or corrosion
prone surfaces, leaving few potential sources of failure (SNV, 2007). Cement and brick are the most
common construction materials, used for their durability and suitable thermal properties. Fixed
dome digesters are often buried underground, providing additional insulation and reducing spatial
requirements.
CHAPTER 3. TECHNICAL BACKGROUND 22
Amigun and von Blottniz (2010) note that the average cost of a fixed dome digester constructed in
South Africa is 860 USD, which is significantly cheaper than 1420 USD required for a floating drum
digester in the same location. Similarly in India the price for a 3m3 fixed dome system was 450 USD
cheaper than a floating drum digester of the same size (Singh and Sooch, 2002).
Construction is difficult and labour intensive, usually taking three people at least two days and requir-
ing the supervision of a qualified technician (Rwanda Utilities Regulatory Agency, 2012). Gas leakage
is also an issue as it is difficult to create a completely gas-tight environment from cement and brick.
Also, as the rate of biogas production from anaerobic digestion is not constant, the fixed volume for
gas collection provides a variable pressure output, complicating combustion applications.
3.4.2 Floating Drum
Floating drum biodigesters (Figure 3.3) are common in India, where over 4 million models are currently
in operation (Kaniyamparambil, 2011). The design consists of an underground chamber, similar to
that of the fixed dome digester, with a metal drum above. This drum moves up and down in a guiding
jacket depending on the volume of biogas held in the system.
As the volume of the gas collection system is able to adapt to the variable gas production a relatively
constant gas pressure can be achieved from this system which is desirable from a combustion perspec-
tive. The volume of gas held within the system can also easily be determined by the height at which
the drum is raised.
A floating drum biodigester is more expensive compared to fixed dome and plug flow digesters, pre-
dominantly due to the cost of the large metal drum. Regular maintenance adds additional costs and
labour that are not required for fixed dome or plug flow digesters. Rust must be removed from the
drum as well as regular painting to prevent corrosion. Dried slurry must be regularly removed from
the metal drum surface to ensure the drum can move freely. Even when these maintenance procedures
are adhered to, the average lifespan of a floating drum digester in tropical regions approximately five
years (SNV, 2007).
CHAPTER 3. TECHNICAL BACKGROUND 23
Figure 3.3: Floating drum biodigester (Thai Biogas Energy Company, 2008)
3.4.3 Plug Flow
Plug flow biodigesters (Figure 3.4) are plastic membranes, typically polyethylene, with length to width
ratios of approximately five (Mart’i-Herrero and Cipriano, 2012). Manure is transferred lengthwise
along the digester with no mixing between different heights or widths. In this way the ejected effluent
is guaranteed to be the most digested waste.
Figure 3.4: Plastic tube plug flow biodigester. Adapted from Energypedia (2014)
The advantage of plug flow digesters is that they are portable and inexpensive. The plastic membrane
is usually placed in a trench during operation and can be easily emptied and transported if required.
Xuan et al. (1997) estimates the costs of a 4 m3 plug flow digester to be 50 USD in Vietnam, which
is on average six to seven times cheaper than other local fixed and floating drum alternatives.
Polyethylene is weak and can be punctured easily by a number of means including a stray animals
(Mart’i-Herrero and Cipriano, 2012). Additionally, as top half of a plug flow digester is located
CHAPTER 3. TECHNICAL BACKGROUND 24
above ground, it is poorly insulated and susceptible to temperature fluctuations. Kanwar and Guleri
(1994) analysed the performance of a fixed dome and plug flow type biodigestser of the same capacity,
concluding that the daily average biogas production of the plug flow digester was 33% less than the
fixed dome.
3.4.4 Prefabricated Technologies Versus Permanent Structures
Permanent brick and concrete biodigester structures have been the most commonly implemented
biodigester systems since the inception of the technology, however portable, prefabricated designs are
emerging to offer solutions to the lack of related with traditional permanent designs. The motivation
behind these prefabricated biodigesters is to produce “...technically reliable, highly adaptable, easily
transportable, and reasonably priced” products (Cheng et al., 2014).
Specific situations where traditional biodigester technologies are inappropriate:
• Locations with high ground water levels, such as coastal areas where constructing on-site con-
crete, stone or brick digesters is difficult.
• Remote areas, such as mountain regions, where providing and transporting conventional con-
struction materials is difficult.
• Sites with inadequate conventional construction materials and a specialized labour force.
• Residential areas that are rebuilt as a result of land reform measures, thus affecting the perma-
nent site locations of conventional digesters.
These issues prompted the Chinese National Development and Reform Commission to release a report
on biodigester designs which concluded that “...traditional brick and concrete-based digesters do not
meet the requirements for commercialization and large-scale implementation, whereas prefabricated
biogas digesters are promising technologies for dissemination” (El-Mashad and Zhang, 2010). Cur-
rent prefabricated designs can be divided into two categories; bag digesters and composite material
digesters. Bag digesters are predominantly variations of the typical polyethylene plug flow digesters.
These biodigesters are more suited to rural areas where there is less chance of damage and greater
spatial availability (Cheng et al., 2014).
A common type of composite material digester is the fiber-reinforced plastic model (FRP). This model
is based on the fixed dome digester but its lightweight construction makes it portable and durable
with a high rate of productivity (Jiang et al., 2010). Currently the costs of these designs is high,
however with market growth and economies of scale this is expected to decrease substantially (Cheng
et al., 2014). A dismountable FRP is shown in Figure 3.5.
CHAPTER 3. TECHNICAL BACKGROUND 25
Figure 3.5: Dismountable FRP biodigester model (Cheng et al., 2014)
Another example of composite material digester is the modified water tank design (Figure 3.6). These
designs use existing water tanks to reduce costs yet still provide the portability and reliability of FRP
designs (Jiang et al., 2010).
Figure 3.6: Biodigester created from existing water tanks in Cambodia (Engineers Without Borders,
2011)
The ARTI model (Figure 3.7), created by an NGO in Maharashtra, India, is a composite material
digester based on the traditional floating drum digester. It uses cut-down high-density polyethylene
tanks for the digester and drum. The design costs only approximately 200 USD, significantly cheaper
than current steel and brick models, though currently the design can only be constructed on a very
small scale (ARTI, 2014).
CHAPTER 3. TECHNICAL BACKGROUND 26
Figure 3.7: ARTI bioidigester: A prefabricated plastic product based on the existing floating drum
design (Zu, 2005)
After review of the different biodigester models, it is obvious that prefabricated systems offer more
opportunities for implementation in the developing world over permanent fixed dome and floating
drum designs. They do not require large areas of land or holes to be created, and can simply be
transported to a particular location, and relocated when required. These advantages also extend to a
biodigester toilet system; a portable design would enable widespread implementation without the need
for large land areas or specialist construction techniques. The system could be constructed offsite by
an NGO or similar party, and provided to a community with little cost on available space.
3.5 Existing Biodigester Toilets
Currently, several successful combined biodigester toilet systems exist, although they are almost ex-
clusively permanent structure designs which share many of the disadvantages of traditonal permanent
biodigester technology. One such design was developed during an Engineers Without Borders (EWB)
challenge. A group of undergraduate students from the University of Adelaide designed and built a
portable biodigester toilet system, however it proved to be unsuccessful. It is clear there exists a lack
of successful, inexpensive and portable designs that incorporate both a toilet and biodigester with the
goal of providing a solution to unsafe sanitation and producing usable biogas.
3.5.1 Engineers Without Boarders Challenge (2011)
In 2011, a group of undergraduate engineering students supported by EWB were presented with a
series of health, energy and environmental issues that faced the village of Devikulam in India. It was
essential that their proposed solution to these issues be cheap, simple, safe, and have a positive impact
on the lives of the people of Devikulam. The team decided that a biodigester toilet system would
CHAPTER 3. TECHNICAL BACKGROUND 27
be a suitable solution to a lack of clean cooking sources and health issues related to open defecation
(Ashley et al., 2011).
The group’s final design (Figure 3.8) utilised two large (5.5 m x 1.8 m x 1.5 m) concrete and brick
tanks, emptied biannually. A slab with toilet facilities was placed over the top of these tanks, providing
a convenient location for waste disposal. The design also included an animal waste trough, so farm
manure could be disposed of in the same system. A large flexible membrane was used to collect the
biogas produced and the tanks were buried in the ground to provide insulation.
Figure 3.8: EWB Challenge biodigesting toilet (Ashley et al., 2011)
This design provides an excellent method of utilising both human and animal waste to produce biogas,
and addresses the issue of unsafe sanitation and its associated health problems by providing a toilet
facility. However, as the system is a permanent structure built from concrete and brick, it is still
restricted by the disadvantages of traditional biodigester technology, namely portability and space
requirements. While it addresses the needs of a single village it is not suitable as a global solution as
it cannot be easily manufactured and distributed throughout the developing world.
3.5.2 Adelaide University Honours Project 777 (2009)
In 2009, under the supervision of Dr. Steven Grainger and Dr. Colin Kestell, a group of Mechanical
Engineering students from The University of Adelaide designed and constructed a biodigester toilet
system. The overarching goal of the project was to effectively sanitise “human waste so that its effluent
is safe for reuse, producing a form of fuel that can be used to cook meals and aid in the daily lives of
CHAPTER 3. TECHNICAL BACKGROUND 28
users and must cost nothing to run.” (Coffee et al., 2009). The project team worked in conjunction
with two students from The University of Douala, Cameroon, and the system was designed to be
implemented specifically in this region.
The criteria guiding the design of the prototype were (Coffee et al., 2009);
• The system must fit in a highly populated environment
• The system must effectively treat human waste to reduce the spread of waterborne diseases
• There must not be any stagnant water that provides malaria carrying mosquitoes to breed
• A sustainable fuel that can be used for heating and cooking must be produced
• The system must not require electrical input for operation
• The system must be simple to operate
• The system must be inexpensive
The final design utilised two polyethylene water tanks, a series of plumbing and gas fittings and a
marine toilet. The two polyethylene water tanks served as the main anaerobic digestion chamber,
while the marine toilet utilised a manual pump to input waste into the system. The marine toilet
pump also allowed the toilet to be situated at ground level.
The biodigester used crushed bricks to increase the surface area available for anaerobic bacteria to
cultivate (Coffee et al., 2009; Stephenson, 1987). Two tanks were used to act as a baffle system,
increasing the retention time of the system (Coffee et al., 2009). The tanks could also be isolated, so
that the entire system was portable. To collect any biogas produced, both flexible membranes (Figure
3.9) and a floating drum style gasometer (Figure 3.10) were employed, both of which experienced
complications.
CHAPTER 3. TECHNICAL BACKGROUND 29
Figure 3.9: Prototype design with flexible membrane gas collection (Coffee et al., 2009)
Figure 3.10: Prototype design with gasometer gas collection (Coffee et al., 2009)
There were several issues with the design and testing procedure, which resulted in little biogas being
collected (Coffee et al., 2009):
• Biogas production was insignificant
• Conditions were too cold for anaerobic digestion (< 10◦C)
• Retention time was too short
• Hand pump for toilet was susceptible to clogging
• Flexible gas collection membrane continually leaked at seals and pipe connections
CHAPTER 3. TECHNICAL BACKGROUND 30
• Gasometer collection method created back pressure issues, driving biogas back into the system
Based on these issues the following improvements were suggested (Coffee et al., 2009):
• Insulating the system to control the internal temperature and promote anaerobic digestion
• Enlarging the system to increase retention time
• Use a solar water purification system for post-processing of effluent
• Investigate pre-processing of waste to prevent the pumps susceptibility to blockage
• Use purpose built tanks to prevent gas leaks
Honours Project 777 provided an excellent basis for the development of new biodigester toilet designs
by creating a portable and inexpensive design. However, significant improvements are required to
overcome the complications with the effectiveness of the design.
With consideration to the overall project aim, the best single solution to poor sanitation practices and
household air pollution is a combined biodigester toilet system. It provides a method of separating
excreta from human contact at the source, and produces clean burning biogas which can replace
solid fuels. The anaerobic treatment process significantly reduces the pathogens present within the
waste, and creates a safe product that can be used as a fertiliser. Different biodigester designs were
evaluated in Section 3.4, and it was concluded that prefabricated, portable biodigesters offer a number
of advantages over traditional, permanent structures. A review of existing biodigester toilet designs
revealed that although they do exist, many are not portable and require large, permanent structures.
The portable systems that do exist have not been effective, and significant improvements to their
design can be made. Based on the current state of technology, there is a clear need for the design and
construction of a portable biodigester toilet system.
Chapter 4
Scope, Objectives and Timeline
4.1 Scope
Through successful design, construction, and implementation, a biodigester utilising human waste as
a feedstock provides a stand-alone waste management facility that does not require a municipal waste
system. A biodigester toilet also provides a means of producing biogas for cooking, heating, and
lighting. Providing a waste management facility, and a means of producing biogas in one system will
improve the quality of life for millions of people in the developing world. Billions of people living in
wealthy countries enjoy the use of improved sanitation facilities and clean burning cooking gas, and a
biodigester toilet will enable citizens of developing nations to enjoy the same standard of living.
The scope of the project encompasses the design, build, and preliminary testing of a prototype biodi-
gester toilet system. Beyond these achievements, future work may involve developments to the design
or material selection for economic mass production, and implementation into developing communities.
This would be done in conjunction with the development of education programs detailing the correct
operation of a biodigester toilet, to maximise system effectiveness, and guarantee the safety of those
using the system.
4.2 Core Objectives
Objectives were formulated within the scope of the project and defined in a measurable manner for
assessment of project success. The objectives and measurements of success are listed below.
1. Design and build a portable toilet that meets the definition of a Shared Sanitation Facility,
as outlined by the WHO/UNICEF Joint Monitoring Program (JMP) for Water Supply and
Sanitation.
31
CHAPTER 4. SCOPE, OBJECTIVES AND TIMELINE 32
Measurement: If the system ensures hygienic separation of human excreta from human contact,
and is shared by the equivalent of two or more households (WHO and UNICEF, 2013), then this
goal will be achieved.
2. Include a functioning biodigester component in the design that is capable of harnessing the
human waste collected in order to produce biogas.
Measurement: The success of this goal will be based on the biogas production rate (litres of
biogas per kilogram of feedstock). A minimum numerical target of 10L per kg of feedstock was
set after reviewing literature on typical biogas production rates.
3. Integrate the toilet with the biodigester to create a portable biodigester toilet unit.
Measurement: The system will be designed to accommodate a toilet attached to the inlet
pipe. The system will also be disassembled, moved, and reassembled during the testing phase
to demonstrate portability.
4. Ensure the design is acceptable for implementation and use in Australia by adhering relevant
Australian standards.
Measurement: A detailed analysis of the design in regard to the relevant Australian standards
on sanitation and gas production and storage will be performed. Other relevant and insightful
standards will also be identified.
5. Demonstrate a viable use for the gas generated by the biodigester.
Measurement: The goal will be met if the application of biogas is successfully demonstrated
by the use of typical equipment such as a cook stove or lamp.
4.3 Extension Goals
1. Design and build a suitable cubicle to house the toilet.
Measurement: If a cubicle is designed and constructed to a suitable standard, determined by
qualitative analysis, then the goal will be met.
2. Research and design possible methods of effective post-treatment for both liquid and solid com-
ponents in order to ensure the effluent exiting the system poses no health or environmental
risks.
Measurement: Qualitative analysis of the effluent to detect pathogens and other harmful
components will be performed in order to ensure that it is of an acceptable quality.
CHAPTER 4. SCOPE, OBJECTIVES AND TIMELINE 33
4.4 Project Timeline
The timeline for the design and build of a biodigester was defined using a Gantt chart (see Appendix
A). This Gantt chart listed all major milestones and their due dates, as well as a strict timeline to be
followed by the team in order to achieve these milestones. Review gates were listed in a table (Table
A.1 in Appendix A). These review gates were designed to ensure that the team stayed up to date
with all requirements. Major milestones and their completion dates were also listed. These are shown
in Table A.2 of Appendx A.
Chapter 5
Design Formation
The design formation phase of the project involved identifying the requirements of the system for it
to provide the maximum benefit to the end user while meeting the core project objectives outlined in
Section 4.2. A list of design criteria was produced to assess the effectiveness of a design at meeting these
objectives. Several conceptual designs were proposed and evaluated against these design criteria.
5.1 Standards and Recommendations
To ensure the design was safe, effective and robust, it had to comply with relevant Australian standards.
Designing the system to Australian standards also ensured that it could be ethically implemented in
communities lacking in strict safety guidelines. Recommendations from a consultation report produced
for the Australian Pork Association provided a Code of Practice (CoP) for on-farm biogas production,
and use on piggeries (Davidson et al., 2013). These were followed for the project to ensure that all
relevent standards were met, and there were no major safety issues with the design. The CoP was
specifically written for biogas installations implemented in large-scale piggeries, therefore most of the
recommendations were irrelevant. A description of the standards relevant to a small scale biodigester
toilet are presented in Table 5.1. Additionally, the recommendations provided by the Australian Pork
Association CoP that could apply to the design and build of a small scale biodigester are shown in
Table 5.2.
34
CHAPTER 5. DESIGN FORMATION 35
Table 5.1: Relevant Australian Standards (Davidson et al., 2013)
Standard Description
AS 2885 (2008)
Applies to steel pipelines, and associated piping and components that
are used to transmit single and multi-phase hydrocarbon fluids, such as
natural and manufactured gas, liquefied petroleum gas, natural
gasoline, crude oil, natural gas liquids, and liquid petroleum products.
AS 4041 (2006)
Sets out minimum requirements for the materials, design, fabrication,
testing, inspection, reports, and pre-commissioning of piping subject to
internal pressure or external pressure or both. Specific requirements
are given for piping constructed of carbon, carbon-manganese, low
alloy and high alloy steels, ductile and cast iron, copper, aluminium,
nickel, titanium, and alloys of these materials.
AS 4130 (2009)
Specifies requirements for polyethylene pipes for the conveyance of
fluids under pressure. Such fluids include, but are not restricted to:
water, wastewater, slurries, compressed air, and fuel gas. Fuel gas
includes natural gas, liquefied petroleum gas (LPG) in the vapour
phase, and LPG/air mixtures.
AS/NZS 3814
(2010)
Provides minimum requirements for the design, construction, and safe
operation of Type B appliances that use town gas, natural gas,
simulated natural gas, liquefied petroleum gas, tempered liquefied
petroleum gas, or any combination of these gases either together, or
with other fuels.
AS 1375 (1985)
Sets out the safety principles relating to the design, installation, and
operation of industrial appliances that involve the combustion of gas,
or oil, or other fuel in air suspension, or the generation of combustible
vapours in such appliances. It is clear that both open and enclosed
flares are industrial appliances that involve the combustion of gas, so
AS 1375 is applicable to both.
AS 5601.1 (2010)
This standard contains the mandatory requirements, and means of
compliance for the design, installation, and commissioning of gas
installations that are associated with the use or intended use of fuel
gases such as natural gas, LP Gas, biogas, or manufactures gas.
CHAPTER 5. DESIGN FORMATION 36
Table 5.2: Relevant recommendations for biogas installations relating to a small scale biodigester toilet
(Davidson et al., 2013)
Relevant Area Recommendation
Materials selection,
digester design
Low levels of hydrogen sulphide present in biogas can corrode
some materials. All plastics are suitable for contact with manure,
however Polyvinyl Chloride (PVC) piping must be UV resistant.
Copper, and steel (with the exception of stainless steel) should
never be used.
Safety
Digesters must be fitted with a hydraulic pressure relief, and
vent stack or equivalent component.
Safety
Waste storage structures must be tightly sealed to avoid
exposure to effluent.
Safety, pipeline design
A shutoff valve must be included in front of any component that
utilizes the biogas (eg. Generators) in a gas line. This valve must
shut automatically when the component ceases operation.
Environmental
protection
Biogas installation must seek maximum recovery of methane
within the feedstock to prevent uncontrolled release to the
atmosphere.
Safety Biogas appliances must have the Gas Safety Certification Mark.
Environmental
protection
Biogas installation must have an emergency flare system. This
will prevent venting of biogas into the atmosphere. The flare
must be capable of handling the entire volume of biogas
contained within the digester.
Materials selection,
pipeline design, gas
storage
All plastics apart from PVC and Polypropylene (PP) can be
used for biogas storage and conveyance. PVC can be used if it is
UV resistant. PP can be used if no fat is present in effluent.
Copper, brass, butyl rubber, and steel (with the exception of
stainless steel) should never be used.
Safety, pipeline design
Biogas pipelines should be operated at pressures less than 100
kilopascals (kPa) for transfer distanced of less than 4000m.
Safety
All piping components subject to pressure above atmospheric
pressure must have a pressure relief valve.
Pipeline design
Pipelines transferring biogas must have a constant minimum
slope of 2%, and must have provisions for condensate removal.
CHAPTER 5. DESIGN FORMATION 37
Safety
No open flames should be within six metres of plant, and
appropriate warning signs should be in place.
Safety, gas storage
Pressure free membrane bags fitted with condensate removal and
over-pressure release valves, located in the open, attached to the
ground and protected from damage with a suitable restraining
system are acceptable.
5.2 Overall Design Specification
The project objectives outlined in Section 4.2 determined the requirements necessary for the design to
meet. The toilet was to meet the WHO definition of a shared sanitation facility, as outlined in Section
2.1. Therefore, the system had to adequately separate faeces from human contact, and be designed for
shared use (WHO 2013). The system also had to incorporate a biodigester component that produced
biogas for use as an alternative to solid fuels, and be capable of safely storing this gas.
The biodigester and sanitation facility were required to be a single portable system that could be
easily transported, adressing the inherant problem with traditional fixed dome and floating drum
biodigesters which are typically permanent brick structures installed below ground level. A portable
system is particularly suitable for refugee camps (where construction materials are often in short supply
(Fenner et al., 2007)), building sites (which are typically only temporary sites), high-density urban
areas in developing countries without access to proper sanitation, and where large-scale infrastructure
redevelopment commonly occurs (Mara and Alabaster, 2008).
Post treatment of the feedstock was an important extension objective of the project. This encompassed
recycling any water remaining from digestion, and ensuring effluent exiting the system posed no health
or environmental risks. The anaerobic digestion process is typically sufficient to completely remove
most harmful pathogens from faecal matter (Masse et al., 2011). However, post treatment is necessary
to safely dispose of waste with a higher degree of certainty, especially in areas where disposal occurs
in waterways used for drinking sources.
5.3 Design Criteria
Design Criteria were employed to evaluate initial concept solutions and were fundamental in guiding
the design process for selection of the final design. The criteria were chosen and weighted to best
represent the needs and environmental conditions of the end user. To cover a wide range of possible
end users, it was assumed that the design would be implemented in developing communities. For
CHAPTER 5. DESIGN FORMATION 38
these regions, an appropriate technology approach was developed to accommodate a limited technical
understanding and resources available in these areas. There are a number of examples, such as in
Chinhoyi, Zimbabwe (Chinyama, 2013) and Dar es Salaam, Tanzania (Tumwine et al., 2002) where
large, traditional sewage systems were installed with help from external agencies. These facilities
could not be properly constructed and maintained by the local population, and were subsequently
abandoned. Thus, an appropriate technology approach was employed to avoid similar issues.
Focus on an appropriate humanitarian engineering approach to technology in developing countries has
gained prominence in recent years. Murphy et al. (2009) described it as technology that:
• Meets the essential basic needs of the end user
• Is sound and flexible
• Meets local capabilities through materials and resources
Following these ideologies ensured that end user’s dependence on external intervention would be
reduced, thus achieving a more sustainable solution. The following design criteria were chosen in
accordance with these principals:
Function
The ability of the biodigester toilet to effectively separate human waste from human contact
while producing meaningful amounts of biogas.
Cost
Cost must be minimised in order for it to be affordable for implementation in developing com-
munities.
Constructability
Materials required for the design should be sourced locally where possible. Construction must
also be possible with basic skills and without excessive labour.
Acceptability
The design must be easy and intuitive to use. It must also accommodate the existing cultural
practices of the end users.
Reliability
A reliable design enables the end user to be less dependent on external intervention for mainte-
nance, and more committed to ensuring long term use.
Portability
A portable biodigester toilet enables the system can be constructed off-site, or relocated if
required.
CHAPTER 5. DESIGN FORMATION 39
In order to quantify the extent to which a design met these criterion, a numerical score for each
criterion was given. An initial score of zero was assigned; if the design contained a feature giving a
major advantage or disadvantage to the criterion two points were added or subtracted respectively.
Similarly one point was added or subtracted for a minor advantage or disadvantage respectively. Each
criterion was considered equally weighted, and the individual criterion scores were added to produce
a final score for each design.
5.4 Essential Design Features
Before concept designs were generated, a number of design features were identified as being essential
to ensuring an effective design. These features were common to each concept design.
Growing Medium
Crushed bricks or similar materials increase the surface area on which anaerobic bacteria can
cultivate, creating a higher density of bacteria, in turn accelarating the anaerobic digestion
process (Stephenson, 1987). It is not essential that the growing medium be crushed bricks to
achieve this result, rather, any material that would sink to the bottom of the digester to create
a larger surface area would suffice. Crushed bricks were specified in this case as they are a low
cost material that is widely available.
Outlets
Outlets were to be included on the digester to release feedstock once it had undergone the diges-
tion process. These outlets were to be large enough to allow both solid and liquid components
to exit the system.
Inflatable Membrane
An inflatable membrane was to be used for gas collection. This is a simple and versatile collection
system that can easily be incorporated into any design. It is also portable, greatly simplifying
the process of extracting gas samples for analysis. Considering practical applications of the
gas, portability is desirable as the gas will likely be more useful at a location separate to the
biodigester toilet. A disadvantage of inflatable membranes is that they are easily damaged and
require additional protection to reduce the risk of leaks.
Biodigester Type
As discussed in Section 3.4.3, plug flow digesters are inferior to fixed dome and floating drum
models in terms of biogas production and thus were immediately eliminated from design consid-
eration. Poor insulating properties result in a requirement of external heat addition to maintain
conditions favourable for anaerobic digestion. The fragile nature of a polyethylene bag system
CHAPTER 5. DESIGN FORMATION 40
also contributed to this decision, as the design is intended for rural, developing communities,
where free roaming livestock is common, and the risk of puncture is likely. These factors indi-
cate that the plug flow biodigester model is not suitable at achieving the project aim as poor
biogas production will not reduce dependence on solid fuels. Thus, fixed dome or floating drum
digesters are the remaining suitable types to be considered.
5.5 Conceptual Designs
After a set of design criteria and essential design features were identified (Sections 5.3 and 5.4), four
concept designs were created. These concepts varied in regards to the location of waste input and
toilet, the number of digestion vessels, and the implementation of either fixed or floating drum sub-
systems.
5.5.1 Concept Design 1
Figure 5.1: Concept Design 1
The first concept design (Figure 5.1) utilises a single tank to digest the waste in a fixed dome. When
compared to a dual tank system, a single tank reduces both cost and construction complexity as fewer
parts and less space is required. It features an inlet pipe that starts at the top of the tank and continues
to the base. This bottom feeding system allows the new waste to flow directly to the anaerobes on
CHAPTER 5. DESIGN FORMATION 41
the growing medium at the base of the tank, while the older semi-digested waste is pushed upwards.
Bringing the fresh waste in contact with the bacteria present on the growing medium allows for more
effective gas production (Stephenson, 1987). Additionally the bottom feeding pipe, if always below
the liquid level, will prevent gas flowing back up the inlet. The additional length of pipe increases the
risk of blockages.
The toilet is located at the base of the digestion tank, which is desirable in terms of accessibility,
but will require a pumping mechanism to transport the feedstock to the inlet pipe at the top of the
digestion tank. This complicates construction, maintenance, and adds to costs. The evaluation of this
design in regards to the design criteria is shown in Table 5.3.
CHAPTER 5. DESIGN FORMATION 42
Table 5.3: Concept Design 1 design criteria analysis
Criteria Concept Design 1
Function (-1)
• Single tank does not allow settling of solid and liquid components for
water recycling (-2).
• Biogas output from a fixed dome is of variable pressure, causing difficul-
ties with combustion (-2).
• Bottom feeding inlet pipe reduces gas back-flow issues (+2).
• Bottom feeding inlet accelerates gas production (+1).
Cost (0)
• Single tank reduces number of parts required and costs (+1).
• Requires pumping mechanism (-1).
Constructability
(+1)
• Single tank requires fewer parts reducing construction time (+2).
• Pump complicates construction (-1).
Acceptability (0)
• Pump requires maintenance and power (-2).
• Single tank requires less space (+1).
• Toilet at ground level is desirable (+1).
Reliability (+1)
• Fewer tank connections reduce potential leaks (+1).
Portability (-2)
• Single large tank more difficult to transport than two smaller tanks of
the same combined size (-2).
Total (-1)
CHAPTER 5. DESIGN FORMATION 43
5.5.2 Concept Design 2
Figure 5.2: Concept Design 2
The second concept design (Figure 5.2) is a two tank system. The use of two tanks increases the
portability of the design, as it is easier to transport two small tanks as opposed to a single large tank
of the same volume. The second tank also allows for the settling of solid and liquid components of
the feedstock to subsequently be treated by a water filtration system. The filtered water can then be
recycled for use in flushing the toilet or safely released into the environment.
The toilet is located at ground level with the inlet pipe entering at the base of the digestion tank. This
method has the advantages of directly feeding the waste into the anaerobes on the growing medium,
and preventing gas flowing back out of the toilet. It also minimises the increased risk of blockages that
existed in Design Concept 1 by reducing the length of inlet pipe. As the feedstock inside the digestion
tank will be above the water level of the toilet, feedstock backflow issues will need to be overcome.
The process involved with this second conceptual design is as follows:
1. The inlet pipe takes the feedstock to the bottom of the first tank.
2. Gas collects at the top of this tank and flows into the collection system.
3. After half the total retention time of the system has passed, the valve connecting the two systems
is opened, and the effluent is allowed to flow into the second tank.
4. The waste is stored in the second tank for the same duration that it is stored in the first,
completing the total retention time of the system. The second tank is also used as a settling
tank for the liquid to then be collected in the filtration system.
5. While the original effluent is being treated in the second tank, the first tank is refilled through
CHAPTER 5. DESIGN FORMATION 44
daily use. The first tank will fill once the second tank digestion has completed the designed
retention time.
6. Once the retention time is reached, the sedimentation tank is emptied. The connecting valve
between the two tanks is then opened to allow waste to flow into the now empty second tank
and the cycle continues.
Table 5.4: Concept Design 2 design criteria analysis
Criteria Concept Design 2
Function (+1)
• Second tank allows for implementation of settling and filtration system
(+2).
• Biogas output from a fixed dome is of variable pressure, causing difficul-
ties with combustion (-1).
• Filtration system allows water to be recycled (+2).
• Inlet pipe may cause backflow issues (-2).
Cost (-3)
• Two tanks require additional fittings (-1).
• Filtration system is expensive (-2).
Constructability
(-2)
• Filtration system is diffucult to construct (-1).
• Additional connections for dual tanks increase construction time (-1).
Acceptability
(+1)
• Filter requires frequent maintenance (-2).
• Reduced water input (+2).
• Toilet at ground level is desirable for user (+1).
Reliability (-1)
• Extra connections increases likelihood of gas and liquid leaks (-1).
Portability (+2)
• Two small tanks more portable than one large tank (+2).
Total (-2)
CHAPTER 5. DESIGN FORMATION 45
5.5.3 Concept Design 3
Figure 5.3: Concept Design 3
The third conceptual design is a dual tank system, however it differs from Concept Design 2 as the
second tank is a floating drum design used as a secondary digestion tank and gas storage vessel. The
major advantage of the floating drum tank over the fixed drum is constant gas pressure which is ben-
eficial for gas burning applications. The floating drum increases the complexity of both construction
and maintenance, as the drum is required to rise and fall freely with varying gas production. Gas
backflow issues can also arise with a floating drum collection system as identified in Section 3.5.2 due
to the weight of the floating drum, which has the potential to push the gas back into the first tank.
The secondary tank in this design still allows for the settling and potential recycling of the liquid
component of the feedstock.
In this design, the toilet and inlet are located at the top of the first digestion tank. This may introduce
some acceptability issues as users would prefer the toilet be at ground level, however it does provide
the major advantage of gravity feeding waste into the system which removes the need for any pumping
mechanism. A support framework would be required to support both the user and toilet on top of the
digestion tank, adding to costs. The process involved with this conceptual design is as follows:
1. Feedstock enters the first tank through the inlet tube.
2. Biogas is generated and collected in the first tank.
3. When the feedstock reaches a certain height in the tank, it is released into the second tank.
4. Gas is passed onto the second tank through a pipe connecting the tops of both the tanks.
CHAPTER 5. DESIGN FORMATION 46
5. The second tank is a floating drum design that accepts feedstock through the outlet pipe of the
first tank.
6. Biogas is generated in the same method as the first tank. As the level of gas in the tank increases,
the floating drum rises until it reaches the maximum level.
7. At this point, the gas in both the tanks is assumed to be filled to capacity. A gas pipe with a
valve is present at the top of the second tank to release the gas for practical use.
8. The feedstock in the second tank can be released through an outlet pipe, and the effluent can
be used as a fertiliser following the same concept as a composter.
CHAPTER 5. DESIGN FORMATION 47
Table 5.5: Concept Design 3 design criteria analysis
Criteria Concept Design 3
Function (+5)
• Second tank allows for potential implementation of settling and filtration
system (+2).
• Floating drum provides constant gas pressure for constant gas combus-
tion (+1).
• Feedstock can be gravity fed into system (+2).
Cost (-3)
• Dual tanks require additional connecting parts (-1).
• Floating drum is more expensive than fixed dome (-1).
• Infrastructure required for mounting toilet (-1).
Constructability
(-2)
• Construction is complicated by floating drum (-1).
• Requires additional infrastructure to support toilet (-1).
Acceptability (-1)
• Complicated maintenance of floating drum (-1).
• Toilet is difficult to access at the top of the digestion tank (-1).
• Constant gas pressure simplifies gas combustion (+1).
Reliability (-3)
• Extra connections increase likelihood of leaks (-1).
• Greater risk of failure in floating drum compared to fixed dome (-1).
• Floating drum introduces potential gas backflow issues (-1).
Portability (+2)
• Two small tanks easier to move than one large tank (+2).
Total (-2)
CHAPTER 5. DESIGN FORMATION 48
5.5.4 Concept Design 4
Figure 5.4: Concept Design 4
Concept Design 4 is a dual tank, fixed dome system, with the addition of a stirrer to the first digestion
tank. The stirrer breaks up the layer of scum that forms on the surface of the feedstock inside the
tank. This scum layer forms a physical barrier between the gas production at the base of the tank and
the gas collection at the top of the tank. By rotating the stirring arm this layer is disturbed, enabling
the free flow of gas within the system. Construction and installation of the stirrer would require some
technical skill and knowledge, and also increase costs.
The toilet on this design is located at ground level with an inlet pipe entering at the top of the first
digestion tank. This inlet method requires a pumping mechanism, but simplifies construction as no
pipe needs to be installed inside the digestion tank. As the inlet pipe does not extend below the liquid
level, gas flowing back through the toilet is a possible hazard associated with this design.
CHAPTER 5. DESIGN FORMATION 49
Table 5.6: Concept Design 4 design criteria analysis
Criteria Concept Design 4
Function (+2)
• Second tank allows for settling and potential implementation of filtration
system (+2).
• Biogas output from a fixed dome is of variable pressure, causing difficul-
ties with combustion (-1).
• Inlet pipe may cause gas backflow issues (-1).
• Stirrer increases biogas yield (+2).
Cost (-5)
• Two tanks require additional fittings (-1).
• Stirrer is expensive (-2).
• Pumping mechanism required (-2).
Constructability
(-2)
• Stirrer is diffucult to construct and install (-2).
• Additional connections for dual tanks increase construction time (-1).
• Simplified construction of inlet pipe (+1).
Acceptability
(+1)
• Increased biogas yield for practical applications (+2).
• Toilet at ground level is desirable for user (+1).
• Pump requires maintenance and power (-2).
Reliability (-1)
• Extra connections increases likelihood of gas and liquid leaks (-1).
Portability (+2)
• Two small tanks more transportable than one large tank (+2).
Total (-3)
5.5.5 Concept Selection
A summary of the evaluation of the concept designs can be found in the evaluation matrix (Table 5.7).
Considering this table alone indicates that Concept Design 1 is the most appropriate although still
a poor performer in functionality, portability, and acceptability. Furthermore, there was no standout
candidate that addressed all criteria.
CHAPTER 5. DESIGN FORMATION 50
Table 5.7: Evaluation matrix
Criteria CD* 1 CD 2 CD 3 CD 4
Function -1 +1 +5 +2
Cost 0 -3 -3 -5
Constructability +1 -2 -2 -2
Acceptability 0 +1 -1 +1
Reliability +1 -1 -3 -1
Portability -2 +2 +2 +2
Total -1 -2 -2 -3
*CD: Concept Design
As no individual concept design addressed all criteria effectively, the design features that varied be-
tween concept designs were analysed independently to develop an optimal system configuration. A
summary of the positive and negative design aspects can be found in Table 5.8. This table was used
to determine the optimal aspects of each concept design, and develop a hybrid final design based on
these positive features.
CHAPTER 5. DESIGN FORMATION 51
Table 5.8: Design feature summary table
Design Feature Options Positive Negative Score
Waste input
Top
Less blockage (+2)
Less parts (+1)
Simple construction (+1)
Gas backflow (-2) +2
Bottom
Anaerobe contact (+1)
No gas backflow (+2)
Blockages (-2) +1
Toilet location
Top of tank Gravity fed waste (+2)
Accessibility (-1)
Infrastructure (-2)
-1
Ground level Easily accessible (+1)
Pump (-2)
Power input (-2)
-3
Digestion tanks
One
Simpler construction (+1)
Reduced cost (+1)
Less space (+1)
Less sources of leaks (+1)
Less portable (-2)
No settling tank (-2)
0
Two
Increased portability (+2)
Settling tank (+2)
Construction (-1)
Increased cost (-1)
Leak issues (-1)
+1
Biodigester model
Fixed dome
Simple construction (+1)
Less maintenance (+1)
Variable gas pressure (-2) 0
Floating drum Constant gas pressure (+1)
Gas backflow issues (-1)
Construction (-1)
Maintenance (-1)
-2
Stirrer - Increased biogas yield (+2)
Expensive (-2)
Construction (-2)
-2
Water filter - Reduces water use (+2)
Expensive (-2)
Construction (-1)
Maintenance (-2)
-3
Based on Table 5.8 the following decisions were made:
• The toilet will be located at the top of the digestion tank to eliminate the need for a pumping
mechanism.
• Waste will be fed to the bottom of the tank from an inlet at the top of the tank to ensure fresh
feedstock is in direct contact with the anaerobes, and to eliminate gas backflow issues.
CHAPTER 5. DESIGN FORMATION 52
• Two tanks mounted on pallets will be used to increase the portability of the system, as well as
providing the option for water recycling through the use of a settling tank.
• Fixed dome digestion tanks will be used to simplify construction and maintenance, and eliminate
gas backflow issues associated with fixed dome digesters.
• A water filtration system and stirrer will not be included in the final design due to the increased
difficulty in construction, costs, and maintenance incurred if included.
These decisions were used to produce the Final Concept Design (Figure 5.5).
Figure 5.5: Final concept design
The final concept design was subsequently evaluated using the same method performed on the original
concept designs (Table 5.9). This design received a higher overall rating compared to the original
concept designs and formed the basic layout of the final design.
CHAPTER 5. DESIGN FORMATION 53
Table 5.9: Final concept design design criteria analysis
Criteria Final Concept Design
Function (+5)
• Second tank allows for settling and potential implementation of filtration
system (+2).
• Biogas output from a fixed dome is of variable pressure, causing difficul-
ties with combustion (-2).
• Bottom feeding inlet pipe reduces gas back-flow issues (+2).
• Bottom feeding inlet accelerates gas production (+1).
• Feedstock can be gravity fed into system (+2).
Cost (-2)
• Two tanks require additional fittings (-1).
• Infrastructure required for toilet (-1).
Constructability
(-2)
• Additional connections for dual tanks increase construction time (-1).
• Requires additional infrastructure to support toilet (-1).
Acceptability (-1)
• Toilet is difficult to access at the top of the digestion tank (-1).
Reliability (-1)
• Extra connections increases likelihood of gas and liquid leaks (-1).
Portability (+2)
• Two small tanks more transportable than one large tank (+2).
Total (+1)
Chapter 6
Final Design
After the preliminary layout was completed in the design formation phase (discussed in Chapter 5),
available resources for the final design were considered. Necessary components were identified based
on the resources and budget available including appropriately sized tanks, pipe fittings, and a gas
collection system. Based on the tank sizes available for the digester, the number of people able to
use the system was determined. An analysis was performed to identify the correct materials to use,
in order to prevent corrosion and degradation from the feedstock and biogas. Analysis on available
piping material was performed according to AS/NZS 4130 and AS/NZS 4645 to calculate the maximum
allowable operating pressure (MAOP) of the gas network, and a safe operating procedure (SOP) was
developed to ensure the system would never exceed this pressure. A stirring mechanism was also
designed and constructed using basic metal fabrication techniques, and made out of easily sourced
materials.
6.1 Final System Sizing
After receiving sponsorship from Barrow and Bench Mitre 10 Malvern two Maxiplas 1000L round
polyethylene rainwater tanks became available at a significantly reduced cost. In the interest of begin-
ning the construction and testing phase of the project as soon as possible, these tanks were purchased
as soon as they became available. With these fundamental components sourced, specifications were
calculated in regards to the end user.
6.2 Number of End Users
After the tanks were identified, the number of people able to use the system was determined in order
to verify that the design could be considered a WHO Shared Sanitation Facility, as outlined in Section
54
CHAPTER 6. FINAL DESIGN 55
4.2. Variables considered include:
• The number of people who will use the biodigester daily
• The average amount of waste produced daily by humans
• The ideal retention time for the waste in order to generate the most biogas
• The number of tanks available
• The volume of the tanks available
It was found that that an average person produces approximately 500 kgs of urine and 50 kgs of faeces
every year (Heinonen-Tanski and van Wijk-Sijbesma, 2004). From this yearly output, the weight of
urine and faeces produced by humans in a day was calculated. Note, as a biodigester toilet can be
implemented in a number of different regions, these numbers are subject to change depending on local
diet and conditions.
Average Fecal Matter Produced Per Day =
50 kg
365.25day
= 0.137
kg
day
(6.2.1)
Average Urine Produced Per Day =
500kg
365.25day
= 1.37
kg
day
(6.2.2)
Human urine has a specific gravity of between 1.002 and 1.035 (Ferreira, 2005); using the average of
these values, the density of the human urine could be calculated.
ρurine = Specific Gravity × 1000
kg
m3 (6.2.3)
= 1.02 × 1000
kg
m3
= 1020
kg
m3
The total daily liquid input to the system is the sum of flushing liquid from the toilet and human
urine. It was assumed that each person delivers their total daily waste in a single use of the toilet. A
common half-flush toilet uses approximately three litres of water per flush (Department of Industry,
2014). For the following calculations, the number of daily users of the toilet will be represented as
U.
Total Liquid Waste = (3L × U) + U × 1.37kg ×
1m3
1020kg
×
1000L
m3 (6.2.4)
= 4.34 × U (Litres)
CHAPTER 6. FINAL DESIGN 56
The average density of human faeces is approximately 1000 kg/m3 (Ferreira, 2005). Therefore, the
total daily volumetric input to the system could be calculated from the sum of the solid and liquid
components in the feedstock.
Total Daily Input = (4.34 × U) + 0.137kg × U ×
1m3
1000kg
×
1000L
m3
(6.2.5)
= 4.48 × U (Litres)
It is now possible to determine the volume of the digestion tanks required to achieve the minimum
retention time of 30 days for steady state gas production (Suryawanshi et al., 2013). This volume is
determined as a function of the number of users of the toilet.
Volume of Digestion Tanks = 30days × Total Daily Input (Litres) (6.2.6)
= 30 × (4.48 × U) Litres
= (134.4 × U) Litres
As discussed in Section 6.1, a total system volume of 2000L was acquired (two 1000L tanks). Using
Equation 6.2.6, the number of people able to use the system whilst achieving the minimum retention
time of 30 days could be calculated.
2000 = 134.4 × U (6.2.7)
=⇒ U =
2000
134.4
=⇒ U = 14.88
Therefore, 14 people are able to use the system. Current census data from India and China indicates
that the average number of permanent residents per household in rural areas is 5.4 and 3.88, respec-
tively (National Bureau of Statistics of China, 2013; The Registrar General & Census Commissioner,
2011). As a group of 14 people can be considered larger than an average household, the system can
be defined as a WHO Shared Sanitation Facility (WHO and UNICEF, 2014b).
6.3 Materials Selection
Based on the CoP for biogas production and use in piggeries produced for Australian Pork by Davidson
et al. (2013), tank structures can be constructed from all plastics, most stainless steels, clay, and
CHAPTER 6. FINAL DESIGN 57
concrete. This information is presented in Table 5.2. The tanks offered by Barrow and Bench Mitre
10 Malvern were polyethylene. Using polyethylene tanks ensured that any modifications required
would be easier to perform than on a stainless steel tank. Stainless steel tanks are also significantly
more expensive than equivalent polyethylene water tanks. For any pipes carrying feedstock, UV
stabilised polyvinyl chloride (PVC) was chosen, again based on the information presented in Table 5.2.
The added advantages of using PVC piping are the standardisation of fitting sizes, low cost, and wide
availability; thus addressing the design criteria of ease of assembly and maintenance outlined in Section
5.3. For all pipes conveying biogas, polyethylene was chosen as the appropriate material, based on the
information presented in Table 5.2. The fittings chosen to connect the biogas pipeline were constructed
from a UV stabilised polypropylene copolymer. A UV resistant PVC biogas collection membrane,
purchased from Shenzhen Puxin Technology Co. Ltd, was chosen to capture any biogas produced.
Shenzhen Puxin is a Chinese manufacturer and trading company, specialising in medium and large
sized biogas systems and accessories. Based on Table 5.2, UV resistant PVC was a suitable material
for biogas storage. Neoprene rubber was used to create any seals required, due to its satisfactory
resistance to CH4 and CO2 (MykinInc, 2014).
6.4 Waste Collection System
After the two 1000L polyethylene tanks were purchased, final system dimensions and components
were determined. During the preliminary design stage, final sizing of the system was impossible as
no decision had been made on the exact tanks that were going to be used. Components of the waste
collection system that had to be finalised included the waste inlet, tank lids, connection between the
two tanks, and effluent outlets. The decisions pertaining to these components were made based on
the concept design selection in Section 5.5.5. The final design process was simply an extension of the
work undertaken in the design formation phase, where the two-tank system mounted on pallets was
selected. Final drawings of the system and dimensions are presented in Appendix B.
6.4.1 Inlet Design
To prevent gas flowing out of the first tank through the feedstock inlet, the inlet pipe was extended
1200 mm downwards into the first tank, so that its opening was always below the liquid level. This
liquid seal prevented gas flowing up through the inlet pipe, and back out of the system; important
when considering the end user of the biodigester toilet. When implemented, flammable gas flowing
back through the inlet and out of the toilet would create a serious safety issue. Figure 6.1 shows the
inlet pipe assembly. A drawing of the inlet assembly installed in the first tank can be seen in Appendix
B.
CHAPTER 6. FINAL DESIGN 58
Figure 6.1: Drawing of inlet assembly (dimensions in mm)
6.4.2 Toilet Choice and Location
100 mm diameter sewerage grade PVC pipe was added to the top of the first tank, and was part
of the overall inlet assembly. This pipe enabled the connection of a toilet bowl to the top of the
first tank. By having the toilet mounted above the system, water could simply be poured into the
bowl to flush waste into the first tank. Using gravity to drop the waste into the tank, removed the
need for a pumping mechanism. The location of the toilet bowl then allowed for two potential design
modifications. Either a frame with stairs could be built to allow access to the toilet, or the tanks
could be buried in holes within the ground, thus placing the toilet at ground level. Burying the tanks
would provide added insulation to the system, making implementation in colder climates possible, but
would hinder the portability.
6.4.3 Lid Design
At the time of purchase, both tanks contained large holes at the top. Lids were designed and con-
structed to make the system as airtight as possible. In similar systems, the tanks would need to be
checked for holes and leaks prior to operation to ensure the digestion process occurs in the absence
CHAPTER 6. FINAL DESIGN 59
of oxygen. The first tank contained a 365 mm diameter hole, and the second tank contained a 180
mm diameter hole. Two sections of 6 mm thick neoprene rubber were compressed over the holes
using 7 mm exterior grade plywood, stainless steel screws, and exterior grade silicon sealant. On the
second tank, an off-cut of polyethylene was used as an extra layer of compression. Holes were cut
in the rubber, plywood, and plastic, and 25 mm diameter tank flanges and compression fittings were
attached to provide connection to the gas pipe network. The assembled lid for the second tank in the
system can be seen in Figure 6.2. The attached gas fittings for the first and second tanks are shown
in Figures 6.3 and 6.4, respectively. Detailed drawings for the lids and gas connections can be found
in Appendix B.
Figure 6.2: Final attached lid for second tank in the system
CHAPTER 6. FINAL DESIGN 60
Figure 6.3: First tank attached gas connection
Figure 6.4: Gas connection valve on second tank
6.4.4 Increasing Digestion Surface Area
To provide an increased surface area for the anaerobic digestion process to occur, plastic bioballs,
similar to those used in aquariums, were placed in the bottom of the first tank. These bioballs acted
CHAPTER 6. FINAL DESIGN 61
as a growing medium for the anaerobic bacteria. Although the concept designs outlined in Chapter 5
all utilised crushed bricks at the bottom of the digester to increase the surface area, bioballs were used
in the final design to prevent blockage of the outlet taps. The two tanks acquired from Barrow and
Bench Mitre 10 Malvern, contained 25 mm diameter threaded holes just above their bases. Because
the hole was already threaded, taps were simply installed into the tanks, as discussed in Section
6.4.6. Because of this outlet diameter, crushed bricks had the potential to block the hole. However,
crushed bricks could still be used if these holes were larger; an important consideration to make when
implementing this system in a developing community without access to aquarium supplies. Figure 6.5
is an example of a typical bioball. The increased surface area provided bacteria a location to grow
and produce a ‘biofilm’. Feeding the feedstock to the bottom of the tank brings it into direct contact
with this biofilm, making the anaerobic digestion process more effective (Stephenson, 1987).
Figure 6.5: A typical bioball shape (Foster and Smith, 2014)
6.4.5 Tank Connection Design
As discussed in Section 5.5.5, it was decided that the two tanks would be connected to allow feed-
stock transfer, increase portability, and provide a means of solids settling for potential effluent post-
treatment. Locating the transfer point 860 mm above the base of the tanks was done for two main
reasons; to ensure mostly liquid was transferred to the second tank to allow for solid settling, and
to prevent the bioballs at the bottom of the first tank from entering the transfer pipe. Reducing
the amount of solid feedstock transferred to the second tank would reduce the time required for sus-
pended solids to settle. Clarification of the effluent via settling in the second tank was a precursor
to post-treatment of the effluent. Although post-treatment of the effluent was outside the scope of
this project, it was still important to design the system so that this could be implemented in future
work.
CHAPTER 6. FINAL DESIGN 62
To prevent blockage by the feedstock, the diameter of the transfer pipe and fittings was 50 mm. PVC
suction hose was used as the transfer pipe, due to its flexibility. When connecting two small tanks
together, there is risk of one being knocked or moved out of place. If a rigid connection is used
between two tanks and any movement occurs, there is significant chance of the transfer pipe cracking,
and effluent spilling from the system. Flexible suction hose allows for some movement and will not
crack. After inspection of the hose, it was deemed that a 500 mm length provided enough flexibility
to allow for some movement of the tanks.
Suitable sized holes were created in the two tank walls using a hole saw and drill, and 50 mm diameter
PE tank flanges were attached, with two layers of neoprene rubber on either side of the tank wall to
provide an extra level of protection from leaks. The flanges were tightened from both sides of the tank
wall, compressing the neoprene rubber and forming a tight seal. The attached flange can be seen in
Figure 6.6.
Figure 6.6: Attached tank flange with neoprene seal
A 50 mm internal diameter ball valve was attached to each tank flange. Having a valve on each tank
allowed both tanks to be isolated, providing the ability to remove the connection between the tanks
and move them individually. Plumbing thread tape was used to create a leak-proof seal at the mating
point of the tank flange and the ball valve.
50 mm internal diameter PE barbs were then attached to the ball valves. Again, thread tape was
used to create a leak-proof seal at the mating points of the ball valves and the barbs. These barbs
provided an attachment point for the 50 mm diameter suction hose. The suction hose was forced onto
the barbs with an interference fit, and stainless steel hose clamps were used to secure the hose to the
barbs. Figure 6.7 shows the connection without the suction hose attached. The connection with the
suction hose attached can be seen in Figure 6.8, and the overall tank connection system can be seen in
Figure 6.9. Subsequent testing outlined in Section 9.2 with clean water confirmed that this connection
had no leaks.
CHAPTER 6. FINAL DESIGN 63
Figure 6.7: Attached ball valve and barb
Figure 6.8: Attached ball valve, barb, and suction hose
Figure 6.9: Overall connection between two tanks
6.4.6 Outlet Design
Both digestion tanks came with a 25 mm female threaded fitting, approximately 100 mm above the
base. A 25 mm tap was connected to each of these fittings, using a 25 mm diameter brass nipple,
CHAPTER 6. FINAL DESIGN 64
and a section of brass threaded rod to extend the tap over the edge of the pallet. Thread tape and
silicon was used to seal the mating point. These taps allowed for the drainage of effluent from both
tanks. Hose fittings were attached to the taps so that the effluent stream could be directed. Figure
6.10 shows the outlet fitting layout.
Figure 6.10: Outlet tap attached to existing 25 mm diameter threaded hole
6.5 Gas Collection System
A simple layout was devised for the gas piping and connection network to ensure it could be maintained
and modified with ease. 20 mm diameter polyethylene pipe was used between the two compression
fittings situated at the tops of each tank. These fittings and their attachment methods were explained
in Section 6.4.3. Gas rated thread tape was used to create a seal at all mating points between the
fittings. Reducing nipples were used to make the 20 mm diameter piping compatible with the 25 mm
fittings.
The gas collection membrane had a 20 mm diameter threaded fitting, that allowed a ball valve and
compression fitting to be attached directly. This connection is shown in Figure 6.11. A length of
pipe was installed between the second tank and the gas collection membrane. The valve connected to
the collection membrane allowed it to be isolated from the system, enabling gas samples to be taken
with ease. Once the valve was shut, the compression fitting could simply be unscrewed, and the pipe
removed from the membrane.
CHAPTER 6. FINAL DESIGN 65
Figure 6.11: Connection between gas collection membrane and pipe network
6.5.1 Pipe Network Pressure Analysis
Calculations were performed according to Australian standards to determine the Maximum Allowable
Operating Pressure (MAOP) of available polyethylene piping material. 20 mm nominal outer diameter
polyethylene pipe was available at Barrow and Bench Mitre 10 Malvern. The dimensions and properties
of this pipe are outlined in Table 6.1. Note, the minimum wall thickness and minimum mean outside
diameter were determined in accordance with tables provided in AS/NZS 4130 (see Appendix C). The
value of maximum required strength (MRS) for PE100 polyethylene pipe was determined from AS
4645.3. These values were required for calculating the MOAP for this particular polyethylene pipe,
using the method outlined in AS/NZS 4645.3.
Table 6.1: Properties of PE100 pipe
Property / Dimension Value
Nominal outer diameter 2 0mm
Long term rupture stress rating PE100
Pipe pressure rating PN12.5
Standard dimension ratio (SDR) 13.6
Maximum required strength (MRS) 10 MPa
Minimum wall thickness (Tmin) 1.6 mm
Minimum mean outside diameter (Dm min) 20.0 mm
Using Table B1 in AS/NZS 4645.3, the design factor (C) was determined for the pipe. This table is
shown in Appendix D. Several operational conditions for the system had to be assumed to correctly
CHAPTER 6. FINAL DESIGN 66
use the table. Based on the information presented in Table 3.1, it was assumed that biogas had a
similar composition to natural gas (majority methane) for the purpose of this analysis. Also, based
on average maximum temperatures for Adelaide throughout September and October (19.1◦C and
21.9◦C respectively) (Bureau of Meteorology, 2014), it was predicted that the maximum operating
temperature within the greenhouse would never exceed 40◦C. Finally, as the prototype was to be
located on the Urrbrae Agricultural High School campus, it was assumed to be operating in a “high
density community use” area. These assumptions allowed the determination of index values f0, f1, f2
and f3 to be used to calculate C. Equation 6.5.1 was used to calculate C, and was sourced from Table
B1 in AS/NZS 4645.3 (Appendix D).
C = Design Factor (6.5.1)
= f0 × f1 × f2 × f3
= 2.0 × 1.3 × 1.1 × 1.2
= 3.43
After the design factor was calculated, the MAOP was calculated according to the equation provided
by AS/NZS 4645.3 for polyethylene mains and service pipes (Equation 6.5.2).
MAOP =
2 × MRS × Tmin
C × (Dm min − Tmin)
(6.5.2)
=
2 × 10 × 1.6
3.43 × (20.0 − 1.6)
= 0.507MPa
A MAOP of 0.507MPa (approximately five times greater than atmospheric pressure) was deemed to be
a suitable operating pressure for the gas network. The system would be providing biogas for cooking,
heating and lighting daily, meaning that the pressure would constantly be released. After determining
the MAOP of the pipeline was suitable, the only other points of failure within the gas network then
became the fittings between the gas pipes, and the biogas collection membrane.
6.5.2 Pipe Fitting Pressure Analysis
After calculating the MAOP of the pipeline, it was necessary to determine whether fittings available
at Barrow and Bench Mitre 10 Malvern for the biogas pipe network could withstand the pressure
developed within the system. The available fittings were Poly16 Plus Compression Fittings, manu-
factured by Alprene Plastic Products Pty Ltd. Technical data available on the Alprene website listed
CHAPTER 6. FINAL DESIGN 67
the fitting pressure rating as PN16 (Alprene, 2014); meaning that the fittings had a nominal working
pressure of 1.6 MPa. As this nominal working pressure is greater than the MAOP of the pipe network,
these fittings were deemed appropriate for connecting the 20 mm PE pipes.
6.5.3 Biogas Collection Membrane Pressure Analysis
The biogas collection membrane purchased from Shenzhen Puxin Technology Co. Ltd was a 1m3 PVC
membrane, with a single 20 mm diameter threaded fitting. Figure 6.12 shows the actual membrane
used in the prototype.
Figure 6.12: 1m3 biogas collection membrane used in the final design
No information was available on the MAOP of the membrane. From a safety perspective, this is a
signficiant issue; hence it was decided to investigate the worst case scenario for the MAOP of the
membrane to determine a SOP to prevent it bursting. The worst case scenario for the MAOP of
the membrane was determined to be the pressure at which it contains 1m3 of biogas (i.e. its full
volume). The safe operating procedure developed to prevent this MAOP occurring is outlined in
Section 9.8.
6.5.4 Insulation
Insulation was added to the system in order to increase temperature of the system and improve thermal
inertia. While situated in the Urrbrae greenhouse, heat was retained by the surrounding atmosphere
which negated the requirement for additional insulation. However, after the system was moved out-
doors on 30 September, insulation became necessary for the anaerobic digestion process to retain
heat overnight. Cheap, readily available materials were considered for insulation, such as newspaper
or polystyrene layering, and bales of hay which could be stacked around the system. Ultimately, a
suitable scrap material became available and was used instead to save costs, and demonstrate that
CHAPTER 6. FINAL DESIGN 68
discarded matter could be practically re-purposed and easily integrated into the system. The scrap
material consisted of two pieces of reflective silver plastic separated by a thick layer of bubble wrap.
A large piece of the material was wrapped around the first digestion tank, and is shown in Figure
6.13. The tank was then wrapped in a layer of black plastic, originally designed for use as a bin liner,
as visible in Figure 6.14. The layer of black plastic allowed the first tank to absorb more heat during
the day, and was an inexpensive and abundant resource. Alternatively, the system could be painted
black or covered by an equivalent black surface.
Figure 6.13: Scrap material used for insulation layer
Figure 6.14: Black plastic layer for heat absorption
6.5.5 Stirrer
A final feature designed and built for the system was a stirring mechanism for the first digestion tank.
The primary function of this device is to agitate any dry scum on the top surface of the effluent,
which has the potential to disrupt the anaerobic digestion process (Rohjy et al., 2013). It also allows
CHAPTER 6. FINAL DESIGN 69
the mixing off different layers, ensuring all effluent is digested equally (Rohjy et al., 2013). There are
associated disadvantages with the addition of this device such as added cost, maintenance, complexity,
and potential gas leakage. For this reason, the inclusion of a stirrer is highly dependent on whether
the technical skills required to build it are available.
Due to delays in construction, the stirrer was not included in the final design for testing. Sufficient
testing would not have been possible if the schedule had been postponed to install the stirrer. However,
the stirrer was still built to investigate the feasibility of constructing an inexpensive, yet effective
component that could increase the biogas yield.
This design was created in accordance with the design criteria outlined in Chapter 5:
Reliability
The design must be gas proof so as not to leak stored biogas. The design should also be simple,
containing minimal moving parts so as to increase the lifetime of the system.
Ease of use
The stirrer should not require strong exertion from the user.
Constructibility and cost
The complexity and number of parts required must be minimised.
Function
The stirrer must effectively mix effluent and break up scum.
The final stirrer design is shown in Figure 6.15, with detailed drawings included in Appendix E. The
critical component of the stirrer was the bearing, which was required to support the weight of the shaft
and paddles, and allow smooth operation as detailed in the criteria. The final bearing system utilised
two plain bearings held in an aluminium housing, which were situated above a neoprene seal. The
reason for this selection over traditional ball or roller bearings was due to its simplicity, which reduced
the cost, and increased the reliability of the stirrer. The plain bearings selected (SKF sintered bronze
C 4048, and F4048-1) were specifically designed for long life applications. The bearings were held in
the housing with a H11 fit, while the shaft was press fit to the bearings with an M6 fit. The neoprene
seal had a 1 mm interference with the shaft. Steel water pipe was used for the shaft, with a length of
1.8 m to allow for mixing at the bottom of the tank. For the mixing paddles, aluminium sheet was
connected to the shaft using L brackets. The width of each paddle was 300 mm, which was a dimension
restricted by the top tank hole diameter of 365 mm. A height of 300 mm was also selected for the
bottom two paddles to ensure the paddle area was relatively small, and did not provide excessive
stirring resistance. A longer paddle was selected for the top paddle to account for variable effluent
levels inside the tank ensuring that surface could always be disrupted. Finally, the layout was chosen
CHAPTER 6. FINAL DESIGN 70
to limit the uneven distribution of weight of the paddles, and resultant forces on the bearing.
Figure 6.15: Final Stirrer Design
Chapter 7
Risk Assessment
This section outlines the risks that can potentially affect the success of the project, along with the
health and safety of the project stakeholders. Risks were identified and assigned a risk level that was
evaluated using likelihood and consequence scales (Section 7.1 & 7.2). If the risk was identified as
a medium or higher level, it was deemed unacceptable. Measures were implemented to prevent or
reduce the effect of unacceptable risks, and are outlined in the risk register in Appendix F.
7.1 Likelihood Scale
A scale with five categories ranging from Rare to Almost Certain was used to rank the likelihood
of occurrence for the risks associated with this project. Alphabetical labels from A to E were also
assigned to these categories to aid in the risk register process. The exact likelihood of each label is
outlined below.
Almost Certain (A): Highly likely to happen, possibly frequently
Likely (B): Will probably happen, but not a persistent issue
Possible (C): Might happen occasionally
Unlikely (D): Not expected to happen, but is a possibility
Rare (E): Very unlikely this will ever happen
(The Univeristy of Adelaide, 2012)
71
CHAPTER 7. RISK ASSESSMENT 72
7.2 Consequence Scale
The consequence scale was be separated into five levels; Extreme (1), Major (2), Moderate (3), Minor
(2), and Insignificant (1). When considering the risks affecting the success of the project, consequence
definitions found in Table 7.1 were followed. Risks concerning safety were evaluated using the conse-
quence scale adopted by the University of Adelaides Risk Management Committee; a summary of the
relevant consequence definitions from this scale is found in table 7.2.
Table 7.1: Consequence scale - risks to project success (The University of Adelaide, 2012)
Consequence Rating Description of Consequence
Extreme (5)
The success of the project is compromised to such an extent
that it cannot be completed.
Major (4)
The success of the project is permanently compromised to a
significant degree.
Moderate (3)
A significant setback requiring a large amount of work to
overcome. However, only a small amount of, or no, permanent
damage is done to the final project outcomes.
Minor (2) A setback requiring a moderate amount of effort to overcome.
Insignificant (1) A setback requiring small effort to overcome.
CHAPTER 7. RISK ASSESSMENT 73
Table 7.2: Consequence scale - safety risks (The University of Adelaide, 2012)
Consequence Rating Description of Consequence
Extreme (5)
Serious injury or death, loss of significant number of key staff
impacting on skills, knowledge & expertise, staff industrial
action, student unrest/protest/violence.
Major (4)
Serious injury, dangerous near miss, loss of some key staff
resulting in skills, knowledge& expertise deficits, threat of
industrial action, threat of student protest/activity.
Moderate (3)
Staff injury, lost time or penalty notice due to unsafe act,
plant or equipment, short term loss of skills, knowledge,
expertise, severe staff morale or increase in workforce absentee
rate, student dissatisfaction.
Minor (2)
Health & safety requirements compromised, lost time or
potential for public liability claim, some loss of staff members
with tolerable loss / deficit in skills, dialogue required with
industrial groups or student body.
Insignificant (1)
Incident with or without minor injury, negligible skills or
knowledge loss, dialogue with industrial groups / students
may be required.
7.3 Risk Matrix
The risk matrix (Table 7.3) was used to determine the rating for an identified risk. Table 7.4 outlines
the actions required for each risk rating when considering risks to safety. Risks to project safety were
dealt with using the preventative measures outlined in the risk register.
Table 7.3: Risk matrix (The University of Adelaide, 2012)
Insignificant
(1)
Minor
(2)
Moderate
(3)
Major
(4)
Extreme
(5)
Almost Certain (A) Medium Medium High Extreme Extreme
Likely (B) Low Medium High High Extreme
Possible (C) Low Medium Medium High High
Unlikely (D) Low Low Medium Medium High
Rare (E) Low Low Low Low Medium
CHAPTER 7. RISK ASSESSMENT 74
Table 7.4: Risk management required (The University of Adelaide, 2012)
Risk Rating Management Action Required
Extreme Risk Immediate attention & response needed; requires a risk assessment
& management plan prepared by relevant senior managers for Vice-
Chancellor; risk oversight by Council or nominated Standing Committee
or Management Committee.
High Risk Risk to be given appropriate attention & demonstrably managed; re-
ported to Vice-Chancellor or other senior Executives/Management Com-
mittees as necessary.
Medium Risk Assess the risk; determine whether current controls are adequate or if
further action or treatment is needed; monitor & review locally, e.g.
through regular business practices or local area meetings.
Low Risk Manage by routine procedures; report to local managers; monitor &
review locally as necessary.
7.4 Heirarchies of Control
The hierarchies of control method - used to determine the course of action after rejecting a risk - is
outlined below. It should be emphasised that in accordance with this method, risks were eliminated
wherever possible.
Hierarchies of control method (Mihelcic & Zimmerman 2010):
1. Eliminate hazard and risk through system (re)design;
2. Reduce risk by substitution with less hazardous methods and materials;
3. Incorporate safety devices;
4. Provide warning systems;
5. Apply administration controls;
6. Provide personal protective equipment (PPE)
CHAPTER 7. RISK ASSESSMENT 75
7.5 Risk Register
The risk register was used to provide a detailed analysis and review of the risks to the project. It was
split into two major sections: the risks to project success; and the risks to safety. Only ’Low’ rankings
were accepted for the project. The risk register, and an extensive application of this process, can be
found in Appendix F.
Chapter 8
Prototype Construction and Cost
The construction of the prototype system was completed entirely by the members of the project team.
This was done to demonstrate the versatility of the design and its ease of assembly, as listed in the
design criterion in Section 5.3.
8.1 Part Sourcing
With the exception of the gas collection membrane, all parts used in the construction process were
purchased from local suppliers. All items were of standard sizes which are commonly found in most
hardware stores. This complies with the constructability design criterion, to ensure that the design can
be easily built anywhere with access to basic construction materials and skills. Being able to source
all parts from a hardware store or local alternative will make the construction process simpler and
faster. This enables Non-governmental Organisations (NGOs), who typically undertake humanitarian
projects in developing communities, to focus on construction rather than product sourcing.
The gas collection system is a purpose built inflatable membrane which was imported from China. This
UV-stabilised PVC membrane included a heat sealed inlet that could be easily integrated into the gas
piping network. As this part could not be sourced locally it did not comply with the constructability
requirement. However, an effective gas collection system could not be constructed from materials
found in hardware stores without specialised equipment and techniques, which would also not adhere
to the criteria. Therefore as a compromise, a product that was easily integrated into the purchased
parts, effective in its intended purpose and readily available was imported.
76
CHAPTER 8. PROTOTYPE CONSTRUCTION AND COST 77
8.2 Construction and Tooling
The construction process was completed using simple tools including drills, spanners, screw drivers,
saws, clamps, and a caulking gun. This was done in order to demonstrate that the system could be
built using inexpensive, readily available tools and facilities. Ideally, for the system to be distributed by
an NGO in a developing country, it must be easy and simple to construct, as advanced manufacturing
facilities and knowledge may not be available. Building the prototype using only basic tools and
technical knowledge demonstrated the ease with which this system can be produced, and highlights
its suitability for use in developing communities.
Construction was performed over a three week period from 2 June to 21 June 2014. It was estimated
to have taken the five project team members five working days to complete. This extended period can
be attributed to delays in material and tool sourcing. Additionally, ensuring the tank lids were sealed
effectively was a difficult, but essential, process causing further delays. The initial sealing mechanism
proved ineffective as air leaks were found when the tanks were filled to test for liquid leaks. An
additional layer of sealant in the form of plastic sheeting was then added to each lid. Subsequent tests
showed this measure was effective in eliminating all gas leaks from the system.
As this was the construction of the first prototype for this design, the time taken would be significantly
longer than any future constructions. If instructions as well as all materials and tools are provided, it
is estimated that the design will take a group of four people a single day to construct.
The stirrer was partly constructed by The University of Adelaide’s mechanical engineering workshop.
The steel shaft was attached to the bearing with an interference fit, which required specialsed man-
ufacturing skills not held by the project group members. The removable paddles were then simply
attached by the project group to complete the design.
8.3 Personal Protective Equipment
To further mitigate the risk of injury during the construction process, personal protective equipment
(PPE) was worn by all members of the construction team. Steel capped footwear was worn by those
involved in lifting heavy objects. Overalls, gloves, and goggles were used by anyone in direct contact
with faecal matter. Safety goggles were worn by the users of power tools and any person in close vicinity
to this activity. This strict use of personal protective equipment combined, with electrical testing of
any power tools used, can be attributed to the absence of personal injury during the construction
process.
CHAPTER 8. PROTOTYPE CONSTRUCTION AND COST 78
8.4 Costing
In accordance with the design criteria, the cost of the prototype construction was kept to a minimum.
The majority of costs were associated with the purchasing of construction materials. However, there
were also additional costs associated with the testing and operation of the project. These costs were
largely met by the project budget, which consisted of core funding provided by University of Adelaide
as well as additional sponsorship.
8.4.1 Secured Sponsorship
This project was allocated funding from the University of Adelaide’s School of Mechanical Engineering
in the form of 200 AUD per group member. This provided a baseline budget of 1,000 AUD. From an
early stage it was estimated that this budget would not meet the financial needs of the project, thus,
it was necessary to seek sponsorship in the form of financial and material contributions.
Potential sponsors were contacted either by phone or email, and supplied with a sponsorship prospectus
(Appendix H). This document outlined the nature of the project, required contributions, and how
sponsors may benefit from their contribution.
Lynair Logistics, an Australian business specialising in international transportation, distribution, and
logistics, kindly donated 300 AUD towards the project budget. Their contribution brought the project
budget to 1,300 AUD.
Caroma, an Australian owned business specialising in bathroom products, generously donated a toilet
system including cistern and pan. Contributions from Caroma had a retail value of 448 AUD.
Subsidised components and expert hardware advice were provided by Barrow and Bench Mitre 10
Malvern. These contributions resulted in savings of more than 500 AUD.
Michael Hatch, a PhD student from the Univeristy of Adelaide, donated four SupelTM gas sample
bags, which cost 16 AUD each. These bags were used to take samples of the gas produced by the
prototype during testing. Mr Hatch also donated his time and the use of a Picarro gas analyser to
measure the methane concentration of these gas samples.
Sponsor contributions have resulted in savings of more than 1,000 AUD, and increased the project
budget by 300 AUD. Without such generous contributions, the project is estimated to have cost
approximately 2,300 AUD. A summary of all sponsor contributions is shown in Table 8.1.
CHAPTER 8. PROTOTYPE CONSTRUCTION AND COST 79
Table 8.1: Sponsorship summary
Sponsor Contribution Project Savings
Lynair Logistics 300 AUD -
Caroma Toilet Cistern and Seat 212.10 AUD
Toilet Pan 236.30 AUD
Barrow and Bench Mitre 10 Malvern 2x 1200L Tanks 400 AUD
Various Components 150 AUD
Michael Hatch 3x Tedlar Gas Sample Bags 48 AUD
8.4.2 Components and Operation Costs
Major prototype costs can be divided into four subsections; tanks, gas membrane, toilet and fittings.
The full retail and project cost of each subsection is shown in Table 8.2 with detailed summary of
all purchases can be seen in Appendix G. All components were acquired from local stores and online
retailers.
Table 8.2: Prototype cost summary
Subsystem Retail Cost (AUD) Project Cost (AUD)
Tanks 800 400
Gas Membrane 175 175
Gas and Plumbing Fittings 425 258
Toilet 445 0
Total 1845 833
As shown in Table 8.2, discounts received for the project reduced the cost of the prototype by approx-
imately 45%. Although the cost of materials will vary depending on the location of implementation,
discounts similar to those received by this project are possible. Therefore the cost of 833 AUD can be
used as a reasonable estimate for the total cost of the system.
Operation and testing costs contributed approximately 100 AUD to the total cost of the project.
These purchases included the purchase of PPE, buckets, funnels, drums and litmus paper for pH
measurements. These costs may not be required if the system were to be implemented in a developing
nation, and so were not included in the system cost estimate.
The total cost of the stirrer assembly was 102 AUD. Despite earlier estimates that the stirrer would
be an expensive design addition, this demonstrated that it can be constructed for relatively low cost.
Therefore, it can be concluded that if some technical skills and knowledge are available during the
CHAPTER 8. PROTOTYPE CONSTRUCTION AND COST 80
implementation of the system, a stirrer is an effective, low cost solution to increasing biogas yield.
Taking all expenses into account the project reached a total cost of 1324.61 AUD, exceeding the budget
by by 24.61 AUD. These extra expenses were accommodated by the project team.
8.4.3 Recycled Design Alternatives
Additional cost reductions can be achieved by the substitution of components with recycled or scrap
materials, examples of which are provided in Table 8.3. All components for the construction of
the prototype were brand new; however, substantial savings could have been achieved through the
integration of locally available alternative components.
Table 8.3: Recycled component alternatives
Component Recycled Alternatives
Tanks
A range of different tanks, including septic and water tanks, are
suitable
Neoprene Sealing
Any available rubber is suitable for sealing purposes, though it may
degrade from hydrocarbon exposure and require replacing. This rubber
could be recycled from a range of sources such as floor skirting, or the
inner tube of a bicycle or car tire
Bioballs
Crushed bricks, scrap plastic, or any non-reactive, non-buoyant object
can be used as substitutions for bioballs to increase the surface area
within the digestion tanks
Piping
If UV treated PVC is not available, normal PVC can be used with
shading. Ceramic, steel, or brass pipes are also suitable
Flexible
Connection
Any flexible, sealed piping can be used
Insulation
Almost any material that covers the digestion tanks is suitable. For
example; hay, polystyrene, bubble wrap, newspaper. Alternatively the
digestion tanks could be buried underground to trap heat.
CHAPTER 8. PROTOTYPE CONSTRUCTION AND COST 81
8.4.4 Labour
Individual hours spent working on the project by each group member were recorded in order to
estimate costs of the project if it had been undertaken by paid professionals. A log of these hours is
shown in Appendix I. Labour costs are calculated based on an hourly rate for an average graduate
mechanical engineer annual salary of 55,000 AUD (Open Universities Australia, 2014). Approximate
labour costs of the project reached 69,725 AUD for 20 weeks of work. This equates to 13,945 AUD
per group member.
Chapter 9
Testing and Operation Procedures
After construction was completed, testing was required to prove that the system could function as
expected. Testing was run from 12 September to 21 October. The results compiled from testing
provided a means of assessing the effectiveness of the design in achieving the project goals outlined
in Chapter 4. It was originally planned that a minimum testing period of three months was required
to collect enough data for robust analysis, however delays in construction significantly reduced this
testing time.
9.1 System Location
Urrbrae Agricultural High School (UAHS) were willing to house the biodigester prototype on their
campus. Originally, the system was placed inside a greenhouse to provide extra warmth during the
colder period of testing. The system was moved outdoors near the UAHS piggery on the 30 September,
after approximately three weeks of testing due to practical and safety considerations. The outcomes
of moving the system outdoor are discussed in Chapter 10. Practical and safety considerations were
the main reasons for moving the system, along with demonstrating its portability.
The doors of the greenhouse were too small to remove the prototype while upright, hence, tilting the
individual tanks to remove them from the greenhouse was required. If the tanks were full, they would
be difficult to tilt and move safely. It was impractical to empty the entire 2000 L of effluent from the
system at the end of the testing period, as the waste had to be disposed of near the UAHS piggery,
approximately 200 m from the greenhouse. Therefore, the system was moved before it was completely
filled with waste, so that it could easily be emptied after the testing period.
Although the system was routinely checked for leaks, there remained the risk of failing to identify
possible points where gas could escape. Thus, another important consideration was public safety. As
82
CHAPTER 9. TESTING AND OPERATION PROCEDURES 83
discussed in Section 10.2, the gas composition was increasing in methane concentration, indicating
that a flammable biogas mixture could begun to develop. If this gas were to leak into the greenhouse,
it could potentially concentrate in the roof cavities and create an explosive atmosphere. Students
and teachers frequently use the greenhouse for class experiments so this risk was deemed unaccept-
able. Moving the system outdoors after the three week period ensured operation in a well ventilated
environment, minimising the risk of fire and explosion.
9.2 Prototype Assessment
Prior to introducing feedstock to the biodigester, all pipes and connections were checked for leaks.
By ensuring both biogas and feedstock leaks were minimised, the risk of fire, explosion and expo-
sure to pathogens was significantly reduced. The system was tested for both liquid and gas leaks
simultaneously using the following procedure:
• All valves were opened, excluding the two outlet valves at the bottom of the tanks.
• The system was then filled with approximately 1000 L of water, and all fittings checked for liquid
leaks.
– Because the valves connecting the two tanks were opened, each tank was approximately
half-full
– As both tanks were completely sealed, the addition of 1000 L of water to the system
displaced 1000 L of air into the gas pipeline and membrane
• Soapy water was lathered over all gas connections to detect any escaping air from the system.
– This would identify any points that would allow leak biogas
• Water was left in the tanks for a period of five days to ensure no leaks would develop over time
9.3 Feedstock Selection
Although the biodigester system was designed to produce biogas using human waste as the feedstock,
it was decided that the prototype would be tested using pig waste instead. Two major factors were
behind this decision; accessibility to feedstock and similarity to human waste.
It was too difficult to source a reliable supply of human waste to use as a feedstock for testing. Along
with the obvious biological hazard presented by handling human waste, it was impractical to collect
human waste and feed it into the system on a regular basis. The system was not completed to a stage
CHAPTER 9. TESTING AND OPERATION PROCEDURES 84
that would allow privacy, therefore waste could not be collected through its implementation as a toilet
on the UAHS grounds.
As the biodigester was located on the UAHS campus, pig waste could easily be collected from the
piggery on the school’s farm and transported to the system within the greenhouse. Based on the
information presented in Table 3.2, pig waste was a suitable substitute for human waste. Per unit
mass, it produces a similar volume of biogas to human waste when compared to other animals. Al-
though chicken waste is also a suitable substitute in terms of biogas production per unit mass, pig
waste was much easier to collect from the UAHS farm. Based on these practical and scientific consid-
erations, it was decided that pig waste sourced from the UAHS piggery would be used as the testing
feedstock.
9.4 System Start-up
During the construction phase, four sealed 76L drums were filled with pig waste from the UAHS
piggery on 28 August. This was done to begin to digestion process independently of the system.
Anaerobic digestion typically takes between 40 to 45 days to occur (Abbasi et al., 2012). To ensure
the project objective of producing a working biodigester was achieved, it was deemed necessary to
begin the digestion process early so that biogas yields could be optimised within the testing timeframe.
Once the system was constructed and the necessary safety tests conducted, the waste from these drums
was added to the system.
There are risks associated with the start-up of a biodigester system, paramount of which are the
dangers of fire or explosion. Methane-air mixtures become explosive with a lower flammability limit
of 5% concentration of methane in air (Glassman and Yetter, 2008). To reduce the risk of explosion,
the gas mixture from the system was vented to the atmosphere after each sample was taken. Samples
were routinely analysed to monitor methane concentration to identify when concentrations began to
approach the lower flammability limit.
9.5 Continuous Process Digester
Based on equations presented in Section 6.2, the amount of feedstock entering a toilet system being
shared by 14 people was calculated:
CHAPTER 9. TESTING AND OPERATION PROCEDURES 85
Waste Volume (L) = 4.48 × U (9.5.1)
= 4.48 × 14
= 62.72 L
Equation 9.5.1 shows that approximately 63 L of solid and liquid waste will be added daily to the sys-
tem by 14 users. It was impractical for members of the project team to be present at UAHS every day
to load the system with waste, based on university timetable restrictions and school opening hours.
It was therefore decided that 220 L of total feedstock would be added twice per week. This operat-
ing procedure aimed to produce steady state gas production, which was expected after the required
retention time for mesophilic digestion of approximately 30 days (Suryawanshi et al., 2013).
9.6 Operating Conditions
The volume and composition of gas produced via anaerobic digestion is dependent on physical factors
such as temperature, pH and the presence of volatile solids, volatile fatty acids, molecular hydrogen
and ammonia-nitrogen within the system (Labatut and Gooch, 2012). Many of these factors are
difficult to measure and control, especially when considering a system to be implemented in developing
communities with limited access to scientific apparatus. Both temperature and pH are simple to
measure and adjust if required, therefore they were monitored throughout the testing period. For an
outline of results obtained, and a discussion of their significance, refer to Chapter 10.
The temperature inside the digester should be maintained between 35◦C and 45◦C to optimise
mesophilic anaerobic digestion (Labatut and Gooch, 2012). To ensure this mesophillic range, the
temperature of the anaerobic digestion tank at the inlet and base was measured twice weekly. Tem-
peratures outside this range could decrease the rate of gas production, with extreme fluctuations
resulting in the death of anaerobic bacteria.
A system pH of neutral or slightly alkaline (pH 7 to 7.5) presents ideal conditions for healthy anaerobic
bacteria function. The pH of and effluent samples was measured twice weekly to monitor system health.
The system pH was found to follow the typical trend of an anaerobic digestion process, as discussed
in Section 10.3. A discussion of simple methods of adjusting system pH to ensure effective digestion
is presented in Section 10.3.1.
Any gas leaks present in the prototype during testing would reduce biogas yields and increase the risk
of fire. To mitigate this risk, the entire prototype was checked weekly for leaks by applying a water
and detergent solution over the surface of all gas carrying components. If bubbles were spotted on the
CHAPTER 9. TESTING AND OPERATION PROCEDURES 86
surface, the leak could be identified and appropriate repair measures taken. Typical repairs involved
the addition extra silicon sealant over the leak, the application of high-strength weatherproof tape,
and replacement of gas-proof plumbing tape. These repair schemes were developed with consideration
to materials available in countries that would benefit most from the implementation of a biodigester
toilet.
9.7 Biogas Collection and Results
Biogas was collected in a flexible membrane located at ground level beside the digestion tanks. As
outlined in Section 6.5, the membrane was fitted in such a way that it could be isolated from the rest
of the system and gas samples extracted with ease. Methane concentration of the gas captured was
sampled over the entire testing period.
To test concentration, SupelTM Inert gas sampling bags were used to collect biogas samples twice per
week. These sample bags were suitable for testing as they provided a low risk of sample contamination
and other desirable physical properties as outlined in Appendix J. A biogas sample contained within
a bag can be seen in Figure 9.1. Biogas samples were analysed using a Picarro G2201-i Analyzer,
which “precisely measures CO2, H2O and CH4 concentration” (Picarro, 2014). The sampling bags
were flushed with hydrogen gas to enable re-use without contaminating new samples. The gas sam-
ple analysis and a discussion of composition change over the testing period is presented in Section
10.2.
The Picarro G2201-i Analyser is designed to simultaneously measure the concentrations of methane
and carbon dioxide every 5 seconds in a sample of air and record the readings using Picarro software.
A data sheet containing detailed specifications of the analyser can be found in Appendix K. The high
range mode of the analyser accurately measures methane concentrations from 1.8 ppm to 1000 ppm.
The same mode is able to measure carbon dioxide concentrations up to 4000 ppm. The concentrations
of methane and carbon dioxide contained within biogas samples taken from the system greatly exceeded
these values and this created some inaccuracy in results, discussed further in Section 10.2.
CHAPTER 9. TESTING AND OPERATION PROCEDURES 87
Figure 9.1: Tedlar bag filled with gas sample
9.8 Safe Operating Procedure
A safe operating procedure (SOP) was developed for the testing phase of the system. The SOP was a
two-tier procedure, designed to prevent over-pressure situations and also to ensure that those testing
the system were not exposed to harmful pathogens.
9.8.1 Preventing over-pressure situations
It was assumed that as soon as the entire volume of the collection membrane (1 m3) had been filled
with gas, it was at risk of bursting. This was the worse case scenario for the MAOP of the collection
membrane, as discussed in Section 6.5.3. To ensure the membrane would never completley fill with gas,
it was vented every Monday and Thursday during the testing period, coinciding with the collection of
gas samples. This also ensured that each sample would contain gas produced since the previous test,
thereby monitoring the biogas composition change over the testing period.
It is important to note that the MAOP of the biogas collection membrane is a ciritcal factor in
determining the maximum internal gas pressure to be placed on the system. As this MAOP was not
known there was potential for it to be much less than the MAOP of the gas pipeline and fittings
(calculated in Section 6.5.1). Therefore the routine emptying procedure was required.
9.8.2 Handling Feedstock
As outlined in Section 2.1.2, excreta can contain a number of harmful pathogens. Although human
waste was not used in testing, any animal waste is still a potential source of illness if handled incorrectly.
CHAPTER 9. TESTING AND OPERATION PROCEDURES 88
To ensure persons involved with loading pig waste into the system would not come into direct contact
with the excreta, the use of personal protective equipment (PPE) was made mandatory when any
feedstock was being added or removed. This personal protective equipment consisted of:
• Gloves
• Safety glasses
• Disposable overalls
• Face mask
Although the use of PPE is last on the hierarchies of control list (presented in Section 7.4), during
the first three weeks of testing it was the most appropriate for preventing exposure to pathogens in
the feedstock. This was because the system was located inside the UAHS greenhouse, approximately
200 m away from the piggery. This distance made it impossible to pump waste directly from the pig
waste reservoir into the system, so it had to be transported in 76 L drums to the greenhouse and
loaded manually into the system using buckets. As discussed in Section 9.6, the system was moved
closer to the piggery after the first three weeks of testing. This enabled waste to be pumped directly
from the reservoir into the system inlet, and reduced the risk of exposure to pathogens even more.
The use of PPE was still required when filling the system using the pump.
Chapter 10
Results and Discussion
As outlined in Chapter 9, a number of parameters were recorded during testing to provide a better
understanding of how the anaerobic digestion process progressed during operation. Methane compo-
sition, various temperatures, and pH were measured. The recorded data is presented in this chapter,
along with a discussion of the significance of each parameter. Also discussed is the level to which the
project objectives were achieved.
10.1 Gas Analysis
Samples of biogas were collected in SupelTM Inert gas sampling bags which feature a push-lock valve
mechanism. These samples were collected bi-weekly over the five week testing period and measured
using a Picarro G2201-i Analyser. Numerical results obtained from the biogas sample analysis can be
found in Appendix L.
The Picarro 2201-i analyser was a useful tool in assessing methane concentration of the biogas. How-
ever, as the analyser is only designed to measure methane concentrations of up to 1,000ppm, it can
not be relied upon to deliver scientifically accurate results. While performing analysis, the Picarro
2201-i struggled to provide measurements of the methane concentration at the frequency specified
by Picarro, However, the results obtained were found to be consistent with expected methane con-
centration. Thus, these results can be used as an indication of the general trend in the methane
concentration over the testing period but cannot be relied on for numerical accuracy.
Similarly, the anaylser is only designed to measure carbon dioxide concentrations up to 4,000ppm.
Values of carbon dioxide concentration delivered from the Picarro 2201-i were too infrequent and
inconsistent to provide any reliable measurements. The analyser stopped responding when carbon
dioxide measurements exceeded approximately 45,000ppm and thus the measurements obtained are
89
CHAPTER 10. RESULTS AND DISCUSSION 90
not presented here as results. From this analysis it can only be concluded that the concentration
exceeded 45,000ppm in each sample.
10.2 Methane Concentration
Figure 10.1 shows the change in methane concentration over time. It is clear that methane concentra-
tion increased at an increasing rate during the testing period. The drop in concentration shown for
the date of 3 October can be attributed to the disassembly and transportation of the prototype in the
days before this sample was taken. This process required various valves on the tanks to be opened, for
reasons discussed in Section 10.5. Thus, oxygen was re-introduced to the system which both diluted
the next scheduled sample with air, and hindered the digestion process.
0
5000
10000
15000
20000
25000
MethaneConcentration(ppm)
Date (DD/MM)
Figure 10.1: Change in methane concentration over testing period
The lower flammability limit of methane in air is 50000 ppm (Glassman and Yetter, 2008). Biogas
will not burn until the concentration of methane is above this flammability limit. The last results
analysed showed a methane concentration of 23,349 ppm; a significantly larger value than the initial
reading of 259 ppm, four weeks prior. These results demonstrate that anaerobic digestion occurred
within the system, and the process was effective in producing methane. As will be discussed in Section
10.3, pH measurements indicated that anaerobic digestion had not reached the methanogenesis stage,
in which the majority of methane production occurs. Given more time, the gas is predicted to become
flammable as the anaerobic digestion process progresses.
CHAPTER 10. RESULTS AND DISCUSSION 91
Comparisons between the methane concentration data collected for the project, and experimental
data obtained by Sulistyo et al. (2012) for the anaerobic digestion of three different substrates (S1, S2
and S3 in Figure 10.2), demonstrate similar trends in methane generation. Note, the three substrates
tested by Sulistyo et al. (2012) were different mixtures of cow manure and plant material. Substrate
1 (S1) had no cow manure in it, S2 was 90% cow manure, and S3 was 36.4% cow manure. While
the feedstocks used by Sulistyo et al. (2012) are different to the pig manure used in this project,
the change in methane concentration between the two experiments follow similar upwards trends.
This is significant, as it confirms that the anaerobic digestion process occurred within the biodigester
toilet.
Figure 10.2: Change in methane concentration for different substrates (Sulistyo et al., 2012)
A flame test was conducted in the final week of testing to investigate the flammability of the gas
produced by the system. Two gas samples were collected in small inflatable membranes. An identical
membrane was filled with air to use as a control sample. All samples were then removed from the
vicinity of the biodigester, and tested by exposure to a small flame. None of the samples ignited,
indicating that the gas produced by the biodigester was not flammable. This practical result reinforces
what was concluded from methane concentration measurements and combustion theory.
10.3 pH
As discussed in Section 3.3.3, pH has a strong correlation with the health of an anaerobic digestion
system. Hence, monitoring feedstock pH throughout the entire testing process was important to ensure
the digestion process was progressing as expected. Tracking pH also enabled the observation of the
four stages of anaerobic digestion, each of which has a characteristic pH range. To monitor pH, litmus
paper testing strips were used. These strips are inexpensive, available from local and online retailers,
CHAPTER 10. RESULTS AND DISCUSSION 92
and negate the need for complicated testing methods, demonstrating how system pH can be monitored
for a small cost in a developing community.
The pH of the first digestion tank was monitored throughout the testing period and the pH of the
second tank was monitored once effluent was transferred to it. For each test a sample of effluent had
been taken from outlets at the base of each tank which are the only points of access to the feedstock
after it enters the system. These effluent samples were then tested with the litmus paper. This release
of effluent increased the risk of pathogen exposure, making the use of PPE necessary. A graph showing
the change in pH throughout the testing phase is shown in Figure 10.3, with numerical result found
in Appendix L.
4.5
5
5.5
6
6.5
7
7.5
pH
Date (DD/MM)
Digestion Tank Sedimentation Tank
Figure 10.3: Change in system pH over testing period
For the digestion process to begin, feedstock pH must be between 6.8 and 7.5 (Environmental Protec-
tion Agency, 2012). Initially, the pH in the first digestion was neutral (pH = 7) and began to decrease
over time to a value of 6. This result was expected, as the second and third phases of anaerobic
digestion, acidogenesis and acetogenesis, are characterised by the production of fatty acids and acetic
acids, respectively. As discussed in Section 3.3.3, a reduction of system pH to as low as 5.5 can be
expected during acetogenesis.
As fresh waste entered the system at the bottom of the first tank, older waste was pushed upwards.
The transfer point between the two digestion tanks was 860mm from the base of the tanks, ensuring
older waste above this level would be transferred to the second tank. Figure 10.3 shows an increase of
pH level from 5 to 6.5 in the second tank. This was expected, as the second tank contained older waste
CHAPTER 10. RESULTS AND DISCUSSION 93
that was transitioning into the methanogenesis phase, the final stage of anaerobic digestion. Ammonia
is produced during the methanogenesis phase, causing pH to increase (Wang et al., 2007).
The pH measurements in both tanks followed the trends expected for anaerobic digestion. When
considering these pH measurements in combination with the methane concentration measurements, it
is apparent that the anaerobic digestion process was progressing.
10.3.1 Controlling pH
As system health has a strong dependence on feedstock pH (Karki and Dixit, 1984), it is important
to have the ability to adjust the system pH if required. If the system pH had become unsuitable for
anaerobic digestion at any stage throughout the testing period, it would have been possible to adjust
this using off-the-shelf products designed to adjust the pH of various mixtures.
As the design is intended for use in developing communities, which may not have access a wide variety
of chemicals, it is important to highlight a number of ways to alter pH using readily available materials.
If pH in the system is required to be lowered, a number of simple materials and techniques can be
used to achieve this. Food waste has a tendency to decompose quickly, which will decrease the pH of
the digester (Environmental Protection Agency, 2012). If testing shows an unsuitably high pH, food
waste from kitchens can be added to the digester to lower it. Adding lemons, oranges, and other fruit
containing citric acid is another way method of increasing acidity. Raising system pH is more difficult;
however, sodium bicarbonate (baking soda) is a commonly available product that can be added to
the system to increase alkalinity. It is commonly used to increase the pH of swimming pools, and can
simply be added to the inlet of the biodigester, and flushed with water.
10.4 Temperatures
As anaerobic digestion is highly sensitive to temperature, it was necessary to monitor various tem-
peratures throughout the testing period. Measurements were taken using a long-probed electronic
thermometer during the hours of 9am to 3pm. Temperature measurements were taken for the inlet of
the first digestion tank, for ambient conditions, and for effluent samples sourced from the base of each
digestion tank. In order to assess the effectiveness of the greenhouse and insulation strategies, mea-
sured results were compared with temperature readings from nearby weather stations. Using resources
from the Bureau of Meteorology (BOM), temperature readings from 9am and 3pm were averaged from
weather stations located in Kent Town and the Adelaide Airport, the closest stations to UAHS with
similar altitudes. This comparison is shown in Figure 10.4 with numerical values found in Appendix
L.
CHAPTER 10. RESULTS AND DISCUSSION 94
12
15
18
21
24
27
30
33
36
39
20/09 22/09 24/09 26/09 28/09 30/09 02/10 04/10 06/10 08/10 10/10 12/10 14/10 16/10 18/10 20/10 22/10
Temperature(°C)
Date (DD/MM)
Inlet Effluent BOM Average Testing Site Ambient
Figure 10.4: Temperature measurements compared to BOM readings
The system was removed from the greenhouse on 30 September, which can be seen as a drop in all
measured temperatures in Figure 10.4. To combat this fall in temperature, an insulating material was
attached to the first digestion tank on 9 October. The addition of this material corresponded to a
stabilisation of the inlet temperature, and an increase of effluent temperature, suggesting it was an
effective method of insulation.
It can be seen that despite BOM recorded temperatures following a cyclic curve, the inlet and effluent
temperatures display a more steady temperature gradient. This can be attributed to the effectiveness
of the insulation provided initially by the greenhouse and later, the insulating material.
As expected, inlet temperatures were shown to be consistently higher than effluent temperatures,
usually with a margin of up to 5◦C. Inlet temperature recordings appear to follow the same general
trend as the ambient temperature. Ideally, inlet temperatures will be slightly higher than ambient
temperatures to demonstrate the heat being retained in the system for anaerobic digestion. However,
as the majority of readings were taken in the early hours of the morning, it may be reasonably deduced
that the system, due to higher thermal inertia, had been absorbing heat from the surrounding air at
a much slower rate.
Effluent temperature readings show that the system was operating at a lower than optimal temperature
for mesophillic digestion (30 to 38◦C). However, as previously mentioned, anaerobic digestion did occur
but the rate of digestion was likely retarded by low temperatures.
CHAPTER 10. RESULTS AND DISCUSSION 95
10.5 Portability Demonstration
Portability was demonstrated by relocating the system from the Urrbrae greenhouse to the Urrbrae
piggery. The reasons for relocation of the system are discussed in Section 9.1. As the tanks were
situated on 2 pallets, the use of a forklift and a pallet jack enabled the system to be easily transported.
Placing two ball valves between the tanks enabled them to be isolated, and transported individually.
Biogas collected in the gas membrane was easily separated from the biodigester and moved to a
different location by hand.
The doors of the Urrbrae greenhouse were too small to fit the tanks through upright so they had to
be partially emptied and tilted. If this had not been the case, the protoype could have been moved
with less disruption to the digestion process and, consequently, methane concentration would not have
been affected.
Proving that the design is portable has significance when considering the implementation of the sys-
tem in a developing community. The prototype was constructed from materials easily sourced from
hardware stores, however these resources may not be readily available in every community. Being
portable, the system could be constructed at a location with the available resources by an NGO or
similar organisation, and then transported to where it is required. Being able to isolate each tank
while full of feedstock also makes it possible to relocate the system after it has begun operation.
10.6 Completion of Objectives
A number of project objectives were outlined in Section 4.2. The extent to which these objectives
have been met will be discussed.
1. Design and build a portable toilet that meets the definition of a Shared Sanitation
Facility, as outlined by the WHO/UNICEF Joint Monitoring Program (JMP) for Water
Supply and Sanitation.
The system was checked for liquid leaks using fresh water before feedstock was added during the testing
phase. No leaks were identified from this initial test, and none developed during the entire testing
period. Once the feedstock entered the digester, it was completely separated from human contact.
Thus, the system satisfied the WHO definition of an improved sanitation facility, as it “...hygienically
separates human excreta from human contact” (WHO and UNICEF, 2014a). Calculations presented
in Section 6.2 showed that the final design is capable of effectively digesting the waste of 14 daily users.
The WHO defines shared sanitation facilities as “...sanitation facilities of an otherwise acceptable type,
that are shared between two or more households.” (WHO and UNICEF, 2014b). Current census data
CHAPTER 10. RESULTS AND DISCUSSION 96
from India and China indicates that the average number of permanent residents per household in
rural areas is 5.4 and 3.88, respectively (National Bureau of Statistics of China, 2013; The Registrar
General & Census Commissioner, 2011). Using these statistics as an estimate for average household
size in the developing world, and noting that the final design is an acceptable facility, the prototype
can be classified as a shared sanitation facility.
2. Include a functioning biodigester component in the design that is capable of harnessing
the human waste collected in order to produce biogas.
The success of this goal was originally based on the biogas production rate by volumetric measurement
(litres of biogas produced per kilogram of feedstock). As there is not a fixed definition for the chemical
composition of biogas, this goal is difficult to quantify using the originally proposed method. As stated
in the discussion in Sections 10.2 and 10.3, methane was being produced within the system, and pH
measurements indicated that the acidogenesis and acetogenesis phases of anaerobic digestion were
taking place. These results indicate that the system was functioning as an anaerobic biodigester.
3. Integrate the toilet with the biodigester to create a portable biodigester toilet
unit.
The system inlet was constructed from 100mm diameter sewerage grade PVC pipe, to allow for the
integration of standard 100mm toilet outlets. While the prototype was located within the UAHS
greenhouse, there was not enough overhead room to mount the toilet on top of the first tank. After
relocating the system outside, it was assessed that the available project budget would not allow for
the construction of a safe supporting structure that could hold the weight of the toilet and user. The
toilet was not physically installed on the prototype, however the design enables the integration of any
toilet with a standard 100mm outlet.
As discussed in Section 10.5, the portability of the design was demonstrated when the prototype
was relocated during the testing period. The methane concentration dropped during this relocation
process due to air entering the system, however this would not usually be the case if the system could
remain upright throughout the moving procedure. It can therefore be concluded that the system is a
portable biodigester toilet.
4. Ensure the design is acceptable for implementation and use in Australia by ensuring
it meets relevant Australian standards.
Australian standards relevant to small-scale biodigesters were identified based on the Code of Practice
for on-farm biogas production and use on piggeries (Davidson et al., 2013). Although a number of
standards were identified, only those relating specifically to the materials and technology used in the
final design were adhered to.
CHAPTER 10. RESULTS AND DISCUSSION 97
AS 4130 and AS 4645 were used to calculate the MAOP of the gas piping, as these standards specifically
relate to polyethylene piping in pressure applications, and gas networks. Other standards originally
identified as relevant in Table 5.1 did not relate to the final design. These standards concerned the
operation of biogas appliances such as generators and flares, or outlined principles relating to the
conveyance of fuel gases in metal pipelines.
5. Demonstrate a viable use for the gas generated by the biodigester.
Standard gas appliances are not equipped to function effectively with low pressure gas, making quan-
tification of this goal difficult. Specially modified stoves or lamps were not available so a simple flame
test was conducted. Success of the flame test would prove that the gas generated by the system could
be used for cooking, heating or lighting. Unfortunately this test proved the gas was not combustible
by the completion of testing. As discussed in Section 10.2, it is expected that the gas will reach
a flammable, and hence useful composition as the anaerobic digestion process progresses into the
methanogenesis phase. Delays in prototype construction restricted the time available for testing, and
results suggest that the methanogenesis phase was not reached during the testing phase.
Chapter 11
Future Work
The extension objectives outlined in Section 4.3 were not completed due to financial restrictions and
time constraints. These extension objectives form the foundation of future work that may be performed
to improve the design.
11.1 Extension Goals
As the prototype system was only operated in a scientific testing capacity, a suitable cubicle to house
the toilet for privacy was not constructed. This would have also exceeded the project budget, and
delays in prototype construction left little time for the completion of this extension objective. To
enable the implementation of the biodigester toilet in developing communities, the construction of the
cubicle is essential.
Time restrictions prevented extensive research being performed on post-treatment methods for the
liquid and solid effluent from the system. To design a satisfactory system, a significant amount of
time should be devoted to its development. This would ensure the treated liquid and solid effluent
would be safe for use as a fertiliser and would not pose a risk to persons who comes in contact with
it.
11.2 Design Improvements
A more appropriate gas collection system must be developed to simplify the use of biogas by the end
users. The current inflatable membrane system is inexpensive and effective in capturing the biogas,
however it can be easily damaged and would require a protecting structure if implemented in any
practical environment. It is recommended that a floating drum system be employed as an improved
98
CHAPTER 11. FUTURE WORK 99
gas collection system as it is able to provide a constant gas pressure, and can be made from materials
less prone to puncture. Difficulties resulting from gas backflow and high pressures may be present in
this type of system and would need to be overcome.
Currently the gas collection system must be removed from the entire system for the gas to be sampled
for combustibility. To simplify the practical use of the biogas for end users, the gas collection system
must incorporate an output hose as well as the input from the digestion tanks. This output should
incorporate fittings to enable the connection of a range of devices such as gas cook stoves, lights or
heaters to the gas membrane. A flame arrester must also be incorporated to reduce the risk of fire
and explosion.
Chapter 12
Conclusion
Research revealed that health implications resulting from poor sanitation practices, and the indoor
use of solid fuels kill over 4 million people every year. Billions of people are affected by these problems,
often in conjunction with crippling poverty conditions. Based on these problems, and the fact that
they are both primarily concentrated in similar developing regions, a project aim was identified to
address both these issues
After investigating various wastewater treatment technologies, anaerobic digestion was found to be
the ideal solution to treat waste, and provide a clean burning alternative to solid fuels. Integrating
an anaerobic digestion system, or ‘biodigester’ with a toilet, creates a system that separates human
excreta from human contact, whilst providing an alternative energy to solid fuels in the form of
biogas.
The University of Adelaide Honours Project 777 team explored one concept of a biodigester toilet
system in 2009. This was a two tank design that used an inflatable membrane for gas collection. The
advantages of this system were portability, and the ability to clarify effluent through a settling process
in the second tank, in preparation for the post-digestion filtering. There were a number of significant
improvements that could be made to Project 777, which were subsequently integrated in the concept
design phase of the current project. These improvements included removing all gas leaks, eliminating
gas back flow problems, allowing for a longer hydraulic retention time, and operating the system in
more suitable conditions. In this project, the number of people able to use the system was calculated
based on the tanks available, average amounts of excreta produced per user each day, and the retention
time required for anaerobic digestion be effective. Relevant Australian Standards were identified to
ensure the design met all safety, environmental protection, and material selection criteria.
Based on required components and resources, costs were projected within the project budget. One of
the project objectives was to assemble the system entirely from readily available parts, which would
100
CHAPTER 12. CONCLUSION 101
increase the feasibility of the system for a larger demographic of people. Additionally, the integration
of readily available resources, and limitations to design technicality, meant that there was scope for the
design to be shared with users with less technical experience. A sponsorship prospectus was created
and sent to potential sponsors in order to help finance the project. Lynair Logistics provided 300 AUD
in sponsorship, increasing the project budget to 1,300 AUD. Sponsorship was acquired from Barrow
and Bench Mitre 10 Malvern, who supplied two polyethylene water tanks, and additional components
at discounted prices. Caroma made contributions of a toilet bowl and cistern at no cost. Michael
Hatch from the University of Adelaide, provided various contributions to the project and played a key
role in the testing process. The total cost of the project including all current confirmed sponsorship
came to 1,208 AUD, which was partially financed by The University of Adelaide to a value of 1,000
AUD.
The first step in the build and operation of the project was securing a location, which was a sensitive
issue due to the potential risks and hazards relevant to the project. An agreement with Urrbrae
Agricultural High School was established, which was mutually beneficial due to the initialisation of
their own biogas program, running concurrently. The biodigester was situated in a greenhouse to best
simulate the tropical conditions found in the majority of developing regions around the world. Pig
waste was used for the feedstock, as it was easily available from Urrbrae’s farm, and did not pose
the health risks associated with exposure to human waste. The daily amount of feedstock and water
supplied to the system was chosen to be 63 L of solid and liquid waste, based on the average daily
human waste production and flushing water per use. This equated to a total of 220 L of waste added
daily. Operation and testing procedures were performed for 7 weeks and the biogas output collected
twice a week. Biogas samples were collected and analysed, showing a significant transition of carbon
dioxide and methane concentration to an increasingly flammable substance, which has been verified
through flame tests.
The core objectives for this project, as outlined in the Scope, defined the assessment criteria by which
the success of the end product was assessed. The first objective stated that the project would in-
volve the design and construction of a portable toilet that qualifies as a Shared Sanitation Facility
according to the WHO/UNICEF Joint Monitoring Program for Water Supply and Sanitation. This
objective was completed successfully, as the addition of a toilet ensured hygienic separation of human
excreta from human contact for the user. For the second objective to be achieved, a functioning
biodigester component would have to be designed to collect the biogas produced from the harnessed
waste. The successful completion of this objective was achieved through the design and construc-
tion of a biodigester prototype with an effective gas collection system. Testing and analysis of the
captured biogas suggested that an increasing methane concentration level was indicative of the gas
approaching flammability. Objective 3 was successfully completed as the inlet for the biodigester
CHAPTER 12. CONCLUSION 102
prototype allowed for a connection to a standard toilet. Designing the system for ease of assembly
and disassembly, allowed for easy relocation during the testing phase to demonstrate portability. The
fourth objective specified that, for the design to be implemented and used, it had to first abide by any
relevant Australian Standards. This was achieved by following relevant standards during the design
and construction stages of the process. The final core objective was to demonstrate a viable use of
the captured biogas. Although initial flame tests showed that gas was incombustible, it is expected
that the methane concentration will increase due to the progression of anaerobic digestion, and the
gas will likely reach a flammable state, given enough time.
Poor sanitation, and the household burning of solid fuels are issues that adversely affect the lives of
billions of people worldwide. These problems, while independent, are concentrated in similar regions,
and thus affect similar populations. In order to effectively address these problems, the overall aim
of this project was defined with the need: “To develop a single appropriate technology that may
be implemented in developing communities in order to alleviate the dangers associated with unsafe
sanitation practices and the household burning of solid fuels.” Overall, the design and build of a
biodigester toilet is considered to be successful as each core objective has been met. With further
research, and an increased scope for testing and implementation, this project has the potential to
positively affect the lives of billions of people worldwide.
References
T. Abbasi, S. Tauseef, and A. Abbasi. Biogas Energy, volume 2. Springer, 2012.
B. Amigun and W. Stafford. Biofuels and sustainability in africa. Renewable and Sustainable Energy
Reviews, 15(2):1360 – 1372, 2011.
B. Amigun and H. von Blottniz. Capacity-cost and location-cost analyses for biogas plants in africa.
Bioresource Technology, 55(1):63–73, 2010.
T. Amon, B. Amon, V. Kryvoruchko, W. Zollitsch, K. Mayer, and L. Gruber. Biogas production from
maize and dairy cattle manureinfluence of biomass composition on the methane yield. Agriculture,
Ecosystems & Environment, 118(1):173–182, 2007.
ARTI. Arti biogas plant: A compact digester for producing biogas from food waste, 2014. URL
http://www.arti-india.org/index2.php?option=com_content&do_pdf=1&id=45.
B. Ashley, F. Chikwati, J. John, J. Petrohilos, X. Smith, and A. Szumlinski. Biodigester toilet. 2011.
T. Bond and H. Sun. Can reducing black carbon emissions counteract global warming? Envionmental
Science and Technology, 39:5921–5926, 2005.
Bureau of Meteorology. Climate statistics for australian locations, 2014. URL http://www.bom.gov.
au/climate/averages/tables/cw_023090.shtml. 9/9/2014.
E. Buysmanc and A. Mol. Market-based biogas sector development in least developed countries: The
case of cambodia. Energy Policy, 63:44–51, 2013.
D. Caruana and A. Olsen, editors. Environmental Science, Engineering and Technology: Anaerobic
Digestion: Processes, Products and Applications. Nova Science Publishers, Inc, 2012.
K. Chae, A. Janj, S. Yim, and I. Kim. The effects of digestion temperature and temperature shock on
the biogas yields from the mesophilic anaerobic digestion of swine manure. Bioresource Technology,
99(1):1–6, 2008.
Chartsbin. Household solid fuel use, 2007. URL http://chartsbin.com/view/2835.
103
REFERENCES 104
S. Cheng, Z. Li, H. Mang, E. Huba, R. Gao, and X. Wang. Development and application of prefab-
ricated biogas digesters in developing countries. Renewable and Sustainable Energy Reviews, 34:
387–400, 2014.
A. Chinyama. Understanding the poor performance of urban sewerage systems: A case of coldstream
high density suburbs, chinhoyi, zimbabwe. Urban Planning and Design Research, 10(3):45–51, 2013.
G. Coffee, H. Dent, J. Messenger, and H. Prestwood. Project: Sustainable energy for developing
communities, 2009.
A. Davidson, M. Yap, S. Ponder, and G. Jeffrey. Code of practice for on-farm biogas production and
use (piggeries). Draft Consultation Report, 2013. Prime Consulting International (Australia) Pty
Ltd.
Department of Industry. Install water-efficient toilets, 2014. URL http://yourenergysavings.
gov.au/water/water-home-garden/water-efficient-appliances-fixtures/
install-water-efficient-toilets. Accessed 29/9/2014.
D. Deublein and A. Steinhauser. 2010. doi: 10.1002/9783527632794. URL http://dx.doi.org/10.
1002/9783527632794.
H. El-Mashad and R. Zhang. Biogas production from co-digestion of dairy manure and food waste.
Bioresource technology, 101(11):4021–4028, 2010.
Energypedia. Experience with polyethylene biogas digester (pbd), 2014. URL https://energypedia.
info/wiki/Experience_with_Polyethylene_Biogas_Digester_(PBD).
Engineers Without Borders. Arti biodigester, 2011. URL http://www.ewb.org.au/announcements/
639/11188.
Environmental Protection Agency. Increasing anaerobic digester performance with codigestion, 2012.
M. Ezzati, A. Lopez, A. Rodgers, and C. Murray. Comparative quantification of health risks: global
and regional burden of disease attributable to selected major risk factors, volume 2. World Health
Organization, Geneva, 2005.
E. Favre, R. Bounaceur, and D. Roizard. Biogas, membranes and carbon dioxide capture. Bioresource
Technology, 328(2):11–14, 2009.
R. Feachem, D. Bradley, H. Garelick, and D. Mara. Appropriate technology for water supply and
sanitation: Health aspects of excreta and sullage - a state-of-the-art review. 1980.
R. Fenner, P. Guthrie, and E. Piano. Process selection for sanitation systems and wastewater treatment
REFERENCES 105
in refugee camps during disaster-relief situations. Water and Environment Journal, 21(4):252–264,
2007.
A. Fenwick. The global burden of neglected tropical diseases. Public Health, 126(3):233–236, 2012.
C. Ferreira. Refractive index matching applied to fecal smear clearing. Revista do Instituto de Medicina
Tropical de Sao Paulo, 47(6):347–350, 2005.
W. Foell, S. Pachauri, D. Spreng, and H. Zerriffi. Household cooking fuels and technologies in devel-
oping economies. Energy Policy, 39:7487–7496, 2011.
Foster and Smith. Pet supplies, 2014. URL http://www.drsfostersmith.com/images/
Categoryimages/larger/lg_26378_35703D.jpg.
P. Furniss. Waste products; wasted time; wasted lives: What does a lack of ac-
cess to sanitation mean?, 2011. URL http://www.open.edu/openlearn/body-mind/
waste-products-wasted-time-wasted-lives-what-does-lack-access-sanitation-mean/.
GACC. Data and statistics, 2014. URL http://www.cleancookstoves.org/resources/
data-and-statistics/.
I. Glassman and R. A. Yetter, editors. Appendix E - Flammability Limits in Air. Academic Press,
Burlington, fourth edition edition, 2008.
H. Heinonen-Tanski and C. van Wijk-Sijbesma. Human excreta for plant production. Bioresource
Technology, 96(4):403–411, 2004.
J. Jenkins. The Humanure Handbook. Joseph Jenkins Inc., Grove City, PA, 1st edition, 2005.
X. Jiang, S. Sommer, and K. Christensen. A review of the biogas industry in china. Energy Policy,
39(10):6073–6081, 2010.
L. Junfeng, H. Runqing, S. Y. S. Jingli, S. Bhattacharya, and P. S. Abdul. Assessment of sustainable
energy potential of non-plantation biomass resources in china. Biomass and Bioenergy, 29(3):167–
177, 2005.
J. Kaniyamparambil. A look at indias biogas energy development program - after three decades, is
it useful (doing what it should) and should it be continued? Bioresource Technology, 19(3):23–29,
2011.
S. Kanwar and R. Guleri. Performance evaluation of a family-size, rubber-balloon biogas plant under
hilly conditions. Bioresource technology, 50(2):119–121, 1994.
A. Karki and K. Dixit. Biogas fieldbook. Environmental Engineering, 13(2):1–5, 1984.
REFERENCES 106
R. Labatut and C. Gooch. Monitoring of anaerobic digestion process to optimize performance and
prevent system failure. In Got Manure?, pages 209–224, 2012.
G. Lettinga. Anaerobic digestion and wastewater treatment systems. Antonie van leeuwenhoek, 67
(1):3–28, 1995.
D. Mara and G. Alabaster. A new paradigm for low-cost urban water supplies and sanitation in
developing countries. Water Policy, 10(2):119–129, 2008.
J. Mart’i-Herrero and J. Cipriano. Design methodology for low cost tubular digesters. Bioresource
technology, 108:21–27, 2012.
O. Masera, B. Saatkamp, and D. Kammen. From linear fuel switching to multiple cooking strategies:
a critique and alternative to the energy ladder model. World development, 28(12):2083–2103, 2000.
D. Masse, Y. Gilbert, and E. Topp. Pathogen removal in farm-scale psychrophilic anaerobic digesters
processing swine manure. Bioresource Technology, 102(2):641 – 646, 2011.
J. Mata-Alvarez, S. Mace, and P. Llabres. Anaerobic digestion of organic solid wastes. an overview of
research achievements and perspectives. Bioresource technology, 74(1):3–16, 2000.
M. Murphy, E. McBean, and K. Farahbakhsh. Appropriate technology a comprehensive approach for
water and sanitation in the developing world. Technology in Society, 31(2):158–167, 2009.
MykinInc. Rubber chemical compatibility, 2014. URL http://mykin.com/
rubber-chemical-resistance-chart-2. Accessed 20/10/2014.
National Bureau of Statistics of China. China statistical yearbook 2013, 2013. URL http://www.
stats.gov.cn/tjsj/ndsj/2013/html/Z1117E.htm. Accessed 21/10/2014.
Open Universities Australia. Career advice: Mechanical engineers, 2014. URL http://www.open.
edu.au/careers/engineering/mechanical-engineers. Accessed 5/6/2014.
J. Parikh. Hardships and health impacts on women due to traditional cooking fuels: A case study of
himachal pradesh, india. Energy Policy, 39(12):7587–7594, 2011.
G. Parkin and W. Owen. Fundamentals of anaerobic digestion of wastewater sludges. Journal of
Environmental Engineering, 112(5):867–920, 1986.
Picarro. Picarro g2201-i analyzer, 2014. URL http://www.picarro.com/products_solutions/
isotope_analyzers/13c_for_ch4_co2.
E. Rehfuess, N. Bruce, and K. Smith. Solid Fuel Use: Health Effect, volume 5. Elsevier B.V., 2011.
D. Rivard. Chinese public toilets, 2005. URL https://www.flickr.com/photos/rivard/50151405/
in/set-1368743.
REFERENCES 107
A. Rohjy, J. Aduba, H. Manta, and Y. Pamdaya. Development of anaerobic digestion for the produc-
tion of biogas using poulty and cattle dung: A case study of federal university of technology minna
cattle and poultry pen. International Journal of Life Sciences, 2(3):139–149, 2013.
Rwanda Utilities Regulatory Agency. Technical Guidelines for Construction of Domestic Fixed Dome
Biogas Plants. 2012.
K. Singh and S. Sooch. Comparative study of economics of different models of family size biogas plant
for state of punjab, india. Energy Conversion and Management, 45(3):1329–1341, 2002.
S. Smith, N. Lang, K. Cheung, and K. Spanoudaki. Factors controlling pathogen destruction during
anaerobic digestion of biowastes. Waste Management, 25(4):417–425, 2005.
SNV. Study on identification of the best biodigester model for lao pdr, 2007.
Socioeconomic Data and Applications Center. World: Infant mortality rates (imr),
2005. URL http://sedac.ciesin.columbia.edu/data/collection/povmap/maps/gallery/
search?facets=region:global&facets=theme:poverty. Accessed 14/10/2014.
B. Stauffer. Overhung latrine. Sustainable Sanitation and Water Management (SSWM),
2014. URL http://www.sswm.info/category/implementation-tools/wastewater-treatment/
hardware/user-interface/overhung-latrine. Accessed 6/6/2014.
R. Stephenson. A Comparison of Retained Biomass Anaerobic Digester Designs. PhD thesis, The
University of British Columbia, 1987.
H. Sulistyo, S. Syamsiah, D. A. Herawati, and A. A. Wibawa. Biogas production from traditional
market waste to generate renewable energy. pages 1–4, 2012.
K. Surendra, D. Takara, J. Jasinski, and S. Khanal. Household anaerobic digester for bioenergy
production in developing countries: opportunities and challenges. Environmental Technology, 34
(13-14):1671–1689, 2013.
P. Suryawanshi, A. Chaudhari, S. Bhardwaj, and T. Yeole. Operating procedures for efficient anaerobic
digester operation. Research Journal of Animal, Veterinary and Fishery Sciences, 1(2):12–15, 2013.
Thai Biogas Energy Company. Biogas technology, 2008. URL http://www.tbec.co.th/technology.
php. Accessed 23/10/2014.
The Registrar General & Census Commissioner. Houselisting and housing census data high-
lights - 2011, 2011. URL http://censusindia.gov.in/Data_Products/Data_Highlights/Data_
Highlights_link/data_highlights_hh1_2_3.pdf. Accessed 21/102014.
J. Tumwine, J. Thompson, M. Katua-Katua, M. Mujwajuzi, N. Johnstone, E. Wood, and I. Porras.
REFERENCES 108
Diarrhoea and effects of different water sources, sanitation and hygiene behaviour in east africa.
Tropical Medicine and International Health, 7(9):750–756, 2002.
UNICEF. Unicef - water, sanitation and hygiene - common water and sanitation-related diseases,
2014. URL http://www.unicef.org/wash/index_wes_related.html. Accessed 6/6/2014.
United Nations. Millennium development goals and beyond 2015, 2014. URL http://www.un.org/
millenniumgoals/bkgd.shtml. Accessed 6/6/2014.
P. Vindis, B. Mursec, M. Janzekovic, and F. Cus. The impact of mesophilic and thermophilic anaerobic
digestion on biogas production. Journal of achievements in materials and manufacturing Engineer-
ing, 36(2):192–198, 2009.
L. Wang, N. Shammas, and Y. Hung. Biosolids treatment processes. Humana Press, Totowa, N.J., 1st
edition, 2007.
A. Weir. Biogas - digester types, n.d. URL http://fastonline.org/CD3WD_40/BIOGSHTM/EN/
APPLDEV/DESIGN/DIGESTYPES.HTML#FLOAT. Accessed 23/10/2014.
WHO. Solid fuel use for cooking, 2007. URL http://www.who.int/indoorair/health_impacts/
he_database/en/.
WHO. Global sanitation trends: 1990 - 2010. 2012.
WHO. Fact sheet no. 292: Household air pollution and heath, 2014. URL http://www.who.int/
mediacentre/factsheets/fs292/en/.
WHO and UNICEF. Progress on drinking water and sanitation: 2012 update, 2012.
WHO and UNICEF. Joint monitoring programme (jmp) for water supply and sanitation, 2014a. URL
http://www.wssinfo.org/definitions-methods/watsan-categories/.
WHO and UNICEF. The sanitation and drinking-water ladders, 2014b. URL http://www.wssinfo.
org/definitions-methods/watsan-ladder/.
WHO and UNICEF. Improved and unimproved water and sanitation facilities, 2014c. URL http:
//www.wssinfo.org/definitions-methods/watsan-categories/. Accessed 6/6/2014.
A. Xuan, T. Preston, and F. Dolberg. The introduction of low-cost polyethylene tube biodigesters on
small scale farms in vietnam. Research for Rural Development, 9(2):27–35, 1997.
A. Zu. Arti biodigester, 2005. URL http://www.completebiogas.com/B_ARTI.html.
Appendix A
Project Timeline
Table A.1: Project Review Gates
Review Gate Task completed up to review gate
Task to commence
after review gate
Review Gate 1:
Research
All group members have a full
understanding of the workings of a
biodigesters as well as the design
requirements of the system.
Design of system.
Review Gate 2:
Whole System
Design
All engineering drawings have been
completed for each subsystem and the
system assembly.
Construction of the
prototype.
Review Gate 3:
Prototype
Prototype is constructed and has received
the necessary professional approval.
Testing of system.
Review Gate 4:
Testing
Sufficient data is collected to provide a
reliable conclusion for the performance of
the design.
Completion of
deliverables.
109
APPENDIX A. PROJECT TIMELINE 110
Table A.2: Major Milestones, Review Gates and Due Dates
Item Due Date
Review Gate 1 03/03
Project Charter 01/04
Progress Report 1 2/05
Review Gate 2 20/05
Progress Report 2 23/05
Preliminary Report 06/06
Project Management Plan 06/06
Review Gate 3 06/06
Progress Report 3 15/08
Seminar Abstract 29/08
Progress Report 4 12/09
Testing completion 19/10
Poster 21/10
Final Report 24/10
Project Completion Report 07/11
APPENDIXA.PROJECTTIMELINE111
Figure A.1: Project Gantt Chart
APPENDIXA.PROJECTTIMELINE112
Figure A.2: Project Gantt Chart continued
APPENDIXA.PROJECTTIMELINE113
Figure A.3: Project Gantt Chart continued
Appendix B
CAD Drawings
A Computer Aided Design (CAD) model of the system was created using Autodesk Inventor. The
overall model is shown in Figure B.1. Note, the gas collection membrane has been omited for clarity.
All drawings were created using Autodesk Inventor, and are presented in the following pages.
Figure B.1: Overall CAD model of prototype
114
Date:
Drawn By:
Part/Assembly:
Projection:
Project:
Sheet:
05-Aug-2014
James Bass
Overall Assembly
Biodigester Toilet2095.00
2520.00
570.00
1348.00
1 of 2
PARTS LIST
DESCRIPTIONPART NUMBERQTYITEM
First Tank11
Second Tank12
50mm PVC ball valve23
300mm length50mm dia PVC pipe14
25mm dia ball valve26
100mm length25mm dia PE blueline pipe27
25mm dia 90deg bend28
25mm dia PE T-piece19
55mm length25mm dia blueline PE pipe110
1355mm length25mm blueline PE pipe111
Sheet:
Projection:
Project:
Part/Assembly:
Drawn By:
Date:
Iso
05-Aug-2014
James Bass
Overall Assembly
Biodigester Toilet
2 of 2
1
2
11
8 9
8
6
NOTE: Gas collection bladder and framework not shown
Date:
Drawn By:
Part/Assembly:
Projection:
Project:
Sheet:
05-Aug-2014
James Bass
First Tank 1 of 2
Biodigester Toilet
760.00100.00
1200.00
1950.00
265.00
150.00
490.00
170.00
PARTS LIST
DESCRIPTIONPART NUMBERQTYITEM
Inlet Assembly13
First Tank Basic14
50mm tank flange19
Outlet Assembly110
First Tank Lid111
Sheet:
Projection:
Project:
Part/Assembly:
Drawn By:
Date:
Iso
9
3
4
05-Aug-2014 Biodigester Toilet
James Bass
First Tank 2 of 2
10
11
Date:
Drawn By:
Part/Assembly:
Projection:
Project:
Sheet:
05-Aug-2014
James Bass
Biodigester Toilet
Second Tank 1 of 2
1900.00
934.00
900.00
760.00100.00
265.00
PARTS LIST
DESCRIPTIONPART NUMBERQTYITEM
Second Tank Basic11
50mm tank flange12
Outlet assembly14
Second Tank Lid15
Sheet:
Projection:
Project:
Part/Assembly:
Drawn By:
Date:
Iso
05-Aug-2014 Biodigester Toilet
James Bass
Second Tank 2 of 2
2
1
4
5
PARTS LIST
DESCRIPTIONPART NUMBERQTYITEM
90mm 90deg PVC bend21
1500mm length90mm dia PVC Pipe13
90mm dia pipe short14
Date:
Drawn By:
Part/Assembly:
Projection:
Project:
Sheet:
1340.00
90.00
90.00
1200.00
150.00
11
3
4
05-Aug-2014
James Bass
Inlet Assembly
Biodigester Toilet
1 of 1
Date:
Drawn By:
Part/Assembly:
Projection:
Project:
Sheet:
18-Oct-2014 Biodigester Toilet
James Bass
First Tank Lid 1 of 2
490.00
480.00
490.00
480.00 7.00
6.00
5.00 16X
125.0090.00
PARTS LIST
DESCRIPTIONPART NUMBERQTYITEM
7mm ThickExterior Plywood11
25mm Tank Flange12
6mm ThickNeoprene Rubber13
Sheet:
Projection:
Project:
Part/Assembly:
Drawn By:
Date:
Iso
1
3
2 18 Oct 2014
James Bass
Biodigester Toilet
First Tank Lid 2 of 2
Date:
Drawn By:
Part/Assembly:
Projection:
Project:
Sheet:
18 Oct 2014
James Bass
Biodigester Toilet
Second Tank Lid 1 of 2
250.00
190.00
185.00
7.00
6.00
25.00
5.00 8X
5.00 8X
PARTS LIST
DESCRIPTIONPART NUMBERQTYITEM
PE 185mm dia11
25mm Tank Flange12
7mm ThickPlywood Ring13
6mm ThickNeoprene Seal14
Sheet:
Projection:
Project:
Part/Assembly:
Drawn By:
Date:
Iso
1
3
4
2
18 Oct 2014 Biodigester Toilet
James Bass
Second Tank Lid 2 of 2
Appendix C
Australian Standards for Polyethylene
Pipes
Relevant Standards regarding polyethylene pipes for pressure applications. Taken from AS/NZS 4130:
Polyethylene (PE) Pipes for Pressure Applications (Australian Standards 2009).
126
APPENDIX C. AUSTRALIAN STANDARDS FOR POLYETHYLENE PIPES 127
APPENDIX C. AUSTRALIAN STANDARDS FOR POLYETHYLENE PIPES 128
APPENDIX C. AUSTRALIAN STANDARDS FOR POLYETHYLENE PIPES 129
Appendix D
Australian Standard Gas System
Design Factors
Relevant standards regarding gas distribution design factors. Taken from AS 4645-2005 Gas distribu-
tion network management (Australian Standards 2005).
130
APPENDIX D. AUSTRALIAN STANDARD GAS SYSTEM DESIGN FACTORS 131
Appendix E
Stirrer CAD Drawings
A Computer Aided Design (CAD) model of the stirrer was created using Autodesk Inventor. The
overall model is shown in Figure E.1. All drawings were created using Autodesk Inventor, and are
presented in the following pages.
Figure E.1: Overall CAD model of stirrer
132
1
1
2
2
3
3
4
4
5
5
6
6
A A
B B
C C
D D
17/08/2014
DESIGNED
CHECKED
APPROVED
DATE
SHEET
A3
REVISION
1
1 of 1
PART NUMBER
TITLE
1587-010101
Lid
THIRD ANGLE PROJECTION
PROJECT
1587 - The Design and Build of a Biodigester
SCALEMASS
DO NOT SCALE
DIMENSIONS IN
MILIMETERS
DRAWING STANDARD
AS1100
MATERIAL QTY
N/A
DRAWN
Charlie Savory
DATE
DATE
DATE
Charlie Savory
10/08/2014
-Plywood, Sheathing 1
UNLESS STATED OTHERWISE
GENERAL TOLERANCE:
LINEAR:
ANGULAR:
0.3
1
REMOVE BURRS & SHARP EDGES
ALL OVER.3.2
NOTE:
1. MAKE FROM: PLYWOOD 7mm. Bunnings.
108 Railway Terrace, Mile End SA 5031.
2. ALTER A SHOWN.
40
9 M8 (8.98
9.00
)2
EQUISPACED @28 PCD
400
400
7.00
1
1
2
2
3
3
4
4
5
5
6
6
A A
B B
C C
D D
17/08/2014
DESIGNED
CHECKED
APPROVED
DATE
SHEET
A3
REVISION
1
1 of 1
PART NUMBER
TITLE
1587-010102
Shaft
THIRD ANGLE PROJECTION
PROJECT
1587 - The Design and Build of a Biodigester
SCALEMASS
DO NOT SCALE
DIMENSIONS IN
MILIMETERS
DRAWING STANDARD
AS1100
MATERIAL QTY
N/A
DRAWN
Charlie Savory
DATE
DATE
DATE
Charlie Savory
10/08/2014
-Steel, Carbon 1
UNLESS STATED OTHERWISE
GENERAL TOLERANCE:
LINEAR:
ANGULAR:
0.3
1
REMOVE BURRS & SHARP EDGES
ALL OVER.3.2
NOTES:
1. MAKE FROM: 25 NB - SCH 80 (4.55mm wall) Extra Strong Water Pipe
SA Steel Works. 26 Athol St, Athol Park SA 5012.
2. ALTER AS SHOWN.
33.4( )
24.3( )
31.75 m6 (31.759
31.775
)
1800
1900
NOTE: Press Fit to Shortlube Bushings
1
1
2
2
3
3
4
4
5
5
6
6
A A
B B
C C
D D
19/08/2014
DESIGNED
CHECKED
APPROVED
DATE
SHEET
A3
REVISION
1
1 of 1
PART NUMBER
TITLE
1587-010103
Seal
THIRD ANGLE PROJECTION
PROJECT
1587 - The Design and Build of a Biodigester
SCALEMASS
DO NOT SCALE
DIMENSIONS IN
MILIMETERS
DRAWING STANDARD
AS1100
MATERIAL QTY
N/A
DRAWN
Charlie Savory
DATE
DATE
DATE
Charlie Savory
10/08/2014
-Rubber, Silicone 1
UNLESS STATED OTHERWISE
GENERAL TOLERANCE:
LINEAR:
ANGULAR:
0.3
1
REMOVE BURRS & SHARP EDGES
ALL OVER.3.2
6.00
NOTES:
1. MAKE FROM: 5mm Red Silicone Sheet
Fitch Rubber. 2 George Street, Hindmarsh SA 5007. Part Number: MAT5.0SIL
2. ALTER AS SHOWN
80
31.75
9.00 M8 (8.98
9.00
)
EQUISPACED @28 PCD
A-A ( 1 : 1 )
A
A
1
1
2
2
3
3
4
4
5
5
6
6
A A
B B
C C
D D
17/08/2014
DESIGNED
CHECKED
APPROVED
DATE
SHEET
A3
REVISION
1
1 of 1
PART NUMBER
TITLE
1587-010104
Housing
THIRD ANGLE PROJECTION
PROJECT
Biodigester Stirrer
SCALEMASS
DO NOT SCALE
DIMENSIONS IN
MILIMETERS
DRAWING STANDARD
AS1100
MATERIAL QTY
N/A
DRAWN
Charlie Savory
DATE
DATE
DATE
Charlie Savory
10/08/2014
-AL ALLOY, SERIES 5000-6000 1
UNLESS STATED OTHERWISE
GENERAL TOLERANCE:
LINEAR:
ANGULAR:
0.3
1
REMOVE BURRS & SHARP EDGES
ALL OVER.3.2
55
9.00 M8 (8.98
9.00
)2
EQUISPACED @28 PCD
76 (stock)
2 45
38.10 H11 (38.10
38.26
)
1
1
2
2
3
3
4
4
5
5
6
6
A A
B B
C C
D D
17/08/2014
DESIGNED
CHECKED
APPROVED
DATE
SHEET
A3
REVISION
1
1 of 1
PART NUMBER
TITLE
1587-010107
Metal Plate( 2)
THIRD ANGLE PROJECTION
PROJECT
1587 - The Design and Build of a Biodigester
SCALEMASS
DO NOT SCALE
DIMENSIONS IN
MILIMETERS
DRAWING STANDARD
AS1100
MATERIAL QTY
N/A
DRAWN
Charlie Savory
DATE
DATE
DATE
10/08/2014
STEEL, LOW CARBON
UNLESS STATED OTHERWISE
GENERAL TOLERANCE:
LINEAR:
ANGULAR:
REMOVE BURRS & SHARP EDGES
ALL OVER.
7 (Stock)
9.00 M8 (8.98
9.00
)
8.5
100
50
1
1
2
2
3
3
4
4
5
5
6
6
A A
B B
C C
D D
30/09/2014
DESIGNED
CHECKED
APPROVED
DATE
SHEET
A3
REVISION
1
1 of 1
PART NUMBER
TITLE
1587-010303
L Joint
THIRD ANGLE PROJECTION
PROJECT
Biodigester Stirrer (Project #1587)
SCALEMASS
DO NOT SCALE
DIMENSIONS IN
MILIMETERS
DRAWING STANDARD
AS1100
MATERIAL QTY
N/A
DRAWN
Charlie Savory
DATE
DATE
DATE
Charlie Savory
1/08/2014
Stainless Steel
UNLESS STATED OTHERWISE
GENERAL TOLERANCE:
LINEAR:
ANGULAR:
REMOVE BURRS & SHARP EDGES
ALL OVER.
25
80
88
104
24
61
8
8.00
1
1
2
2
3
3
4
4
5
5
6
6
A A
B B
C C
D D
30/09/2014
DESIGNED
CHECKED
APPROVED
DATE
SHEET
A3
REVISION
1
1 of 1
PART NUMBER
TITLE
1587-010304
Bar
THIRD ANGLE PROJECTION
PROJECT
Biodigester Stirrer (Project #1587)
SCALEMASS
DO NOT SCALE
DIMENSIONS IN
MILIMETERS
DRAWING STANDARD
AS1100
MATERIAL QTY
N/A
DRAWN
Charlie Savory
DATE
DATE
DATE
Charlie Savory
1/08/2014
Steel
UNLESS STATED OTHERWISE
GENERAL TOLERANCE:
LINEAR:
ANGULAR:
REMOVE BURRS & SHARP EDGES
ALL OVER.
310
30
30
14
53
5
5
12.5
15
106
1
1
2
2
3
3
4
4
5
5
6
6
A A
B B
C C
D D
30/09/2014
DESIGNED
CHECKED
APPROVED
DATE
SHEET
A3
REVISION
1
1 of 1
PART NUMBER
TITLE
1587-010302
Large Aluminium Paddle
THIRD ANGLE PROJECTION
PROJECT
Biodigester Stirrer (Project #1587)
SCALEMASS
DO NOT SCALE
DIMENSIONS IN
MILIMETERS
DRAWING STANDARD
AS1100
MATERIAL QTY
N/A
DRAWN
Charlie Savory
DATE
DATE
DATE
Charlie Savory
1/08/2014
Aluminum 6061
UNLESS STATED OTHERWISE
GENERAL TOLERANCE:
LINEAR:
ANGULAR:
REMOVE BURRS & SHARP EDGES
ALL OVER.
425
5
300
30
72
249
281
18
20
1
1
2
2
3
3
4
4
5
5
6
6
A A
B B
C C
D D
30/09/2014
DESIGNED
CHECKED
APPROVED
DATE
SHEET
A3
REVISION
1
1 of 1
PART NUMBER
TITLE
1587-010301
Small Aluminium Paddle
THIRD ANGLE PROJECTION
PROJECT
Biodigester Stirrer (Project #1587)
SCALEMASS
DO NOT SCALE
DIMENSIONS IN
MILIMETERS
DRAWING STANDARD
AS1100
MATERIAL QTY
N/A
DRAWN
Charlie Savory
DATE
DATE
DATE
Charlie Savory
1/08/2014
Aluminum 6061
UNLESS STATED OTHERWISE
GENERAL TOLERANCE:
LINEAR:
ANGULAR:
REMOVE BURRS & SHARP EDGES
ALL OVER.
5
300
190
108
20
20
30
72
249
281
B ( 0.2 : 1 )
C-C ( 0.2 : 1 )
PARTS LIST
QTYDESCRIPTIONPART NUMBERITEM
1Lid1587-0101011
1Shaft1587-0101022
1Seal1587-0101033
1Housing1587-0101044
1Bushing (hidden). Shortlube. Pt
Num: C4048-2
1587-0101055
1Flange Bushing. Shortlube. Pt Num:
C4048-1
1587-0101066
2Metal Plate1587-0101077
6L Bracket1587-0101088
6Bar1587-0101099
1Paddle (large)1587-01011010
2Paddle (small)1587-01011111
B
C
1
1
2
2
3
3
4
4
5
5
6
6
A A
B B
C C
D D
3/09/2014
DESIGNED
CHECKED
APPROVED
DATE
SHEET
A3
REVISION
1
1 of 1
PART NUMBER
TITLE
010100
Stirrer Minus Handle
THIRD ANGLE PROJECTION
PROJECT
Biodigester Stirrer (Project #1587)
SCALEMASS
DO NOT SCALE
DIMENSIONS IN
MILIMETERS
DRAWING STANDARD
AS1100
MATERIAL QTY
N/A
DRAWN
Charlie Savory
DATE
DATE
DATE
Charlie Savory
1/08/2014
UNLESS STATED OTHERWISE
GENERAL TOLERANCE:
LINEAR:
ANGULAR:
REMOVE BURRS & SHARP EDGES
ALL OVER.
1
2
3
4
5
6
7
8
9
10
11
1
1
2
2
3
3
4
4
5
5
6
6
A A
B B
C C
D D
19/08/2014
DESIGNED
CHECKED
APPROVED
DATE
SHEET
A3
REVISION
1
1 of 1
PART NUMBER
TITLE
1587-010201
Handle Arm
THIRD ANGLE PROJECTION
PROJECT
1587 - The Design and Build of a Biodigester
SCALEMASS
DO NOT SCALE
DIMENSIONS IN
MILIMETERS
DRAWING STANDARD
AS1100
MATERIAL QTY
N/A
DRAWN
Charlie Savory
DATE
DATE
DATE
Charlie Savory
10/08/2014
STEEL, LOW CARBON
UNLESS STATED OTHERWISE
GENERAL TOLERANCE:
LINEAR:
ANGULAR:
REMOVE BURRS & SHARP EDGES
ALL OVER.
5(stock)
400
60
1
1
2
2
3
3
4
4
5
5
6
6
A A
B B
C C
D D
3/09/2014
DESIGNED
CHECKED
APPROVED
DATE
SHEET
A3
REVISION
1
1 of 1
PART NUMBER
TITLE
1587-010202
Handle Sleeve
THIRD ANGLE PROJECTION
PROJECT
1587 - The Design and Build of a Biodigester
SCALEMASS
DO NOT SCALE
DIMENSIONS IN
MILIMETERS
DRAWING STANDARD
AS1100
MATERIAL QTY
N/A
DRAWN
Charlie Savory
DATE
DATE
DATE
Charlie Savory
25/08/2014
STEEL, LOW CARBON
UNLESS STATED OTHERWISE
GENERAL TOLERANCE:
LINEAR:
ANGULAR:
REMOVE BURRS & SHARP EDGES
ALL OVER.
41
32
30
30
6 M6
17
NOTE: Threaded hole to fix shaft to handle.
1
1
2
2
3
3
4
4
5
5
6
6
A A
B B
C C
D D
19/08/2014
DESIGNED
CHECKED
APPROVED
DATE
SHEET
A3
REVISION
1
1 of 1
PART NUMBER
TITLE
1587-010203
Handle Bar
THIRD ANGLE PROJECTION
PROJECT
1587 - The Design and Build of a Biodigester
SCALEMASS
DO NOT SCALE
DIMENSIONS IN
MILIMETERS
DRAWING STANDARD
AS1100
MATERIAL QTY
N/A
DRAWN
Charlie Savory
DATE
DATE
DATE
Charlie Savory
10/08/2014
STEEL, LOW CARBON
UNLESS STATED OTHERWISE
GENERAL TOLERANCE:
LINEAR:
ANGULAR:
REMOVE BURRS & SHARP EDGES
ALL OVER.
30(stock)
120
PARTS LIST
QTYDESCRIPTIONPART NUMBERITEM
1Handle Arm1587-0102011
1Handle Sleeve1587-0102022
1Handle Bar1587-0102033
1
1
2
2
3
3
4
4
5
5
6
6
A A
B B
C C
D D
3/09/2014
DESIGNED
CHECKED
APPROVED
DATE
SHEET
A3
REVISION
1
1 of 1
PART NUMBER
TITLE
010200
Handle Assembly
THIRD ANGLE PROJECTION
PROJECT
1587 - The Design and Build of a Biodigester
SCALEMASS
DO NOT SCALE
DIMENSIONS IN
MILIMETERS
DRAWING STANDARD
AS1100
MATERIAL QTY
N/A
DRAWN
Charlie Savory
DATE
DATE
DATE
Charlie Savory
31/08/2014
Steel, Carbon
UNLESS STATED OTHERWISE
GENERAL TOLERANCE:
LINEAR:
ANGULAR:
REMOVE BURRS & SHARP EDGES
ALL OVER.
NOTES.
1. ALL WELDING TO COMPLY WITH AS/NZS 1554.1-2004 -
STRUCTURAL STEEL WELDING -
WELDING OF STEEL STRUCTURES.
2. VISUAL INSPECTION OF WELD ONLY.
25
35
30
7
7
B ( 0.25 : 1 )
B
PARTS LIST
QTYPART NUMBERITEM
1Stirrer Sub-Assembly1
1Handle Sub-Assembly2
1
1
2
2
3
3
4
4
5
5
6
6
A A
B B
C C
D D
30/09/2014
DESIGNED
CHECKED
APPROVED
DATE
SHEET
A3
REVISION
1
1 of 1
PART NUMBER
TITLE
100000
Whole Stirrer Assembly
THIRD ANGLE PROJECTION
PROJECT
Biodigester Stirrer (Project #1587)
SCALEMASS
DO NOT SCALE
DIMENSIONS IN
MILIMETERS
DRAWING STANDARD
AS1100
MATERIAL QTY
N/A
DRAWN
Charlie Savory
DATE
DATE
DATE
Charlie Savory
1/08/2014
UNLESS STATED OTHERWISE
GENERAL TOLERANCE:
LINEAR:
ANGULAR:
REMOVE BURRS & SHARP EDGES
ALL OVER.
1
2
Appendix F
Risk Assessment
Risk
Type Specific Risk
Likelihood Consequence Risk Level Accept/Reject Prevention/Reduction
Risks To
Project
Success
Cannot Source Feedstock:
Without feedstock prototype
testing is impossible
D 4 Medium R
All team members to contact
potential suppliers immediately
Feedstock Quality: Feedstock
may not contain adequate volatile
solids for the production of biogas
E 2 Low A
148
APPENDIXF.RISKASSESSMENT149
Anaerobic Digestion Does Not
Occur: Bacteria required for
anaerobic digestion do not form to
useful levels, prohibiting the
production of biogas
D 4 Medium R
Initiate anaerobic digestion process
in smaller external tanks to
guarantee the digestion process is
occurring
Climate: The anaerobic digestion
process may be retarded by
Adelaide’s winter climate
A 3 High R
Install insulation around the
biodigester structure to raise the
internal temperature of the system
Scum Formation: Blockages
occur due to foam and scum
formation, caused by departure of
pH from neutral levels
C 2 Medium R
Macerate feedstock prior to
entering the system, ensure
pipework and fittings are of a
suitable diameter, and prevent
foreign materials from entering the
system by using covers on all inlets
Fire or Explosion: Stored
flammable gas creates a risk of fire
or explosion, causing irreparable
damage
E 5 Medium R
The system will be stored in a well
ventilated area. Warning signs will
be installed to prevent the use of
naked flames and smoking in the
vicinity. The gas storage membrane
will be placed in a location to
prevent unauthorised access
APPENDIXF.RISKASSESSMENT150
Gas Leaks: Cause a loss of biogas
effecting the results of testing
C 2 Medium R
Continuous checking of the system
for leaks using detergent and
water. Correct gas fittings, and
joining methods will also be used
Sludge Leaks: Causes feedstock
to be lost from the system,
retarding gas production
E 2 Low A
Damage to Tanks: Tanks are a
critical and expensive design
components, damage could occur in
transport, construction and testing
D 3 Medium R
Extreme care will be taken during
transportation, construction and
testing. Suitable tools and methods
will be used during construction
after extensive planning
Damage to Plumbing Fixtures:
May be damaged during
construction
E 2 Low A
Part Sourcing: Lead-times and
part availability could cause delays
in construction and testing
C 2 Medium R
Local suppliers used as much as
possible. Parts with long lead-times
will be ordered as soon as possible
Sponsorship: Required
sponsorship is not obtained
D 3 Medium R
A sponsorship prospectus is to be
produced. Potential sponsors will
be continually contacted for the
duration of the project
APPENDIXF.RISKASSESSMENT151
Google Drive Fails: Google
Drive is used to store and share
project files. If this application
failed files would be lost
E 4 High R
Periodic backups up of the Google
Drive folder will be performed by
all team members
No Available Location for
Testing: Testing will be
impossible without a suitable
location to house the prototype
E 5 High R
Attain necessary approvals and
safety documentation to satisfy
land owners. Continuously contact
potential stakeholders until a
location is found
Team Member Incapacitated:
Illness, injury or unforeseen
circumstances may prevent a team
member from contributing to the
project
D 2 Low A
Risks To
Personal
Safety
Disease Contraction from
Feedstock: Faeces used as
feedstock may contain harmful
pathogens presenting risk of disease
E 4 Medium R
Use of personal protective
equipment, biological waste
handling training will be
undertaken, and a standard
operating procedure will be
developed to minimise user
exposure to feedstock
APPENDIXF.RISKASSESSMENT152
Fire and Explosion: Flammable
gas is stored within the system
posing a risk of fire and explosion
to local occupants
E 5 High R
The system will be stored in a well
ventilated area. Warning signs will
be installed to prevent the use of
naked flames and smoking in the
vicinity. The gas storage membrane
will be placed in a location to
prevent unauthorised access
Asphyxiation: Biogas contains a
mixture of gases that displace air,
creating a risk of asphyxiation to
local occupants
E 3 Medium R
Store system in a well ventilated
area to prevent accumulation of gas
Construction: Lifting heavy
objects and the use of power and
cutting tools during prototype
construction poses a risk of injury.
D 3 Medium R
Ensure all team members wear
PPE, are trained in the use of all
tools, and all power tools are
electrically tested and tagged.
Correct heavy lifting procedures
will be followed. A first aid kit
must always be on site
Appendix G
Project Cost Matrix
153
INVENTORY & BUDGET
Inventory
Item Date Purchased Supplier Quantity Cost Discount Total Cost Savings Type
Aire Toilet Bowl 25-07-2014 Caroma 1 236.30 236.30 0.00 236.30 Toilet
Aire Cistern + Seat 25-07-2014 Caroma 1 212.10 212.10 0.00 212.10 Toilet
Supel Gas Bags 01-09-2014 Mike Hatch 4 16.00 16.00 0.00 64.00 Testing
Litmus Universal Indicator Test Strips x 80 16-09-2014 eBay 1 2.48 2.48 0.00 Testing
Gas Storage Bag 05-08-2014 Puxin 1 175.00 175.00 0.00 System
1200L Water Tank 25-06-2014 Mitre10 2 400.00 200.00 400.00 400.00 System
Plumbing Ball Valve 28-08-2014 Mitre10 1 36.30 36.30 0.00 System
Tank Flange 28-08-2014 Mitre10 2 15.00 30.00 0.00 System
Nipple Hex 25mm 06-08-2014 Mitre10 1 2.25 2.25 0.00 System
Tank Fitting Female 25mm 06-08-2014 Mitre10 1 12.95 12.95 0.00 System
Ball Valve -25mm ART 220PP LH 06-08-2014 Mitre10 1 24.95 24.95 0.00 System
Elbow Poly Met Thread 25x1" ALPRENE 06-08-2014 Mitre10 1 6.95 6.95 0.00 System
Bend DWV PLN M F 100mm x 88DEG 14-08-2014 Mitre10 1 9.50 5.60 3.90 5.60 System
Ball Valve - 15mm ART 220PP LH 14-08-2014 Mitre10 3 12.95 6.72 18.69 20.16 System
Tank Fitting Female 15mm 14-08-2014 Mitre10 2 10.50 5.18 10.64 10.36 System
Tee Metric Female 20mmx3/4" ALPRENE 14-08-2014 Mitre10 1 9.95 5.16 4.79 5.16 System
Nipple Hex Reducing 20x15mm 14-08-2014 Mitre10 4 1.99 1.29 2.80 5.16 System
Connector End F/A 20 X3/4 ALPRENE 14-08-2014 Mitre10 1 5.95 3.45 2.50 3.45 System
Elbow Poly Met Thread 20x20mm ALPRENE 14-08-2014 Mitre10 1 6.50 3.28 3.22 3.28 System
Elbow Poly 20mm ALPRENE 14-08-2014 Mitre10 1 8.95 4.53 4.42 4.53 System
Socket Reducer 100mmx90mm 14-08-2014 Mitre10 1 9.99 5.85 4.14 5.85 System
Pipe 20mm PE100 PN 12 5-25M BLUE STRIPE (0.16m) 14-08-2014 Mitre10 0.16 57.99 34.43 3.77 5.51 System
Suction Hose 50mm Grey Per Metre 14-08-2014 Mitre10 1 16.92 16.92 0.00 System
Director 50mm (Lump End) 1068 14-08-2014 Mitre10 2 7.13 14.27 0.00 System
Pipe PVC SW 90MM P/M 28-08-2014 Mitre10 1.5 3.99 1.63 3.54 2.45 System
Cap Push On DMW 100mm 28-08-2014 Mitre10 1 4.50 2.06 2.44 2.06 System
Bend Stormwater FF 90mm x 90deg 28-08-2014 Mitre10 1 2.25 1.16 1.09 1.16 System
Solvent Cement Type N Blue 125ML 28-08-2014 Mitre10 1 4.99 2.44 2.55 2.44 System
Brush Paint White 25mm 28-08-2014 Mitre10 1 1.25 0.84 0.41 0.84 System
Priming Fluid Red 28-08-2014 Mitre10 1 4.99 2.23 2.76 2.23 System
Silicone Roof Trans 300g BUY RIGHT 28-08-2014 Mitre10 1 4.99 0.88 4.11 0.88 System
Screw L/THRD CS SS 8GX30 PK8 28-08-2014 Mitre10 2 4.25 2.73 3.04 5.46 System
Socket Hex Brass 3/4 81514 01-09-2014 Mitre10 1 2.95 1.30 1.65 1.30 System
Nipple Brass ALL THRD 3/4X6 01-09-2014 Mitre10 2 11.95 6.30 11.30 12.60 System
Plumbing Ball Valve 01-09-2014 Mitre10 1 57.95 21.65 36.30 21.65 System
Bib Cock 20mm LH 01-09-2014 Mitre10 2 23.95 10.82 26.26 21.64 System
Tape Teflon White 12x0.075mmx10m 01-09-2014 Mitre10 1 0.99 0.71 0.28 0.71 System
Tube Vinyl Clear 25mmx25m Coil Neta 30-09-2014 Mitre10 0.5 6.50 0.51 3.00 0.26 System
Neoprene Rubber 1200 x 4.5mm 28-08-2014 Fitch the Rubber Man 1 133.76 133.76 0.00 System
Plywood 6mm 900 x 600 04-09-2014 Mitre10 1 14.99 2.25 12.74 2.25 System
Screws (Pack of 8) 04-09-2014 Mitre10 2 4.25 0.85 6.80 1.70 System
Silicone Rubber 1200 x 6mm 27-08-2014 Fitch the Rubber Man 1 18.00 18.00 0.00 Stirrer
Seamless Pipe Schedule 80 ASTM A106 27-08-2014 Metalcorp 2 15.38 30.76 0.00 Stirrer
Leaf strainer cover 400 or 500mm 27-08-2014 Maxiplas 2 11.00 22.00 0.00 Stirrer
Bushing Sleeve Sintere C4048-2 03-09-2014 CBC Motion 1 18.29 18.29 0.00 Stirrer
Bushing Sleeve Sintere F4048-1 03-09-2014 CBC Motion 1 18.60 18.60 0.00 Stirrer
Ply Wood 03-09-2014 Bunnings Mile End 1 9.43 9.43 0.00 Stirrer
Leaf strainer cover 400 or 500mm 03-09-2014 Maxiplas -1 11.00 -11.00 0.00 Stirrer
Hose with Gun 15mm 30-09-2014 Mitre10 (Domain) 1 5.80 5.80 0.00 Operation
Tape Teflon Yellow Gas 12mmx10m BOSTON 06-08-2014 Mitre10 1 3.95 3.95 0.00 Operation
Tape Teflon Yellow Gas 12mmx10m BOSTON 14-08-2014 Mitre10 1 3.95 2.50 1.45 2.50 Operation
Tape Teflon Pink Gas 12mmx6m BOSTON 01-09-2014 Mitre10 1 3.95 2.35 1.60 2.35 Operation
Tape Teflon Yellow Gas 12mmx10m BOSTON 09-09-2014 Mitre10 1 3.95 0.20 3.75 0.20 Operation
Funnel Black Plastic w/strainer 17cm 30-09-2014 Mitre10 1 5.99 0.60 5.39 0.60 Operation
Tape Teflon White 12x0.075mmx10m 30-09-2014 Mitre10 1 0.99 0.10 0.89 0.10 Operation
Plastic Bucket 10L 11-09-2014 Mitre10 2 1.50 3.00 0.00 Operation
Disposable Gloves 11-09-2014 Mitre10 1 5.99 0.60 5.39 0.60 Operation
Funnel 10" 28-08-2014 Paramount Browns 1 9.95 9.95 0.00 Operation
Bioballs (150) 04-08-2014 Hahndorf Aquarium 1 35.01 35.01 0.00 Operation
Tape Duct Silver 48mm X 30m 09-10-2014 Mitre10 1 4.50 0.34 4.16 0.34 Operation
Glove Handy Disposable Pk24 09-10-2014 Mitre10 1 5.99 0.45 5.54 0.45 Operation
Coke Drum - 76L Paramount Browns 2 6.00 12.00 0.00 Miscellaneous
Coke Drum - 76L 09-09-2014 Paramount Browns 4 7.50 30.00 0.00 Miscellaneous
Coke Drum - 76L 28-08-2014 Paramount Browns 2 7.50 15.00 0.00 Miscellaneous
Fortecon 200um 2m Wide Per Metre 09-09-2014 Mitre10 1 3.50 0.52 2.98 0.52 Miscellaneous
Tape Gaffa HD Gorilla 48mm x 11m 09-09-2014 Mitre10 1 10.50 1.05 9.45 1.05 Miscellaneous
Silicone Roof Trans 300g BUY RIGHT 09-09-2014 Mitre10 1 4.99 4.99 0.00 Miscellaneous
Valve Greenback 13mm 09-09-2014 Mitre10 1 3.99 0.80 3.19 0.80 Miscellaneous
Joiner 13mm 09-09-2014 Mitre10 4 0.40 0.06 1.36 0.24 Miscellaneous
Adaptor Poly Tee 09-09-2014 Mitre10 3 0.65 0.13 1.56 0.39 Miscellaneous
Polytube 13mm Per Metre 09-09-2014 Mitre10 1 0.70 0.14 0.56 0.14 Miscellaneous
Joiner 13mm 09-09-2014 Mitre10 -4 0.40 -1.60 0.00 Miscellaneous
Adaptor Poly Tee 09-09-2014 Mitre10 -1 0.65 -0.65 0.00 Miscellaneous
Tank Fitting Black 15mm 09-09-2014 Mitre10 3 6.95 20.85 0.00 Miscellaneous
Total 95.16 1,324.61 1,071.36
Budget
Type
Allocated Budget Adelaide University 5 200.00 1,000.00
Sponsorship Lynair Logistics 1 300.00 300.00
Total 1,300.00
Remaining -24.61
Appendix H
Sponsorship Prospectus
155
A Biodigester Toilet
For the Developing World
Honours Project Sponsorship Prospectus
The Challenge:
As of 2012, 1.1 billion people still defecate in the open and 2.6 billion people do not have access
to improved sanitation facilities. In many parts of the world, waste from open defecation is likely
to be washed into local rivers, which are generally primary sources for drinking, cooking, cleaning
and other household tasks. Bacterial and viral contamination of water supplies in both rural and
urban environments can result in diseases such as diarrhoea, leading to fatal consequences.
Another problem faced by many regions of low income is access to energy sources for cooking,
lighting, and other basic human needs. In 2004, the number of people worldwide relying on
biomass resources as their primary fuel for cooking was recorded to be just over 2.5 billion. The
practice of burning biomass in such communities has been documented by the Organisation for
Economic Cooperation and Development as one of the most common causes of death and
respiratory health problems. Recent figures show that more than 4 million people die
prematurely from illness as a result of the household air pollution created during cooking with
solid fuels.
The Solution:
A biodigester is designed to produce biogas using anaerobic digestion of human and animal
waste. Depending on the efficiency of the system and quality of feedstock, biodigesters have the
potential to produce a reliable supply of biogas gas that is of a suitable quality to fuel gas stoves
and lamps. By incorporating a toilet into the digester design, we aim to alleviate some of the health
and sanitation problems resulting from open defecation as well as the respiratory health
problems stemming from the inhalation of household air pollution produced by burning biomass.
Who are we?
A group of five motivated University of Adelaide students from the School of Mechanical
Engineering who are passionate about improving sanitation in communities exposed to open
defecation. The project team aims to alleviate challenges faced on a daily basis in the developing
world by designing and building a prototype for future implementation. The well organised and
cohesive team is led by project manager James Bass. As a team, students James, Nishanth Cheruvu,
Natasha Rayan, Charlie Savory and Kieran Sheehan will lead design and assembly of the
biodigester toilet.
The School of Mechanical Engineering provides academic support through school staff and access
to workshop facilities. Project supervisor Dr Cristian Birzer has led many successful projects in
the past including last year’s award-winning low-emission cook stove for the developing world.
How would this project benefit from sponsor contributions?
Because the final product will have humanitarian applications in lower-income countries, our
objective is tominimise costs of the designby integrating recycled items. Sponsorship of any items
pertaining to the project would be much appreciated. The design will consist of:
 Two large cylindrical tanks
 Wooden framework
 Heavy duty polyethylene bags for gas collection
 A flame trap
 A functional toilet system
 PVC Pipes and
 Various fittings.
Subsequent to completion of testing, there will be a supply of hazardous effluent and flammable
methane gas produced as by-products of the digestion process. It is of paramount importance
that these substances are used or discarded in a manner that is safe and does not damage the
natural environment. Support or advice regarding the disposal of such wastes is very welcome.
Finally, any funding towards the project will be put towards sourcing components and services
that aren’t directly obtained through sponsors. Monetary sponsorship is an instrumental
contribution to the success of the project as student project funding through the university is
strictly limited.
What happens once the biodigester toilet is completed?
The prototype will be on display at MechExpo which is a School of Mechanical Engineering final
year project showcasing event. This year marks the 20th annual exhibition and will attract
attention from representatives throughout the engineering industry. Awards will be presented to
standout projects in recognition of student accomplishments. Mechexpo is also a great
educational event for students and teachers because it provides a unique opportunity to
encounter engineering in practice and engage with the engineers of tomorrow. It is very likely
that this event will attract media attention and has been featured in various news programs,
websites and newspapers in the past. The MechExpo will take place on the Wednesday the 29th
and Thursday the 20th of October.
With success of the project, an implementation strategy will be established to promote the
biodigester toilet in developing communities. Should the prototype require further
developments, a future project team may choose to continue the project and make amendments.
How will sponsors be promoted?
Promotion of sponsors will be through print media displayed at our stand during MechExpo.
Contributions towards the project will be acknowledged during the Seminar Presentation and in
the final report. Standout contributions will benefit from further advertisement in the form of
logos displayed on the finished product and other benefits to be discussed on a case by case basis.
Sponsor representatives are invited to attend both the Seminar and MechExpo. Exact dates of the
seminar presentation are yet to be advised.
Appendix I
Project Hours Spent by Individual
Team Members
158
Month Student Time Cost
January Bass, James Cheruvu, Nishanth Rayan, Natasha Savory, Charlie Sheehan, Kieren (hrs) ($)
15 1 1 0 5 0 7 175
16 2 0 0 5 0 7 175
17 [1] 1 1 1 1 1 5 125
18 0 0 0 0 0 0 0
19 1 1 0 0 1 3 75
20 0 1 0 0 0 1 25
21 0 1 0 1 2 4 100
22 2 1 0 2 0 5 125
23 2 2 0 0 2 6 150
24 1 1 1 1 1 5 125
25 4 2 0 0 4 10 250
26 0 0 0 0 0 0 0
27 2 0 0 0 0 2 50
28 0 2 0 2 1 5 125
29 0 2 0 2 0 4 100
30 1 1 1 0 3 6 150
31 1 1 1 1 1 5 125
Month Total 18 17 4 20 16 75 1875
Year to Date 18 17 4 20 16 75 1875
Month Student Time Cost
February Bass, James Cheruvu, Nishanth Rayan, Natasha Savory, Charlie Sheehan, Kieren (hrs) ($)
1 2 0 0 2 0 4 100
2 2 0 0 0 2 4 100
3 0 0 0 2 1 3 75
4 1 3 0 0 1 5 125
5 1 1 1 1 1 5 125
6 1 2 0 0 0 3 75
7 1 1 1 1 1 5 125
8 0 0 0 0 0 0 0
9 0 1 0 0 3 4 100
10 1 1 0 0 0 2 50
11 2 1 0 0 2 5 125
12 2 1 0 2 0 5 125
13 0 3 2 2 1 8 200
14 1 1 1 1 1 5 125
15 0 0 0 0 0 0 0
16 3 0 0 1 1 5 125
17 1 3 0 0 0 4 100
18 0 1 0 2 2 5 125
19 2 1 0 0 1 4 100
20 3 2 0 2 0 7 175
21 2 1 0 2 0 5 125
22 3 0 0 0 3 6 150
23 1 1 0 0 0 2 50
24 1 1 1 1 1 5 125
25 0 3 0 0 0 3 75
26 0 0 0 2 1 3 75
27 1 1 0 1 0 3 75
28 0 1 0 0 0 1 25
Month Total 31 30 6 22 22 111 2775
Year to Date 49 47 10 42 38 186 4650
Month Student Time Cost
March Bass, James Cheruvu, Nishanth Rayan, Natasha Savory, Charlie Sheehan, Kieren (hrs) ($)
1 1 0 0 0 0 1 25
2 1 1 0 2 0 4 100
3 [2] 3 1 4 1 1 10 250
4 2 1 2 0 2 7 175
5 3 1 1 1 1 7 175
6 1 1 3 0 0 5 125
7 1 1 1 1 1 5 125
8 0 1 0 0 0 1 25
9 0 0 0 3 3 6 150
10 0 0 0 2 0 2 50
11 1 1 1 1 1 5 125
12 2 1 3 0 0 6 150
13 2 1 0 0 0 3 75
14 2 1 2 0 1 6 150
15 2 2 0 0 0 4 100
16 0 0 0 2 2 4 100
17 0 1 1 2 0 4 100
18 0 1 2 0 0 3 75
19 [3] 1 1 1 1 1 5 125
20 0 1 3 0 0 4 100
21 1 1 1 1 1 5 125
22 0 0 0 0 0 0 0
23 0 0 0 0 2 2 50
24 4 2 1 3 3 13 325
25 3 1 1 1 1 7 175
26 1 1 3 1 1 7 175
27 0 0 0 0 0 0 0
28 1 1 1 1 1 5 125
29 0 2 0 0 3 5 125
30 3 2 0 0 0 5 125
31 2 2 2 0 0 6 150
Month Total 37 29 33 23 25 147 3675
Year to Date 86 76 43 65 63 333 8325
Month Student Time Cost
April Bass, James Cheruvu, Nishanth Rayan, Natasha Savory, Charlie Sheehan, Kieren (hrs) ($)
1 0 4 2 2 3 11 275
2 0 2 1 3 2 8 200
3 2 2 3 2 1 10 250
4 1 1 1 1 1 5 125
5 3 1 4 4 2 14 350
6 2 2 2 2 0 8 200
7 1 2 1 3 1 8 200
8 1 1 0 1 1 4 100
9 2 1 1 1 2 7 175
10 [4] 1 1 1 1 1 5 125
11 1 3 2 1 1 8 200
12 2 3 3 1 2 11 275
13 1 2 1 3 3 10 250
14 2 3 1 1 1 8 200
15 1 1 2 2 4 10 250
16 0 0 0 3 1 4 100
17 0 0 2 4 2 8 200
18 2 1 4 1 1 9 225
19 4 2 1 3 0 10 250
20 0 2 0 0 0 2 50
21 2 1 2 3 3 11 275
22 1 1 2 1 1 6 150
23 0 0 2 0 3 5 125
24 2 0 2 1 0 5 125
25 2 1 2 2 2 9 225
26 3 2 2 4 0 11 275
27 2 1 1 3 1 8 200
28 3 1 1 1 1 7 175
29 2 3 1 1 2 9 225
30 0 2 1 2 2 7 175
Month Total 43 46 48 57 44 238 5950
Year to Date 129 122 91 122 107 571 14275
Month Student Time Cost
May Bass, James Cheruvu, Nishanth Rayan, Natasha Savory, Charlie Sheehan, Kieren (hrs) ($)
1 0 1 1 1 1 4 100
2 0 2 2 2 2 8 200
3 2 0 3 0 1 6 150
4 1 0 0 1 3 5 125
5 2 0 2 3 0 7 175
6 2 4 4 4 4 18 450
7 1 1 1 1 1 5 125
8 0 0 2 0 1 3 75
9 [5] 0 1 1 1 1 4 100
10 2 2 4 1 2 11 275
11 2 3 1 4 1 11 275
12 0 2 0 3 2 7 175
13 0 1 5 2 3 11 275
14 3 0 1 4 1 9 225
15 3 0 0 1 2 6 150
16 0 2 0 2 3 7 175
17 0 3 2 2 0 7 175
18 2 1 1 3 3 10 250
19 1 0 2 1 2 6 150
20 2 1 4 6 0 13 325
21 1 0 2 8 1 12 300
22 1 1 2 8 1 13 325
23 2 2 2 1 2 9 225
24 1 3 3 2 0 9 225
25 2 4 2 4 3 15 375
26 2 2 6 8 4 22 550
27 3 1 4 2 0 10 250
28 3 2 6 4 2 17 425
29 2 3 2 2 1 10 250
30 2 0 3 3 1 9 225
31 4 2 6 2 2 16 400
Month Total 46 44 74 86 50 300 7500
Year to Date 175 166 165 208 157 871 21775
Month Student Time Cost
June Bass, James Cheruvu, Nishanth Rayan, Natasha Savory, Charlie Sheehan, Kieren (hrs) ($)
1 2 2 3 2 1 10 250
2 3 0 2 1 3 9 225
3 1 1 1 4 3 10 250
4 1 1 1 4 5 12 300
5 4 4 4 4 4 20 500
6 0 5 5 3 3 16 400
7 0 5 3 3 0 11 275
8 2 1 5 1 0 9 225
9 1 4 2 0 5 12 300
10 1 5 5 5 4 20 500
11 2 3 1 3 0 9 225
12 3 0 1 2 1 7 175
13 4 1 3 4 2 14 350
14 1 5 1 1 4 12 300
15 0 1 1 1 4 7 175
16 1 2 4 2 1 10 250
17 0 5 1 5 4 15 375
18 0 5 1 3 5 14 350
19 2 1 5 4 0 12 300
20 3 5 2 2 3 15 375
21 1 3 2 2 4 12 300
22 3 2 3 5 4 17 425
23 1 1 4 0 4 10 250
24 2 0 5 1 1 9 225
25 3 1 4 4 3 15 375
26 0 2 4 3 5 14 350
27 0 0 2 5 2 9 225
28 1 0 4 0 1 6 150
29 2 0 5 5 2 14 350
30 0 3 0 0 4 7 175
Month Total 44 68 84 79 82 357 8925
Year to Date 219 234 249 287 239 1228 30700
Month Student Time Cost
July Bass, James Cheruvu, Nishanth Rayan, Natasha Savory, Charlie Sheehan, Kieren (hrs) ($)
1 0 3 0 1 0 4 100
2 4 1 0 3 5 13 325
3 4 0 0 1 3 8 200
4 3 1 0 2 1 7 175
5 2 2 0 0 4 8 200
6 1 2 2 4 3 12 300
7 5 2 0 3 3 13 325
8 3 2 0 3 5 13 325
9 1 2 2 5 4 14 350
10 4 2 1 1 3 11 275
11 5 4 2 4 1 16 400
12 4 3 4 1 0 12 300
13 0 0 3 3 0 6 150
14 4 3 1 1 4 13 325
15 2 0 0 4 4 10 250
16 1 3 1 1 2 8 200
17 3 2 1 2 3 11 275
18 0 4 0 3 3 10 250
19 5 0 0 0 2 7 175
20 1 3 5 1 1 11 275
21 0 5 5 4 5 19 475
22 2 1 1 4 0 8 200
23 4 2 0 0 2 8 200
24 5 1 0 4 3 13 325
25 1 5 0 5 1 12 300
26 0 0 5 3 4 12 300
27 1 5 3 2 4 15 375
28 5 3 5 0 4 17 425
29 2 3 1 3 2 11 275
30 0 4 0 1 4 9 225
31 2 3 1 0 0 6 150
Month Total 74 71 43 69 80 337 8425
Year to Date 293 305 292 356 319 1565 39125
Month Student Time Cost
August Bass, James Cheruvu, Nishanth Rayan, Natasha Savory, Charlie Sheehan, Kieren (hrs) ($)
1 2 3 5 2 3 15 375
2 2 2 2 3 5 14 350
3 1 4 5 5 1 16 400
4 4 0 4 4 0 12 300
5 0 2 1 4 0 7 175
6 1 0 5 0 5 11 275
7 5 0 3 4 4 16 400
8 2 0 1 0 5 8 200
9 2 5 0 0 3 10 250
10 4 0 3 4 4 15 375
11 1 3 4 4 5 17 425
12 0 1 0 2 0 3 75
13 3 4 0 4 1 12 300
14 5 5 4 2 2 18 450
15 3 2 5 0 3 13 325
16 0 3 3 2 3 11 275
17 4 4 2 4 5 19 475
18 2 5 4 2 3 16 400
19 5 3 2 2 1 13 325
20 3 0 1 2 4 10 250
21 1 5 2 4 4 16 400
22 3 1 4 0 5 13 325
23 3 0 3 3 3 12 300
24 5 0 3 0 5 13 325
25 4 4 1 1 1 11 275
26 1 4 3 1 2 11 275
27 1 1 0 1 0 3 75
28 2 1 1 4 2 10 250
29 2 4 5 5 3 19 475
30 2 4 0 5 2 13 325
31 1 4 1 4 0 10 250
Month Total 74 74 77 78 84 387 9675
Year to Date 367 379 369 434 403 1952 48800
Month Student Time Cost
September Bass, James Cheruvu, Nishanth Rayan, Natasha Savory, Charlie Sheehan, Kieren (hrs) ($)
1 2 0 0 4 4 10 250
2 1 2 5 2 5 15 375
3 1 3 0 5 1 10 250
4 1 3 0 0 5 9 225
5 5 4 2 0 0 11 275
6 1 5 1 4 0 11 275
7 1 5 3 5 4 18 450
8 3 0 5 1 4 13 325
9 1 4 1 4 1 11 275
10 5 3 0 3 5 16 400
11 2 5 2 2 1 12 300
12 5 3 1 3 2 14 350
13 2 5 3 0 3 13 325
14 1 4 2 3 5 15 375
15 4 4 5 0 0 13 325
16 5 4 2 5 5 21 525
17 2 1 3 2 3 11 275
18 5 1 2 0 2 10 250
19 5 2 5 0 5 17 425
20 3 2 2 1 1 9 225
21 1 2 1 1 5 10 250
22 5 1 4 2 1 13 325
23 4 3 0 4 0 11 275
24 5 3 5 2 1 16 400
25 5 3 2 4 4 18 450
26 5 1 2 3 1 12 300
27 4 2 4 3 0 13 325
28 5 2 3 4 4 18 450
29 3 1 1 4 5 14 350
30 4 1 0 1 2 8 200
Month Total 96 79 66 72 79 392 9800
Year to Date 463 458 435 506 482 2344 58600
Month Student Time Cost
October Bass, James Cheruvu, Nishanth Rayan, Natasha Savory, Charlie Sheehan, Kieren (hrs) ($)
1 4 5 2 4 4 19 475
2 5 1 4 1 0 11 275
3 1 5 2 1 4 13 325
4 0 2 5 3 5 15 375
5 4 5 2 5 4 20 500
6 4 4 4 3 0 15 375
7 4 5 3 0 5 17 425
8 5 1 0 4 5 15 375
9 2 4 2 5 1 14 350
10 4 5 1 0 0 10 250
11 0 0 3 0 5 8 200
12 4 1 1 2 0 8 200
13 0 1 5 2 4 12 300
14 4 4 5 0 5 18 450
15 5 3 3 2 5 18 450
16 5 0 3 1 2 11 275
17 5 4 4 5 4 22 550
18 2 1 2 0 2 7 175
19 5 0 2 1 0 8 200
20 3 4 1 4 3 15 375
21 6 5 6 6 6 29 725
22 12 12 12 12 12 60 1500
23 12 12 12 12 12 60 1500
24 4 4 4 4 4 20 500
Month Total 100 88 88 77 92 445 11125
Year to Date 563 546 523 583 574 2789 69725
Appendix J
SupelTM Sampling Bag Data Sheet
165
Appendix K
Picarro Gas Analyser Data Sheet
168
© 2013 PICARRO, INC. · 3105 Patrick Henry Drive Santa Clara, CA 95054 · T 408.962.3900 · E info@picarro.com · W www.picarro.com
PICARRO G2201-i
CRDS Analyzer for Isotopic
Carbon in CO2 and CH4
Simultaneous Insights Into Complex Carbon Source/Sink
Behavior of Two Species with One Analyzer
• World’s only field-deployable analyzer capable of simultaneous δ13C
measurements for both CO2 and CH4
• Less hassle – Less calibration, less maintenance, no consumables
• Endures harsh environments – mountains, oceans, forests, and tundra
• Excellent precision at a fraction of the operating cost of IRMS
• Picarro analyzers are deployed by thousands of researchers,
on all seven continents and in more than 60 countries
Respiration, fermentation. Oxidation, reduction. Source, sink. Carbon dioxide and methane are tightly intertwined in
many biological and geological systems. If you know the behavior of only one of these species, you may only know
half the story. With the new G2201-i, the isotopic carbon ratio in both CO2 and CH4 can be measured at the same
time. This instrument combines the capabilities of Picarro’s two carbon isotope instruments for CO2 and CH4 into a
single instrument to gather the insights that stable isotope ratios offer. With this instrument, researchers can follow the
carbon as it moves from source to sink.
The G2201-i operates in one of three modes: CO2-only mode, CH4-only mode, and combined CO2/CH4 mode. In the
combined mode, the measurement of CO2 and CH4 are interleaved every few seconds to produce a sampling rate
that is faster than the gas turn-over time in the cavity. The analyzer’s combined precision is <0.16‰ for δ13C-CO2 and
<1.15‰ for δ13C-CH4. The simultaneous measurement ability of the G2201-i is a technology unique to Picarro. When
the analyzer is in CO2-only mode or CH4-only mode, the precision improves because more time is devoted to one
molecule. For the CO2-only mode, the δ13C-CO2 precision is <0.12‰, which is similar to the precision of our dedicated
G2131-i δ13C-CO2 analyzer. For the CH4-only mode, the δ13C-CH4 precision is <0.8‰, which is the same precision as
our dedicated G2132-i δ13C-CH4 analyzer.
Methane concentrations vary widely in nature. Atmospheric methane is ~1.8ppm, but methane in the headspace of a
water sample can be 1000ppm. To cover this large concentration range, the analyzer has two CH4-only modes. The
High Precision mode provides the best precision at ambient and near-ambient concentrations of CH4 up to 12ppm,
which is more than 6 times the ambient concentration. The High Range mode provides a dynamic range that goes
from ambient concentration at 1.8ppm to 1000ppm. This allows one to select the best option for a given study.
The G2201-i brings simplicity to research. Its small size and robustness make it easy to transport to the field where
getting immediate results allows researchers to change course on-the-fly to get the most form a critical field
campaign. The G2201-i can be running within minutes out of the box, and can operate for months without user
interaction. In all modes, the analyzer precisely measures CO2, H2O, and CH4 concentration, which allows cross-
influence of these species to be quantified and corrected, as well as eliminating the need for gas drying. Peripherals
such as the Small Sample Isotope Module and the 16-Port Manifold extend the utility of the analyzer. Scientists using
these systems have reported the highest quality data, day in and day out, with fewer calibrations than other spectral
absorption-based instruments.
	
   	
  
© 2013 PICARRO, INC. · 3105 Patrick Henry Drive Santa Clara, CA 95054 · T 408.962.3900 · E info@picarro.com · W www.picarro.com
Performance
Specifications
CO2 Isotope-only mode CH4 Isotope-only mode Simultaneous mode
δ13C Precision (1-σ, 1 Hr window, 5 min. average)δ13C Precision (1-σ, 1 Hr window, 5 min. average)δ13C Precision (1-σ, 1 Hr window, 5 min. average)δ13C Precision (1-σ, 1 Hr window, 5 min. average)
δ13C-CO2 < 0.12 ‰ - < 0.16 ‰
δ13C-CH4 - High Precision mode: < 0.8 ‰
High Dynamic Range mode: <0.4‰
High Precision mode: < 1.15 ‰
High Dynamic Range mode: < 0.55‰
δ13C Maximum Drift (peak-to-peak, 1 hr average interval average over 24 hrs at STP)δ13C Maximum Drift (peak-to-peak, 1 hr average interval average over 24 hrs at STP)δ13C Maximum Drift (peak-to-peak, 1 hr average interval average over 24 hrs at STP)δ13C Maximum Drift (peak-to-peak, 1 hr average interval average over 24 hrs at STP)
δ13C-CO2 < 0.6 ‰ - < 0.6 ‰
δ13C-CH4 - High Precision and High Dynamic
Range modes:
< 1.5 ‰ at 10 ppm CH4
High Precision and High Dynamic
Range
modes:
< 1.5 ‰ at 10 ppm CH4
Concentration Precision (1-σ, 30 sec. average)Concentration Precision (1-σ, 30 sec. average)Concentration Precision (1-σ, 30 sec. average)Concentration Precision (1-σ, 30 sec. average)
CO2 200 ppb + 0.05 % of reading (12C)
10 ppb + 0.05 % of reading (13C)
1 ppm + 0.25 % of reading (12C) 200 ppb + 0.05 % of reading (12C)
10 ppb + 0.05 % of reading (13C)
CH4 50 ppb + 0.05 % of reading (12C) High Precision mode
5 ppb + 0.05 % of reading (12C)
1 ppb + 0.05 % of reading (13C)
High Dynamic Range mode:
50 ppb + 0.05 % of reading (12C)
10 ppb + 0.05 % of reading (13C)
High Precision mode
5 ppb + 0.05 % of reading (12C)
1 ppb + 0.05 % of reading (13C)
High Dynamic Range mode:
50 ppb + 0.05 % of reading (12C)
10 ppb + 0.05 % of reading (13C)
H2O 100 ppm100 ppm100 ppm
Dynamic RangeDynamic RangeDynamic RangeDynamic Range
CO2 Guaranteed Spec
Range
380-2000 ppm 200-2000 ppm 380-2000 ppm
CO2 Operational Range 100-4000 ppm 0-4000 ppm 100-4000 ppm
CH4 Guaranteed Spec
Range
1.8-500 ppm High Precision mode:1.8-12 ppm
High Dynamic Range mode: 10-1000
ppm
High Precision mode:1.8-12 ppm
High Dynamic Range mode: 10-500
ppm
CH4 Operational Range 0-1000 ppm High Precision mode:1.2-15 ppm
High Dynamic Range mode:
1.8-1500 ppm
High Precision mode:1.2-15 ppm
High Dynamic Range mode: 1.8-1500
ppm
H2O Guaranteed Spec
Range
0-2.4 %0-2.4 %0-2.4 %
H2O Operational Range 0-5 %0-5 %0-5 %
Ambient Temperature
Dependence
Guaranteed < ± 0.06 ‰ / ºC, typical < ± 0.025 ‰ /ºCGuaranteed < ± 0.06 ‰ / ºC, typical < ± 0.025 ‰ /ºCGuaranteed < ± 0.06 ‰ / ºC, typical < ± 0.025 ‰ /ºC
Measurement Interval ~ 3 secs ~ 3 secs ~ 5 secs
Rise/Fall time
(10-90 % / 90-10 %)
Typical ~ 30 secTypical ~ 30 secTypical ~ 30 sec
Applications
Considerations
Interference can occur for concentrations of H2O and CO2 well outside of the defined dynamic range, as well as
other organics, ammonia, ethane, ethylene, or sulfur containing compounds. Users should verify with prepared lab
samples. Please contact us to discuss the experimental conditions. Pressure drops in the instrument’s gas path
can draw external air when this system is used in recirculating applications.
Interference can occur for concentrations of H2O and CO2 well outside of the defined dynamic range, as well as
other organics, ammonia, ethane, ethylene, or sulfur containing compounds. Users should verify with prepared lab
samples. Please contact us to discuss the experimental conditions. Pressure drops in the instrument’s gas path
can draw external air when this system is used in recirculating applications.
Interference can occur for concentrations of H2O and CO2 well outside of the defined dynamic range, as well as
other organics, ammonia, ethane, ethylene, or sulfur containing compounds. Users should verify with prepared lab
samples. Please contact us to discuss the experimental conditions. Pressure drops in the instrument’s gas path
can draw external air when this system is used in recirculating applications.
	
   	
  
Appendix L
Testing Numerical Results
171
Testing & Observations
Date
Temperature (°C,
Adelaide Airport, 9am)
Temperature (°C,
Adelaide Airport, 3pm)
Adelaide Airport
Average (°C)
Temperature (°C,
Kent Town, 9am)
Temperature (°C,
Kent Town, 3pm)
Kent Town Average
(°C)
BOM Average
Test Time
(approx.)
Testing Site Ambient
12/09/2012 13.7 14.7 14.2 13.9 17.2 15.55 14.875 11:00
13/09/2014 14 19.7 16.85 14.5 21.8 18.15 17.5
14/09/2014 18.1 26.2 22.15 19.4 26.1 22.75 22.45
15/09/2014 14.8 15.8 15.3 15 16.2 15.6 15.45
16/09/2014 14.9 15.4 15.15 14.8 16.8 15.8 15.475
17/09/2014 13.7 15.6 14.65 13 16.2 14.6 14.625
18/09/2014 12.4 13.3 12.85 12.1 12.5 12.3 12.575
19/09/2014 15.3 17 16.15 14.7 19.1 16.9 16.525
20/09/2014 18 20.2 19.1 18 22.5 20.25 19.675
21/09/2014 17.3 18.8 18.05 18.7 23.5 21.1 19.575
22/09/2014 20.5 22.6 21.55 20.5 26.2 23.35 22.45 9:00 30
23/09/2014 21.2 22.7 21.95 21.3 25.9 23.6 22.775
24/09/2014 19.4 18 18.7 19.2 21.9 20.55 19.625
25/09/2014 14.8 16 15.4 15.1 15.4 15.25 15.325 10:00 27
26/09/2014 14.3 16.9 15.6 13.1 18.2 15.65 15.625
27/09/2014 21.6 28.7 25.15 22 30.1 26.05 25.6
28/09/2014 25.2 20.1 22.65 25.1 25 25.05 23.85
29/09/2014 16.3 19.6 17.95 15.8 21 18.4 18.175
30/09/2014 18.4 17 17.7 19.3 16.8 18.05 17.875 11:00 28
1/10/2014 14.5 17 15.75 15 17.6 16.3 16.025
2/10/2014 14.5 15.9 15.2 14 17.7 15.85 15.525
3/10/2014 17.9 21.5 19.7 18.4 25.8 22.1 20.9 11:00 24
4/10/2014 24.4 28.8 26.6 24.4 30.9 27.65 27.125
5/10/2014 16.6 22.3 19.45 16.6 25.1 20.85 20.15
6/10/2014 26.6 20.7 23.65 27.8 22.3 25.05 24.35
7/10/2014 14.8 16.3 15.55 14.3 18 16.15 15.85 9:00 20
8/10/2014 12.9 16.9 14.9 12.9 19.4 16.15 15.525
9/10/2014 17.9 27.2 22.55 19.4 27.9 23.65 23.1 9:30 23
10/10/2014 21.6 29.35 25.475 21.8 31.7 26.75 26.1125
11/10/2014 15.7 17.9 16.8 15.2 20.5 17.85 17.325
12/10/2014 14.6 17.3 15.95 14.5 20.6 17.55 16.75
13/10/2014 12 14.7 13.35 12.3 16.1 14.2 13.775 9:00 23
14/10/2014 13.9 15.1 14.5 12.8 15.6 14.2 14.35
15/10/2014 13.2 15.9 14.55 13.1 17 15.05 14.8
16/10/2014 12.6 16.2 14.4 12 18.6 15.3 14.85 10:30 15
17/10/2014 17.4 22.7 20.05 17.2 27.4 22.3 21.175
18/10/2014 24.3 28.8 26.55 24.3 30.8 27.55 27.05
19/10/2014 24.1 28.4 26.25 24.8 30.9 27.85 27.05
20/10/2014 18.3 27.1 22.7 19.3 31.8 25.55 24.125
21/10/2014 29.7 35.8 32.75 28.8 36.9 32.85 32.8 12:00 39
22/10/2014 21.6 22.4 22 27.2 29.1 28.15 25.075
Testing & Observations
Date Testing Site Ambient Effluent Inlet pH
Effluent
Temperature (°C)
pH Bag # Date analysed Methane (ppm)
Carbon Dioxide
(ppm)
Comments
12/09/2012 1 19/09/2014 259.2375685 6300
First gas sample taken. Thermometer and litmus paper yet
to be obtained.
13/09/2014
14/09/2014
15/09/2014
16/09/2014
17/09/2014
18/09/2014
19/09/2014
20/09/2014
21/09/2014
22/09/2014 30 21 32 7 1 25/09/2014 1879.879582 40779
23/09/2014
24/09/2014
25/09/2014 27 22 28 7 2 25/09/2014 3580.644796 44517
26/09/2014
27/09/2014
28/09/2014
29/09/2014
30/09/2014 28 21 26 7 1 8/10/2014 8046.674964 14890
Tanks removed from greenhouse today, lots of mixing
involved.
1/10/2014
2/10/2014
3/10/2014 24 14 26 6.5 13 5 2 8/10/2014 5123.286122 20123
Ph of second tank taken. Expected lower methane, higher
carbon dioxide due to shifting of tanks on 30/09
4/10/2014
5/10/2014
6/10/2014
7/10/2014 20 18 22 6.5 6 3 8/10/2014 12835.06238 45134 Methane starts to return to pre-shifted trend
8/10/2014
9/10/2014 23 15 20 6 6 2 14/10/2014 24349.73006 31981 Sample taken after fill, insulation installed.
10/10/2014
11/10/2014
12/10/2014
13/10/2014 23 17 20 6.5 18 7 4 Not yet analysed, Mike Hatch unavailable.
14/10/2014
15/10/2014
16/10/2014 15 18 20 6 16 6.5 2 Not yet analysed, Mike Hatch unavailable.
17/10/2014
18/10/2014
19/10/2014
20/10/2014
21/10/2014 39 27 36 7 27 6 4 Not yet analysed, Mike Hatch unavailable.
22/10/2014
Tank 1 Tank #2

The Design and Build of Biodigester Toilet

  • 1.
    SCHOOL OF MECHANICALENGINEERING Project 1587: The Design and Build of a Biodigester Toilet James Bass Nishanth Cheruvu Natasha Rayan Charlie Savory Kieren Sheehan Supervisors: Dr Cristian Birzer and Dr Paul Medwell 24 October 2014 Word count: 29,797
  • 2.
    Executive Summary Preventable diseasescaused by unsafe sanitation practices, and respiratory issues created by burning solid fuels for cooking, heating, and lighting kill millions of people in developing communities every year. Providing improved sanitation facilities, and replacing solid fuels (such as wood and dung) with clean burning modern fuels can improve quality of life for billions of people around the globe, and save millions of lives each year. A biodigester toilet is a single solution to both of these major issues; it provides an integrated waste management facility that will convert human excreta into clean burning biogas, which can be used for cooking, heating, and lighting. Research was conducted to obtain the background knowledge required to design a biodigester system that would be capable of successfully producing biogas, while also providing an alternative to unsafe sanitation practices. A dual tank digester design was chosen, to provide a clarification tank as a precursor to effluent post-treatment. A thorough risk assessment was performed before construction and testing of a prototype was conducted. Sponsorship from Barrow and Bench Mitre 10 Malvern, Caroma and Lynair Logistics enabled the project team to source parts within the project budget, and construct the prototype. Testing was undertaken at Urrbrae Agricultural High School to determine whether the system was capable of effectively isolating waste and producing biogas. The prototype effectively separated feedstock from human contact, and harnessed the anaerobic di- gestion process to produce biogas. As methane is the primary constituent of biogas, its concentration was measured throughout the testing period. Results showed an increase in methane concentration, however the testing period was concluded before flammable biogas was produced. All data indicated that the anaerobic digestion process was progressing as expected, and it is likely that flammable biogas would have been produced, given a longer testing period. i
  • 3.
    Acknowledgements The team wouldlike to thank the following individuals and organisations for their contributions. Project Supervisors Dr. Cristian Birzer and Dr. Paul Medwell Sponsors Barrow and Bench Mitre 10 Malvern The University of Adelaide School of Mechanical Engineering Lynair Logistics Caroma Special Thanks The staff of Urrbrae Agricultural High School The staff of Barrow and Bench Mitre 10 Malvern Rob Patterson Michael Hatch ii
  • 4.
    Statement This work containsno material which has been accepted for the award of any other degree or diploma in any university or other tertiary institution and, to the best of our knowledge and belief, contains no material previously published or written by another person, except where due reference has been made in the text. The project team consents to this copy of their report, when deposited in the University Library, being available for loan and photocopying. iii
  • 5.
    Contents Executive Summary i Acknowledgementsii Signed Statement iii Nomenclature x 1 Introduction 1 1.1 Report Structure . . . . . . . . . . . . . . . . . . . . . . . . . . . . . . . . . . . . . . . 2 2 Background 3 2.1 Sanitation . . . . . . . . . . . . . . . . . . . . . . . . . . . . . . . . . . . . . . . . . . . 3 2.2 Solid Fuels and Household Air Pollution . . . . . . . . . . . . . . . . . . . . . . . . . . 7 2.3 The Connection . . . . . . . . . . . . . . . . . . . . . . . . . . . . . . . . . . . . . . . . 10 2.4 Project Aim . . . . . . . . . . . . . . . . . . . . . . . . . . . . . . . . . . . . . . . . . . 12 3 Technical Background 13 3.1 Human Waste Management . . . . . . . . . . . . . . . . . . . . . . . . . . . . . . . . . 13 3.2 Single Appropriate Technology . . . . . . . . . . . . . . . . . . . . . . . . . . . . . . . 16 3.3 Anaerobic Digestion . . . . . . . . . . . . . . . . . . . . . . . . . . . . . . . . . . . . . 16 3.4 Biodigester Designs . . . . . . . . . . . . . . . . . . . . . . . . . . . . . . . . . . . . . . 21 3.5 Existing Biodigester Toilets . . . . . . . . . . . . . . . . . . . . . . . . . . . . . . . . . 26 4 Scope, Objectives and Timeline 31 4.1 Scope . . . . . . . . . . . . . . . . . . . . . . . . . . . . . . . . . . . . . . . . . . . . . 31 4.2 Core Objectives . . . . . . . . . . . . . . . . . . . . . . . . . . . . . . . . . . . . . . . . 31 4.3 Extension Goals . . . . . . . . . . . . . . . . . . . . . . . . . . . . . . . . . . . . . . . 32 4.4 Project Timeline . . . . . . . . . . . . . . . . . . . . . . . . . . . . . . . . . . . . . . . 33 5 Design Formation 34 iv
  • 6.
    5.1 Standards andRecommendations . . . . . . . . . . . . . . . . . . . . . . . . . . . . . . 34 5.2 Overall Design Specification . . . . . . . . . . . . . . . . . . . . . . . . . . . . . . . . . 37 5.3 Design Criteria . . . . . . . . . . . . . . . . . . . . . . . . . . . . . . . . . . . . . . . . 37 5.4 Essential Design Features . . . . . . . . . . . . . . . . . . . . . . . . . . . . . . . . . . 39 5.5 Conceptual Designs . . . . . . . . . . . . . . . . . . . . . . . . . . . . . . . . . . . . . . 40 6 Final Design 54 6.1 Final System Sizing . . . . . . . . . . . . . . . . . . . . . . . . . . . . . . . . . . . . . 54 6.2 Number of End Users . . . . . . . . . . . . . . . . . . . . . . . . . . . . . . . . . . . . 54 6.3 Materials Selection . . . . . . . . . . . . . . . . . . . . . . . . . . . . . . . . . . . . . . 56 6.4 Waste Collection System . . . . . . . . . . . . . . . . . . . . . . . . . . . . . . . . . . . 57 6.5 Gas Collection System . . . . . . . . . . . . . . . . . . . . . . . . . . . . . . . . . . . . 64 7 Risk Assessment 71 7.1 Likelihood Scale . . . . . . . . . . . . . . . . . . . . . . . . . . . . . . . . . . . . . . . 71 7.2 Consequence Scale . . . . . . . . . . . . . . . . . . . . . . . . . . . . . . . . . . . . . . 72 7.3 Risk Matrix . . . . . . . . . . . . . . . . . . . . . . . . . . . . . . . . . . . . . . . . . . 73 7.4 Heirarchies of Control . . . . . . . . . . . . . . . . . . . . . . . . . . . . . . . . . . . . 74 7.5 Risk Register . . . . . . . . . . . . . . . . . . . . . . . . . . . . . . . . . . . . . . . . . 75 8 Prototype Construction and Cost 76 8.1 Part Sourcing . . . . . . . . . . . . . . . . . . . . . . . . . . . . . . . . . . . . . . . . . 76 8.2 Construction and Tooling . . . . . . . . . . . . . . . . . . . . . . . . . . . . . . . . . . 77 8.3 Personal Protective Equipment . . . . . . . . . . . . . . . . . . . . . . . . . . . . . . . 77 8.4 Costing . . . . . . . . . . . . . . . . . . . . . . . . . . . . . . . . . . . . . . . . . . . . 78 9 Testing and Operation Procedures 82 9.1 System Location . . . . . . . . . . . . . . . . . . . . . . . . . . . . . . . . . . . . . . . 82 9.2 Prototype Assessment . . . . . . . . . . . . . . . . . . . . . . . . . . . . . . . . . . . . 83 9.3 Feedstock Selection . . . . . . . . . . . . . . . . . . . . . . . . . . . . . . . . . . . . . . 83 9.4 System Start-up . . . . . . . . . . . . . . . . . . . . . . . . . . . . . . . . . . . . . . . 84 9.5 Continuous Process Digester . . . . . . . . . . . . . . . . . . . . . . . . . . . . . . . . . 84 9.6 Operating Conditions . . . . . . . . . . . . . . . . . . . . . . . . . . . . . . . . . . . . 85 9.7 Biogas Collection and Results . . . . . . . . . . . . . . . . . . . . . . . . . . . . . . . . 86 9.8 Safe Operating Procedure . . . . . . . . . . . . . . . . . . . . . . . . . . . . . . . . . . 87 10 Results and Discussion 89 10.1 Gas Analysis . . . . . . . . . . . . . . . . . . . . . . . . . . . . . . . . . . . . . . . . . 89
  • 7.
    10.2 Methane Concentration. . . . . . . . . . . . . . . . . . . . . . . . . . . . . . . . . . . 90 10.3 pH . . . . . . . . . . . . . . . . . . . . . . . . . . . . . . . . . . . . . . . . . . . . . . . 91 10.4 Temperatures . . . . . . . . . . . . . . . . . . . . . . . . . . . . . . . . . . . . . . . . . 93 10.5 Portability Demonstration . . . . . . . . . . . . . . . . . . . . . . . . . . . . . . . . . . 95 10.6 Completion of Objectives . . . . . . . . . . . . . . . . . . . . . . . . . . . . . . . . . . 95 11 Future Work 98 11.1 Extension Goals . . . . . . . . . . . . . . . . . . . . . . . . . . . . . . . . . . . . . . . 98 11.2 Design Improvements . . . . . . . . . . . . . . . . . . . . . . . . . . . . . . . . . . . . . 98 12 Conclusion 100 Appendix A Project Timeline 109 Appendix B CAD Drawings 114 Appendix C Australian Standards for Polyethylene Pipes 126 Appendix D Australian Standard Gas System Design Factors 130 Appendix E Stirrer CAD Drawings 132 Appendix F Risk Assessment 148 Appendix G Project Cost Matrix 153 Appendix H Sponsorship Prospectus 155 Appendix I Project Hours Spent by Individual Team Members 158 Appendix J SupelTM Sampling Bag Data Sheet 165 Appendix K Picarro Gas Analyser Data Sheet 168 Appendix L Testing Numerical Results 171
  • 8.
    List of Figures 2.1The proportion of the population using improved sanitation (WHO and UNICEF, 2012) 4 2.2 Pit latrine with squatting slab (Furniss, 2011) . . . . . . . . . . . . . . . . . . . . . . 6 2.3 A Chinese shared pit latrine without a platform, slab or seat (Rivard, 2005) . . . . . . 6 2.4 Hanging toilet in Port Haitien, Haiti (Stauffer, 2014) . . . . . . . . . . . . . . . . . . . 7 2.5 Indication of household solid fuel use globally (Chartsbin (2007) using data from WHO (2007)) . . . . . . . . . . . . . . . . . . . . . . . . . . . . . . . . . . . . . . . . . . . . . 8 3.1 Effect of solids retention time and temperature on volatile solids reduction in a labora- tory scale anaerobic digester (Wang et al., 2007) . . . . . . . . . . . . . . . . . . . . . 19 3.2 Fixed dome biodigester (Weir, n.d.) . . . . . . . . . . . . . . . . . . . . . . . . . . . . 21 3.3 Floating drum biodigester (Thai Biogas Energy Company, 2008) . . . . . . . . . . . . 23 3.4 Plastic tube plug flow biodigester. Adapted from Energypedia (2014) . . . . . . . . . . 23 3.5 Dismountable FRP biodigester model (Cheng et al., 2014) . . . . . . . . . . . . . . . . 25 3.6 Biodigester created from existing water tanks in Cambodia (Engineers Without Borders, 2011) . . . . . . . . . . . . . . . . . . . . . . . . . . . . . . . . . . . . . . . . . . . . . . 25 3.7 ARTI bioidigester: A prefabricated plastic product based on the existing floating drum design (Zu, 2005) . . . . . . . . . . . . . . . . . . . . . . . . . . . . . . . . . . . . . . . 26 3.8 EWB Challenge biodigesting toilet (Ashley et al., 2011) . . . . . . . . . . . . . . . . . 27 3.9 Prototype design with flexible membrane gas collection (Coffee et al., 2009) . . . . . . 29 3.10 Prototype design with gasometer gas collection (Coffee et al., 2009) . . . . . . . . . . . 29 5.1 Concept Design 1 . . . . . . . . . . . . . . . . . . . . . . . . . . . . . . . . . . . . . . . 40 5.2 Concept Design 2 . . . . . . . . . . . . . . . . . . . . . . . . . . . . . . . . . . . . . . . 43 5.3 Concept Design 3 . . . . . . . . . . . . . . . . . . . . . . . . . . . . . . . . . . . . . . . 45 5.4 Concept Design 4 . . . . . . . . . . . . . . . . . . . . . . . . . . . . . . . . . . . . . . . 48 5.5 Final concept design . . . . . . . . . . . . . . . . . . . . . . . . . . . . . . . . . . . . . 52 6.1 Drawing of inlet assembly (dimensions in mm) . . . . . . . . . . . . . . . . . . . . . . 58 6.2 Final attached lid for second tank in the system . . . . . . . . . . . . . . . . . . . . . . 59 vii
  • 9.
    6.3 First tankattached gas connection . . . . . . . . . . . . . . . . . . . . . . . . . . . . . 60 6.4 Gas connection valve on second tank . . . . . . . . . . . . . . . . . . . . . . . . . . . . 60 6.5 A typical bioball shape (Foster and Smith, 2014) . . . . . . . . . . . . . . . . . . . . . 61 6.6 Attached tank flange with neoprene seal . . . . . . . . . . . . . . . . . . . . . . . . . . 62 6.7 Attached ball valve and barb . . . . . . . . . . . . . . . . . . . . . . . . . . . . . . . . 63 6.8 Attached ball valve, barb, and suction hose . . . . . . . . . . . . . . . . . . . . . . . . 63 6.9 Overall connection between two tanks . . . . . . . . . . . . . . . . . . . . . . . . . . . 63 6.10 Outlet tap attached to existing 25 mm diameter threaded hole . . . . . . . . . . . . . 64 6.11 Connection between gas collection membrane and pipe network . . . . . . . . . . . . . 65 6.12 1m3 biogas collection membrane used in the final design . . . . . . . . . . . . . . . . . 67 6.13 Scrap material used for insulation layer . . . . . . . . . . . . . . . . . . . . . . . . . . 68 6.14 Black plastic layer for heat absorption . . . . . . . . . . . . . . . . . . . . . . . . . . . 68 6.15 Final Stirrer Design . . . . . . . . . . . . . . . . . . . . . . . . . . . . . . . . . . . . . 70 9.1 Tedlar bag filled with gas sample . . . . . . . . . . . . . . . . . . . . . . . . . . . . . . 87 10.1 Change in methane concentration over testing period . . . . . . . . . . . . . . . . . . . 90 10.2 Change in methane concentration for different substrates (Sulistyo et al., 2012) . . . . 91 10.3 Change in system pH over testing period . . . . . . . . . . . . . . . . . . . . . . . . . . 92 10.4 Temperature measurements compared to BOM readings . . . . . . . . . . . . . . . . . 94 A.1 Project Gantt Chart . . . . . . . . . . . . . . . . . . . . . . . . . . . . . . . . . . . . . 111 A.2 Project Gantt Chart continued . . . . . . . . . . . . . . . . . . . . . . . . . . . . . . . 112 A.3 Project Gantt Chart continued . . . . . . . . . . . . . . . . . . . . . . . . . . . . . . . 113 B.1 Overall CAD model of prototype . . . . . . . . . . . . . . . . . . . . . . . . . . . . . . 114 E.1 Overall CAD model of stirrer . . . . . . . . . . . . . . . . . . . . . . . . . . . . . . . . 132
  • 10.
    List of Tables 3.1Chemical constituents of biogas (Favre et al., 2009) . . . . . . . . . . . . . . . . . . . . 17 3.2 Biogas production for different animal feedstocks (Junfeng et al., 2005) . . . . . . . . . 18 3.3 C/N ratio of some organic materials (Karki and Dixit, 1984) . . . . . . . . . . . . . . 20 5.1 Relevant Australian Standards (Davidson et al., 2013) . . . . . . . . . . . . . . . . . . 35 5.2 Relevant recommendations for biogas installations relating to a small scale biodigester toilet (Davidson et al., 2013) . . . . . . . . . . . . . . . . . . . . . . . . . . . . . . . . 36 5.3 Concept Design 1 design criteria analysis . . . . . . . . . . . . . . . . . . . . . . . . . 42 5.4 Concept Design 2 design criteria analysis . . . . . . . . . . . . . . . . . . . . . . . . . 44 5.5 Concept Design 3 design criteria analysis . . . . . . . . . . . . . . . . . . . . . . . . . 47 5.6 Concept Design 4 design criteria analysis . . . . . . . . . . . . . . . . . . . . . . . . . 49 5.7 Evaluation matrix . . . . . . . . . . . . . . . . . . . . . . . . . . . . . . . . . . . . . . 50 5.8 Design feature summary table . . . . . . . . . . . . . . . . . . . . . . . . . . . . . . . . 51 5.9 Final concept design design criteria analysis . . . . . . . . . . . . . . . . . . . . . . . . 53 6.1 Properties of PE100 pipe . . . . . . . . . . . . . . . . . . . . . . . . . . . . . . . . . . 65 7.1 Consequence scale - risks to project success (The University of Adelaide, 2012) . . . . 72 7.2 Consequence scale - safety risks (The University of Adelaide, 2012) . . . . . . . . . . . 73 7.3 Risk matrix (The University of Adelaide, 2012) . . . . . . . . . . . . . . . . . . . . . . 73 7.4 Risk management required (The University of Adelaide, 2012) . . . . . . . . . . . . . . 74 8.1 Sponsorship summary . . . . . . . . . . . . . . . . . . . . . . . . . . . . . . . . . . . . 79 8.2 Prototype cost summary . . . . . . . . . . . . . . . . . . . . . . . . . . . . . . . . . . . 79 8.3 Recycled component alternatives . . . . . . . . . . . . . . . . . . . . . . . . . . . . . . 80 A.1 Project Review Gates . . . . . . . . . . . . . . . . . . . . . . . . . . . . . . . . . . . . 109 A.2 Major Milestones, Review Gates and Due Dates . . . . . . . . . . . . . . . . . . . . . . 110 ix
  • 11.
    Nomenclature AUD Australian Dollar(s) BOMBureau of Meteorology textitC Design factor CoP Code of Practice C/N Carbon to nitrogen ratio CAD Computer Aided Design Dm min Minimum mean outside diameter FRP Fiber Reinforced Plastic GACC Global Alliance for Clean Cookstoves L Litre LPG Liquefied Petroleum Gas m Metre MAOP Maximum Allowable Operating Pressure MDGs Millennium Development Goals mm Millimetre MRS Maximum Required Strength NGO Non-governmental Organisation PPE Personal Protective Equipment ppm Parts per million PE Polyethylene PVC Polyvinyl Chloride x
  • 12.
    RT Retention time SDRStandard Dimension Ratio SOP Safe Operating Procedure Tmin Minimum wall thickness UAHS Urrbrae Agricultural High School UNICEF The United Nations Children’s Fund USD United States Dollar(s) UV Ultra-Violet VS Volatile Solids WHO World Health Organisation
  • 13.
    Chapter 1 Introduction Currently, 2.6billion people worldwide lack access to adequate sanitation facilities, while 3 billion people are put at risk from harmful air pollution because they rely on burning solid fuels for cooking, heating and lighting. Over 4.6 million deaths are caused every year from a wide range of health issues related to poor sanitation and household air pollution (WHO, 2014; WHO and UNICEF, 2014c). When considering the global distribution of these problems, it is clear that they are present in similar regions all over the world; primarily the rural areas of developing countries. Some of the most marginalised people in the world are subject to diseases associated with exposure to human faeces, along with serious respiratory health issues (including lung cancer) caused by household air pollution. While not tolerated in more developed nations, crippling poverty means billions of people living in developing countries are subject to these conditions every day. Developing a single, cheap solution that will provide improved means of sanitation while reducing reliance on solid fuels has the potential to save the lives of millions, and improve the lives of billions, every year. The design and build of a biodigester toilet is a humanitarian project aimed at providing improved sanitation facilities, and reducing air pollution for the billions of people affected by these issues. For this project, a toilet is integrated with a biodigester - a device that stores and ‘digests’ organic material while also producing biogas, a mixture of primarily methane (CH4) and carbon dioxide (CO2). Designing a biodigester to accommodate a toilet enables it to become an integrated waste management system, and provides a means of safe human waste disposal. The biogas produced from the digestion of human waste can be used as a cleaner burning alternative to solid fuels for cooking, heating, and lighting. Thus, both issues of unsafe sanitation and household air pollution may be addressed through implementation of a functional biodigester toilet. While the concept and use of the biodigester is widespread and well documented, there remain inade- quacies in the literature pertaining to a system designed solely for use with human waste. Combined biodigester and toilet systems have been designed and tested in the past, however experimental results 1
  • 14.
    CHAPTER 1. INTRODUCTION2 from these existing systems indicate that neither design, nor execution, were suitable for the system to have practical applications. Several explanations as to why the systems were ineffective have been suggested in the literature, but not subsequently implemented into an improved design. An improved design will better address the health, sanitation, and energy challenges prevalent in many develop- ing regions. Furthermore, as biodigester systems produce useful secondary products from primary waste, there is scope for application in developed countries. Research and development into improved biodigester toilet designs for developed countries could alleviate concerns of growing waste volume, energy shortages, and climate change. The integration of biodigester toilets into modern waste man- agement and energy consumption practices could promote greater self-sufficiency, and environmental sustainability. 1.1 Report Structure A detailed outline of the global distribution of poor sanitation practices and the use of solid fuels for cooking, heating, and lighting is presented within the Background chapter of this report. Also included in this chapter is an outline of the major health problems related to these practices. The problems outlined in this chapter helped guide the development of the project aim. After the project aim is identified, the Technical Background chapter presents research into existing technologies that provide a means of achieving the overall project aim. Of particular focus is methods of human waste management as well as waste collection systems. The Scope, Objectives, and Timeline chapter outlines detailed objectives for the project, specifically relating to the design, build and subsequent testing of a biodigester toilet. A timeline of the project is also presented in this chapter. The information presented in the initial chapters is then used in the Design Formation chapter to develop several concept designs of biodigester toilets. These designs are evaluated against a list of design criteria. Based on the analysis of the concept designs, a final design is further developed in the Final Design chapter. The Risk Assessment, Prototype Construction and Cost, and Testing and Operation chapters outline the various stages in the production of a prototype biodigester toilet, based on the final design. A risk assessment was required to ensure construction and testing could be performed safely. Preliminary testing results, and a discussion of their significance, are presented in the Results and Discussion chapter. The extent to which the prototype was able to achieve all core project objectives is assessed in this chapter. Based on these preliminary testing results and the overall effectiveness of the prototype, possible design modifications and additions are discussed in the Future Work chapter.
  • 15.
    Chapter 2 Background Household airpollution produced by burning solid fuels, and inadequate sanitation are two major issues facing the developing world. Both problems cause specific health, social, and environmental issues. Significant improvements have been made in both these areas over the last fourteen years since the conception of the millennium development goals in 2000 (WHO, 2012) with scope for substantial progress in the future. Presented in this chapter is a discussion of these problems, along with informa- tion about biodigesters, biogas, and the contribution they make to alleviating inadequate sanitation, and household air pollution. 2.1 Sanitation Currently 2.6 billion people worldwide do not have access to adequate sanitation facilities, resulting in the contraction of diseases that are responsible for more than two million deaths every year (WHO and UNICEF, 2014c). Additionally, there are a number of non-fatal diseases associated with poor sanitation that significantly reduce quality of life. These issues associated with inadequate sanitation are primarily present in developing communities. Therefore, the development of sanitation systems that are readily available in affected regions will help improve the quality of life of billions of people and save a significant number of lives every year. 2.1.1 Location of Current Practices The distribution of global access to improved sanitation facilities is shown in Figure 2.1. The definition of an improved sanitation facility is presented in Section 2.1.3. It can be seen that Africa and the Indian Subcontinent are the worst affected, where most of the countries have less than 50% access. China, South-East Asia, and Latin America are also affected, though not to the same extent. 3
  • 16.
    CHAPTER 2. BACKGROUND4 Figure 2.1: The proportion of the population using improved sanitation (WHO and UNICEF, 2012) The global divide of access to improved sanitation is also disproportionately split between the rural and urban regions. Currently 79% of people living in urban areas have access to improved sanitation facilities. Conversely, only 47% of people living in rural areas enjoy the same access. Therefore 1.8 billion people worldwide are unable to use improved sanitation facilities, primarily due to the cost of sanitation facilities in these areas (WHO and UNICEF, 2012). Open defecation occurs primarily in rural areas; worldwide, 950 million rural residents are forced to practice open defecation compared to 100 million people living in urban locations (WHO and UNICEF, 2012). Open defecation is mainly concentrated in India, whose population makes up over 60% of the total world population practicing this type of unimproved sanitation (WHO and UNICEF, 2012). 2.1.2 Health Issues There are a number of diseases and associated conditions that can arise from the practice of unimproved sanitation and subsequent contact with human excreta. These include diarrhoea, cholera, fluorosis, guinea worm disease, hepatitis A, schistosomiasis, trachoma, and typhoid (UNICEF, 2014). Diarrhoea, schistosomiasis, trachoma, and typhoid are commonly considered the most damaging and widespread conditions (UNICEF, 2014).
  • 17.
    CHAPTER 2. BACKGROUND5 Diarrhoea A condition causing the loss of water and electrolytes in a person, leading to dehydration and sometimes death. With four billion cases occurring annually and 1.8 million deaths (1.6 million being children under five years old), it is the main health problem associated with poor sanitation practices (UNICEF, 2014). Schistomsomiasis A disease caused by parasitic worms that penetrate the skin of people who come into contact with contaminated water. It affects 200 million people every year, with 20 million suffering serious consequences and approximately 200,000 dying annually (Fenwick, 2012; UNICEF, 2014). It is estimated that adequate sanitation could reduce infection rates by 77% (UNICEF, 2014). Typhoid A bacterial infection that can result in headaches and nausea. It affects 12 million people annually, and is contracted by consuming contaminated food or water (UNICEF, 2014). Trachoma An infectious bacterial disease which causes a roughening of the inner surface of the eyelid leading to pain and possible blindness. Approximately six million people are currently blind because of this disease. It is estimated that adequate sanitation could reduce infection rates by up to 25% (UNICEF, 2014). 2.1.3 Definitions and Practices The WHO classifies sanitation facilities in two broad terms; improved sanitation and unimproved sanitation facilities. Improved sanitation facilities “...hygienically separate human excreta from human contact.” (WHO and UNICEF, 2014a). Common toilets that meet this criteria include the western style flush toilet, flush and pour systems into a pit-latrine (shown in Figure 2.2), and septic tanks.
  • 18.
    CHAPTER 2. BACKGROUND6 Figure 2.2: Pit latrine with squatting slab (Furniss, 2011) Unimproved sanitation facilities and practices typically do not separate human excreta from human contact. Latrines without a squatting slab, platform or seat, and hanging toilets that dispose of waste directly into a river or similar body of water are typical examples of unimproved facilities. They are pictured in Figures 2.3 and 2.4, respectivley. Shared sanitation facilities are also classified as unim- proved sanitation. Shared sanitation facilites are “...sanitation facilities of an otherwise acceptable type that are shared between two or more households.” (WHO and UNICEF, 2014b) Figure 2.3: A Chinese shared pit latrine without a platform, slab or seat (Rivard, 2005)
  • 19.
    CHAPTER 2. BACKGROUND7 Figure 2.4: Hanging toilet in Port Haitien, Haiti (Stauffer, 2014) 2.2 Solid Fuels and Household Air Pollution Burning solid fuels, or ‘biomass’, for cooking, heating, and lighting creates significant household air pollution, and is a serious global issue. Approximately three billion people worldwide rely on burning solid fuels such as wood, charcoal, dung, and crop residues for their cooking, heating, and lighting requirements (WHO, 2014). The majority of these people live in developing countries in Africa and Asia (Rehfuess et al., 2011) where access to improved fuels is restricted by economic, and social factors. Burning solid fuels releases harmful emissions such as carbon monoxide (CO), carbon dioxide (CO2), oxides of nitrogen (NOX), and particulate matter into the surrounding atmosphere. When this is performed indoors it can cause significant household air pollution, especially in poorly ventilated buildings; this causes serious health effects that result in the deaths of 4.3 million people annually (WHO, 2014). There are also negative environmental and social effects associated with biomass burning. These include contributions to global greenhouse gas emissions, and gender inequalities. The eight United Nations Millennium Development Goals (discussed further in Section 2.3.1) are goals that when achieved, will significantly improve the lives of the worlds most vulnerable people. Reducing household air pollution produced from solid fuels will make a direct contribution to achieving MDGs 1,3,4,5 and 7 (WHO, 2014). 2.2.1 Locations of Solid Fuel Usage The global distribution of solid fuel use is shown in Figure 2.5. It can be seen that the problem is concentrated in developing countries in Africa and Asia. Over 86% of the population in most African countries, and especially those in the Sub-Saharan Africa region, use solid fuels (GACC, 2014). In most parts of Asia the average rate is lower at approximately 52-66% (GACC, 2014), but still highly
  • 20.
    CHAPTER 2. BACKGROUND8 significant. The death rate in each country logically follows the proportion of solid fuel use of the population. In Sub-Saharan Africa, between 400-600 people per million die due to solid fuel usage while in Asia, this is between 200-300 people per million (Ezzati et al., 2005). Figure 2.5: Indication of household solid fuel use globally (Chartsbin (2007) using data from WHO (2007)) 2.2.2 Health Implications There are a large number of health issues that arise from smoke inhalation and household air pollu- tion. Some of the most common issues are pneumonia, chronic obstructive pulmonary disease, and lung cancer, which represent 12%, 22% and 6% of the total 4.3 million annual deaths associated with household air pollution, respectively (WHO, 2014). Acute lower respiratory infections including pneu- monia are especially vicious, having the greatest effect on young children. Over half of the pneumonia related deaths worldwide in children under five years of age are caused by household air pollution produced during the combustion of solid fuels (WHO, 2014). Other issues that seriously affect quality of life, but are not necessarily fatal, include cataract contrac- tion (which can result in blindness), asthma, and burns (WHO, 2014). While it is difficult to compare these issues to the fatal conditions, the negative effect they have on the ability of people to function in life, and of developing countries to improve their situation, cannot be underestimated. Overall, it can be seen that the problems resulting from solid fuel use, which causes harmful household air pollution, are some of the most serious global health issues today.
  • 21.
    CHAPTER 2. BACKGROUND9 2.2.3 Environmental Implications As well as the health related problems discussed in Section 2.2.2, there are a number of significant environmental issues brought about by the burning of solid fuels. These include contributions to the greenhouse effect, and deforestation. The inefficient performance of most cook stoves in the developing world contributes to the greenhouse effect. In these devices, most fuels undergo a significant degree of incomplete combustion resulting in the emission of black carbon (soot) into the atmosphere. Soot is one of the largest contributors to climate change, following CO2 and methane (CH4) (Bond and Sun, 2005). It is estimated that household solid fuel burning accounts for 18% of these emissions globally (Bond and Sun, 2005). 2.2.4 Social Implications Women and children are often given the task of gathering fuel for cooking, lighting, and heating (Parikh, 2011; WHO, 2014). This activity can take a significant period of time, and limits the time available for schooling, income generation, and other opportunities for economic development (WHO, 2014). The fact that these tasks are often limited to daylight hours only exacerbates the problem. According to the World Health Organization (2014), women and children also face serious risk of injury and violence while gathering fuel. As women are often responsible for household cooking, they are more exposed to air pollution created in cooking and heating practices (WHO, 2014). Along with women being disproportionately affected by the use of solid fuels, more than 50% of worldwide deaths among children under five years old can be directly attributed to household air pollution created by solid fuel use (WHO, 2014). 2.2.5 Modern Fuels and Clean Cookstoves The main alternatives to biomass burning are modern fuels and clean cookstoves. The term ‘modern fuels’ encompasses liquefied petroleum gas (LPG), kerosene, ethanol, biodiesel, and biogas. Modern fuels are superior to solid fuels as they produce fewer harmful emissions (Rehfuess et al., 2011). This largely eliminates most of the health, environmental, and social issues associated with solid fuel use. Clean cookstoves are an intermediate measure that still burn biomass, but achieve similar advantages as using modern fuels. The main obstacles to modern fuel uptake are affordability, and availability (Foell et al., 2011). For this reason uptake is significantly higher in wealthier urban areas, where the availability of fuels is higher due to the centralised location. In rural areas the clean cookstove is often a more attractive alternative than modern fuels, due to the lower costs and widespread biomass availability (Foell et al.,
  • 22.
    CHAPTER 2. BACKGROUND10 2011). Modern fuel uptake is also affected by cultural preferences. In many cases, even when modern fuels are readily available and affordable, existing practices will be maintained exclusively, or a mix of the two options applied (Masera et al., 2000). The motivations behind this are varied, including the preference for smoke as a mosquito repellent, and cultural practices such as using flat pans for cooking traditional tortillas in Mexico (Masera et al., 2000). Biogas is one modern fuel that has a history of widespread uptake in developing countries. By 2007, 26.5 and four million domestic biogas generators (or ‘biodigesters’) were present in China and India, respectively (Surendra et al., 2013). The Netherlands Development Organisation (SNV), has also installed over 500,000 domestic biodigesters across Asia and Africa (Surendra et al., 2013). Biodigester programs have been set up by governments in many developing countries to promote biogas production (Buysmanc and Mol, 2013). In these cases, a local biodigester market was created through initial financial and technical training. High construction costs have prevented these markets from becoming entirely self-sustainable, and currently most people are still partly reliant on government assistance to purchase a biodigester (Buysmanc and Mol, 2013). While this reliance on government assistance is obviously a weakness in the programs, they have been highly successful in terms of the quality and scale of biodigester dissemination (Buysmanc and Mol, 2013). Clearly, biogas is a modern fuel that has a history of uptake in developing countries, and as such is considered an excellent potential replacement for solid fuels. 2.3 The Connection Based on the information presented in Figures 2.1 and 2.5, it is clear that the countries with the highest population proportions using unimproved sanitation facilities also have high incidences of solid fuel use. These countries are some of the most poverty stricken in the world (Socioeconomic Data and Applications Center, 2005). Therefore, people living in these areas are likely subjected to a combination of the serious health issues presented by poor sanitation practices, respiratory problems created by household air pollution, and minimal means to improve their situation due to the poverty distribution within their country. As the problems outlined in Sections 2.1 and 2.2 are primarily concentrated in the same poverty stricken areas, it makes sense to develop a single, cheap solution to both major issues. This way, a single method can be used to minimise the impact of problems arising from both unsafe sanitation practices, and solid fuel use. Defining one solution would also prove easier to implement and integrate into the regions where it is most required. Having a single solution to both these issues will also make significant inroads into progress towards the Millennium Development Goals.
  • 23.
    CHAPTER 2. BACKGROUND11 2.3.1 Sanitation, Solid Fuels and the Millennium Development Goals The eight United Nations Millennium Development Goals (MDGs) were created in 2000 to quanti- tatively measure and target the progress of developing nations. Almost all of these goals relate in some way to improving sanitation and modern fuel usage in the developing world. All the Millenium Development Goals, with the exception of Goal 2 and Goal 8, are especially relevant. The United Nations Millennium Development Goals (United Nations, 2014) 1. To eradicate extreme poverty and hunger The use of modern fuels eliminates the need to collect traditional solid fuels which can often be a highly time consuming process. Saving time allows the pursuit of income generating activities, and education. 2. To achieve universal primary education 3. To promote gender equality and empower women Solid fuel usage was shown to disproportionately affect women; reducing the use of solid fuels will significantly act to address this inequality. 4. To reduce child mortality Household air pollution from solid fuel usage disproportionately affects children to a significant degree, as shown in Section 2.2.2. Modern fuels produce less household air pollution, and therefore help to address this goal. In addition, improving sanitation practices will reduce the incidences of children contracting diseases from unsuitable sanitation facilities. 5. To improve maternal health The use of modern fuels will reduce the exposure of women to household air pollution. According to WHO (2014), reducing household air pollution will help to achieve this MDG. 6. To combat HIV/AIDS, malaria and other diseases Providing improved sanitation facilities will significantly reduce the devastating diseases associ- ated with poor sanitation, while use of clean burning modern fuels will help reduce incidences of health problems related to household air pollution.
  • 24.
    CHAPTER 2. BACKGROUND12 7. To ensure environmental sustainability There are a number of environmental issues associated with the use of solid fuels, explored in Section 2.2.3. Reducing household air pollution will negate many of these environmental problems. Providing improved sanitation facilities will also reduce incidences of open defecation, making for cleaner water bodies. 8. To develop a global partnership for development 2.4 Project Aim Based on the information presented in this chapter, it is clear that poor sanitation and solid fuel use are two independent problems causing serious negative effects for billions of people worldwide. Both problems are typically concentrated in the same developing countries, and often affect the same people. It is clear that developing a single solution to both of these problems will have a positive impact on billions of lives worldwide, and has the potential to prevent up to 4.3 million deaths each year. This leads to the overall aim of the project: To develop a single appropriate technology that may be implemented in developing communities in order to alleviate the dangers associated with unsafe sanitation practices and the household burning of solid fuels.
  • 25.
    Chapter 3 Technical Background 3.1Human Waste Management It is necessary to consider various waste management techniques in order to develop an appropriate technology that will help alleviate the dangers associated with unsafe sanitation practices. The term ‘waste management’ comprises practices relating to the treatment and subsequent recycling or disposal of human waste. 3.1.1 Harmful Pathogens and Health Implications A pathogen is a broad term for any infectious virus, bacteria, parasite or fungi that may cause disease to the host organism. They are present in human and animal excreta, contaminated food, industrial facilities, along with other sources (Wang et al., 2007). Pathogens from human excreta enter the human body through a number of pathways including direct transmission from inadequate sanitation facilities, contaminated water sources and contaminated crop fields (WHO and UNICEF, 2012). Feachem et al. (1980) explains how there is a large range of bacterial pathogens that can grow and reproduce in excreta under different environmental conditions. Common bacteria include salmonellae, shigella, vibrios, pathogenic E. coli, Yersinia and campylobacter (Feachem et al., 1980). Bacteria can remain active for long periods. They become dormant in low temperatures but are likely to become inactivated under high temperatures. Diarrhoea or gastroenteritis are common symptom of bacterial infection. Destruction of these pathogens is a key priority for waste management systems. Human exposure to harmful pathogens at any stage during the waste management process could result in severe health implications. Most pathogens in excreta can be minimised by employing one or more various treatment methods. 13
  • 26.
    CHAPTER 3. TECHNICALBACKGROUND 14 3.1.2 Wastewater Treatment Methods Wastewater management is a collection of processes that remove the contaminants from wastewater and sewage. The objective of wastewater management is to convert potentially harmful sewage waste into a safe product which can be returned to the environment. 3.1.2.1 Sedimentation As described by Wang et al. (2007), sedimentation is a process involving the separation of dense suspended particles in a mixture from a lower density fluid, and is often the first phase in a water treatment process. In sedimentation tanks, solids accumulate at the bottom of the tank to form a sludge. This process is usually followed by a secondary decantation procedure to separate the sludge from the fluid. 3.1.2.2 Aerobic Treatment Aerobic treatment is a process during which biodegradable matter is broken down in the presence of oxygen, and is commonly referred to as aerobic digestion. Organic matter is oxidised and decomposed by micro-organisms which feed on the organic material. The basic procedure consists of aerating the waste in order to oxidise the solids, then allowing the sludge to begin sedimentation. Once settled, water is decanted, and digested solids are removed or pumped back into the system. During the oxidation process, organic mass is broken down into carbon dioxide (CO2) and water (H2O), nitrates, sulphates and energy in the form of heat (Wang et al., 2007). Odours are minimised during storage and sludge quantities are reduced by removing volatile solids during aerobic digestion. Aerobic treatment processes are used by many wastewater treatment facilities due to shorter retention times. One drawback of aerobic digestion is the external energy requirement. Energy is required to pump recycled bacteria from the settled solids back into the system, along with providing a continuous oxygen supply to the system (Wang et al., 2007). 3.1.2.3 Anaerobic Treatment Anaerobic treatment utilises the anaerobic digestion process which breaks down biodegradable matter in the absence of oxygen (Lettinga, 1995). The process is known to occur naturally in some soils and lakes where oxygen is restricted, and can also be induced by enclosing organic matter within a gas-tight vessel to eliminate the supply of oxygen. This gas-tight vessel is commonly referred to as a ‘biodigester’. Under suitable conditions, the organic material is digested by naturally occurring anaerobic bacteria which significantly reduces pathogen content of the material (Mata-Alvarez et al.,
  • 27.
    CHAPTER 3. TECHNICALBACKGROUND 15 2000). In addition to reducing pathogen content, anaerobic digestion produces a flammable gas by- product, commonly known as biogas (Caruana and Olsen, 2012). The production of biogas offers a unique advantage of anaerobic treatment over other treatment methods; biogas can be used for cooking, heating and lighting, as well as electricity generation. The main drawback of anaerobic digestion is the temperamental nature of the anaerobic bacteria. They are highly sensitive to fluctuating environmental conditions, and if they are not retained within the system, organic compounds will not be effectively broken down. This will result in ineffective pathogen treatment and a low biogas yield (Smith et al., 2005). 3.1.2.4 Decomposition Decomposition, or composting of organic materials is another method of treating potentially harmful waste products whilst producing a useful by-product. Bacteria and organisms decompose organic matter into compost. In regards to human waste composting, the end product has minimal odour, levels of pathogens which are safe for human handling, and may be applied to gardens and crops as a nutritional soil conditioner and fertiliser (Wang et al., 2007). Composting is advantageous in locations with a lack of landfill availability for waste disposal, as the composted product takes up much less space than the primary organic material. As the end product is a nutritional fertiliser, it can also be used in local agriculture operations. As the composting system is low cost and effective, it may be appropriate to implement subsequent to anaerobic digestion so that any exploitable energy by-products are extracted first (Jenkins, 2005). 3.1.3 Toilets Fundamentally, a toilet is a sanitation facility designed to separate human waste from human contact by transporting excreta to a location where it is less exposed. Traditionally, wastes were removed from the human interface using dry systems which collected excreta in a large container or trench. These systems are still commonly used in rural regions and in a majority of the developing world (Jenkins, 2005). Modern toilets in developed countries are wet systems which use a flush mechanism to remove the wastes from human exposure, and transport it to a treatment facility. The standard flushing toilet is not regarded as self-sustainable from a waste management perspective. In most cases, flushing toilets simply transport waste from the human body to a sewer or septic tank, the contents of which are eventually transported to a wastewater management facility for further treatment. Once the water is treated, often with antibacterial chemicals, it is released back into the environment. The solid matter is occasionally recycled into fertiliser but often discarded in landfills. In
  • 28.
    CHAPTER 3. TECHNICALBACKGROUND 16 some cases the flushing toilet is linked to a self-contained waste treatment unit or septic system which allows for waste management on site (Jenkins, 2005). Self-contained waste management systems have potential for environmental sustainability and also lower costs as the waste management processes can be conducted at or near the toilet site and do not necessarily require as much infrastructure, water, or treatment methods. 3.2 Single Appropriate Technology As introduced in Section 2.4, the overall aim of the project is “To develop a single appropriate technol- ogy that may be implemented in developing communities in order to alleviate the dangers associated with unsafe sanitation practices and the household burning of solid fuels.”. Improving sanitation prac- tices using a single technical solution requires the integration of a waste management method with a toilet. This way, waste is separated from human contact at the source using the toilet, and is treated by the integrated waste management system. Of the waste management systems considered in Sec- tion 3.1, anaerobic digestion is the only method that will reduce dependence on solid fuels and the subsequent prevalence of harmful household air pollution, via the production of clean burning biogas. Designing a combined biodigester toilet thus establishes a self-contained waste management facility which generates a clean burning modern fuel, and achieves the overall aim of the project. 3.3 Anaerobic Digestion A biodigester here will be defined as a vessel in which anaerobic digestion takes place. The literature relevant to the design and operation of a biodigester can be split into two major sections; the anaerobic digestion process and existing biodigester technology. Anaerobic digestion is a complex microbial process involving 4 chemical stages: 1. Hydrolysis: The chemical reduction of complex organic molecules (feedstock) into simple monomers such as amino acids, fatty acids and simple sugars (Wang et al., 2007). 2. Acidogenesis: The bacterial breakdown of the simple monomers into volatile fatty acids (Wang et al., 2007). 3. Acetogenesis: The bacterial conversion of volatile fatty acids into acetic acids. Carbon dioxide and hydrogen sulphide are also produced in this stage (Wang et al., 2007). 4. Methanogenesis: The bacterial conversion of acetates into methane and carbon dioxide, the primary constituents of biogas (Wang et al., 2007). It is also during this stage that the waste stabilisation occurs, reducing odours and pathogenic concentration (Lettinga, 1995).
  • 29.
    CHAPTER 3. TECHNICALBACKGROUND 17 Oxygen toxicity occurs when oxygen molecules form free radicals in a cellular environment. These free radicals are highly reactive and hence toxic to all cells. Unlike aerobic bacteria, anaerobic bacteria do not possess the enzymes required to defend themselves against these free radicals (Parkin and Owen, 1986). It is therefore necessary for oxygen to be excluded from all stages of anaerobic digestion for the processes to be performed correctly. 3.3.1 Feedstock Feedstock for anaerobic digestion is the primary organic material which is broken down by the anaer- obic bacteria. A number of factors such as the temperature, hydraulic retention time, pH, carbon nitrogen (C/N) ratio and volatile solids (VS) content of the feedstock affect the rate of anaerobic digestion. Manure from livestock such as cattle and pigs is commonly used as a feedstock. Systems operating with these feedstocks are referred to as wet digesters as they require additional water to be added. Dry digestion systems that do not require water also exist; these use plant based feedstock such a coffee husks, maize, vegetables and purpose grown crops (Favre et al., 2009). 3.3.2 Anaerobic Digestion Products The constituents of biogas produced by anaerobic digestion are outlined in Table 3.1. It can be seen that methane and carbon dioxide are the primary constituents, contributing to approximately 95% of the mixture. It is this high concentration of flammable methane which makes biogas useful as a fuel source. Table 3.1: Chemical constituents of biogas (Favre et al., 2009) Gas Component Concentration Range Mean Value Methane (CH4) 45-75% 60% Carbon Dioxide (CO2) 25-55% 35% Water Vapour (H2O) 0-10% 3-10% Nitrogen (N2) 0.01-5% 1% Oxygen (O2) 0.01-2% 0.3% Hydrogen (H2) 0-1% <1% Ammonia (NH3) 0.01-2.5mg/m3 0.7% Hydrogen Sulphide (H2O) 10-10000mg/m3 <500mg/m3 The solid digested waste, known as effluent, is another useful by-product. Anaerobic digestion removes a significant amount of pathogens from the primary feedstock leaving a product rich in nutrients (Mata-
  • 30.
    CHAPTER 3. TECHNICALBACKGROUND 18 Alvarez et al., 2000; Wang et al., 2007). The use of the biodigester effluent as a plant fertiliser has resulted in substantial improvements to basic farming practices in many communities (Junfeng et al., 2005). 3.3.3 Technical Factors The rate at which anaerobic digestion is performed is dependent on a number of technical factors. It is these factors which therefore determine the rate of biogas production and the extent to which pathogen content is reduced, making them important considerations for the design and operation of a biodigester. Volatile Solids: Volatile solids (VS) are the organic compounds which are reduced by the anaerobic digestion process, the VS content can be considered the ‘digestible’ proportion of the feedstock (Wang et al., 2007). VS reduction is often used as a measure of the extent to which anaerobic digestion has occurred. At a constant temperature and pH, the biogas potential of a feedstock is primarily a function of its VS content. Table 3.2 provides the VS% and biogas production potential of different waste feedstocks. It should noted that this biogas potential is significantly influenced by animal diet; hence, actual values of biogas production can vary significantly (Amon et al., 2007). Table 3.2: Biogas production for different animal feedstocks (Junfeng et al., 2005) Feedstock VS% Biogas Yield (L/kg) Daily Production (kg/day) Daily Biogas Production (L/day) Human 25 30 0.6 18 Cow 18 25 12 300 Chicken 20 100 0.1 10 Pig 20 25 2 50 As shown in Table 3.2, the average human will produce 18 L of biogas per day. It is estimated that a single person in a developing nation requires between 150 to 300 L of biogas daily (Deublein and Steinhauser, 2010). It is obvious that a population cannot be completely self-sustainable from the energy provided by human waste, however it can make up a significant proportion of a populations total energy demand.
  • 31.
    CHAPTER 3. TECHNICALBACKGROUND 19 Temperature: For waste treatment purposes anaerobic digestion is typically performed in one of two temperature ranges; mesophilic, between 30◦C and 38◦C, or thermophilic, between 49◦C and 57◦C. Each range contains a different species of anaerobic bacteria that is responsible for the methanogenesis conver- sion; mesophiles are present in the mesophilic range and thermofiles in the thermophilic range. Figure 3.1 shows that with decreasing temperature the time required to reach the maximum volatile solids reduction is increased, indicating that lower temperatures result in a slower rate of anaerobic diges- tion. Outside their respective temperature ranges, mesophile and thermophile activity reduces and eventually ceases as the bacteria perish. It has been found that mesophiles are able to survive in temperatures as low as 15◦C however the rate of digestion at these temperatures is negligible (Wang et al., 2007). Figure 3.1: Effect of solids retention time and temperature on volatile solids reduction in a laboratory scale anaerobic digester (Wang et al., 2007) Both mesophilic and thermophilic digestion extract roughly the same amount of biogas from feedstock, however thermophilic reactions are faster due to a higher energy input (Vindis et al., 2009). Both reaction types are also very sensitive to rapid temperature changes, suggesting a need for insulation to dampen the effect of fluctuating temperatures (Chae et al., 2008).
  • 32.
    CHAPTER 3. TECHNICALBACKGROUND 20 Retention Time: The retention time (RT) is the length of time the organic material remains within the system. The required RT is directly related to the temperature inside the biodigester. Advanced multistage biodi- gester designs achieve required retention times for maximum VS reduction as low as five days by using the high temperature thermophilic process. Single stage mesophilic biodigesters such as those typically used in the developing countries require a retention time between 30 and 60 days (Suryawanshi et al., 2013). pH: pH affects the methanogenesis stage of anaerobic decomposition, which is most productive between pH 6.8 to 7.5 (Environmental Protection Agency, 2012). Activities below a pH of 6 and above a pH of 8 will hinder and potentially cease the digestion process (Karki and Dixit, 1984). During the initial set up of an anaerobic reaction, when the acetogenesis stage is approaching completion, the acetic acid produced can create conditions as low as pH 5.5 (Wang et al., 2007). This initial acidic period is balanced after methanogenesis is complete and ammonia is produced, increasing pH (Wang et al., 2007). C/N Ratio: If the ratio of carbon to nitrogen (C/N) in the feedstock is too high (> 60), nitrogen will be consumed rapidly during the acidogenesis and acetogenesis stages, and will not be available to react with the remaining carbon as required in methanogenesis (Parkin and Owen, 1986). If the ratio is too low (< 2), excess nitrogen will lead to a high concentration of ammonia thus increasing the pH which can then inhibit methanogenesis (Parkin and Owen, 1986). The ideal C/N for the production of biogas is 25, though ratios between 5 and 40 are acceptable (Parkin and Owen, 1986). Table 3.3 shows that C/N ratios of cow and pig manure are close to the optimal value of 25. Humans and chickens have lower C/N ratios that are still within the acceptable range. Table 3.3: C/N ratio of some organic materials (Karki and Dixit, 1984) Feedstock C/N Ratio Human 8 Cow 25 Pig 18 Chicken 8
  • 33.
    CHAPTER 3. TECHNICALBACKGROUND 21 3.4 Biodigester Designs An extensive range of biodigester designs currently exist, each for its own specific application. These include large-scale processing plants for all types of biomass, medium-scale designs for farms or restau- rants and small single-stage designs predominant in developing countries. The primary focus of this review is the single-stage designs, as their simplicity and relatively low cost make them applicable in developing regions of the world. Small-scale designs vary in a number of different ways according to shape, size, complexity and ma- terials. Nonetheless, it is possible to categorise most designs into one of three models; fixed dome, floating drum or plug flow. Additionally, designs can be classified by their construction techniques; prefabricated or permanent structure. On-site permanent biodigesters have historically been the most reliable and widely implemented, however recent improvements in prefabricated technologies are seeing the emergence of these as a viable alternative. 3.4.1 Fixed Dome The fixed dome biodigester (Figure 3.2) is the most simple and reliable of the three major designs. It originated the 1950s and is now common throughout China and Africa (Amigun and Stafford, 2011). It usually consists of a cylindrical structure for waste storage with a dome-shaped gas collection area situated above. A displacement pit is included to collect digested slurry. The design relies on pressure created by the collection of biogas to force the slurry out of the digester and into the displacement pit. Figure 3.2: Fixed dome biodigester (Weir, n.d.) Fixed dome digesters have an expected lifespan of 20 years as there are no moving parts or corrosion prone surfaces, leaving few potential sources of failure (SNV, 2007). Cement and brick are the most common construction materials, used for their durability and suitable thermal properties. Fixed dome digesters are often buried underground, providing additional insulation and reducing spatial requirements.
  • 34.
    CHAPTER 3. TECHNICALBACKGROUND 22 Amigun and von Blottniz (2010) note that the average cost of a fixed dome digester constructed in South Africa is 860 USD, which is significantly cheaper than 1420 USD required for a floating drum digester in the same location. Similarly in India the price for a 3m3 fixed dome system was 450 USD cheaper than a floating drum digester of the same size (Singh and Sooch, 2002). Construction is difficult and labour intensive, usually taking three people at least two days and requir- ing the supervision of a qualified technician (Rwanda Utilities Regulatory Agency, 2012). Gas leakage is also an issue as it is difficult to create a completely gas-tight environment from cement and brick. Also, as the rate of biogas production from anaerobic digestion is not constant, the fixed volume for gas collection provides a variable pressure output, complicating combustion applications. 3.4.2 Floating Drum Floating drum biodigesters (Figure 3.3) are common in India, where over 4 million models are currently in operation (Kaniyamparambil, 2011). The design consists of an underground chamber, similar to that of the fixed dome digester, with a metal drum above. This drum moves up and down in a guiding jacket depending on the volume of biogas held in the system. As the volume of the gas collection system is able to adapt to the variable gas production a relatively constant gas pressure can be achieved from this system which is desirable from a combustion perspec- tive. The volume of gas held within the system can also easily be determined by the height at which the drum is raised. A floating drum biodigester is more expensive compared to fixed dome and plug flow digesters, pre- dominantly due to the cost of the large metal drum. Regular maintenance adds additional costs and labour that are not required for fixed dome or plug flow digesters. Rust must be removed from the drum as well as regular painting to prevent corrosion. Dried slurry must be regularly removed from the metal drum surface to ensure the drum can move freely. Even when these maintenance procedures are adhered to, the average lifespan of a floating drum digester in tropical regions approximately five years (SNV, 2007).
  • 35.
    CHAPTER 3. TECHNICALBACKGROUND 23 Figure 3.3: Floating drum biodigester (Thai Biogas Energy Company, 2008) 3.4.3 Plug Flow Plug flow biodigesters (Figure 3.4) are plastic membranes, typically polyethylene, with length to width ratios of approximately five (Mart’i-Herrero and Cipriano, 2012). Manure is transferred lengthwise along the digester with no mixing between different heights or widths. In this way the ejected effluent is guaranteed to be the most digested waste. Figure 3.4: Plastic tube plug flow biodigester. Adapted from Energypedia (2014) The advantage of plug flow digesters is that they are portable and inexpensive. The plastic membrane is usually placed in a trench during operation and can be easily emptied and transported if required. Xuan et al. (1997) estimates the costs of a 4 m3 plug flow digester to be 50 USD in Vietnam, which is on average six to seven times cheaper than other local fixed and floating drum alternatives. Polyethylene is weak and can be punctured easily by a number of means including a stray animals (Mart’i-Herrero and Cipriano, 2012). Additionally, as top half of a plug flow digester is located
  • 36.
    CHAPTER 3. TECHNICALBACKGROUND 24 above ground, it is poorly insulated and susceptible to temperature fluctuations. Kanwar and Guleri (1994) analysed the performance of a fixed dome and plug flow type biodigestser of the same capacity, concluding that the daily average biogas production of the plug flow digester was 33% less than the fixed dome. 3.4.4 Prefabricated Technologies Versus Permanent Structures Permanent brick and concrete biodigester structures have been the most commonly implemented biodigester systems since the inception of the technology, however portable, prefabricated designs are emerging to offer solutions to the lack of related with traditional permanent designs. The motivation behind these prefabricated biodigesters is to produce “...technically reliable, highly adaptable, easily transportable, and reasonably priced” products (Cheng et al., 2014). Specific situations where traditional biodigester technologies are inappropriate: • Locations with high ground water levels, such as coastal areas where constructing on-site con- crete, stone or brick digesters is difficult. • Remote areas, such as mountain regions, where providing and transporting conventional con- struction materials is difficult. • Sites with inadequate conventional construction materials and a specialized labour force. • Residential areas that are rebuilt as a result of land reform measures, thus affecting the perma- nent site locations of conventional digesters. These issues prompted the Chinese National Development and Reform Commission to release a report on biodigester designs which concluded that “...traditional brick and concrete-based digesters do not meet the requirements for commercialization and large-scale implementation, whereas prefabricated biogas digesters are promising technologies for dissemination” (El-Mashad and Zhang, 2010). Cur- rent prefabricated designs can be divided into two categories; bag digesters and composite material digesters. Bag digesters are predominantly variations of the typical polyethylene plug flow digesters. These biodigesters are more suited to rural areas where there is less chance of damage and greater spatial availability (Cheng et al., 2014). A common type of composite material digester is the fiber-reinforced plastic model (FRP). This model is based on the fixed dome digester but its lightweight construction makes it portable and durable with a high rate of productivity (Jiang et al., 2010). Currently the costs of these designs is high, however with market growth and economies of scale this is expected to decrease substantially (Cheng et al., 2014). A dismountable FRP is shown in Figure 3.5.
  • 37.
    CHAPTER 3. TECHNICALBACKGROUND 25 Figure 3.5: Dismountable FRP biodigester model (Cheng et al., 2014) Another example of composite material digester is the modified water tank design (Figure 3.6). These designs use existing water tanks to reduce costs yet still provide the portability and reliability of FRP designs (Jiang et al., 2010). Figure 3.6: Biodigester created from existing water tanks in Cambodia (Engineers Without Borders, 2011) The ARTI model (Figure 3.7), created by an NGO in Maharashtra, India, is a composite material digester based on the traditional floating drum digester. It uses cut-down high-density polyethylene tanks for the digester and drum. The design costs only approximately 200 USD, significantly cheaper than current steel and brick models, though currently the design can only be constructed on a very small scale (ARTI, 2014).
  • 38.
    CHAPTER 3. TECHNICALBACKGROUND 26 Figure 3.7: ARTI bioidigester: A prefabricated plastic product based on the existing floating drum design (Zu, 2005) After review of the different biodigester models, it is obvious that prefabricated systems offer more opportunities for implementation in the developing world over permanent fixed dome and floating drum designs. They do not require large areas of land or holes to be created, and can simply be transported to a particular location, and relocated when required. These advantages also extend to a biodigester toilet system; a portable design would enable widespread implementation without the need for large land areas or specialist construction techniques. The system could be constructed offsite by an NGO or similar party, and provided to a community with little cost on available space. 3.5 Existing Biodigester Toilets Currently, several successful combined biodigester toilet systems exist, although they are almost ex- clusively permanent structure designs which share many of the disadvantages of traditonal permanent biodigester technology. One such design was developed during an Engineers Without Borders (EWB) challenge. A group of undergraduate students from the University of Adelaide designed and built a portable biodigester toilet system, however it proved to be unsuccessful. It is clear there exists a lack of successful, inexpensive and portable designs that incorporate both a toilet and biodigester with the goal of providing a solution to unsafe sanitation and producing usable biogas. 3.5.1 Engineers Without Boarders Challenge (2011) In 2011, a group of undergraduate engineering students supported by EWB were presented with a series of health, energy and environmental issues that faced the village of Devikulam in India. It was essential that their proposed solution to these issues be cheap, simple, safe, and have a positive impact on the lives of the people of Devikulam. The team decided that a biodigester toilet system would
  • 39.
    CHAPTER 3. TECHNICALBACKGROUND 27 be a suitable solution to a lack of clean cooking sources and health issues related to open defecation (Ashley et al., 2011). The group’s final design (Figure 3.8) utilised two large (5.5 m x 1.8 m x 1.5 m) concrete and brick tanks, emptied biannually. A slab with toilet facilities was placed over the top of these tanks, providing a convenient location for waste disposal. The design also included an animal waste trough, so farm manure could be disposed of in the same system. A large flexible membrane was used to collect the biogas produced and the tanks were buried in the ground to provide insulation. Figure 3.8: EWB Challenge biodigesting toilet (Ashley et al., 2011) This design provides an excellent method of utilising both human and animal waste to produce biogas, and addresses the issue of unsafe sanitation and its associated health problems by providing a toilet facility. However, as the system is a permanent structure built from concrete and brick, it is still restricted by the disadvantages of traditional biodigester technology, namely portability and space requirements. While it addresses the needs of a single village it is not suitable as a global solution as it cannot be easily manufactured and distributed throughout the developing world. 3.5.2 Adelaide University Honours Project 777 (2009) In 2009, under the supervision of Dr. Steven Grainger and Dr. Colin Kestell, a group of Mechanical Engineering students from The University of Adelaide designed and constructed a biodigester toilet system. The overarching goal of the project was to effectively sanitise “human waste so that its effluent is safe for reuse, producing a form of fuel that can be used to cook meals and aid in the daily lives of
  • 40.
    CHAPTER 3. TECHNICALBACKGROUND 28 users and must cost nothing to run.” (Coffee et al., 2009). The project team worked in conjunction with two students from The University of Douala, Cameroon, and the system was designed to be implemented specifically in this region. The criteria guiding the design of the prototype were (Coffee et al., 2009); • The system must fit in a highly populated environment • The system must effectively treat human waste to reduce the spread of waterborne diseases • There must not be any stagnant water that provides malaria carrying mosquitoes to breed • A sustainable fuel that can be used for heating and cooking must be produced • The system must not require electrical input for operation • The system must be simple to operate • The system must be inexpensive The final design utilised two polyethylene water tanks, a series of plumbing and gas fittings and a marine toilet. The two polyethylene water tanks served as the main anaerobic digestion chamber, while the marine toilet utilised a manual pump to input waste into the system. The marine toilet pump also allowed the toilet to be situated at ground level. The biodigester used crushed bricks to increase the surface area available for anaerobic bacteria to cultivate (Coffee et al., 2009; Stephenson, 1987). Two tanks were used to act as a baffle system, increasing the retention time of the system (Coffee et al., 2009). The tanks could also be isolated, so that the entire system was portable. To collect any biogas produced, both flexible membranes (Figure 3.9) and a floating drum style gasometer (Figure 3.10) were employed, both of which experienced complications.
  • 41.
    CHAPTER 3. TECHNICALBACKGROUND 29 Figure 3.9: Prototype design with flexible membrane gas collection (Coffee et al., 2009) Figure 3.10: Prototype design with gasometer gas collection (Coffee et al., 2009) There were several issues with the design and testing procedure, which resulted in little biogas being collected (Coffee et al., 2009): • Biogas production was insignificant • Conditions were too cold for anaerobic digestion (< 10◦C) • Retention time was too short • Hand pump for toilet was susceptible to clogging • Flexible gas collection membrane continually leaked at seals and pipe connections
  • 42.
    CHAPTER 3. TECHNICALBACKGROUND 30 • Gasometer collection method created back pressure issues, driving biogas back into the system Based on these issues the following improvements were suggested (Coffee et al., 2009): • Insulating the system to control the internal temperature and promote anaerobic digestion • Enlarging the system to increase retention time • Use a solar water purification system for post-processing of effluent • Investigate pre-processing of waste to prevent the pumps susceptibility to blockage • Use purpose built tanks to prevent gas leaks Honours Project 777 provided an excellent basis for the development of new biodigester toilet designs by creating a portable and inexpensive design. However, significant improvements are required to overcome the complications with the effectiveness of the design. With consideration to the overall project aim, the best single solution to poor sanitation practices and household air pollution is a combined biodigester toilet system. It provides a method of separating excreta from human contact at the source, and produces clean burning biogas which can replace solid fuels. The anaerobic treatment process significantly reduces the pathogens present within the waste, and creates a safe product that can be used as a fertiliser. Different biodigester designs were evaluated in Section 3.4, and it was concluded that prefabricated, portable biodigesters offer a number of advantages over traditional, permanent structures. A review of existing biodigester toilet designs revealed that although they do exist, many are not portable and require large, permanent structures. The portable systems that do exist have not been effective, and significant improvements to their design can be made. Based on the current state of technology, there is a clear need for the design and construction of a portable biodigester toilet system.
  • 43.
    Chapter 4 Scope, Objectivesand Timeline 4.1 Scope Through successful design, construction, and implementation, a biodigester utilising human waste as a feedstock provides a stand-alone waste management facility that does not require a municipal waste system. A biodigester toilet also provides a means of producing biogas for cooking, heating, and lighting. Providing a waste management facility, and a means of producing biogas in one system will improve the quality of life for millions of people in the developing world. Billions of people living in wealthy countries enjoy the use of improved sanitation facilities and clean burning cooking gas, and a biodigester toilet will enable citizens of developing nations to enjoy the same standard of living. The scope of the project encompasses the design, build, and preliminary testing of a prototype biodi- gester toilet system. Beyond these achievements, future work may involve developments to the design or material selection for economic mass production, and implementation into developing communities. This would be done in conjunction with the development of education programs detailing the correct operation of a biodigester toilet, to maximise system effectiveness, and guarantee the safety of those using the system. 4.2 Core Objectives Objectives were formulated within the scope of the project and defined in a measurable manner for assessment of project success. The objectives and measurements of success are listed below. 1. Design and build a portable toilet that meets the definition of a Shared Sanitation Facility, as outlined by the WHO/UNICEF Joint Monitoring Program (JMP) for Water Supply and Sanitation. 31
  • 44.
    CHAPTER 4. SCOPE,OBJECTIVES AND TIMELINE 32 Measurement: If the system ensures hygienic separation of human excreta from human contact, and is shared by the equivalent of two or more households (WHO and UNICEF, 2013), then this goal will be achieved. 2. Include a functioning biodigester component in the design that is capable of harnessing the human waste collected in order to produce biogas. Measurement: The success of this goal will be based on the biogas production rate (litres of biogas per kilogram of feedstock). A minimum numerical target of 10L per kg of feedstock was set after reviewing literature on typical biogas production rates. 3. Integrate the toilet with the biodigester to create a portable biodigester toilet unit. Measurement: The system will be designed to accommodate a toilet attached to the inlet pipe. The system will also be disassembled, moved, and reassembled during the testing phase to demonstrate portability. 4. Ensure the design is acceptable for implementation and use in Australia by adhering relevant Australian standards. Measurement: A detailed analysis of the design in regard to the relevant Australian standards on sanitation and gas production and storage will be performed. Other relevant and insightful standards will also be identified. 5. Demonstrate a viable use for the gas generated by the biodigester. Measurement: The goal will be met if the application of biogas is successfully demonstrated by the use of typical equipment such as a cook stove or lamp. 4.3 Extension Goals 1. Design and build a suitable cubicle to house the toilet. Measurement: If a cubicle is designed and constructed to a suitable standard, determined by qualitative analysis, then the goal will be met. 2. Research and design possible methods of effective post-treatment for both liquid and solid com- ponents in order to ensure the effluent exiting the system poses no health or environmental risks. Measurement: Qualitative analysis of the effluent to detect pathogens and other harmful components will be performed in order to ensure that it is of an acceptable quality.
  • 45.
    CHAPTER 4. SCOPE,OBJECTIVES AND TIMELINE 33 4.4 Project Timeline The timeline for the design and build of a biodigester was defined using a Gantt chart (see Appendix A). This Gantt chart listed all major milestones and their due dates, as well as a strict timeline to be followed by the team in order to achieve these milestones. Review gates were listed in a table (Table A.1 in Appendix A). These review gates were designed to ensure that the team stayed up to date with all requirements. Major milestones and their completion dates were also listed. These are shown in Table A.2 of Appendx A.
  • 46.
    Chapter 5 Design Formation Thedesign formation phase of the project involved identifying the requirements of the system for it to provide the maximum benefit to the end user while meeting the core project objectives outlined in Section 4.2. A list of design criteria was produced to assess the effectiveness of a design at meeting these objectives. Several conceptual designs were proposed and evaluated against these design criteria. 5.1 Standards and Recommendations To ensure the design was safe, effective and robust, it had to comply with relevant Australian standards. Designing the system to Australian standards also ensured that it could be ethically implemented in communities lacking in strict safety guidelines. Recommendations from a consultation report produced for the Australian Pork Association provided a Code of Practice (CoP) for on-farm biogas production, and use on piggeries (Davidson et al., 2013). These were followed for the project to ensure that all relevent standards were met, and there were no major safety issues with the design. The CoP was specifically written for biogas installations implemented in large-scale piggeries, therefore most of the recommendations were irrelevant. A description of the standards relevant to a small scale biodigester toilet are presented in Table 5.1. Additionally, the recommendations provided by the Australian Pork Association CoP that could apply to the design and build of a small scale biodigester are shown in Table 5.2. 34
  • 47.
    CHAPTER 5. DESIGNFORMATION 35 Table 5.1: Relevant Australian Standards (Davidson et al., 2013) Standard Description AS 2885 (2008) Applies to steel pipelines, and associated piping and components that are used to transmit single and multi-phase hydrocarbon fluids, such as natural and manufactured gas, liquefied petroleum gas, natural gasoline, crude oil, natural gas liquids, and liquid petroleum products. AS 4041 (2006) Sets out minimum requirements for the materials, design, fabrication, testing, inspection, reports, and pre-commissioning of piping subject to internal pressure or external pressure or both. Specific requirements are given for piping constructed of carbon, carbon-manganese, low alloy and high alloy steels, ductile and cast iron, copper, aluminium, nickel, titanium, and alloys of these materials. AS 4130 (2009) Specifies requirements for polyethylene pipes for the conveyance of fluids under pressure. Such fluids include, but are not restricted to: water, wastewater, slurries, compressed air, and fuel gas. Fuel gas includes natural gas, liquefied petroleum gas (LPG) in the vapour phase, and LPG/air mixtures. AS/NZS 3814 (2010) Provides minimum requirements for the design, construction, and safe operation of Type B appliances that use town gas, natural gas, simulated natural gas, liquefied petroleum gas, tempered liquefied petroleum gas, or any combination of these gases either together, or with other fuels. AS 1375 (1985) Sets out the safety principles relating to the design, installation, and operation of industrial appliances that involve the combustion of gas, or oil, or other fuel in air suspension, or the generation of combustible vapours in such appliances. It is clear that both open and enclosed flares are industrial appliances that involve the combustion of gas, so AS 1375 is applicable to both. AS 5601.1 (2010) This standard contains the mandatory requirements, and means of compliance for the design, installation, and commissioning of gas installations that are associated with the use or intended use of fuel gases such as natural gas, LP Gas, biogas, or manufactures gas.
  • 48.
    CHAPTER 5. DESIGNFORMATION 36 Table 5.2: Relevant recommendations for biogas installations relating to a small scale biodigester toilet (Davidson et al., 2013) Relevant Area Recommendation Materials selection, digester design Low levels of hydrogen sulphide present in biogas can corrode some materials. All plastics are suitable for contact with manure, however Polyvinyl Chloride (PVC) piping must be UV resistant. Copper, and steel (with the exception of stainless steel) should never be used. Safety Digesters must be fitted with a hydraulic pressure relief, and vent stack or equivalent component. Safety Waste storage structures must be tightly sealed to avoid exposure to effluent. Safety, pipeline design A shutoff valve must be included in front of any component that utilizes the biogas (eg. Generators) in a gas line. This valve must shut automatically when the component ceases operation. Environmental protection Biogas installation must seek maximum recovery of methane within the feedstock to prevent uncontrolled release to the atmosphere. Safety Biogas appliances must have the Gas Safety Certification Mark. Environmental protection Biogas installation must have an emergency flare system. This will prevent venting of biogas into the atmosphere. The flare must be capable of handling the entire volume of biogas contained within the digester. Materials selection, pipeline design, gas storage All plastics apart from PVC and Polypropylene (PP) can be used for biogas storage and conveyance. PVC can be used if it is UV resistant. PP can be used if no fat is present in effluent. Copper, brass, butyl rubber, and steel (with the exception of stainless steel) should never be used. Safety, pipeline design Biogas pipelines should be operated at pressures less than 100 kilopascals (kPa) for transfer distanced of less than 4000m. Safety All piping components subject to pressure above atmospheric pressure must have a pressure relief valve. Pipeline design Pipelines transferring biogas must have a constant minimum slope of 2%, and must have provisions for condensate removal.
  • 49.
    CHAPTER 5. DESIGNFORMATION 37 Safety No open flames should be within six metres of plant, and appropriate warning signs should be in place. Safety, gas storage Pressure free membrane bags fitted with condensate removal and over-pressure release valves, located in the open, attached to the ground and protected from damage with a suitable restraining system are acceptable. 5.2 Overall Design Specification The project objectives outlined in Section 4.2 determined the requirements necessary for the design to meet. The toilet was to meet the WHO definition of a shared sanitation facility, as outlined in Section 2.1. Therefore, the system had to adequately separate faeces from human contact, and be designed for shared use (WHO 2013). The system also had to incorporate a biodigester component that produced biogas for use as an alternative to solid fuels, and be capable of safely storing this gas. The biodigester and sanitation facility were required to be a single portable system that could be easily transported, adressing the inherant problem with traditional fixed dome and floating drum biodigesters which are typically permanent brick structures installed below ground level. A portable system is particularly suitable for refugee camps (where construction materials are often in short supply (Fenner et al., 2007)), building sites (which are typically only temporary sites), high-density urban areas in developing countries without access to proper sanitation, and where large-scale infrastructure redevelopment commonly occurs (Mara and Alabaster, 2008). Post treatment of the feedstock was an important extension objective of the project. This encompassed recycling any water remaining from digestion, and ensuring effluent exiting the system posed no health or environmental risks. The anaerobic digestion process is typically sufficient to completely remove most harmful pathogens from faecal matter (Masse et al., 2011). However, post treatment is necessary to safely dispose of waste with a higher degree of certainty, especially in areas where disposal occurs in waterways used for drinking sources. 5.3 Design Criteria Design Criteria were employed to evaluate initial concept solutions and were fundamental in guiding the design process for selection of the final design. The criteria were chosen and weighted to best represent the needs and environmental conditions of the end user. To cover a wide range of possible end users, it was assumed that the design would be implemented in developing communities. For
  • 50.
    CHAPTER 5. DESIGNFORMATION 38 these regions, an appropriate technology approach was developed to accommodate a limited technical understanding and resources available in these areas. There are a number of examples, such as in Chinhoyi, Zimbabwe (Chinyama, 2013) and Dar es Salaam, Tanzania (Tumwine et al., 2002) where large, traditional sewage systems were installed with help from external agencies. These facilities could not be properly constructed and maintained by the local population, and were subsequently abandoned. Thus, an appropriate technology approach was employed to avoid similar issues. Focus on an appropriate humanitarian engineering approach to technology in developing countries has gained prominence in recent years. Murphy et al. (2009) described it as technology that: • Meets the essential basic needs of the end user • Is sound and flexible • Meets local capabilities through materials and resources Following these ideologies ensured that end user’s dependence on external intervention would be reduced, thus achieving a more sustainable solution. The following design criteria were chosen in accordance with these principals: Function The ability of the biodigester toilet to effectively separate human waste from human contact while producing meaningful amounts of biogas. Cost Cost must be minimised in order for it to be affordable for implementation in developing com- munities. Constructability Materials required for the design should be sourced locally where possible. Construction must also be possible with basic skills and without excessive labour. Acceptability The design must be easy and intuitive to use. It must also accommodate the existing cultural practices of the end users. Reliability A reliable design enables the end user to be less dependent on external intervention for mainte- nance, and more committed to ensuring long term use. Portability A portable biodigester toilet enables the system can be constructed off-site, or relocated if required.
  • 51.
    CHAPTER 5. DESIGNFORMATION 39 In order to quantify the extent to which a design met these criterion, a numerical score for each criterion was given. An initial score of zero was assigned; if the design contained a feature giving a major advantage or disadvantage to the criterion two points were added or subtracted respectively. Similarly one point was added or subtracted for a minor advantage or disadvantage respectively. Each criterion was considered equally weighted, and the individual criterion scores were added to produce a final score for each design. 5.4 Essential Design Features Before concept designs were generated, a number of design features were identified as being essential to ensuring an effective design. These features were common to each concept design. Growing Medium Crushed bricks or similar materials increase the surface area on which anaerobic bacteria can cultivate, creating a higher density of bacteria, in turn accelarating the anaerobic digestion process (Stephenson, 1987). It is not essential that the growing medium be crushed bricks to achieve this result, rather, any material that would sink to the bottom of the digester to create a larger surface area would suffice. Crushed bricks were specified in this case as they are a low cost material that is widely available. Outlets Outlets were to be included on the digester to release feedstock once it had undergone the diges- tion process. These outlets were to be large enough to allow both solid and liquid components to exit the system. Inflatable Membrane An inflatable membrane was to be used for gas collection. This is a simple and versatile collection system that can easily be incorporated into any design. It is also portable, greatly simplifying the process of extracting gas samples for analysis. Considering practical applications of the gas, portability is desirable as the gas will likely be more useful at a location separate to the biodigester toilet. A disadvantage of inflatable membranes is that they are easily damaged and require additional protection to reduce the risk of leaks. Biodigester Type As discussed in Section 3.4.3, plug flow digesters are inferior to fixed dome and floating drum models in terms of biogas production and thus were immediately eliminated from design consid- eration. Poor insulating properties result in a requirement of external heat addition to maintain conditions favourable for anaerobic digestion. The fragile nature of a polyethylene bag system
  • 52.
    CHAPTER 5. DESIGNFORMATION 40 also contributed to this decision, as the design is intended for rural, developing communities, where free roaming livestock is common, and the risk of puncture is likely. These factors indi- cate that the plug flow biodigester model is not suitable at achieving the project aim as poor biogas production will not reduce dependence on solid fuels. Thus, fixed dome or floating drum digesters are the remaining suitable types to be considered. 5.5 Conceptual Designs After a set of design criteria and essential design features were identified (Sections 5.3 and 5.4), four concept designs were created. These concepts varied in regards to the location of waste input and toilet, the number of digestion vessels, and the implementation of either fixed or floating drum sub- systems. 5.5.1 Concept Design 1 Figure 5.1: Concept Design 1 The first concept design (Figure 5.1) utilises a single tank to digest the waste in a fixed dome. When compared to a dual tank system, a single tank reduces both cost and construction complexity as fewer parts and less space is required. It features an inlet pipe that starts at the top of the tank and continues to the base. This bottom feeding system allows the new waste to flow directly to the anaerobes on
  • 53.
    CHAPTER 5. DESIGNFORMATION 41 the growing medium at the base of the tank, while the older semi-digested waste is pushed upwards. Bringing the fresh waste in contact with the bacteria present on the growing medium allows for more effective gas production (Stephenson, 1987). Additionally the bottom feeding pipe, if always below the liquid level, will prevent gas flowing back up the inlet. The additional length of pipe increases the risk of blockages. The toilet is located at the base of the digestion tank, which is desirable in terms of accessibility, but will require a pumping mechanism to transport the feedstock to the inlet pipe at the top of the digestion tank. This complicates construction, maintenance, and adds to costs. The evaluation of this design in regards to the design criteria is shown in Table 5.3.
  • 54.
    CHAPTER 5. DESIGNFORMATION 42 Table 5.3: Concept Design 1 design criteria analysis Criteria Concept Design 1 Function (-1) • Single tank does not allow settling of solid and liquid components for water recycling (-2). • Biogas output from a fixed dome is of variable pressure, causing difficul- ties with combustion (-2). • Bottom feeding inlet pipe reduces gas back-flow issues (+2). • Bottom feeding inlet accelerates gas production (+1). Cost (0) • Single tank reduces number of parts required and costs (+1). • Requires pumping mechanism (-1). Constructability (+1) • Single tank requires fewer parts reducing construction time (+2). • Pump complicates construction (-1). Acceptability (0) • Pump requires maintenance and power (-2). • Single tank requires less space (+1). • Toilet at ground level is desirable (+1). Reliability (+1) • Fewer tank connections reduce potential leaks (+1). Portability (-2) • Single large tank more difficult to transport than two smaller tanks of the same combined size (-2). Total (-1)
  • 55.
    CHAPTER 5. DESIGNFORMATION 43 5.5.2 Concept Design 2 Figure 5.2: Concept Design 2 The second concept design (Figure 5.2) is a two tank system. The use of two tanks increases the portability of the design, as it is easier to transport two small tanks as opposed to a single large tank of the same volume. The second tank also allows for the settling of solid and liquid components of the feedstock to subsequently be treated by a water filtration system. The filtered water can then be recycled for use in flushing the toilet or safely released into the environment. The toilet is located at ground level with the inlet pipe entering at the base of the digestion tank. This method has the advantages of directly feeding the waste into the anaerobes on the growing medium, and preventing gas flowing back out of the toilet. It also minimises the increased risk of blockages that existed in Design Concept 1 by reducing the length of inlet pipe. As the feedstock inside the digestion tank will be above the water level of the toilet, feedstock backflow issues will need to be overcome. The process involved with this second conceptual design is as follows: 1. The inlet pipe takes the feedstock to the bottom of the first tank. 2. Gas collects at the top of this tank and flows into the collection system. 3. After half the total retention time of the system has passed, the valve connecting the two systems is opened, and the effluent is allowed to flow into the second tank. 4. The waste is stored in the second tank for the same duration that it is stored in the first, completing the total retention time of the system. The second tank is also used as a settling tank for the liquid to then be collected in the filtration system. 5. While the original effluent is being treated in the second tank, the first tank is refilled through
  • 56.
    CHAPTER 5. DESIGNFORMATION 44 daily use. The first tank will fill once the second tank digestion has completed the designed retention time. 6. Once the retention time is reached, the sedimentation tank is emptied. The connecting valve between the two tanks is then opened to allow waste to flow into the now empty second tank and the cycle continues. Table 5.4: Concept Design 2 design criteria analysis Criteria Concept Design 2 Function (+1) • Second tank allows for implementation of settling and filtration system (+2). • Biogas output from a fixed dome is of variable pressure, causing difficul- ties with combustion (-1). • Filtration system allows water to be recycled (+2). • Inlet pipe may cause backflow issues (-2). Cost (-3) • Two tanks require additional fittings (-1). • Filtration system is expensive (-2). Constructability (-2) • Filtration system is diffucult to construct (-1). • Additional connections for dual tanks increase construction time (-1). Acceptability (+1) • Filter requires frequent maintenance (-2). • Reduced water input (+2). • Toilet at ground level is desirable for user (+1). Reliability (-1) • Extra connections increases likelihood of gas and liquid leaks (-1). Portability (+2) • Two small tanks more portable than one large tank (+2). Total (-2)
  • 57.
    CHAPTER 5. DESIGNFORMATION 45 5.5.3 Concept Design 3 Figure 5.3: Concept Design 3 The third conceptual design is a dual tank system, however it differs from Concept Design 2 as the second tank is a floating drum design used as a secondary digestion tank and gas storage vessel. The major advantage of the floating drum tank over the fixed drum is constant gas pressure which is ben- eficial for gas burning applications. The floating drum increases the complexity of both construction and maintenance, as the drum is required to rise and fall freely with varying gas production. Gas backflow issues can also arise with a floating drum collection system as identified in Section 3.5.2 due to the weight of the floating drum, which has the potential to push the gas back into the first tank. The secondary tank in this design still allows for the settling and potential recycling of the liquid component of the feedstock. In this design, the toilet and inlet are located at the top of the first digestion tank. This may introduce some acceptability issues as users would prefer the toilet be at ground level, however it does provide the major advantage of gravity feeding waste into the system which removes the need for any pumping mechanism. A support framework would be required to support both the user and toilet on top of the digestion tank, adding to costs. The process involved with this conceptual design is as follows: 1. Feedstock enters the first tank through the inlet tube. 2. Biogas is generated and collected in the first tank. 3. When the feedstock reaches a certain height in the tank, it is released into the second tank. 4. Gas is passed onto the second tank through a pipe connecting the tops of both the tanks.
  • 58.
    CHAPTER 5. DESIGNFORMATION 46 5. The second tank is a floating drum design that accepts feedstock through the outlet pipe of the first tank. 6. Biogas is generated in the same method as the first tank. As the level of gas in the tank increases, the floating drum rises until it reaches the maximum level. 7. At this point, the gas in both the tanks is assumed to be filled to capacity. A gas pipe with a valve is present at the top of the second tank to release the gas for practical use. 8. The feedstock in the second tank can be released through an outlet pipe, and the effluent can be used as a fertiliser following the same concept as a composter.
  • 59.
    CHAPTER 5. DESIGNFORMATION 47 Table 5.5: Concept Design 3 design criteria analysis Criteria Concept Design 3 Function (+5) • Second tank allows for potential implementation of settling and filtration system (+2). • Floating drum provides constant gas pressure for constant gas combus- tion (+1). • Feedstock can be gravity fed into system (+2). Cost (-3) • Dual tanks require additional connecting parts (-1). • Floating drum is more expensive than fixed dome (-1). • Infrastructure required for mounting toilet (-1). Constructability (-2) • Construction is complicated by floating drum (-1). • Requires additional infrastructure to support toilet (-1). Acceptability (-1) • Complicated maintenance of floating drum (-1). • Toilet is difficult to access at the top of the digestion tank (-1). • Constant gas pressure simplifies gas combustion (+1). Reliability (-3) • Extra connections increase likelihood of leaks (-1). • Greater risk of failure in floating drum compared to fixed dome (-1). • Floating drum introduces potential gas backflow issues (-1). Portability (+2) • Two small tanks easier to move than one large tank (+2). Total (-2)
  • 60.
    CHAPTER 5. DESIGNFORMATION 48 5.5.4 Concept Design 4 Figure 5.4: Concept Design 4 Concept Design 4 is a dual tank, fixed dome system, with the addition of a stirrer to the first digestion tank. The stirrer breaks up the layer of scum that forms on the surface of the feedstock inside the tank. This scum layer forms a physical barrier between the gas production at the base of the tank and the gas collection at the top of the tank. By rotating the stirring arm this layer is disturbed, enabling the free flow of gas within the system. Construction and installation of the stirrer would require some technical skill and knowledge, and also increase costs. The toilet on this design is located at ground level with an inlet pipe entering at the top of the first digestion tank. This inlet method requires a pumping mechanism, but simplifies construction as no pipe needs to be installed inside the digestion tank. As the inlet pipe does not extend below the liquid level, gas flowing back through the toilet is a possible hazard associated with this design.
  • 61.
    CHAPTER 5. DESIGNFORMATION 49 Table 5.6: Concept Design 4 design criteria analysis Criteria Concept Design 4 Function (+2) • Second tank allows for settling and potential implementation of filtration system (+2). • Biogas output from a fixed dome is of variable pressure, causing difficul- ties with combustion (-1). • Inlet pipe may cause gas backflow issues (-1). • Stirrer increases biogas yield (+2). Cost (-5) • Two tanks require additional fittings (-1). • Stirrer is expensive (-2). • Pumping mechanism required (-2). Constructability (-2) • Stirrer is diffucult to construct and install (-2). • Additional connections for dual tanks increase construction time (-1). • Simplified construction of inlet pipe (+1). Acceptability (+1) • Increased biogas yield for practical applications (+2). • Toilet at ground level is desirable for user (+1). • Pump requires maintenance and power (-2). Reliability (-1) • Extra connections increases likelihood of gas and liquid leaks (-1). Portability (+2) • Two small tanks more transportable than one large tank (+2). Total (-3) 5.5.5 Concept Selection A summary of the evaluation of the concept designs can be found in the evaluation matrix (Table 5.7). Considering this table alone indicates that Concept Design 1 is the most appropriate although still a poor performer in functionality, portability, and acceptability. Furthermore, there was no standout candidate that addressed all criteria.
  • 62.
    CHAPTER 5. DESIGNFORMATION 50 Table 5.7: Evaluation matrix Criteria CD* 1 CD 2 CD 3 CD 4 Function -1 +1 +5 +2 Cost 0 -3 -3 -5 Constructability +1 -2 -2 -2 Acceptability 0 +1 -1 +1 Reliability +1 -1 -3 -1 Portability -2 +2 +2 +2 Total -1 -2 -2 -3 *CD: Concept Design As no individual concept design addressed all criteria effectively, the design features that varied be- tween concept designs were analysed independently to develop an optimal system configuration. A summary of the positive and negative design aspects can be found in Table 5.8. This table was used to determine the optimal aspects of each concept design, and develop a hybrid final design based on these positive features.
  • 63.
    CHAPTER 5. DESIGNFORMATION 51 Table 5.8: Design feature summary table Design Feature Options Positive Negative Score Waste input Top Less blockage (+2) Less parts (+1) Simple construction (+1) Gas backflow (-2) +2 Bottom Anaerobe contact (+1) No gas backflow (+2) Blockages (-2) +1 Toilet location Top of tank Gravity fed waste (+2) Accessibility (-1) Infrastructure (-2) -1 Ground level Easily accessible (+1) Pump (-2) Power input (-2) -3 Digestion tanks One Simpler construction (+1) Reduced cost (+1) Less space (+1) Less sources of leaks (+1) Less portable (-2) No settling tank (-2) 0 Two Increased portability (+2) Settling tank (+2) Construction (-1) Increased cost (-1) Leak issues (-1) +1 Biodigester model Fixed dome Simple construction (+1) Less maintenance (+1) Variable gas pressure (-2) 0 Floating drum Constant gas pressure (+1) Gas backflow issues (-1) Construction (-1) Maintenance (-1) -2 Stirrer - Increased biogas yield (+2) Expensive (-2) Construction (-2) -2 Water filter - Reduces water use (+2) Expensive (-2) Construction (-1) Maintenance (-2) -3 Based on Table 5.8 the following decisions were made: • The toilet will be located at the top of the digestion tank to eliminate the need for a pumping mechanism. • Waste will be fed to the bottom of the tank from an inlet at the top of the tank to ensure fresh feedstock is in direct contact with the anaerobes, and to eliminate gas backflow issues.
  • 64.
    CHAPTER 5. DESIGNFORMATION 52 • Two tanks mounted on pallets will be used to increase the portability of the system, as well as providing the option for water recycling through the use of a settling tank. • Fixed dome digestion tanks will be used to simplify construction and maintenance, and eliminate gas backflow issues associated with fixed dome digesters. • A water filtration system and stirrer will not be included in the final design due to the increased difficulty in construction, costs, and maintenance incurred if included. These decisions were used to produce the Final Concept Design (Figure 5.5). Figure 5.5: Final concept design The final concept design was subsequently evaluated using the same method performed on the original concept designs (Table 5.9). This design received a higher overall rating compared to the original concept designs and formed the basic layout of the final design.
  • 65.
    CHAPTER 5. DESIGNFORMATION 53 Table 5.9: Final concept design design criteria analysis Criteria Final Concept Design Function (+5) • Second tank allows for settling and potential implementation of filtration system (+2). • Biogas output from a fixed dome is of variable pressure, causing difficul- ties with combustion (-2). • Bottom feeding inlet pipe reduces gas back-flow issues (+2). • Bottom feeding inlet accelerates gas production (+1). • Feedstock can be gravity fed into system (+2). Cost (-2) • Two tanks require additional fittings (-1). • Infrastructure required for toilet (-1). Constructability (-2) • Additional connections for dual tanks increase construction time (-1). • Requires additional infrastructure to support toilet (-1). Acceptability (-1) • Toilet is difficult to access at the top of the digestion tank (-1). Reliability (-1) • Extra connections increases likelihood of gas and liquid leaks (-1). Portability (+2) • Two small tanks more transportable than one large tank (+2). Total (+1)
  • 66.
    Chapter 6 Final Design Afterthe preliminary layout was completed in the design formation phase (discussed in Chapter 5), available resources for the final design were considered. Necessary components were identified based on the resources and budget available including appropriately sized tanks, pipe fittings, and a gas collection system. Based on the tank sizes available for the digester, the number of people able to use the system was determined. An analysis was performed to identify the correct materials to use, in order to prevent corrosion and degradation from the feedstock and biogas. Analysis on available piping material was performed according to AS/NZS 4130 and AS/NZS 4645 to calculate the maximum allowable operating pressure (MAOP) of the gas network, and a safe operating procedure (SOP) was developed to ensure the system would never exceed this pressure. A stirring mechanism was also designed and constructed using basic metal fabrication techniques, and made out of easily sourced materials. 6.1 Final System Sizing After receiving sponsorship from Barrow and Bench Mitre 10 Malvern two Maxiplas 1000L round polyethylene rainwater tanks became available at a significantly reduced cost. In the interest of begin- ning the construction and testing phase of the project as soon as possible, these tanks were purchased as soon as they became available. With these fundamental components sourced, specifications were calculated in regards to the end user. 6.2 Number of End Users After the tanks were identified, the number of people able to use the system was determined in order to verify that the design could be considered a WHO Shared Sanitation Facility, as outlined in Section 54
  • 67.
    CHAPTER 6. FINALDESIGN 55 4.2. Variables considered include: • The number of people who will use the biodigester daily • The average amount of waste produced daily by humans • The ideal retention time for the waste in order to generate the most biogas • The number of tanks available • The volume of the tanks available It was found that that an average person produces approximately 500 kgs of urine and 50 kgs of faeces every year (Heinonen-Tanski and van Wijk-Sijbesma, 2004). From this yearly output, the weight of urine and faeces produced by humans in a day was calculated. Note, as a biodigester toilet can be implemented in a number of different regions, these numbers are subject to change depending on local diet and conditions. Average Fecal Matter Produced Per Day = 50 kg 365.25day = 0.137 kg day (6.2.1) Average Urine Produced Per Day = 500kg 365.25day = 1.37 kg day (6.2.2) Human urine has a specific gravity of between 1.002 and 1.035 (Ferreira, 2005); using the average of these values, the density of the human urine could be calculated. ρurine = Specific Gravity × 1000 kg m3 (6.2.3) = 1.02 × 1000 kg m3 = 1020 kg m3 The total daily liquid input to the system is the sum of flushing liquid from the toilet and human urine. It was assumed that each person delivers their total daily waste in a single use of the toilet. A common half-flush toilet uses approximately three litres of water per flush (Department of Industry, 2014). For the following calculations, the number of daily users of the toilet will be represented as U. Total Liquid Waste = (3L × U) + U × 1.37kg × 1m3 1020kg × 1000L m3 (6.2.4) = 4.34 × U (Litres)
  • 68.
    CHAPTER 6. FINALDESIGN 56 The average density of human faeces is approximately 1000 kg/m3 (Ferreira, 2005). Therefore, the total daily volumetric input to the system could be calculated from the sum of the solid and liquid components in the feedstock. Total Daily Input = (4.34 × U) + 0.137kg × U × 1m3 1000kg × 1000L m3 (6.2.5) = 4.48 × U (Litres) It is now possible to determine the volume of the digestion tanks required to achieve the minimum retention time of 30 days for steady state gas production (Suryawanshi et al., 2013). This volume is determined as a function of the number of users of the toilet. Volume of Digestion Tanks = 30days × Total Daily Input (Litres) (6.2.6) = 30 × (4.48 × U) Litres = (134.4 × U) Litres As discussed in Section 6.1, a total system volume of 2000L was acquired (two 1000L tanks). Using Equation 6.2.6, the number of people able to use the system whilst achieving the minimum retention time of 30 days could be calculated. 2000 = 134.4 × U (6.2.7) =⇒ U = 2000 134.4 =⇒ U = 14.88 Therefore, 14 people are able to use the system. Current census data from India and China indicates that the average number of permanent residents per household in rural areas is 5.4 and 3.88, respec- tively (National Bureau of Statistics of China, 2013; The Registrar General & Census Commissioner, 2011). As a group of 14 people can be considered larger than an average household, the system can be defined as a WHO Shared Sanitation Facility (WHO and UNICEF, 2014b). 6.3 Materials Selection Based on the CoP for biogas production and use in piggeries produced for Australian Pork by Davidson et al. (2013), tank structures can be constructed from all plastics, most stainless steels, clay, and
  • 69.
    CHAPTER 6. FINALDESIGN 57 concrete. This information is presented in Table 5.2. The tanks offered by Barrow and Bench Mitre 10 Malvern were polyethylene. Using polyethylene tanks ensured that any modifications required would be easier to perform than on a stainless steel tank. Stainless steel tanks are also significantly more expensive than equivalent polyethylene water tanks. For any pipes carrying feedstock, UV stabilised polyvinyl chloride (PVC) was chosen, again based on the information presented in Table 5.2. The added advantages of using PVC piping are the standardisation of fitting sizes, low cost, and wide availability; thus addressing the design criteria of ease of assembly and maintenance outlined in Section 5.3. For all pipes conveying biogas, polyethylene was chosen as the appropriate material, based on the information presented in Table 5.2. The fittings chosen to connect the biogas pipeline were constructed from a UV stabilised polypropylene copolymer. A UV resistant PVC biogas collection membrane, purchased from Shenzhen Puxin Technology Co. Ltd, was chosen to capture any biogas produced. Shenzhen Puxin is a Chinese manufacturer and trading company, specialising in medium and large sized biogas systems and accessories. Based on Table 5.2, UV resistant PVC was a suitable material for biogas storage. Neoprene rubber was used to create any seals required, due to its satisfactory resistance to CH4 and CO2 (MykinInc, 2014). 6.4 Waste Collection System After the two 1000L polyethylene tanks were purchased, final system dimensions and components were determined. During the preliminary design stage, final sizing of the system was impossible as no decision had been made on the exact tanks that were going to be used. Components of the waste collection system that had to be finalised included the waste inlet, tank lids, connection between the two tanks, and effluent outlets. The decisions pertaining to these components were made based on the concept design selection in Section 5.5.5. The final design process was simply an extension of the work undertaken in the design formation phase, where the two-tank system mounted on pallets was selected. Final drawings of the system and dimensions are presented in Appendix B. 6.4.1 Inlet Design To prevent gas flowing out of the first tank through the feedstock inlet, the inlet pipe was extended 1200 mm downwards into the first tank, so that its opening was always below the liquid level. This liquid seal prevented gas flowing up through the inlet pipe, and back out of the system; important when considering the end user of the biodigester toilet. When implemented, flammable gas flowing back through the inlet and out of the toilet would create a serious safety issue. Figure 6.1 shows the inlet pipe assembly. A drawing of the inlet assembly installed in the first tank can be seen in Appendix B.
  • 70.
    CHAPTER 6. FINALDESIGN 58 Figure 6.1: Drawing of inlet assembly (dimensions in mm) 6.4.2 Toilet Choice and Location 100 mm diameter sewerage grade PVC pipe was added to the top of the first tank, and was part of the overall inlet assembly. This pipe enabled the connection of a toilet bowl to the top of the first tank. By having the toilet mounted above the system, water could simply be poured into the bowl to flush waste into the first tank. Using gravity to drop the waste into the tank, removed the need for a pumping mechanism. The location of the toilet bowl then allowed for two potential design modifications. Either a frame with stairs could be built to allow access to the toilet, or the tanks could be buried in holes within the ground, thus placing the toilet at ground level. Burying the tanks would provide added insulation to the system, making implementation in colder climates possible, but would hinder the portability. 6.4.3 Lid Design At the time of purchase, both tanks contained large holes at the top. Lids were designed and con- structed to make the system as airtight as possible. In similar systems, the tanks would need to be checked for holes and leaks prior to operation to ensure the digestion process occurs in the absence
  • 71.
    CHAPTER 6. FINALDESIGN 59 of oxygen. The first tank contained a 365 mm diameter hole, and the second tank contained a 180 mm diameter hole. Two sections of 6 mm thick neoprene rubber were compressed over the holes using 7 mm exterior grade plywood, stainless steel screws, and exterior grade silicon sealant. On the second tank, an off-cut of polyethylene was used as an extra layer of compression. Holes were cut in the rubber, plywood, and plastic, and 25 mm diameter tank flanges and compression fittings were attached to provide connection to the gas pipe network. The assembled lid for the second tank in the system can be seen in Figure 6.2. The attached gas fittings for the first and second tanks are shown in Figures 6.3 and 6.4, respectively. Detailed drawings for the lids and gas connections can be found in Appendix B. Figure 6.2: Final attached lid for second tank in the system
  • 72.
    CHAPTER 6. FINALDESIGN 60 Figure 6.3: First tank attached gas connection Figure 6.4: Gas connection valve on second tank 6.4.4 Increasing Digestion Surface Area To provide an increased surface area for the anaerobic digestion process to occur, plastic bioballs, similar to those used in aquariums, were placed in the bottom of the first tank. These bioballs acted
  • 73.
    CHAPTER 6. FINALDESIGN 61 as a growing medium for the anaerobic bacteria. Although the concept designs outlined in Chapter 5 all utilised crushed bricks at the bottom of the digester to increase the surface area, bioballs were used in the final design to prevent blockage of the outlet taps. The two tanks acquired from Barrow and Bench Mitre 10 Malvern, contained 25 mm diameter threaded holes just above their bases. Because the hole was already threaded, taps were simply installed into the tanks, as discussed in Section 6.4.6. Because of this outlet diameter, crushed bricks had the potential to block the hole. However, crushed bricks could still be used if these holes were larger; an important consideration to make when implementing this system in a developing community without access to aquarium supplies. Figure 6.5 is an example of a typical bioball. The increased surface area provided bacteria a location to grow and produce a ‘biofilm’. Feeding the feedstock to the bottom of the tank brings it into direct contact with this biofilm, making the anaerobic digestion process more effective (Stephenson, 1987). Figure 6.5: A typical bioball shape (Foster and Smith, 2014) 6.4.5 Tank Connection Design As discussed in Section 5.5.5, it was decided that the two tanks would be connected to allow feed- stock transfer, increase portability, and provide a means of solids settling for potential effluent post- treatment. Locating the transfer point 860 mm above the base of the tanks was done for two main reasons; to ensure mostly liquid was transferred to the second tank to allow for solid settling, and to prevent the bioballs at the bottom of the first tank from entering the transfer pipe. Reducing the amount of solid feedstock transferred to the second tank would reduce the time required for sus- pended solids to settle. Clarification of the effluent via settling in the second tank was a precursor to post-treatment of the effluent. Although post-treatment of the effluent was outside the scope of this project, it was still important to design the system so that this could be implemented in future work.
  • 74.
    CHAPTER 6. FINALDESIGN 62 To prevent blockage by the feedstock, the diameter of the transfer pipe and fittings was 50 mm. PVC suction hose was used as the transfer pipe, due to its flexibility. When connecting two small tanks together, there is risk of one being knocked or moved out of place. If a rigid connection is used between two tanks and any movement occurs, there is significant chance of the transfer pipe cracking, and effluent spilling from the system. Flexible suction hose allows for some movement and will not crack. After inspection of the hose, it was deemed that a 500 mm length provided enough flexibility to allow for some movement of the tanks. Suitable sized holes were created in the two tank walls using a hole saw and drill, and 50 mm diameter PE tank flanges were attached, with two layers of neoprene rubber on either side of the tank wall to provide an extra level of protection from leaks. The flanges were tightened from both sides of the tank wall, compressing the neoprene rubber and forming a tight seal. The attached flange can be seen in Figure 6.6. Figure 6.6: Attached tank flange with neoprene seal A 50 mm internal diameter ball valve was attached to each tank flange. Having a valve on each tank allowed both tanks to be isolated, providing the ability to remove the connection between the tanks and move them individually. Plumbing thread tape was used to create a leak-proof seal at the mating point of the tank flange and the ball valve. 50 mm internal diameter PE barbs were then attached to the ball valves. Again, thread tape was used to create a leak-proof seal at the mating points of the ball valves and the barbs. These barbs provided an attachment point for the 50 mm diameter suction hose. The suction hose was forced onto the barbs with an interference fit, and stainless steel hose clamps were used to secure the hose to the barbs. Figure 6.7 shows the connection without the suction hose attached. The connection with the suction hose attached can be seen in Figure 6.8, and the overall tank connection system can be seen in Figure 6.9. Subsequent testing outlined in Section 9.2 with clean water confirmed that this connection had no leaks.
  • 75.
    CHAPTER 6. FINALDESIGN 63 Figure 6.7: Attached ball valve and barb Figure 6.8: Attached ball valve, barb, and suction hose Figure 6.9: Overall connection between two tanks 6.4.6 Outlet Design Both digestion tanks came with a 25 mm female threaded fitting, approximately 100 mm above the base. A 25 mm tap was connected to each of these fittings, using a 25 mm diameter brass nipple,
  • 76.
    CHAPTER 6. FINALDESIGN 64 and a section of brass threaded rod to extend the tap over the edge of the pallet. Thread tape and silicon was used to seal the mating point. These taps allowed for the drainage of effluent from both tanks. Hose fittings were attached to the taps so that the effluent stream could be directed. Figure 6.10 shows the outlet fitting layout. Figure 6.10: Outlet tap attached to existing 25 mm diameter threaded hole 6.5 Gas Collection System A simple layout was devised for the gas piping and connection network to ensure it could be maintained and modified with ease. 20 mm diameter polyethylene pipe was used between the two compression fittings situated at the tops of each tank. These fittings and their attachment methods were explained in Section 6.4.3. Gas rated thread tape was used to create a seal at all mating points between the fittings. Reducing nipples were used to make the 20 mm diameter piping compatible with the 25 mm fittings. The gas collection membrane had a 20 mm diameter threaded fitting, that allowed a ball valve and compression fitting to be attached directly. This connection is shown in Figure 6.11. A length of pipe was installed between the second tank and the gas collection membrane. The valve connected to the collection membrane allowed it to be isolated from the system, enabling gas samples to be taken with ease. Once the valve was shut, the compression fitting could simply be unscrewed, and the pipe removed from the membrane.
  • 77.
    CHAPTER 6. FINALDESIGN 65 Figure 6.11: Connection between gas collection membrane and pipe network 6.5.1 Pipe Network Pressure Analysis Calculations were performed according to Australian standards to determine the Maximum Allowable Operating Pressure (MAOP) of available polyethylene piping material. 20 mm nominal outer diameter polyethylene pipe was available at Barrow and Bench Mitre 10 Malvern. The dimensions and properties of this pipe are outlined in Table 6.1. Note, the minimum wall thickness and minimum mean outside diameter were determined in accordance with tables provided in AS/NZS 4130 (see Appendix C). The value of maximum required strength (MRS) for PE100 polyethylene pipe was determined from AS 4645.3. These values were required for calculating the MOAP for this particular polyethylene pipe, using the method outlined in AS/NZS 4645.3. Table 6.1: Properties of PE100 pipe Property / Dimension Value Nominal outer diameter 2 0mm Long term rupture stress rating PE100 Pipe pressure rating PN12.5 Standard dimension ratio (SDR) 13.6 Maximum required strength (MRS) 10 MPa Minimum wall thickness (Tmin) 1.6 mm Minimum mean outside diameter (Dm min) 20.0 mm Using Table B1 in AS/NZS 4645.3, the design factor (C) was determined for the pipe. This table is shown in Appendix D. Several operational conditions for the system had to be assumed to correctly
  • 78.
    CHAPTER 6. FINALDESIGN 66 use the table. Based on the information presented in Table 3.1, it was assumed that biogas had a similar composition to natural gas (majority methane) for the purpose of this analysis. Also, based on average maximum temperatures for Adelaide throughout September and October (19.1◦C and 21.9◦C respectively) (Bureau of Meteorology, 2014), it was predicted that the maximum operating temperature within the greenhouse would never exceed 40◦C. Finally, as the prototype was to be located on the Urrbrae Agricultural High School campus, it was assumed to be operating in a “high density community use” area. These assumptions allowed the determination of index values f0, f1, f2 and f3 to be used to calculate C. Equation 6.5.1 was used to calculate C, and was sourced from Table B1 in AS/NZS 4645.3 (Appendix D). C = Design Factor (6.5.1) = f0 × f1 × f2 × f3 = 2.0 × 1.3 × 1.1 × 1.2 = 3.43 After the design factor was calculated, the MAOP was calculated according to the equation provided by AS/NZS 4645.3 for polyethylene mains and service pipes (Equation 6.5.2). MAOP = 2 × MRS × Tmin C × (Dm min − Tmin) (6.5.2) = 2 × 10 × 1.6 3.43 × (20.0 − 1.6) = 0.507MPa A MAOP of 0.507MPa (approximately five times greater than atmospheric pressure) was deemed to be a suitable operating pressure for the gas network. The system would be providing biogas for cooking, heating and lighting daily, meaning that the pressure would constantly be released. After determining the MAOP of the pipeline was suitable, the only other points of failure within the gas network then became the fittings between the gas pipes, and the biogas collection membrane. 6.5.2 Pipe Fitting Pressure Analysis After calculating the MAOP of the pipeline, it was necessary to determine whether fittings available at Barrow and Bench Mitre 10 Malvern for the biogas pipe network could withstand the pressure developed within the system. The available fittings were Poly16 Plus Compression Fittings, manu- factured by Alprene Plastic Products Pty Ltd. Technical data available on the Alprene website listed
  • 79.
    CHAPTER 6. FINALDESIGN 67 the fitting pressure rating as PN16 (Alprene, 2014); meaning that the fittings had a nominal working pressure of 1.6 MPa. As this nominal working pressure is greater than the MAOP of the pipe network, these fittings were deemed appropriate for connecting the 20 mm PE pipes. 6.5.3 Biogas Collection Membrane Pressure Analysis The biogas collection membrane purchased from Shenzhen Puxin Technology Co. Ltd was a 1m3 PVC membrane, with a single 20 mm diameter threaded fitting. Figure 6.12 shows the actual membrane used in the prototype. Figure 6.12: 1m3 biogas collection membrane used in the final design No information was available on the MAOP of the membrane. From a safety perspective, this is a signficiant issue; hence it was decided to investigate the worst case scenario for the MAOP of the membrane to determine a SOP to prevent it bursting. The worst case scenario for the MAOP of the membrane was determined to be the pressure at which it contains 1m3 of biogas (i.e. its full volume). The safe operating procedure developed to prevent this MAOP occurring is outlined in Section 9.8. 6.5.4 Insulation Insulation was added to the system in order to increase temperature of the system and improve thermal inertia. While situated in the Urrbrae greenhouse, heat was retained by the surrounding atmosphere which negated the requirement for additional insulation. However, after the system was moved out- doors on 30 September, insulation became necessary for the anaerobic digestion process to retain heat overnight. Cheap, readily available materials were considered for insulation, such as newspaper or polystyrene layering, and bales of hay which could be stacked around the system. Ultimately, a suitable scrap material became available and was used instead to save costs, and demonstrate that
  • 80.
    CHAPTER 6. FINALDESIGN 68 discarded matter could be practically re-purposed and easily integrated into the system. The scrap material consisted of two pieces of reflective silver plastic separated by a thick layer of bubble wrap. A large piece of the material was wrapped around the first digestion tank, and is shown in Figure 6.13. The tank was then wrapped in a layer of black plastic, originally designed for use as a bin liner, as visible in Figure 6.14. The layer of black plastic allowed the first tank to absorb more heat during the day, and was an inexpensive and abundant resource. Alternatively, the system could be painted black or covered by an equivalent black surface. Figure 6.13: Scrap material used for insulation layer Figure 6.14: Black plastic layer for heat absorption 6.5.5 Stirrer A final feature designed and built for the system was a stirring mechanism for the first digestion tank. The primary function of this device is to agitate any dry scum on the top surface of the effluent, which has the potential to disrupt the anaerobic digestion process (Rohjy et al., 2013). It also allows
  • 81.
    CHAPTER 6. FINALDESIGN 69 the mixing off different layers, ensuring all effluent is digested equally (Rohjy et al., 2013). There are associated disadvantages with the addition of this device such as added cost, maintenance, complexity, and potential gas leakage. For this reason, the inclusion of a stirrer is highly dependent on whether the technical skills required to build it are available. Due to delays in construction, the stirrer was not included in the final design for testing. Sufficient testing would not have been possible if the schedule had been postponed to install the stirrer. However, the stirrer was still built to investigate the feasibility of constructing an inexpensive, yet effective component that could increase the biogas yield. This design was created in accordance with the design criteria outlined in Chapter 5: Reliability The design must be gas proof so as not to leak stored biogas. The design should also be simple, containing minimal moving parts so as to increase the lifetime of the system. Ease of use The stirrer should not require strong exertion from the user. Constructibility and cost The complexity and number of parts required must be minimised. Function The stirrer must effectively mix effluent and break up scum. The final stirrer design is shown in Figure 6.15, with detailed drawings included in Appendix E. The critical component of the stirrer was the bearing, which was required to support the weight of the shaft and paddles, and allow smooth operation as detailed in the criteria. The final bearing system utilised two plain bearings held in an aluminium housing, which were situated above a neoprene seal. The reason for this selection over traditional ball or roller bearings was due to its simplicity, which reduced the cost, and increased the reliability of the stirrer. The plain bearings selected (SKF sintered bronze C 4048, and F4048-1) were specifically designed for long life applications. The bearings were held in the housing with a H11 fit, while the shaft was press fit to the bearings with an M6 fit. The neoprene seal had a 1 mm interference with the shaft. Steel water pipe was used for the shaft, with a length of 1.8 m to allow for mixing at the bottom of the tank. For the mixing paddles, aluminium sheet was connected to the shaft using L brackets. The width of each paddle was 300 mm, which was a dimension restricted by the top tank hole diameter of 365 mm. A height of 300 mm was also selected for the bottom two paddles to ensure the paddle area was relatively small, and did not provide excessive stirring resistance. A longer paddle was selected for the top paddle to account for variable effluent levels inside the tank ensuring that surface could always be disrupted. Finally, the layout was chosen
  • 82.
    CHAPTER 6. FINALDESIGN 70 to limit the uneven distribution of weight of the paddles, and resultant forces on the bearing. Figure 6.15: Final Stirrer Design
  • 83.
    Chapter 7 Risk Assessment Thissection outlines the risks that can potentially affect the success of the project, along with the health and safety of the project stakeholders. Risks were identified and assigned a risk level that was evaluated using likelihood and consequence scales (Section 7.1 & 7.2). If the risk was identified as a medium or higher level, it was deemed unacceptable. Measures were implemented to prevent or reduce the effect of unacceptable risks, and are outlined in the risk register in Appendix F. 7.1 Likelihood Scale A scale with five categories ranging from Rare to Almost Certain was used to rank the likelihood of occurrence for the risks associated with this project. Alphabetical labels from A to E were also assigned to these categories to aid in the risk register process. The exact likelihood of each label is outlined below. Almost Certain (A): Highly likely to happen, possibly frequently Likely (B): Will probably happen, but not a persistent issue Possible (C): Might happen occasionally Unlikely (D): Not expected to happen, but is a possibility Rare (E): Very unlikely this will ever happen (The Univeristy of Adelaide, 2012) 71
  • 84.
    CHAPTER 7. RISKASSESSMENT 72 7.2 Consequence Scale The consequence scale was be separated into five levels; Extreme (1), Major (2), Moderate (3), Minor (2), and Insignificant (1). When considering the risks affecting the success of the project, consequence definitions found in Table 7.1 were followed. Risks concerning safety were evaluated using the conse- quence scale adopted by the University of Adelaides Risk Management Committee; a summary of the relevant consequence definitions from this scale is found in table 7.2. Table 7.1: Consequence scale - risks to project success (The University of Adelaide, 2012) Consequence Rating Description of Consequence Extreme (5) The success of the project is compromised to such an extent that it cannot be completed. Major (4) The success of the project is permanently compromised to a significant degree. Moderate (3) A significant setback requiring a large amount of work to overcome. However, only a small amount of, or no, permanent damage is done to the final project outcomes. Minor (2) A setback requiring a moderate amount of effort to overcome. Insignificant (1) A setback requiring small effort to overcome.
  • 85.
    CHAPTER 7. RISKASSESSMENT 73 Table 7.2: Consequence scale - safety risks (The University of Adelaide, 2012) Consequence Rating Description of Consequence Extreme (5) Serious injury or death, loss of significant number of key staff impacting on skills, knowledge & expertise, staff industrial action, student unrest/protest/violence. Major (4) Serious injury, dangerous near miss, loss of some key staff resulting in skills, knowledge& expertise deficits, threat of industrial action, threat of student protest/activity. Moderate (3) Staff injury, lost time or penalty notice due to unsafe act, plant or equipment, short term loss of skills, knowledge, expertise, severe staff morale or increase in workforce absentee rate, student dissatisfaction. Minor (2) Health & safety requirements compromised, lost time or potential for public liability claim, some loss of staff members with tolerable loss / deficit in skills, dialogue required with industrial groups or student body. Insignificant (1) Incident with or without minor injury, negligible skills or knowledge loss, dialogue with industrial groups / students may be required. 7.3 Risk Matrix The risk matrix (Table 7.3) was used to determine the rating for an identified risk. Table 7.4 outlines the actions required for each risk rating when considering risks to safety. Risks to project safety were dealt with using the preventative measures outlined in the risk register. Table 7.3: Risk matrix (The University of Adelaide, 2012) Insignificant (1) Minor (2) Moderate (3) Major (4) Extreme (5) Almost Certain (A) Medium Medium High Extreme Extreme Likely (B) Low Medium High High Extreme Possible (C) Low Medium Medium High High Unlikely (D) Low Low Medium Medium High Rare (E) Low Low Low Low Medium
  • 86.
    CHAPTER 7. RISKASSESSMENT 74 Table 7.4: Risk management required (The University of Adelaide, 2012) Risk Rating Management Action Required Extreme Risk Immediate attention & response needed; requires a risk assessment & management plan prepared by relevant senior managers for Vice- Chancellor; risk oversight by Council or nominated Standing Committee or Management Committee. High Risk Risk to be given appropriate attention & demonstrably managed; re- ported to Vice-Chancellor or other senior Executives/Management Com- mittees as necessary. Medium Risk Assess the risk; determine whether current controls are adequate or if further action or treatment is needed; monitor & review locally, e.g. through regular business practices or local area meetings. Low Risk Manage by routine procedures; report to local managers; monitor & review locally as necessary. 7.4 Heirarchies of Control The hierarchies of control method - used to determine the course of action after rejecting a risk - is outlined below. It should be emphasised that in accordance with this method, risks were eliminated wherever possible. Hierarchies of control method (Mihelcic & Zimmerman 2010): 1. Eliminate hazard and risk through system (re)design; 2. Reduce risk by substitution with less hazardous methods and materials; 3. Incorporate safety devices; 4. Provide warning systems; 5. Apply administration controls; 6. Provide personal protective equipment (PPE)
  • 87.
    CHAPTER 7. RISKASSESSMENT 75 7.5 Risk Register The risk register was used to provide a detailed analysis and review of the risks to the project. It was split into two major sections: the risks to project success; and the risks to safety. Only ’Low’ rankings were accepted for the project. The risk register, and an extensive application of this process, can be found in Appendix F.
  • 88.
    Chapter 8 Prototype Constructionand Cost The construction of the prototype system was completed entirely by the members of the project team. This was done to demonstrate the versatility of the design and its ease of assembly, as listed in the design criterion in Section 5.3. 8.1 Part Sourcing With the exception of the gas collection membrane, all parts used in the construction process were purchased from local suppliers. All items were of standard sizes which are commonly found in most hardware stores. This complies with the constructability design criterion, to ensure that the design can be easily built anywhere with access to basic construction materials and skills. Being able to source all parts from a hardware store or local alternative will make the construction process simpler and faster. This enables Non-governmental Organisations (NGOs), who typically undertake humanitarian projects in developing communities, to focus on construction rather than product sourcing. The gas collection system is a purpose built inflatable membrane which was imported from China. This UV-stabilised PVC membrane included a heat sealed inlet that could be easily integrated into the gas piping network. As this part could not be sourced locally it did not comply with the constructability requirement. However, an effective gas collection system could not be constructed from materials found in hardware stores without specialised equipment and techniques, which would also not adhere to the criteria. Therefore as a compromise, a product that was easily integrated into the purchased parts, effective in its intended purpose and readily available was imported. 76
  • 89.
    CHAPTER 8. PROTOTYPECONSTRUCTION AND COST 77 8.2 Construction and Tooling The construction process was completed using simple tools including drills, spanners, screw drivers, saws, clamps, and a caulking gun. This was done in order to demonstrate that the system could be built using inexpensive, readily available tools and facilities. Ideally, for the system to be distributed by an NGO in a developing country, it must be easy and simple to construct, as advanced manufacturing facilities and knowledge may not be available. Building the prototype using only basic tools and technical knowledge demonstrated the ease with which this system can be produced, and highlights its suitability for use in developing communities. Construction was performed over a three week period from 2 June to 21 June 2014. It was estimated to have taken the five project team members five working days to complete. This extended period can be attributed to delays in material and tool sourcing. Additionally, ensuring the tank lids were sealed effectively was a difficult, but essential, process causing further delays. The initial sealing mechanism proved ineffective as air leaks were found when the tanks were filled to test for liquid leaks. An additional layer of sealant in the form of plastic sheeting was then added to each lid. Subsequent tests showed this measure was effective in eliminating all gas leaks from the system. As this was the construction of the first prototype for this design, the time taken would be significantly longer than any future constructions. If instructions as well as all materials and tools are provided, it is estimated that the design will take a group of four people a single day to construct. The stirrer was partly constructed by The University of Adelaide’s mechanical engineering workshop. The steel shaft was attached to the bearing with an interference fit, which required specialsed man- ufacturing skills not held by the project group members. The removable paddles were then simply attached by the project group to complete the design. 8.3 Personal Protective Equipment To further mitigate the risk of injury during the construction process, personal protective equipment (PPE) was worn by all members of the construction team. Steel capped footwear was worn by those involved in lifting heavy objects. Overalls, gloves, and goggles were used by anyone in direct contact with faecal matter. Safety goggles were worn by the users of power tools and any person in close vicinity to this activity. This strict use of personal protective equipment combined, with electrical testing of any power tools used, can be attributed to the absence of personal injury during the construction process.
  • 90.
    CHAPTER 8. PROTOTYPECONSTRUCTION AND COST 78 8.4 Costing In accordance with the design criteria, the cost of the prototype construction was kept to a minimum. The majority of costs were associated with the purchasing of construction materials. However, there were also additional costs associated with the testing and operation of the project. These costs were largely met by the project budget, which consisted of core funding provided by University of Adelaide as well as additional sponsorship. 8.4.1 Secured Sponsorship This project was allocated funding from the University of Adelaide’s School of Mechanical Engineering in the form of 200 AUD per group member. This provided a baseline budget of 1,000 AUD. From an early stage it was estimated that this budget would not meet the financial needs of the project, thus, it was necessary to seek sponsorship in the form of financial and material contributions. Potential sponsors were contacted either by phone or email, and supplied with a sponsorship prospectus (Appendix H). This document outlined the nature of the project, required contributions, and how sponsors may benefit from their contribution. Lynair Logistics, an Australian business specialising in international transportation, distribution, and logistics, kindly donated 300 AUD towards the project budget. Their contribution brought the project budget to 1,300 AUD. Caroma, an Australian owned business specialising in bathroom products, generously donated a toilet system including cistern and pan. Contributions from Caroma had a retail value of 448 AUD. Subsidised components and expert hardware advice were provided by Barrow and Bench Mitre 10 Malvern. These contributions resulted in savings of more than 500 AUD. Michael Hatch, a PhD student from the Univeristy of Adelaide, donated four SupelTM gas sample bags, which cost 16 AUD each. These bags were used to take samples of the gas produced by the prototype during testing. Mr Hatch also donated his time and the use of a Picarro gas analyser to measure the methane concentration of these gas samples. Sponsor contributions have resulted in savings of more than 1,000 AUD, and increased the project budget by 300 AUD. Without such generous contributions, the project is estimated to have cost approximately 2,300 AUD. A summary of all sponsor contributions is shown in Table 8.1.
  • 91.
    CHAPTER 8. PROTOTYPECONSTRUCTION AND COST 79 Table 8.1: Sponsorship summary Sponsor Contribution Project Savings Lynair Logistics 300 AUD - Caroma Toilet Cistern and Seat 212.10 AUD Toilet Pan 236.30 AUD Barrow and Bench Mitre 10 Malvern 2x 1200L Tanks 400 AUD Various Components 150 AUD Michael Hatch 3x Tedlar Gas Sample Bags 48 AUD 8.4.2 Components and Operation Costs Major prototype costs can be divided into four subsections; tanks, gas membrane, toilet and fittings. The full retail and project cost of each subsection is shown in Table 8.2 with detailed summary of all purchases can be seen in Appendix G. All components were acquired from local stores and online retailers. Table 8.2: Prototype cost summary Subsystem Retail Cost (AUD) Project Cost (AUD) Tanks 800 400 Gas Membrane 175 175 Gas and Plumbing Fittings 425 258 Toilet 445 0 Total 1845 833 As shown in Table 8.2, discounts received for the project reduced the cost of the prototype by approx- imately 45%. Although the cost of materials will vary depending on the location of implementation, discounts similar to those received by this project are possible. Therefore the cost of 833 AUD can be used as a reasonable estimate for the total cost of the system. Operation and testing costs contributed approximately 100 AUD to the total cost of the project. These purchases included the purchase of PPE, buckets, funnels, drums and litmus paper for pH measurements. These costs may not be required if the system were to be implemented in a developing nation, and so were not included in the system cost estimate. The total cost of the stirrer assembly was 102 AUD. Despite earlier estimates that the stirrer would be an expensive design addition, this demonstrated that it can be constructed for relatively low cost. Therefore, it can be concluded that if some technical skills and knowledge are available during the
  • 92.
    CHAPTER 8. PROTOTYPECONSTRUCTION AND COST 80 implementation of the system, a stirrer is an effective, low cost solution to increasing biogas yield. Taking all expenses into account the project reached a total cost of 1324.61 AUD, exceeding the budget by by 24.61 AUD. These extra expenses were accommodated by the project team. 8.4.3 Recycled Design Alternatives Additional cost reductions can be achieved by the substitution of components with recycled or scrap materials, examples of which are provided in Table 8.3. All components for the construction of the prototype were brand new; however, substantial savings could have been achieved through the integration of locally available alternative components. Table 8.3: Recycled component alternatives Component Recycled Alternatives Tanks A range of different tanks, including septic and water tanks, are suitable Neoprene Sealing Any available rubber is suitable for sealing purposes, though it may degrade from hydrocarbon exposure and require replacing. This rubber could be recycled from a range of sources such as floor skirting, or the inner tube of a bicycle or car tire Bioballs Crushed bricks, scrap plastic, or any non-reactive, non-buoyant object can be used as substitutions for bioballs to increase the surface area within the digestion tanks Piping If UV treated PVC is not available, normal PVC can be used with shading. Ceramic, steel, or brass pipes are also suitable Flexible Connection Any flexible, sealed piping can be used Insulation Almost any material that covers the digestion tanks is suitable. For example; hay, polystyrene, bubble wrap, newspaper. Alternatively the digestion tanks could be buried underground to trap heat.
  • 93.
    CHAPTER 8. PROTOTYPECONSTRUCTION AND COST 81 8.4.4 Labour Individual hours spent working on the project by each group member were recorded in order to estimate costs of the project if it had been undertaken by paid professionals. A log of these hours is shown in Appendix I. Labour costs are calculated based on an hourly rate for an average graduate mechanical engineer annual salary of 55,000 AUD (Open Universities Australia, 2014). Approximate labour costs of the project reached 69,725 AUD for 20 weeks of work. This equates to 13,945 AUD per group member.
  • 94.
    Chapter 9 Testing andOperation Procedures After construction was completed, testing was required to prove that the system could function as expected. Testing was run from 12 September to 21 October. The results compiled from testing provided a means of assessing the effectiveness of the design in achieving the project goals outlined in Chapter 4. It was originally planned that a minimum testing period of three months was required to collect enough data for robust analysis, however delays in construction significantly reduced this testing time. 9.1 System Location Urrbrae Agricultural High School (UAHS) were willing to house the biodigester prototype on their campus. Originally, the system was placed inside a greenhouse to provide extra warmth during the colder period of testing. The system was moved outdoors near the UAHS piggery on the 30 September, after approximately three weeks of testing due to practical and safety considerations. The outcomes of moving the system outdoor are discussed in Chapter 10. Practical and safety considerations were the main reasons for moving the system, along with demonstrating its portability. The doors of the greenhouse were too small to remove the prototype while upright, hence, tilting the individual tanks to remove them from the greenhouse was required. If the tanks were full, they would be difficult to tilt and move safely. It was impractical to empty the entire 2000 L of effluent from the system at the end of the testing period, as the waste had to be disposed of near the UAHS piggery, approximately 200 m from the greenhouse. Therefore, the system was moved before it was completely filled with waste, so that it could easily be emptied after the testing period. Although the system was routinely checked for leaks, there remained the risk of failing to identify possible points where gas could escape. Thus, another important consideration was public safety. As 82
  • 95.
    CHAPTER 9. TESTINGAND OPERATION PROCEDURES 83 discussed in Section 10.2, the gas composition was increasing in methane concentration, indicating that a flammable biogas mixture could begun to develop. If this gas were to leak into the greenhouse, it could potentially concentrate in the roof cavities and create an explosive atmosphere. Students and teachers frequently use the greenhouse for class experiments so this risk was deemed unaccept- able. Moving the system outdoors after the three week period ensured operation in a well ventilated environment, minimising the risk of fire and explosion. 9.2 Prototype Assessment Prior to introducing feedstock to the biodigester, all pipes and connections were checked for leaks. By ensuring both biogas and feedstock leaks were minimised, the risk of fire, explosion and expo- sure to pathogens was significantly reduced. The system was tested for both liquid and gas leaks simultaneously using the following procedure: • All valves were opened, excluding the two outlet valves at the bottom of the tanks. • The system was then filled with approximately 1000 L of water, and all fittings checked for liquid leaks. – Because the valves connecting the two tanks were opened, each tank was approximately half-full – As both tanks were completely sealed, the addition of 1000 L of water to the system displaced 1000 L of air into the gas pipeline and membrane • Soapy water was lathered over all gas connections to detect any escaping air from the system. – This would identify any points that would allow leak biogas • Water was left in the tanks for a period of five days to ensure no leaks would develop over time 9.3 Feedstock Selection Although the biodigester system was designed to produce biogas using human waste as the feedstock, it was decided that the prototype would be tested using pig waste instead. Two major factors were behind this decision; accessibility to feedstock and similarity to human waste. It was too difficult to source a reliable supply of human waste to use as a feedstock for testing. Along with the obvious biological hazard presented by handling human waste, it was impractical to collect human waste and feed it into the system on a regular basis. The system was not completed to a stage
  • 96.
    CHAPTER 9. TESTINGAND OPERATION PROCEDURES 84 that would allow privacy, therefore waste could not be collected through its implementation as a toilet on the UAHS grounds. As the biodigester was located on the UAHS campus, pig waste could easily be collected from the piggery on the school’s farm and transported to the system within the greenhouse. Based on the information presented in Table 3.2, pig waste was a suitable substitute for human waste. Per unit mass, it produces a similar volume of biogas to human waste when compared to other animals. Al- though chicken waste is also a suitable substitute in terms of biogas production per unit mass, pig waste was much easier to collect from the UAHS farm. Based on these practical and scientific consid- erations, it was decided that pig waste sourced from the UAHS piggery would be used as the testing feedstock. 9.4 System Start-up During the construction phase, four sealed 76L drums were filled with pig waste from the UAHS piggery on 28 August. This was done to begin to digestion process independently of the system. Anaerobic digestion typically takes between 40 to 45 days to occur (Abbasi et al., 2012). To ensure the project objective of producing a working biodigester was achieved, it was deemed necessary to begin the digestion process early so that biogas yields could be optimised within the testing timeframe. Once the system was constructed and the necessary safety tests conducted, the waste from these drums was added to the system. There are risks associated with the start-up of a biodigester system, paramount of which are the dangers of fire or explosion. Methane-air mixtures become explosive with a lower flammability limit of 5% concentration of methane in air (Glassman and Yetter, 2008). To reduce the risk of explosion, the gas mixture from the system was vented to the atmosphere after each sample was taken. Samples were routinely analysed to monitor methane concentration to identify when concentrations began to approach the lower flammability limit. 9.5 Continuous Process Digester Based on equations presented in Section 6.2, the amount of feedstock entering a toilet system being shared by 14 people was calculated:
  • 97.
    CHAPTER 9. TESTINGAND OPERATION PROCEDURES 85 Waste Volume (L) = 4.48 × U (9.5.1) = 4.48 × 14 = 62.72 L Equation 9.5.1 shows that approximately 63 L of solid and liquid waste will be added daily to the sys- tem by 14 users. It was impractical for members of the project team to be present at UAHS every day to load the system with waste, based on university timetable restrictions and school opening hours. It was therefore decided that 220 L of total feedstock would be added twice per week. This operat- ing procedure aimed to produce steady state gas production, which was expected after the required retention time for mesophilic digestion of approximately 30 days (Suryawanshi et al., 2013). 9.6 Operating Conditions The volume and composition of gas produced via anaerobic digestion is dependent on physical factors such as temperature, pH and the presence of volatile solids, volatile fatty acids, molecular hydrogen and ammonia-nitrogen within the system (Labatut and Gooch, 2012). Many of these factors are difficult to measure and control, especially when considering a system to be implemented in developing communities with limited access to scientific apparatus. Both temperature and pH are simple to measure and adjust if required, therefore they were monitored throughout the testing period. For an outline of results obtained, and a discussion of their significance, refer to Chapter 10. The temperature inside the digester should be maintained between 35◦C and 45◦C to optimise mesophilic anaerobic digestion (Labatut and Gooch, 2012). To ensure this mesophillic range, the temperature of the anaerobic digestion tank at the inlet and base was measured twice weekly. Tem- peratures outside this range could decrease the rate of gas production, with extreme fluctuations resulting in the death of anaerobic bacteria. A system pH of neutral or slightly alkaline (pH 7 to 7.5) presents ideal conditions for healthy anaerobic bacteria function. The pH of and effluent samples was measured twice weekly to monitor system health. The system pH was found to follow the typical trend of an anaerobic digestion process, as discussed in Section 10.3. A discussion of simple methods of adjusting system pH to ensure effective digestion is presented in Section 10.3.1. Any gas leaks present in the prototype during testing would reduce biogas yields and increase the risk of fire. To mitigate this risk, the entire prototype was checked weekly for leaks by applying a water and detergent solution over the surface of all gas carrying components. If bubbles were spotted on the
  • 98.
    CHAPTER 9. TESTINGAND OPERATION PROCEDURES 86 surface, the leak could be identified and appropriate repair measures taken. Typical repairs involved the addition extra silicon sealant over the leak, the application of high-strength weatherproof tape, and replacement of gas-proof plumbing tape. These repair schemes were developed with consideration to materials available in countries that would benefit most from the implementation of a biodigester toilet. 9.7 Biogas Collection and Results Biogas was collected in a flexible membrane located at ground level beside the digestion tanks. As outlined in Section 6.5, the membrane was fitted in such a way that it could be isolated from the rest of the system and gas samples extracted with ease. Methane concentration of the gas captured was sampled over the entire testing period. To test concentration, SupelTM Inert gas sampling bags were used to collect biogas samples twice per week. These sample bags were suitable for testing as they provided a low risk of sample contamination and other desirable physical properties as outlined in Appendix J. A biogas sample contained within a bag can be seen in Figure 9.1. Biogas samples were analysed using a Picarro G2201-i Analyzer, which “precisely measures CO2, H2O and CH4 concentration” (Picarro, 2014). The sampling bags were flushed with hydrogen gas to enable re-use without contaminating new samples. The gas sam- ple analysis and a discussion of composition change over the testing period is presented in Section 10.2. The Picarro G2201-i Analyser is designed to simultaneously measure the concentrations of methane and carbon dioxide every 5 seconds in a sample of air and record the readings using Picarro software. A data sheet containing detailed specifications of the analyser can be found in Appendix K. The high range mode of the analyser accurately measures methane concentrations from 1.8 ppm to 1000 ppm. The same mode is able to measure carbon dioxide concentrations up to 4000 ppm. The concentrations of methane and carbon dioxide contained within biogas samples taken from the system greatly exceeded these values and this created some inaccuracy in results, discussed further in Section 10.2.
  • 99.
    CHAPTER 9. TESTINGAND OPERATION PROCEDURES 87 Figure 9.1: Tedlar bag filled with gas sample 9.8 Safe Operating Procedure A safe operating procedure (SOP) was developed for the testing phase of the system. The SOP was a two-tier procedure, designed to prevent over-pressure situations and also to ensure that those testing the system were not exposed to harmful pathogens. 9.8.1 Preventing over-pressure situations It was assumed that as soon as the entire volume of the collection membrane (1 m3) had been filled with gas, it was at risk of bursting. This was the worse case scenario for the MAOP of the collection membrane, as discussed in Section 6.5.3. To ensure the membrane would never completley fill with gas, it was vented every Monday and Thursday during the testing period, coinciding with the collection of gas samples. This also ensured that each sample would contain gas produced since the previous test, thereby monitoring the biogas composition change over the testing period. It is important to note that the MAOP of the biogas collection membrane is a ciritcal factor in determining the maximum internal gas pressure to be placed on the system. As this MAOP was not known there was potential for it to be much less than the MAOP of the gas pipeline and fittings (calculated in Section 6.5.1). Therefore the routine emptying procedure was required. 9.8.2 Handling Feedstock As outlined in Section 2.1.2, excreta can contain a number of harmful pathogens. Although human waste was not used in testing, any animal waste is still a potential source of illness if handled incorrectly.
  • 100.
    CHAPTER 9. TESTINGAND OPERATION PROCEDURES 88 To ensure persons involved with loading pig waste into the system would not come into direct contact with the excreta, the use of personal protective equipment (PPE) was made mandatory when any feedstock was being added or removed. This personal protective equipment consisted of: • Gloves • Safety glasses • Disposable overalls • Face mask Although the use of PPE is last on the hierarchies of control list (presented in Section 7.4), during the first three weeks of testing it was the most appropriate for preventing exposure to pathogens in the feedstock. This was because the system was located inside the UAHS greenhouse, approximately 200 m away from the piggery. This distance made it impossible to pump waste directly from the pig waste reservoir into the system, so it had to be transported in 76 L drums to the greenhouse and loaded manually into the system using buckets. As discussed in Section 9.6, the system was moved closer to the piggery after the first three weeks of testing. This enabled waste to be pumped directly from the reservoir into the system inlet, and reduced the risk of exposure to pathogens even more. The use of PPE was still required when filling the system using the pump.
  • 101.
    Chapter 10 Results andDiscussion As outlined in Chapter 9, a number of parameters were recorded during testing to provide a better understanding of how the anaerobic digestion process progressed during operation. Methane compo- sition, various temperatures, and pH were measured. The recorded data is presented in this chapter, along with a discussion of the significance of each parameter. Also discussed is the level to which the project objectives were achieved. 10.1 Gas Analysis Samples of biogas were collected in SupelTM Inert gas sampling bags which feature a push-lock valve mechanism. These samples were collected bi-weekly over the five week testing period and measured using a Picarro G2201-i Analyser. Numerical results obtained from the biogas sample analysis can be found in Appendix L. The Picarro 2201-i analyser was a useful tool in assessing methane concentration of the biogas. How- ever, as the analyser is only designed to measure methane concentrations of up to 1,000ppm, it can not be relied upon to deliver scientifically accurate results. While performing analysis, the Picarro 2201-i struggled to provide measurements of the methane concentration at the frequency specified by Picarro, However, the results obtained were found to be consistent with expected methane con- centration. Thus, these results can be used as an indication of the general trend in the methane concentration over the testing period but cannot be relied on for numerical accuracy. Similarly, the anaylser is only designed to measure carbon dioxide concentrations up to 4,000ppm. Values of carbon dioxide concentration delivered from the Picarro 2201-i were too infrequent and inconsistent to provide any reliable measurements. The analyser stopped responding when carbon dioxide measurements exceeded approximately 45,000ppm and thus the measurements obtained are 89
  • 102.
    CHAPTER 10. RESULTSAND DISCUSSION 90 not presented here as results. From this analysis it can only be concluded that the concentration exceeded 45,000ppm in each sample. 10.2 Methane Concentration Figure 10.1 shows the change in methane concentration over time. It is clear that methane concentra- tion increased at an increasing rate during the testing period. The drop in concentration shown for the date of 3 October can be attributed to the disassembly and transportation of the prototype in the days before this sample was taken. This process required various valves on the tanks to be opened, for reasons discussed in Section 10.5. Thus, oxygen was re-introduced to the system which both diluted the next scheduled sample with air, and hindered the digestion process. 0 5000 10000 15000 20000 25000 MethaneConcentration(ppm) Date (DD/MM) Figure 10.1: Change in methane concentration over testing period The lower flammability limit of methane in air is 50000 ppm (Glassman and Yetter, 2008). Biogas will not burn until the concentration of methane is above this flammability limit. The last results analysed showed a methane concentration of 23,349 ppm; a significantly larger value than the initial reading of 259 ppm, four weeks prior. These results demonstrate that anaerobic digestion occurred within the system, and the process was effective in producing methane. As will be discussed in Section 10.3, pH measurements indicated that anaerobic digestion had not reached the methanogenesis stage, in which the majority of methane production occurs. Given more time, the gas is predicted to become flammable as the anaerobic digestion process progresses.
  • 103.
    CHAPTER 10. RESULTSAND DISCUSSION 91 Comparisons between the methane concentration data collected for the project, and experimental data obtained by Sulistyo et al. (2012) for the anaerobic digestion of three different substrates (S1, S2 and S3 in Figure 10.2), demonstrate similar trends in methane generation. Note, the three substrates tested by Sulistyo et al. (2012) were different mixtures of cow manure and plant material. Substrate 1 (S1) had no cow manure in it, S2 was 90% cow manure, and S3 was 36.4% cow manure. While the feedstocks used by Sulistyo et al. (2012) are different to the pig manure used in this project, the change in methane concentration between the two experiments follow similar upwards trends. This is significant, as it confirms that the anaerobic digestion process occurred within the biodigester toilet. Figure 10.2: Change in methane concentration for different substrates (Sulistyo et al., 2012) A flame test was conducted in the final week of testing to investigate the flammability of the gas produced by the system. Two gas samples were collected in small inflatable membranes. An identical membrane was filled with air to use as a control sample. All samples were then removed from the vicinity of the biodigester, and tested by exposure to a small flame. None of the samples ignited, indicating that the gas produced by the biodigester was not flammable. This practical result reinforces what was concluded from methane concentration measurements and combustion theory. 10.3 pH As discussed in Section 3.3.3, pH has a strong correlation with the health of an anaerobic digestion system. Hence, monitoring feedstock pH throughout the entire testing process was important to ensure the digestion process was progressing as expected. Tracking pH also enabled the observation of the four stages of anaerobic digestion, each of which has a characteristic pH range. To monitor pH, litmus paper testing strips were used. These strips are inexpensive, available from local and online retailers,
  • 104.
    CHAPTER 10. RESULTSAND DISCUSSION 92 and negate the need for complicated testing methods, demonstrating how system pH can be monitored for a small cost in a developing community. The pH of the first digestion tank was monitored throughout the testing period and the pH of the second tank was monitored once effluent was transferred to it. For each test a sample of effluent had been taken from outlets at the base of each tank which are the only points of access to the feedstock after it enters the system. These effluent samples were then tested with the litmus paper. This release of effluent increased the risk of pathogen exposure, making the use of PPE necessary. A graph showing the change in pH throughout the testing phase is shown in Figure 10.3, with numerical result found in Appendix L. 4.5 5 5.5 6 6.5 7 7.5 pH Date (DD/MM) Digestion Tank Sedimentation Tank Figure 10.3: Change in system pH over testing period For the digestion process to begin, feedstock pH must be between 6.8 and 7.5 (Environmental Protec- tion Agency, 2012). Initially, the pH in the first digestion was neutral (pH = 7) and began to decrease over time to a value of 6. This result was expected, as the second and third phases of anaerobic digestion, acidogenesis and acetogenesis, are characterised by the production of fatty acids and acetic acids, respectively. As discussed in Section 3.3.3, a reduction of system pH to as low as 5.5 can be expected during acetogenesis. As fresh waste entered the system at the bottom of the first tank, older waste was pushed upwards. The transfer point between the two digestion tanks was 860mm from the base of the tanks, ensuring older waste above this level would be transferred to the second tank. Figure 10.3 shows an increase of pH level from 5 to 6.5 in the second tank. This was expected, as the second tank contained older waste
  • 105.
    CHAPTER 10. RESULTSAND DISCUSSION 93 that was transitioning into the methanogenesis phase, the final stage of anaerobic digestion. Ammonia is produced during the methanogenesis phase, causing pH to increase (Wang et al., 2007). The pH measurements in both tanks followed the trends expected for anaerobic digestion. When considering these pH measurements in combination with the methane concentration measurements, it is apparent that the anaerobic digestion process was progressing. 10.3.1 Controlling pH As system health has a strong dependence on feedstock pH (Karki and Dixit, 1984), it is important to have the ability to adjust the system pH if required. If the system pH had become unsuitable for anaerobic digestion at any stage throughout the testing period, it would have been possible to adjust this using off-the-shelf products designed to adjust the pH of various mixtures. As the design is intended for use in developing communities, which may not have access a wide variety of chemicals, it is important to highlight a number of ways to alter pH using readily available materials. If pH in the system is required to be lowered, a number of simple materials and techniques can be used to achieve this. Food waste has a tendency to decompose quickly, which will decrease the pH of the digester (Environmental Protection Agency, 2012). If testing shows an unsuitably high pH, food waste from kitchens can be added to the digester to lower it. Adding lemons, oranges, and other fruit containing citric acid is another way method of increasing acidity. Raising system pH is more difficult; however, sodium bicarbonate (baking soda) is a commonly available product that can be added to the system to increase alkalinity. It is commonly used to increase the pH of swimming pools, and can simply be added to the inlet of the biodigester, and flushed with water. 10.4 Temperatures As anaerobic digestion is highly sensitive to temperature, it was necessary to monitor various tem- peratures throughout the testing period. Measurements were taken using a long-probed electronic thermometer during the hours of 9am to 3pm. Temperature measurements were taken for the inlet of the first digestion tank, for ambient conditions, and for effluent samples sourced from the base of each digestion tank. In order to assess the effectiveness of the greenhouse and insulation strategies, mea- sured results were compared with temperature readings from nearby weather stations. Using resources from the Bureau of Meteorology (BOM), temperature readings from 9am and 3pm were averaged from weather stations located in Kent Town and the Adelaide Airport, the closest stations to UAHS with similar altitudes. This comparison is shown in Figure 10.4 with numerical values found in Appendix L.
  • 106.
    CHAPTER 10. RESULTSAND DISCUSSION 94 12 15 18 21 24 27 30 33 36 39 20/09 22/09 24/09 26/09 28/09 30/09 02/10 04/10 06/10 08/10 10/10 12/10 14/10 16/10 18/10 20/10 22/10 Temperature(°C) Date (DD/MM) Inlet Effluent BOM Average Testing Site Ambient Figure 10.4: Temperature measurements compared to BOM readings The system was removed from the greenhouse on 30 September, which can be seen as a drop in all measured temperatures in Figure 10.4. To combat this fall in temperature, an insulating material was attached to the first digestion tank on 9 October. The addition of this material corresponded to a stabilisation of the inlet temperature, and an increase of effluent temperature, suggesting it was an effective method of insulation. It can be seen that despite BOM recorded temperatures following a cyclic curve, the inlet and effluent temperatures display a more steady temperature gradient. This can be attributed to the effectiveness of the insulation provided initially by the greenhouse and later, the insulating material. As expected, inlet temperatures were shown to be consistently higher than effluent temperatures, usually with a margin of up to 5◦C. Inlet temperature recordings appear to follow the same general trend as the ambient temperature. Ideally, inlet temperatures will be slightly higher than ambient temperatures to demonstrate the heat being retained in the system for anaerobic digestion. However, as the majority of readings were taken in the early hours of the morning, it may be reasonably deduced that the system, due to higher thermal inertia, had been absorbing heat from the surrounding air at a much slower rate. Effluent temperature readings show that the system was operating at a lower than optimal temperature for mesophillic digestion (30 to 38◦C). However, as previously mentioned, anaerobic digestion did occur but the rate of digestion was likely retarded by low temperatures.
  • 107.
    CHAPTER 10. RESULTSAND DISCUSSION 95 10.5 Portability Demonstration Portability was demonstrated by relocating the system from the Urrbrae greenhouse to the Urrbrae piggery. The reasons for relocation of the system are discussed in Section 9.1. As the tanks were situated on 2 pallets, the use of a forklift and a pallet jack enabled the system to be easily transported. Placing two ball valves between the tanks enabled them to be isolated, and transported individually. Biogas collected in the gas membrane was easily separated from the biodigester and moved to a different location by hand. The doors of the Urrbrae greenhouse were too small to fit the tanks through upright so they had to be partially emptied and tilted. If this had not been the case, the protoype could have been moved with less disruption to the digestion process and, consequently, methane concentration would not have been affected. Proving that the design is portable has significance when considering the implementation of the sys- tem in a developing community. The prototype was constructed from materials easily sourced from hardware stores, however these resources may not be readily available in every community. Being portable, the system could be constructed at a location with the available resources by an NGO or similar organisation, and then transported to where it is required. Being able to isolate each tank while full of feedstock also makes it possible to relocate the system after it has begun operation. 10.6 Completion of Objectives A number of project objectives were outlined in Section 4.2. The extent to which these objectives have been met will be discussed. 1. Design and build a portable toilet that meets the definition of a Shared Sanitation Facility, as outlined by the WHO/UNICEF Joint Monitoring Program (JMP) for Water Supply and Sanitation. The system was checked for liquid leaks using fresh water before feedstock was added during the testing phase. No leaks were identified from this initial test, and none developed during the entire testing period. Once the feedstock entered the digester, it was completely separated from human contact. Thus, the system satisfied the WHO definition of an improved sanitation facility, as it “...hygienically separates human excreta from human contact” (WHO and UNICEF, 2014a). Calculations presented in Section 6.2 showed that the final design is capable of effectively digesting the waste of 14 daily users. The WHO defines shared sanitation facilities as “...sanitation facilities of an otherwise acceptable type, that are shared between two or more households.” (WHO and UNICEF, 2014b). Current census data
  • 108.
    CHAPTER 10. RESULTSAND DISCUSSION 96 from India and China indicates that the average number of permanent residents per household in rural areas is 5.4 and 3.88, respectively (National Bureau of Statistics of China, 2013; The Registrar General & Census Commissioner, 2011). Using these statistics as an estimate for average household size in the developing world, and noting that the final design is an acceptable facility, the prototype can be classified as a shared sanitation facility. 2. Include a functioning biodigester component in the design that is capable of harnessing the human waste collected in order to produce biogas. The success of this goal was originally based on the biogas production rate by volumetric measurement (litres of biogas produced per kilogram of feedstock). As there is not a fixed definition for the chemical composition of biogas, this goal is difficult to quantify using the originally proposed method. As stated in the discussion in Sections 10.2 and 10.3, methane was being produced within the system, and pH measurements indicated that the acidogenesis and acetogenesis phases of anaerobic digestion were taking place. These results indicate that the system was functioning as an anaerobic biodigester. 3. Integrate the toilet with the biodigester to create a portable biodigester toilet unit. The system inlet was constructed from 100mm diameter sewerage grade PVC pipe, to allow for the integration of standard 100mm toilet outlets. While the prototype was located within the UAHS greenhouse, there was not enough overhead room to mount the toilet on top of the first tank. After relocating the system outside, it was assessed that the available project budget would not allow for the construction of a safe supporting structure that could hold the weight of the toilet and user. The toilet was not physically installed on the prototype, however the design enables the integration of any toilet with a standard 100mm outlet. As discussed in Section 10.5, the portability of the design was demonstrated when the prototype was relocated during the testing period. The methane concentration dropped during this relocation process due to air entering the system, however this would not usually be the case if the system could remain upright throughout the moving procedure. It can therefore be concluded that the system is a portable biodigester toilet. 4. Ensure the design is acceptable for implementation and use in Australia by ensuring it meets relevant Australian standards. Australian standards relevant to small-scale biodigesters were identified based on the Code of Practice for on-farm biogas production and use on piggeries (Davidson et al., 2013). Although a number of standards were identified, only those relating specifically to the materials and technology used in the final design were adhered to.
  • 109.
    CHAPTER 10. RESULTSAND DISCUSSION 97 AS 4130 and AS 4645 were used to calculate the MAOP of the gas piping, as these standards specifically relate to polyethylene piping in pressure applications, and gas networks. Other standards originally identified as relevant in Table 5.1 did not relate to the final design. These standards concerned the operation of biogas appliances such as generators and flares, or outlined principles relating to the conveyance of fuel gases in metal pipelines. 5. Demonstrate a viable use for the gas generated by the biodigester. Standard gas appliances are not equipped to function effectively with low pressure gas, making quan- tification of this goal difficult. Specially modified stoves or lamps were not available so a simple flame test was conducted. Success of the flame test would prove that the gas generated by the system could be used for cooking, heating or lighting. Unfortunately this test proved the gas was not combustible by the completion of testing. As discussed in Section 10.2, it is expected that the gas will reach a flammable, and hence useful composition as the anaerobic digestion process progresses into the methanogenesis phase. Delays in prototype construction restricted the time available for testing, and results suggest that the methanogenesis phase was not reached during the testing phase.
  • 110.
    Chapter 11 Future Work Theextension objectives outlined in Section 4.3 were not completed due to financial restrictions and time constraints. These extension objectives form the foundation of future work that may be performed to improve the design. 11.1 Extension Goals As the prototype system was only operated in a scientific testing capacity, a suitable cubicle to house the toilet for privacy was not constructed. This would have also exceeded the project budget, and delays in prototype construction left little time for the completion of this extension objective. To enable the implementation of the biodigester toilet in developing communities, the construction of the cubicle is essential. Time restrictions prevented extensive research being performed on post-treatment methods for the liquid and solid effluent from the system. To design a satisfactory system, a significant amount of time should be devoted to its development. This would ensure the treated liquid and solid effluent would be safe for use as a fertiliser and would not pose a risk to persons who comes in contact with it. 11.2 Design Improvements A more appropriate gas collection system must be developed to simplify the use of biogas by the end users. The current inflatable membrane system is inexpensive and effective in capturing the biogas, however it can be easily damaged and would require a protecting structure if implemented in any practical environment. It is recommended that a floating drum system be employed as an improved 98
  • 111.
    CHAPTER 11. FUTUREWORK 99 gas collection system as it is able to provide a constant gas pressure, and can be made from materials less prone to puncture. Difficulties resulting from gas backflow and high pressures may be present in this type of system and would need to be overcome. Currently the gas collection system must be removed from the entire system for the gas to be sampled for combustibility. To simplify the practical use of the biogas for end users, the gas collection system must incorporate an output hose as well as the input from the digestion tanks. This output should incorporate fittings to enable the connection of a range of devices such as gas cook stoves, lights or heaters to the gas membrane. A flame arrester must also be incorporated to reduce the risk of fire and explosion.
  • 112.
    Chapter 12 Conclusion Research revealedthat health implications resulting from poor sanitation practices, and the indoor use of solid fuels kill over 4 million people every year. Billions of people are affected by these problems, often in conjunction with crippling poverty conditions. Based on these problems, and the fact that they are both primarily concentrated in similar developing regions, a project aim was identified to address both these issues After investigating various wastewater treatment technologies, anaerobic digestion was found to be the ideal solution to treat waste, and provide a clean burning alternative to solid fuels. Integrating an anaerobic digestion system, or ‘biodigester’ with a toilet, creates a system that separates human excreta from human contact, whilst providing an alternative energy to solid fuels in the form of biogas. The University of Adelaide Honours Project 777 team explored one concept of a biodigester toilet system in 2009. This was a two tank design that used an inflatable membrane for gas collection. The advantages of this system were portability, and the ability to clarify effluent through a settling process in the second tank, in preparation for the post-digestion filtering. There were a number of significant improvements that could be made to Project 777, which were subsequently integrated in the concept design phase of the current project. These improvements included removing all gas leaks, eliminating gas back flow problems, allowing for a longer hydraulic retention time, and operating the system in more suitable conditions. In this project, the number of people able to use the system was calculated based on the tanks available, average amounts of excreta produced per user each day, and the retention time required for anaerobic digestion be effective. Relevant Australian Standards were identified to ensure the design met all safety, environmental protection, and material selection criteria. Based on required components and resources, costs were projected within the project budget. One of the project objectives was to assemble the system entirely from readily available parts, which would 100
  • 113.
    CHAPTER 12. CONCLUSION101 increase the feasibility of the system for a larger demographic of people. Additionally, the integration of readily available resources, and limitations to design technicality, meant that there was scope for the design to be shared with users with less technical experience. A sponsorship prospectus was created and sent to potential sponsors in order to help finance the project. Lynair Logistics provided 300 AUD in sponsorship, increasing the project budget to 1,300 AUD. Sponsorship was acquired from Barrow and Bench Mitre 10 Malvern, who supplied two polyethylene water tanks, and additional components at discounted prices. Caroma made contributions of a toilet bowl and cistern at no cost. Michael Hatch from the University of Adelaide, provided various contributions to the project and played a key role in the testing process. The total cost of the project including all current confirmed sponsorship came to 1,208 AUD, which was partially financed by The University of Adelaide to a value of 1,000 AUD. The first step in the build and operation of the project was securing a location, which was a sensitive issue due to the potential risks and hazards relevant to the project. An agreement with Urrbrae Agricultural High School was established, which was mutually beneficial due to the initialisation of their own biogas program, running concurrently. The biodigester was situated in a greenhouse to best simulate the tropical conditions found in the majority of developing regions around the world. Pig waste was used for the feedstock, as it was easily available from Urrbrae’s farm, and did not pose the health risks associated with exposure to human waste. The daily amount of feedstock and water supplied to the system was chosen to be 63 L of solid and liquid waste, based on the average daily human waste production and flushing water per use. This equated to a total of 220 L of waste added daily. Operation and testing procedures were performed for 7 weeks and the biogas output collected twice a week. Biogas samples were collected and analysed, showing a significant transition of carbon dioxide and methane concentration to an increasingly flammable substance, which has been verified through flame tests. The core objectives for this project, as outlined in the Scope, defined the assessment criteria by which the success of the end product was assessed. The first objective stated that the project would in- volve the design and construction of a portable toilet that qualifies as a Shared Sanitation Facility according to the WHO/UNICEF Joint Monitoring Program for Water Supply and Sanitation. This objective was completed successfully, as the addition of a toilet ensured hygienic separation of human excreta from human contact for the user. For the second objective to be achieved, a functioning biodigester component would have to be designed to collect the biogas produced from the harnessed waste. The successful completion of this objective was achieved through the design and construc- tion of a biodigester prototype with an effective gas collection system. Testing and analysis of the captured biogas suggested that an increasing methane concentration level was indicative of the gas approaching flammability. Objective 3 was successfully completed as the inlet for the biodigester
  • 114.
    CHAPTER 12. CONCLUSION102 prototype allowed for a connection to a standard toilet. Designing the system for ease of assembly and disassembly, allowed for easy relocation during the testing phase to demonstrate portability. The fourth objective specified that, for the design to be implemented and used, it had to first abide by any relevant Australian Standards. This was achieved by following relevant standards during the design and construction stages of the process. The final core objective was to demonstrate a viable use of the captured biogas. Although initial flame tests showed that gas was incombustible, it is expected that the methane concentration will increase due to the progression of anaerobic digestion, and the gas will likely reach a flammable state, given enough time. Poor sanitation, and the household burning of solid fuels are issues that adversely affect the lives of billions of people worldwide. These problems, while independent, are concentrated in similar regions, and thus affect similar populations. In order to effectively address these problems, the overall aim of this project was defined with the need: “To develop a single appropriate technology that may be implemented in developing communities in order to alleviate the dangers associated with unsafe sanitation practices and the household burning of solid fuels.” Overall, the design and build of a biodigester toilet is considered to be successful as each core objective has been met. With further research, and an increased scope for testing and implementation, this project has the potential to positively affect the lives of billions of people worldwide.
  • 115.
    References T. Abbasi, S.Tauseef, and A. Abbasi. Biogas Energy, volume 2. Springer, 2012. B. Amigun and W. Stafford. Biofuels and sustainability in africa. Renewable and Sustainable Energy Reviews, 15(2):1360 – 1372, 2011. B. Amigun and H. von Blottniz. Capacity-cost and location-cost analyses for biogas plants in africa. Bioresource Technology, 55(1):63–73, 2010. T. Amon, B. Amon, V. Kryvoruchko, W. Zollitsch, K. Mayer, and L. Gruber. Biogas production from maize and dairy cattle manureinfluence of biomass composition on the methane yield. Agriculture, Ecosystems & Environment, 118(1):173–182, 2007. ARTI. Arti biogas plant: A compact digester for producing biogas from food waste, 2014. URL http://www.arti-india.org/index2.php?option=com_content&do_pdf=1&id=45. B. Ashley, F. Chikwati, J. John, J. Petrohilos, X. Smith, and A. Szumlinski. Biodigester toilet. 2011. T. Bond and H. Sun. Can reducing black carbon emissions counteract global warming? Envionmental Science and Technology, 39:5921–5926, 2005. Bureau of Meteorology. Climate statistics for australian locations, 2014. URL http://www.bom.gov. au/climate/averages/tables/cw_023090.shtml. 9/9/2014. E. Buysmanc and A. Mol. Market-based biogas sector development in least developed countries: The case of cambodia. Energy Policy, 63:44–51, 2013. D. Caruana and A. Olsen, editors. Environmental Science, Engineering and Technology: Anaerobic Digestion: Processes, Products and Applications. Nova Science Publishers, Inc, 2012. K. Chae, A. Janj, S. Yim, and I. Kim. The effects of digestion temperature and temperature shock on the biogas yields from the mesophilic anaerobic digestion of swine manure. Bioresource Technology, 99(1):1–6, 2008. Chartsbin. Household solid fuel use, 2007. URL http://chartsbin.com/view/2835. 103
  • 116.
    REFERENCES 104 S. Cheng,Z. Li, H. Mang, E. Huba, R. Gao, and X. Wang. Development and application of prefab- ricated biogas digesters in developing countries. Renewable and Sustainable Energy Reviews, 34: 387–400, 2014. A. Chinyama. Understanding the poor performance of urban sewerage systems: A case of coldstream high density suburbs, chinhoyi, zimbabwe. Urban Planning and Design Research, 10(3):45–51, 2013. G. Coffee, H. Dent, J. Messenger, and H. Prestwood. Project: Sustainable energy for developing communities, 2009. A. Davidson, M. Yap, S. Ponder, and G. Jeffrey. Code of practice for on-farm biogas production and use (piggeries). Draft Consultation Report, 2013. Prime Consulting International (Australia) Pty Ltd. Department of Industry. Install water-efficient toilets, 2014. URL http://yourenergysavings. gov.au/water/water-home-garden/water-efficient-appliances-fixtures/ install-water-efficient-toilets. Accessed 29/9/2014. D. Deublein and A. Steinhauser. 2010. doi: 10.1002/9783527632794. URL http://dx.doi.org/10. 1002/9783527632794. H. El-Mashad and R. Zhang. Biogas production from co-digestion of dairy manure and food waste. Bioresource technology, 101(11):4021–4028, 2010. Energypedia. Experience with polyethylene biogas digester (pbd), 2014. URL https://energypedia. info/wiki/Experience_with_Polyethylene_Biogas_Digester_(PBD). Engineers Without Borders. Arti biodigester, 2011. URL http://www.ewb.org.au/announcements/ 639/11188. Environmental Protection Agency. Increasing anaerobic digester performance with codigestion, 2012. M. Ezzati, A. Lopez, A. Rodgers, and C. Murray. Comparative quantification of health risks: global and regional burden of disease attributable to selected major risk factors, volume 2. World Health Organization, Geneva, 2005. E. Favre, R. Bounaceur, and D. Roizard. Biogas, membranes and carbon dioxide capture. Bioresource Technology, 328(2):11–14, 2009. R. Feachem, D. Bradley, H. Garelick, and D. Mara. Appropriate technology for water supply and sanitation: Health aspects of excreta and sullage - a state-of-the-art review. 1980. R. Fenner, P. Guthrie, and E. Piano. Process selection for sanitation systems and wastewater treatment
  • 117.
    REFERENCES 105 in refugeecamps during disaster-relief situations. Water and Environment Journal, 21(4):252–264, 2007. A. Fenwick. The global burden of neglected tropical diseases. Public Health, 126(3):233–236, 2012. C. Ferreira. Refractive index matching applied to fecal smear clearing. Revista do Instituto de Medicina Tropical de Sao Paulo, 47(6):347–350, 2005. W. Foell, S. Pachauri, D. Spreng, and H. Zerriffi. Household cooking fuels and technologies in devel- oping economies. Energy Policy, 39:7487–7496, 2011. Foster and Smith. Pet supplies, 2014. URL http://www.drsfostersmith.com/images/ Categoryimages/larger/lg_26378_35703D.jpg. P. Furniss. Waste products; wasted time; wasted lives: What does a lack of ac- cess to sanitation mean?, 2011. URL http://www.open.edu/openlearn/body-mind/ waste-products-wasted-time-wasted-lives-what-does-lack-access-sanitation-mean/. GACC. Data and statistics, 2014. URL http://www.cleancookstoves.org/resources/ data-and-statistics/. I. Glassman and R. A. Yetter, editors. Appendix E - Flammability Limits in Air. Academic Press, Burlington, fourth edition edition, 2008. H. Heinonen-Tanski and C. van Wijk-Sijbesma. Human excreta for plant production. Bioresource Technology, 96(4):403–411, 2004. J. Jenkins. The Humanure Handbook. Joseph Jenkins Inc., Grove City, PA, 1st edition, 2005. X. Jiang, S. Sommer, and K. Christensen. A review of the biogas industry in china. Energy Policy, 39(10):6073–6081, 2010. L. Junfeng, H. Runqing, S. Y. S. Jingli, S. Bhattacharya, and P. S. Abdul. Assessment of sustainable energy potential of non-plantation biomass resources in china. Biomass and Bioenergy, 29(3):167– 177, 2005. J. Kaniyamparambil. A look at indias biogas energy development program - after three decades, is it useful (doing what it should) and should it be continued? Bioresource Technology, 19(3):23–29, 2011. S. Kanwar and R. Guleri. Performance evaluation of a family-size, rubber-balloon biogas plant under hilly conditions. Bioresource technology, 50(2):119–121, 1994. A. Karki and K. Dixit. Biogas fieldbook. Environmental Engineering, 13(2):1–5, 1984.
  • 118.
    REFERENCES 106 R. Labatutand C. Gooch. Monitoring of anaerobic digestion process to optimize performance and prevent system failure. In Got Manure?, pages 209–224, 2012. G. Lettinga. Anaerobic digestion and wastewater treatment systems. Antonie van leeuwenhoek, 67 (1):3–28, 1995. D. Mara and G. Alabaster. A new paradigm for low-cost urban water supplies and sanitation in developing countries. Water Policy, 10(2):119–129, 2008. J. Mart’i-Herrero and J. Cipriano. Design methodology for low cost tubular digesters. Bioresource technology, 108:21–27, 2012. O. Masera, B. Saatkamp, and D. Kammen. From linear fuel switching to multiple cooking strategies: a critique and alternative to the energy ladder model. World development, 28(12):2083–2103, 2000. D. Masse, Y. Gilbert, and E. Topp. Pathogen removal in farm-scale psychrophilic anaerobic digesters processing swine manure. Bioresource Technology, 102(2):641 – 646, 2011. J. Mata-Alvarez, S. Mace, and P. Llabres. Anaerobic digestion of organic solid wastes. an overview of research achievements and perspectives. Bioresource technology, 74(1):3–16, 2000. M. Murphy, E. McBean, and K. Farahbakhsh. Appropriate technology a comprehensive approach for water and sanitation in the developing world. Technology in Society, 31(2):158–167, 2009. MykinInc. Rubber chemical compatibility, 2014. URL http://mykin.com/ rubber-chemical-resistance-chart-2. Accessed 20/10/2014. National Bureau of Statistics of China. China statistical yearbook 2013, 2013. URL http://www. stats.gov.cn/tjsj/ndsj/2013/html/Z1117E.htm. Accessed 21/10/2014. Open Universities Australia. Career advice: Mechanical engineers, 2014. URL http://www.open. edu.au/careers/engineering/mechanical-engineers. Accessed 5/6/2014. J. Parikh. Hardships and health impacts on women due to traditional cooking fuels: A case study of himachal pradesh, india. Energy Policy, 39(12):7587–7594, 2011. G. Parkin and W. Owen. Fundamentals of anaerobic digestion of wastewater sludges. Journal of Environmental Engineering, 112(5):867–920, 1986. Picarro. Picarro g2201-i analyzer, 2014. URL http://www.picarro.com/products_solutions/ isotope_analyzers/13c_for_ch4_co2. E. Rehfuess, N. Bruce, and K. Smith. Solid Fuel Use: Health Effect, volume 5. Elsevier B.V., 2011. D. Rivard. Chinese public toilets, 2005. URL https://www.flickr.com/photos/rivard/50151405/ in/set-1368743.
  • 119.
    REFERENCES 107 A. Rohjy,J. Aduba, H. Manta, and Y. Pamdaya. Development of anaerobic digestion for the produc- tion of biogas using poulty and cattle dung: A case study of federal university of technology minna cattle and poultry pen. International Journal of Life Sciences, 2(3):139–149, 2013. Rwanda Utilities Regulatory Agency. Technical Guidelines for Construction of Domestic Fixed Dome Biogas Plants. 2012. K. Singh and S. Sooch. Comparative study of economics of different models of family size biogas plant for state of punjab, india. Energy Conversion and Management, 45(3):1329–1341, 2002. S. Smith, N. Lang, K. Cheung, and K. Spanoudaki. Factors controlling pathogen destruction during anaerobic digestion of biowastes. Waste Management, 25(4):417–425, 2005. SNV. Study on identification of the best biodigester model for lao pdr, 2007. Socioeconomic Data and Applications Center. World: Infant mortality rates (imr), 2005. URL http://sedac.ciesin.columbia.edu/data/collection/povmap/maps/gallery/ search?facets=region:global&facets=theme:poverty. Accessed 14/10/2014. B. Stauffer. Overhung latrine. Sustainable Sanitation and Water Management (SSWM), 2014. URL http://www.sswm.info/category/implementation-tools/wastewater-treatment/ hardware/user-interface/overhung-latrine. Accessed 6/6/2014. R. Stephenson. A Comparison of Retained Biomass Anaerobic Digester Designs. PhD thesis, The University of British Columbia, 1987. H. Sulistyo, S. Syamsiah, D. A. Herawati, and A. A. Wibawa. Biogas production from traditional market waste to generate renewable energy. pages 1–4, 2012. K. Surendra, D. Takara, J. Jasinski, and S. Khanal. Household anaerobic digester for bioenergy production in developing countries: opportunities and challenges. Environmental Technology, 34 (13-14):1671–1689, 2013. P. Suryawanshi, A. Chaudhari, S. Bhardwaj, and T. Yeole. Operating procedures for efficient anaerobic digester operation. Research Journal of Animal, Veterinary and Fishery Sciences, 1(2):12–15, 2013. Thai Biogas Energy Company. Biogas technology, 2008. URL http://www.tbec.co.th/technology. php. Accessed 23/10/2014. The Registrar General & Census Commissioner. Houselisting and housing census data high- lights - 2011, 2011. URL http://censusindia.gov.in/Data_Products/Data_Highlights/Data_ Highlights_link/data_highlights_hh1_2_3.pdf. Accessed 21/102014. J. Tumwine, J. Thompson, M. Katua-Katua, M. Mujwajuzi, N. Johnstone, E. Wood, and I. Porras.
  • 120.
    REFERENCES 108 Diarrhoea andeffects of different water sources, sanitation and hygiene behaviour in east africa. Tropical Medicine and International Health, 7(9):750–756, 2002. UNICEF. Unicef - water, sanitation and hygiene - common water and sanitation-related diseases, 2014. URL http://www.unicef.org/wash/index_wes_related.html. Accessed 6/6/2014. United Nations. Millennium development goals and beyond 2015, 2014. URL http://www.un.org/ millenniumgoals/bkgd.shtml. Accessed 6/6/2014. P. Vindis, B. Mursec, M. Janzekovic, and F. Cus. The impact of mesophilic and thermophilic anaerobic digestion on biogas production. Journal of achievements in materials and manufacturing Engineer- ing, 36(2):192–198, 2009. L. Wang, N. Shammas, and Y. Hung. Biosolids treatment processes. Humana Press, Totowa, N.J., 1st edition, 2007. A. Weir. Biogas - digester types, n.d. URL http://fastonline.org/CD3WD_40/BIOGSHTM/EN/ APPLDEV/DESIGN/DIGESTYPES.HTML#FLOAT. Accessed 23/10/2014. WHO. Solid fuel use for cooking, 2007. URL http://www.who.int/indoorair/health_impacts/ he_database/en/. WHO. Global sanitation trends: 1990 - 2010. 2012. WHO. Fact sheet no. 292: Household air pollution and heath, 2014. URL http://www.who.int/ mediacentre/factsheets/fs292/en/. WHO and UNICEF. Progress on drinking water and sanitation: 2012 update, 2012. WHO and UNICEF. Joint monitoring programme (jmp) for water supply and sanitation, 2014a. URL http://www.wssinfo.org/definitions-methods/watsan-categories/. WHO and UNICEF. The sanitation and drinking-water ladders, 2014b. URL http://www.wssinfo. org/definitions-methods/watsan-ladder/. WHO and UNICEF. Improved and unimproved water and sanitation facilities, 2014c. URL http: //www.wssinfo.org/definitions-methods/watsan-categories/. Accessed 6/6/2014. A. Xuan, T. Preston, and F. Dolberg. The introduction of low-cost polyethylene tube biodigesters on small scale farms in vietnam. Research for Rural Development, 9(2):27–35, 1997. A. Zu. Arti biodigester, 2005. URL http://www.completebiogas.com/B_ARTI.html.
  • 121.
    Appendix A Project Timeline TableA.1: Project Review Gates Review Gate Task completed up to review gate Task to commence after review gate Review Gate 1: Research All group members have a full understanding of the workings of a biodigesters as well as the design requirements of the system. Design of system. Review Gate 2: Whole System Design All engineering drawings have been completed for each subsystem and the system assembly. Construction of the prototype. Review Gate 3: Prototype Prototype is constructed and has received the necessary professional approval. Testing of system. Review Gate 4: Testing Sufficient data is collected to provide a reliable conclusion for the performance of the design. Completion of deliverables. 109
  • 122.
    APPENDIX A. PROJECTTIMELINE 110 Table A.2: Major Milestones, Review Gates and Due Dates Item Due Date Review Gate 1 03/03 Project Charter 01/04 Progress Report 1 2/05 Review Gate 2 20/05 Progress Report 2 23/05 Preliminary Report 06/06 Project Management Plan 06/06 Review Gate 3 06/06 Progress Report 3 15/08 Seminar Abstract 29/08 Progress Report 4 12/09 Testing completion 19/10 Poster 21/10 Final Report 24/10 Project Completion Report 07/11
  • 123.
  • 124.
  • 125.
  • 126.
    Appendix B CAD Drawings AComputer Aided Design (CAD) model of the system was created using Autodesk Inventor. The overall model is shown in Figure B.1. Note, the gas collection membrane has been omited for clarity. All drawings were created using Autodesk Inventor, and are presented in the following pages. Figure B.1: Overall CAD model of prototype 114
  • 127.
    Date: Drawn By: Part/Assembly: Projection: Project: Sheet: 05-Aug-2014 James Bass OverallAssembly Biodigester Toilet2095.00 2520.00 570.00 1348.00 1 of 2
  • 128.
    PARTS LIST DESCRIPTIONPART NUMBERQTYITEM FirstTank11 Second Tank12 50mm PVC ball valve23 300mm length50mm dia PVC pipe14 25mm dia ball valve26 100mm length25mm dia PE blueline pipe27 25mm dia 90deg bend28 25mm dia PE T-piece19 55mm length25mm dia blueline PE pipe110 1355mm length25mm blueline PE pipe111 Sheet: Projection: Project: Part/Assembly: Drawn By: Date: Iso 05-Aug-2014 James Bass Overall Assembly Biodigester Toilet 2 of 2 1 2 11 8 9 8 6 NOTE: Gas collection bladder and framework not shown
  • 129.
    Date: Drawn By: Part/Assembly: Projection: Project: Sheet: 05-Aug-2014 James Bass FirstTank 1 of 2 Biodigester Toilet 760.00100.00 1200.00 1950.00 265.00 150.00 490.00 170.00
  • 130.
    PARTS LIST DESCRIPTIONPART NUMBERQTYITEM InletAssembly13 First Tank Basic14 50mm tank flange19 Outlet Assembly110 First Tank Lid111 Sheet: Projection: Project: Part/Assembly: Drawn By: Date: Iso 9 3 4 05-Aug-2014 Biodigester Toilet James Bass First Tank 2 of 2 10 11
  • 131.
    Date: Drawn By: Part/Assembly: Projection: Project: Sheet: 05-Aug-2014 James Bass BiodigesterToilet Second Tank 1 of 2 1900.00 934.00 900.00 760.00100.00 265.00
  • 132.
    PARTS LIST DESCRIPTIONPART NUMBERQTYITEM SecondTank Basic11 50mm tank flange12 Outlet assembly14 Second Tank Lid15 Sheet: Projection: Project: Part/Assembly: Drawn By: Date: Iso 05-Aug-2014 Biodigester Toilet James Bass Second Tank 2 of 2 2 1 4 5
  • 133.
    PARTS LIST DESCRIPTIONPART NUMBERQTYITEM 90mm90deg PVC bend21 1500mm length90mm dia PVC Pipe13 90mm dia pipe short14 Date: Drawn By: Part/Assembly: Projection: Project: Sheet: 1340.00 90.00 90.00 1200.00 150.00 11 3 4 05-Aug-2014 James Bass Inlet Assembly Biodigester Toilet 1 of 1
  • 134.
    Date: Drawn By: Part/Assembly: Projection: Project: Sheet: 18-Oct-2014 BiodigesterToilet James Bass First Tank Lid 1 of 2 490.00 480.00 490.00 480.00 7.00 6.00 5.00 16X 125.0090.00
  • 135.
    PARTS LIST DESCRIPTIONPART NUMBERQTYITEM 7mmThickExterior Plywood11 25mm Tank Flange12 6mm ThickNeoprene Rubber13 Sheet: Projection: Project: Part/Assembly: Drawn By: Date: Iso 1 3 2 18 Oct 2014 James Bass Biodigester Toilet First Tank Lid 2 of 2
  • 136.
    Date: Drawn By: Part/Assembly: Projection: Project: Sheet: 18 Oct2014 James Bass Biodigester Toilet Second Tank Lid 1 of 2 250.00 190.00 185.00 7.00 6.00 25.00 5.00 8X 5.00 8X
  • 137.
    PARTS LIST DESCRIPTIONPART NUMBERQTYITEM PE185mm dia11 25mm Tank Flange12 7mm ThickPlywood Ring13 6mm ThickNeoprene Seal14 Sheet: Projection: Project: Part/Assembly: Drawn By: Date: Iso 1 3 4 2 18 Oct 2014 Biodigester Toilet James Bass Second Tank Lid 2 of 2
  • 138.
    Appendix C Australian Standardsfor Polyethylene Pipes Relevant Standards regarding polyethylene pipes for pressure applications. Taken from AS/NZS 4130: Polyethylene (PE) Pipes for Pressure Applications (Australian Standards 2009). 126
  • 139.
    APPENDIX C. AUSTRALIANSTANDARDS FOR POLYETHYLENE PIPES 127
  • 140.
    APPENDIX C. AUSTRALIANSTANDARDS FOR POLYETHYLENE PIPES 128
  • 141.
    APPENDIX C. AUSTRALIANSTANDARDS FOR POLYETHYLENE PIPES 129
  • 142.
    Appendix D Australian StandardGas System Design Factors Relevant standards regarding gas distribution design factors. Taken from AS 4645-2005 Gas distribu- tion network management (Australian Standards 2005). 130
  • 143.
    APPENDIX D. AUSTRALIANSTANDARD GAS SYSTEM DESIGN FACTORS 131
  • 144.
    Appendix E Stirrer CADDrawings A Computer Aided Design (CAD) model of the stirrer was created using Autodesk Inventor. The overall model is shown in Figure E.1. All drawings were created using Autodesk Inventor, and are presented in the following pages. Figure E.1: Overall CAD model of stirrer 132
  • 145.
    1 1 2 2 3 3 4 4 5 5 6 6 A A B B CC D D 17/08/2014 DESIGNED CHECKED APPROVED DATE SHEET A3 REVISION 1 1 of 1 PART NUMBER TITLE 1587-010101 Lid THIRD ANGLE PROJECTION PROJECT 1587 - The Design and Build of a Biodigester SCALEMASS DO NOT SCALE DIMENSIONS IN MILIMETERS DRAWING STANDARD AS1100 MATERIAL QTY N/A DRAWN Charlie Savory DATE DATE DATE Charlie Savory 10/08/2014 -Plywood, Sheathing 1 UNLESS STATED OTHERWISE GENERAL TOLERANCE: LINEAR: ANGULAR: 0.3 1 REMOVE BURRS & SHARP EDGES ALL OVER.3.2 NOTE: 1. MAKE FROM: PLYWOOD 7mm. Bunnings. 108 Railway Terrace, Mile End SA 5031. 2. ALTER A SHOWN. 40 9 M8 (8.98 9.00 )2 EQUISPACED @28 PCD 400 400 7.00
  • 146.
    1 1 2 2 3 3 4 4 5 5 6 6 A A B B CC D D 17/08/2014 DESIGNED CHECKED APPROVED DATE SHEET A3 REVISION 1 1 of 1 PART NUMBER TITLE 1587-010102 Shaft THIRD ANGLE PROJECTION PROJECT 1587 - The Design and Build of a Biodigester SCALEMASS DO NOT SCALE DIMENSIONS IN MILIMETERS DRAWING STANDARD AS1100 MATERIAL QTY N/A DRAWN Charlie Savory DATE DATE DATE Charlie Savory 10/08/2014 -Steel, Carbon 1 UNLESS STATED OTHERWISE GENERAL TOLERANCE: LINEAR: ANGULAR: 0.3 1 REMOVE BURRS & SHARP EDGES ALL OVER.3.2 NOTES: 1. MAKE FROM: 25 NB - SCH 80 (4.55mm wall) Extra Strong Water Pipe SA Steel Works. 26 Athol St, Athol Park SA 5012. 2. ALTER AS SHOWN. 33.4( ) 24.3( ) 31.75 m6 (31.759 31.775 ) 1800 1900 NOTE: Press Fit to Shortlube Bushings
  • 147.
    1 1 2 2 3 3 4 4 5 5 6 6 A A B B CC D D 19/08/2014 DESIGNED CHECKED APPROVED DATE SHEET A3 REVISION 1 1 of 1 PART NUMBER TITLE 1587-010103 Seal THIRD ANGLE PROJECTION PROJECT 1587 - The Design and Build of a Biodigester SCALEMASS DO NOT SCALE DIMENSIONS IN MILIMETERS DRAWING STANDARD AS1100 MATERIAL QTY N/A DRAWN Charlie Savory DATE DATE DATE Charlie Savory 10/08/2014 -Rubber, Silicone 1 UNLESS STATED OTHERWISE GENERAL TOLERANCE: LINEAR: ANGULAR: 0.3 1 REMOVE BURRS & SHARP EDGES ALL OVER.3.2 6.00 NOTES: 1. MAKE FROM: 5mm Red Silicone Sheet Fitch Rubber. 2 George Street, Hindmarsh SA 5007. Part Number: MAT5.0SIL 2. ALTER AS SHOWN 80 31.75 9.00 M8 (8.98 9.00 ) EQUISPACED @28 PCD
  • 148.
    A-A ( 1: 1 ) A A 1 1 2 2 3 3 4 4 5 5 6 6 A A B B C C D D 17/08/2014 DESIGNED CHECKED APPROVED DATE SHEET A3 REVISION 1 1 of 1 PART NUMBER TITLE 1587-010104 Housing THIRD ANGLE PROJECTION PROJECT Biodigester Stirrer SCALEMASS DO NOT SCALE DIMENSIONS IN MILIMETERS DRAWING STANDARD AS1100 MATERIAL QTY N/A DRAWN Charlie Savory DATE DATE DATE Charlie Savory 10/08/2014 -AL ALLOY, SERIES 5000-6000 1 UNLESS STATED OTHERWISE GENERAL TOLERANCE: LINEAR: ANGULAR: 0.3 1 REMOVE BURRS & SHARP EDGES ALL OVER.3.2 55 9.00 M8 (8.98 9.00 )2 EQUISPACED @28 PCD 76 (stock) 2 45 38.10 H11 (38.10 38.26 )
  • 149.
    1 1 2 2 3 3 4 4 5 5 6 6 A A B B CC D D 17/08/2014 DESIGNED CHECKED APPROVED DATE SHEET A3 REVISION 1 1 of 1 PART NUMBER TITLE 1587-010107 Metal Plate( 2) THIRD ANGLE PROJECTION PROJECT 1587 - The Design and Build of a Biodigester SCALEMASS DO NOT SCALE DIMENSIONS IN MILIMETERS DRAWING STANDARD AS1100 MATERIAL QTY N/A DRAWN Charlie Savory DATE DATE DATE 10/08/2014 STEEL, LOW CARBON UNLESS STATED OTHERWISE GENERAL TOLERANCE: LINEAR: ANGULAR: REMOVE BURRS & SHARP EDGES ALL OVER. 7 (Stock) 9.00 M8 (8.98 9.00 ) 8.5 100 50
  • 150.
    1 1 2 2 3 3 4 4 5 5 6 6 A A B B CC D D 30/09/2014 DESIGNED CHECKED APPROVED DATE SHEET A3 REVISION 1 1 of 1 PART NUMBER TITLE 1587-010303 L Joint THIRD ANGLE PROJECTION PROJECT Biodigester Stirrer (Project #1587) SCALEMASS DO NOT SCALE DIMENSIONS IN MILIMETERS DRAWING STANDARD AS1100 MATERIAL QTY N/A DRAWN Charlie Savory DATE DATE DATE Charlie Savory 1/08/2014 Stainless Steel UNLESS STATED OTHERWISE GENERAL TOLERANCE: LINEAR: ANGULAR: REMOVE BURRS & SHARP EDGES ALL OVER. 25 80 88 104 24 61 8 8.00
  • 151.
    1 1 2 2 3 3 4 4 5 5 6 6 A A B B CC D D 30/09/2014 DESIGNED CHECKED APPROVED DATE SHEET A3 REVISION 1 1 of 1 PART NUMBER TITLE 1587-010304 Bar THIRD ANGLE PROJECTION PROJECT Biodigester Stirrer (Project #1587) SCALEMASS DO NOT SCALE DIMENSIONS IN MILIMETERS DRAWING STANDARD AS1100 MATERIAL QTY N/A DRAWN Charlie Savory DATE DATE DATE Charlie Savory 1/08/2014 Steel UNLESS STATED OTHERWISE GENERAL TOLERANCE: LINEAR: ANGULAR: REMOVE BURRS & SHARP EDGES ALL OVER. 310 30 30 14 53 5 5 12.5 15 106
  • 152.
    1 1 2 2 3 3 4 4 5 5 6 6 A A B B CC D D 30/09/2014 DESIGNED CHECKED APPROVED DATE SHEET A3 REVISION 1 1 of 1 PART NUMBER TITLE 1587-010302 Large Aluminium Paddle THIRD ANGLE PROJECTION PROJECT Biodigester Stirrer (Project #1587) SCALEMASS DO NOT SCALE DIMENSIONS IN MILIMETERS DRAWING STANDARD AS1100 MATERIAL QTY N/A DRAWN Charlie Savory DATE DATE DATE Charlie Savory 1/08/2014 Aluminum 6061 UNLESS STATED OTHERWISE GENERAL TOLERANCE: LINEAR: ANGULAR: REMOVE BURRS & SHARP EDGES ALL OVER. 425 5 300 30 72 249 281 18 20
  • 153.
    1 1 2 2 3 3 4 4 5 5 6 6 A A B B CC D D 30/09/2014 DESIGNED CHECKED APPROVED DATE SHEET A3 REVISION 1 1 of 1 PART NUMBER TITLE 1587-010301 Small Aluminium Paddle THIRD ANGLE PROJECTION PROJECT Biodigester Stirrer (Project #1587) SCALEMASS DO NOT SCALE DIMENSIONS IN MILIMETERS DRAWING STANDARD AS1100 MATERIAL QTY N/A DRAWN Charlie Savory DATE DATE DATE Charlie Savory 1/08/2014 Aluminum 6061 UNLESS STATED OTHERWISE GENERAL TOLERANCE: LINEAR: ANGULAR: REMOVE BURRS & SHARP EDGES ALL OVER. 5 300 190 108 20 20 30 72 249 281
  • 154.
    B ( 0.2: 1 ) C-C ( 0.2 : 1 ) PARTS LIST QTYDESCRIPTIONPART NUMBERITEM 1Lid1587-0101011 1Shaft1587-0101022 1Seal1587-0101033 1Housing1587-0101044 1Bushing (hidden). Shortlube. Pt Num: C4048-2 1587-0101055 1Flange Bushing. Shortlube. Pt Num: C4048-1 1587-0101066 2Metal Plate1587-0101077 6L Bracket1587-0101088 6Bar1587-0101099 1Paddle (large)1587-01011010 2Paddle (small)1587-01011111 B C 1 1 2 2 3 3 4 4 5 5 6 6 A A B B C C D D 3/09/2014 DESIGNED CHECKED APPROVED DATE SHEET A3 REVISION 1 1 of 1 PART NUMBER TITLE 010100 Stirrer Minus Handle THIRD ANGLE PROJECTION PROJECT Biodigester Stirrer (Project #1587) SCALEMASS DO NOT SCALE DIMENSIONS IN MILIMETERS DRAWING STANDARD AS1100 MATERIAL QTY N/A DRAWN Charlie Savory DATE DATE DATE Charlie Savory 1/08/2014 UNLESS STATED OTHERWISE GENERAL TOLERANCE: LINEAR: ANGULAR: REMOVE BURRS & SHARP EDGES ALL OVER. 1 2 3 4 5 6 7 8 9 10 11
  • 155.
    1 1 2 2 3 3 4 4 5 5 6 6 A A B B CC D D 19/08/2014 DESIGNED CHECKED APPROVED DATE SHEET A3 REVISION 1 1 of 1 PART NUMBER TITLE 1587-010201 Handle Arm THIRD ANGLE PROJECTION PROJECT 1587 - The Design and Build of a Biodigester SCALEMASS DO NOT SCALE DIMENSIONS IN MILIMETERS DRAWING STANDARD AS1100 MATERIAL QTY N/A DRAWN Charlie Savory DATE DATE DATE Charlie Savory 10/08/2014 STEEL, LOW CARBON UNLESS STATED OTHERWISE GENERAL TOLERANCE: LINEAR: ANGULAR: REMOVE BURRS & SHARP EDGES ALL OVER. 5(stock) 400 60
  • 156.
    1 1 2 2 3 3 4 4 5 5 6 6 A A B B CC D D 3/09/2014 DESIGNED CHECKED APPROVED DATE SHEET A3 REVISION 1 1 of 1 PART NUMBER TITLE 1587-010202 Handle Sleeve THIRD ANGLE PROJECTION PROJECT 1587 - The Design and Build of a Biodigester SCALEMASS DO NOT SCALE DIMENSIONS IN MILIMETERS DRAWING STANDARD AS1100 MATERIAL QTY N/A DRAWN Charlie Savory DATE DATE DATE Charlie Savory 25/08/2014 STEEL, LOW CARBON UNLESS STATED OTHERWISE GENERAL TOLERANCE: LINEAR: ANGULAR: REMOVE BURRS & SHARP EDGES ALL OVER. 41 32 30 30 6 M6 17 NOTE: Threaded hole to fix shaft to handle.
  • 157.
    1 1 2 2 3 3 4 4 5 5 6 6 A A B B CC D D 19/08/2014 DESIGNED CHECKED APPROVED DATE SHEET A3 REVISION 1 1 of 1 PART NUMBER TITLE 1587-010203 Handle Bar THIRD ANGLE PROJECTION PROJECT 1587 - The Design and Build of a Biodigester SCALEMASS DO NOT SCALE DIMENSIONS IN MILIMETERS DRAWING STANDARD AS1100 MATERIAL QTY N/A DRAWN Charlie Savory DATE DATE DATE Charlie Savory 10/08/2014 STEEL, LOW CARBON UNLESS STATED OTHERWISE GENERAL TOLERANCE: LINEAR: ANGULAR: REMOVE BURRS & SHARP EDGES ALL OVER. 30(stock) 120
  • 158.
    PARTS LIST QTYDESCRIPTIONPART NUMBERITEM 1HandleArm1587-0102011 1Handle Sleeve1587-0102022 1Handle Bar1587-0102033 1 1 2 2 3 3 4 4 5 5 6 6 A A B B C C D D 3/09/2014 DESIGNED CHECKED APPROVED DATE SHEET A3 REVISION 1 1 of 1 PART NUMBER TITLE 010200 Handle Assembly THIRD ANGLE PROJECTION PROJECT 1587 - The Design and Build of a Biodigester SCALEMASS DO NOT SCALE DIMENSIONS IN MILIMETERS DRAWING STANDARD AS1100 MATERIAL QTY N/A DRAWN Charlie Savory DATE DATE DATE Charlie Savory 31/08/2014 Steel, Carbon UNLESS STATED OTHERWISE GENERAL TOLERANCE: LINEAR: ANGULAR: REMOVE BURRS & SHARP EDGES ALL OVER. NOTES. 1. ALL WELDING TO COMPLY WITH AS/NZS 1554.1-2004 - STRUCTURAL STEEL WELDING - WELDING OF STEEL STRUCTURES. 2. VISUAL INSPECTION OF WELD ONLY. 25 35 30 7 7
  • 159.
    B ( 0.25: 1 ) B PARTS LIST QTYPART NUMBERITEM 1Stirrer Sub-Assembly1 1Handle Sub-Assembly2 1 1 2 2 3 3 4 4 5 5 6 6 A A B B C C D D 30/09/2014 DESIGNED CHECKED APPROVED DATE SHEET A3 REVISION 1 1 of 1 PART NUMBER TITLE 100000 Whole Stirrer Assembly THIRD ANGLE PROJECTION PROJECT Biodigester Stirrer (Project #1587) SCALEMASS DO NOT SCALE DIMENSIONS IN MILIMETERS DRAWING STANDARD AS1100 MATERIAL QTY N/A DRAWN Charlie Savory DATE DATE DATE Charlie Savory 1/08/2014 UNLESS STATED OTHERWISE GENERAL TOLERANCE: LINEAR: ANGULAR: REMOVE BURRS & SHARP EDGES ALL OVER. 1 2
  • 160.
    Appendix F Risk Assessment Risk TypeSpecific Risk Likelihood Consequence Risk Level Accept/Reject Prevention/Reduction Risks To Project Success Cannot Source Feedstock: Without feedstock prototype testing is impossible D 4 Medium R All team members to contact potential suppliers immediately Feedstock Quality: Feedstock may not contain adequate volatile solids for the production of biogas E 2 Low A 148
  • 161.
    APPENDIXF.RISKASSESSMENT149 Anaerobic Digestion DoesNot Occur: Bacteria required for anaerobic digestion do not form to useful levels, prohibiting the production of biogas D 4 Medium R Initiate anaerobic digestion process in smaller external tanks to guarantee the digestion process is occurring Climate: The anaerobic digestion process may be retarded by Adelaide’s winter climate A 3 High R Install insulation around the biodigester structure to raise the internal temperature of the system Scum Formation: Blockages occur due to foam and scum formation, caused by departure of pH from neutral levels C 2 Medium R Macerate feedstock prior to entering the system, ensure pipework and fittings are of a suitable diameter, and prevent foreign materials from entering the system by using covers on all inlets Fire or Explosion: Stored flammable gas creates a risk of fire or explosion, causing irreparable damage E 5 Medium R The system will be stored in a well ventilated area. Warning signs will be installed to prevent the use of naked flames and smoking in the vicinity. The gas storage membrane will be placed in a location to prevent unauthorised access
  • 162.
    APPENDIXF.RISKASSESSMENT150 Gas Leaks: Causea loss of biogas effecting the results of testing C 2 Medium R Continuous checking of the system for leaks using detergent and water. Correct gas fittings, and joining methods will also be used Sludge Leaks: Causes feedstock to be lost from the system, retarding gas production E 2 Low A Damage to Tanks: Tanks are a critical and expensive design components, damage could occur in transport, construction and testing D 3 Medium R Extreme care will be taken during transportation, construction and testing. Suitable tools and methods will be used during construction after extensive planning Damage to Plumbing Fixtures: May be damaged during construction E 2 Low A Part Sourcing: Lead-times and part availability could cause delays in construction and testing C 2 Medium R Local suppliers used as much as possible. Parts with long lead-times will be ordered as soon as possible Sponsorship: Required sponsorship is not obtained D 3 Medium R A sponsorship prospectus is to be produced. Potential sponsors will be continually contacted for the duration of the project
  • 163.
    APPENDIXF.RISKASSESSMENT151 Google Drive Fails:Google Drive is used to store and share project files. If this application failed files would be lost E 4 High R Periodic backups up of the Google Drive folder will be performed by all team members No Available Location for Testing: Testing will be impossible without a suitable location to house the prototype E 5 High R Attain necessary approvals and safety documentation to satisfy land owners. Continuously contact potential stakeholders until a location is found Team Member Incapacitated: Illness, injury or unforeseen circumstances may prevent a team member from contributing to the project D 2 Low A Risks To Personal Safety Disease Contraction from Feedstock: Faeces used as feedstock may contain harmful pathogens presenting risk of disease E 4 Medium R Use of personal protective equipment, biological waste handling training will be undertaken, and a standard operating procedure will be developed to minimise user exposure to feedstock
  • 164.
    APPENDIXF.RISKASSESSMENT152 Fire and Explosion:Flammable gas is stored within the system posing a risk of fire and explosion to local occupants E 5 High R The system will be stored in a well ventilated area. Warning signs will be installed to prevent the use of naked flames and smoking in the vicinity. The gas storage membrane will be placed in a location to prevent unauthorised access Asphyxiation: Biogas contains a mixture of gases that displace air, creating a risk of asphyxiation to local occupants E 3 Medium R Store system in a well ventilated area to prevent accumulation of gas Construction: Lifting heavy objects and the use of power and cutting tools during prototype construction poses a risk of injury. D 3 Medium R Ensure all team members wear PPE, are trained in the use of all tools, and all power tools are electrically tested and tagged. Correct heavy lifting procedures will be followed. A first aid kit must always be on site
  • 165.
  • 166.
    INVENTORY & BUDGET Inventory ItemDate Purchased Supplier Quantity Cost Discount Total Cost Savings Type Aire Toilet Bowl 25-07-2014 Caroma 1 236.30 236.30 0.00 236.30 Toilet Aire Cistern + Seat 25-07-2014 Caroma 1 212.10 212.10 0.00 212.10 Toilet Supel Gas Bags 01-09-2014 Mike Hatch 4 16.00 16.00 0.00 64.00 Testing Litmus Universal Indicator Test Strips x 80 16-09-2014 eBay 1 2.48 2.48 0.00 Testing Gas Storage Bag 05-08-2014 Puxin 1 175.00 175.00 0.00 System 1200L Water Tank 25-06-2014 Mitre10 2 400.00 200.00 400.00 400.00 System Plumbing Ball Valve 28-08-2014 Mitre10 1 36.30 36.30 0.00 System Tank Flange 28-08-2014 Mitre10 2 15.00 30.00 0.00 System Nipple Hex 25mm 06-08-2014 Mitre10 1 2.25 2.25 0.00 System Tank Fitting Female 25mm 06-08-2014 Mitre10 1 12.95 12.95 0.00 System Ball Valve -25mm ART 220PP LH 06-08-2014 Mitre10 1 24.95 24.95 0.00 System Elbow Poly Met Thread 25x1" ALPRENE 06-08-2014 Mitre10 1 6.95 6.95 0.00 System Bend DWV PLN M F 100mm x 88DEG 14-08-2014 Mitre10 1 9.50 5.60 3.90 5.60 System Ball Valve - 15mm ART 220PP LH 14-08-2014 Mitre10 3 12.95 6.72 18.69 20.16 System Tank Fitting Female 15mm 14-08-2014 Mitre10 2 10.50 5.18 10.64 10.36 System Tee Metric Female 20mmx3/4" ALPRENE 14-08-2014 Mitre10 1 9.95 5.16 4.79 5.16 System Nipple Hex Reducing 20x15mm 14-08-2014 Mitre10 4 1.99 1.29 2.80 5.16 System Connector End F/A 20 X3/4 ALPRENE 14-08-2014 Mitre10 1 5.95 3.45 2.50 3.45 System Elbow Poly Met Thread 20x20mm ALPRENE 14-08-2014 Mitre10 1 6.50 3.28 3.22 3.28 System Elbow Poly 20mm ALPRENE 14-08-2014 Mitre10 1 8.95 4.53 4.42 4.53 System Socket Reducer 100mmx90mm 14-08-2014 Mitre10 1 9.99 5.85 4.14 5.85 System Pipe 20mm PE100 PN 12 5-25M BLUE STRIPE (0.16m) 14-08-2014 Mitre10 0.16 57.99 34.43 3.77 5.51 System Suction Hose 50mm Grey Per Metre 14-08-2014 Mitre10 1 16.92 16.92 0.00 System Director 50mm (Lump End) 1068 14-08-2014 Mitre10 2 7.13 14.27 0.00 System Pipe PVC SW 90MM P/M 28-08-2014 Mitre10 1.5 3.99 1.63 3.54 2.45 System Cap Push On DMW 100mm 28-08-2014 Mitre10 1 4.50 2.06 2.44 2.06 System Bend Stormwater FF 90mm x 90deg 28-08-2014 Mitre10 1 2.25 1.16 1.09 1.16 System Solvent Cement Type N Blue 125ML 28-08-2014 Mitre10 1 4.99 2.44 2.55 2.44 System Brush Paint White 25mm 28-08-2014 Mitre10 1 1.25 0.84 0.41 0.84 System Priming Fluid Red 28-08-2014 Mitre10 1 4.99 2.23 2.76 2.23 System Silicone Roof Trans 300g BUY RIGHT 28-08-2014 Mitre10 1 4.99 0.88 4.11 0.88 System Screw L/THRD CS SS 8GX30 PK8 28-08-2014 Mitre10 2 4.25 2.73 3.04 5.46 System Socket Hex Brass 3/4 81514 01-09-2014 Mitre10 1 2.95 1.30 1.65 1.30 System Nipple Brass ALL THRD 3/4X6 01-09-2014 Mitre10 2 11.95 6.30 11.30 12.60 System Plumbing Ball Valve 01-09-2014 Mitre10 1 57.95 21.65 36.30 21.65 System Bib Cock 20mm LH 01-09-2014 Mitre10 2 23.95 10.82 26.26 21.64 System Tape Teflon White 12x0.075mmx10m 01-09-2014 Mitre10 1 0.99 0.71 0.28 0.71 System Tube Vinyl Clear 25mmx25m Coil Neta 30-09-2014 Mitre10 0.5 6.50 0.51 3.00 0.26 System Neoprene Rubber 1200 x 4.5mm 28-08-2014 Fitch the Rubber Man 1 133.76 133.76 0.00 System Plywood 6mm 900 x 600 04-09-2014 Mitre10 1 14.99 2.25 12.74 2.25 System Screws (Pack of 8) 04-09-2014 Mitre10 2 4.25 0.85 6.80 1.70 System Silicone Rubber 1200 x 6mm 27-08-2014 Fitch the Rubber Man 1 18.00 18.00 0.00 Stirrer Seamless Pipe Schedule 80 ASTM A106 27-08-2014 Metalcorp 2 15.38 30.76 0.00 Stirrer Leaf strainer cover 400 or 500mm 27-08-2014 Maxiplas 2 11.00 22.00 0.00 Stirrer Bushing Sleeve Sintere C4048-2 03-09-2014 CBC Motion 1 18.29 18.29 0.00 Stirrer Bushing Sleeve Sintere F4048-1 03-09-2014 CBC Motion 1 18.60 18.60 0.00 Stirrer Ply Wood 03-09-2014 Bunnings Mile End 1 9.43 9.43 0.00 Stirrer Leaf strainer cover 400 or 500mm 03-09-2014 Maxiplas -1 11.00 -11.00 0.00 Stirrer Hose with Gun 15mm 30-09-2014 Mitre10 (Domain) 1 5.80 5.80 0.00 Operation Tape Teflon Yellow Gas 12mmx10m BOSTON 06-08-2014 Mitre10 1 3.95 3.95 0.00 Operation Tape Teflon Yellow Gas 12mmx10m BOSTON 14-08-2014 Mitre10 1 3.95 2.50 1.45 2.50 Operation Tape Teflon Pink Gas 12mmx6m BOSTON 01-09-2014 Mitre10 1 3.95 2.35 1.60 2.35 Operation Tape Teflon Yellow Gas 12mmx10m BOSTON 09-09-2014 Mitre10 1 3.95 0.20 3.75 0.20 Operation Funnel Black Plastic w/strainer 17cm 30-09-2014 Mitre10 1 5.99 0.60 5.39 0.60 Operation Tape Teflon White 12x0.075mmx10m 30-09-2014 Mitre10 1 0.99 0.10 0.89 0.10 Operation Plastic Bucket 10L 11-09-2014 Mitre10 2 1.50 3.00 0.00 Operation Disposable Gloves 11-09-2014 Mitre10 1 5.99 0.60 5.39 0.60 Operation Funnel 10" 28-08-2014 Paramount Browns 1 9.95 9.95 0.00 Operation Bioballs (150) 04-08-2014 Hahndorf Aquarium 1 35.01 35.01 0.00 Operation Tape Duct Silver 48mm X 30m 09-10-2014 Mitre10 1 4.50 0.34 4.16 0.34 Operation Glove Handy Disposable Pk24 09-10-2014 Mitre10 1 5.99 0.45 5.54 0.45 Operation Coke Drum - 76L Paramount Browns 2 6.00 12.00 0.00 Miscellaneous Coke Drum - 76L 09-09-2014 Paramount Browns 4 7.50 30.00 0.00 Miscellaneous Coke Drum - 76L 28-08-2014 Paramount Browns 2 7.50 15.00 0.00 Miscellaneous Fortecon 200um 2m Wide Per Metre 09-09-2014 Mitre10 1 3.50 0.52 2.98 0.52 Miscellaneous Tape Gaffa HD Gorilla 48mm x 11m 09-09-2014 Mitre10 1 10.50 1.05 9.45 1.05 Miscellaneous Silicone Roof Trans 300g BUY RIGHT 09-09-2014 Mitre10 1 4.99 4.99 0.00 Miscellaneous Valve Greenback 13mm 09-09-2014 Mitre10 1 3.99 0.80 3.19 0.80 Miscellaneous Joiner 13mm 09-09-2014 Mitre10 4 0.40 0.06 1.36 0.24 Miscellaneous Adaptor Poly Tee 09-09-2014 Mitre10 3 0.65 0.13 1.56 0.39 Miscellaneous Polytube 13mm Per Metre 09-09-2014 Mitre10 1 0.70 0.14 0.56 0.14 Miscellaneous Joiner 13mm 09-09-2014 Mitre10 -4 0.40 -1.60 0.00 Miscellaneous Adaptor Poly Tee 09-09-2014 Mitre10 -1 0.65 -0.65 0.00 Miscellaneous Tank Fitting Black 15mm 09-09-2014 Mitre10 3 6.95 20.85 0.00 Miscellaneous Total 95.16 1,324.61 1,071.36 Budget Type Allocated Budget Adelaide University 5 200.00 1,000.00 Sponsorship Lynair Logistics 1 300.00 300.00 Total 1,300.00 Remaining -24.61
  • 167.
  • 168.
    A Biodigester Toilet Forthe Developing World Honours Project Sponsorship Prospectus The Challenge: As of 2012, 1.1 billion people still defecate in the open and 2.6 billion people do not have access to improved sanitation facilities. In many parts of the world, waste from open defecation is likely to be washed into local rivers, which are generally primary sources for drinking, cooking, cleaning and other household tasks. Bacterial and viral contamination of water supplies in both rural and urban environments can result in diseases such as diarrhoea, leading to fatal consequences. Another problem faced by many regions of low income is access to energy sources for cooking, lighting, and other basic human needs. In 2004, the number of people worldwide relying on biomass resources as their primary fuel for cooking was recorded to be just over 2.5 billion. The practice of burning biomass in such communities has been documented by the Organisation for Economic Cooperation and Development as one of the most common causes of death and respiratory health problems. Recent figures show that more than 4 million people die prematurely from illness as a result of the household air pollution created during cooking with solid fuels. The Solution: A biodigester is designed to produce biogas using anaerobic digestion of human and animal waste. Depending on the efficiency of the system and quality of feedstock, biodigesters have the potential to produce a reliable supply of biogas gas that is of a suitable quality to fuel gas stoves and lamps. By incorporating a toilet into the digester design, we aim to alleviate some of the health and sanitation problems resulting from open defecation as well as the respiratory health problems stemming from the inhalation of household air pollution produced by burning biomass. Who are we? A group of five motivated University of Adelaide students from the School of Mechanical Engineering who are passionate about improving sanitation in communities exposed to open defecation. The project team aims to alleviate challenges faced on a daily basis in the developing
  • 169.
    world by designingand building a prototype for future implementation. The well organised and cohesive team is led by project manager James Bass. As a team, students James, Nishanth Cheruvu, Natasha Rayan, Charlie Savory and Kieran Sheehan will lead design and assembly of the biodigester toilet. The School of Mechanical Engineering provides academic support through school staff and access to workshop facilities. Project supervisor Dr Cristian Birzer has led many successful projects in the past including last year’s award-winning low-emission cook stove for the developing world. How would this project benefit from sponsor contributions? Because the final product will have humanitarian applications in lower-income countries, our objective is tominimise costs of the designby integrating recycled items. Sponsorship of any items pertaining to the project would be much appreciated. The design will consist of:  Two large cylindrical tanks  Wooden framework  Heavy duty polyethylene bags for gas collection  A flame trap  A functional toilet system  PVC Pipes and  Various fittings. Subsequent to completion of testing, there will be a supply of hazardous effluent and flammable methane gas produced as by-products of the digestion process. It is of paramount importance that these substances are used or discarded in a manner that is safe and does not damage the natural environment. Support or advice regarding the disposal of such wastes is very welcome. Finally, any funding towards the project will be put towards sourcing components and services that aren’t directly obtained through sponsors. Monetary sponsorship is an instrumental contribution to the success of the project as student project funding through the university is strictly limited. What happens once the biodigester toilet is completed? The prototype will be on display at MechExpo which is a School of Mechanical Engineering final year project showcasing event. This year marks the 20th annual exhibition and will attract attention from representatives throughout the engineering industry. Awards will be presented to standout projects in recognition of student accomplishments. Mechexpo is also a great educational event for students and teachers because it provides a unique opportunity to encounter engineering in practice and engage with the engineers of tomorrow. It is very likely that this event will attract media attention and has been featured in various news programs, websites and newspapers in the past. The MechExpo will take place on the Wednesday the 29th and Thursday the 20th of October. With success of the project, an implementation strategy will be established to promote the biodigester toilet in developing communities. Should the prototype require further developments, a future project team may choose to continue the project and make amendments. How will sponsors be promoted? Promotion of sponsors will be through print media displayed at our stand during MechExpo. Contributions towards the project will be acknowledged during the Seminar Presentation and in the final report. Standout contributions will benefit from further advertisement in the form of logos displayed on the finished product and other benefits to be discussed on a case by case basis. Sponsor representatives are invited to attend both the Seminar and MechExpo. Exact dates of the seminar presentation are yet to be advised.
  • 170.
    Appendix I Project HoursSpent by Individual Team Members 158
  • 171.
    Month Student TimeCost January Bass, James Cheruvu, Nishanth Rayan, Natasha Savory, Charlie Sheehan, Kieren (hrs) ($) 15 1 1 0 5 0 7 175 16 2 0 0 5 0 7 175 17 [1] 1 1 1 1 1 5 125 18 0 0 0 0 0 0 0 19 1 1 0 0 1 3 75 20 0 1 0 0 0 1 25 21 0 1 0 1 2 4 100 22 2 1 0 2 0 5 125 23 2 2 0 0 2 6 150 24 1 1 1 1 1 5 125 25 4 2 0 0 4 10 250 26 0 0 0 0 0 0 0 27 2 0 0 0 0 2 50 28 0 2 0 2 1 5 125 29 0 2 0 2 0 4 100 30 1 1 1 0 3 6 150 31 1 1 1 1 1 5 125 Month Total 18 17 4 20 16 75 1875 Year to Date 18 17 4 20 16 75 1875 Month Student Time Cost February Bass, James Cheruvu, Nishanth Rayan, Natasha Savory, Charlie Sheehan, Kieren (hrs) ($) 1 2 0 0 2 0 4 100 2 2 0 0 0 2 4 100 3 0 0 0 2 1 3 75 4 1 3 0 0 1 5 125 5 1 1 1 1 1 5 125 6 1 2 0 0 0 3 75 7 1 1 1 1 1 5 125 8 0 0 0 0 0 0 0 9 0 1 0 0 3 4 100 10 1 1 0 0 0 2 50 11 2 1 0 0 2 5 125 12 2 1 0 2 0 5 125 13 0 3 2 2 1 8 200 14 1 1 1 1 1 5 125 15 0 0 0 0 0 0 0 16 3 0 0 1 1 5 125 17 1 3 0 0 0 4 100 18 0 1 0 2 2 5 125 19 2 1 0 0 1 4 100 20 3 2 0 2 0 7 175 21 2 1 0 2 0 5 125 22 3 0 0 0 3 6 150 23 1 1 0 0 0 2 50 24 1 1 1 1 1 5 125 25 0 3 0 0 0 3 75 26 0 0 0 2 1 3 75 27 1 1 0 1 0 3 75 28 0 1 0 0 0 1 25 Month Total 31 30 6 22 22 111 2775 Year to Date 49 47 10 42 38 186 4650 Month Student Time Cost March Bass, James Cheruvu, Nishanth Rayan, Natasha Savory, Charlie Sheehan, Kieren (hrs) ($) 1 1 0 0 0 0 1 25 2 1 1 0 2 0 4 100
  • 172.
    3 [2] 31 4 1 1 10 250 4 2 1 2 0 2 7 175 5 3 1 1 1 1 7 175 6 1 1 3 0 0 5 125 7 1 1 1 1 1 5 125 8 0 1 0 0 0 1 25 9 0 0 0 3 3 6 150 10 0 0 0 2 0 2 50 11 1 1 1 1 1 5 125 12 2 1 3 0 0 6 150 13 2 1 0 0 0 3 75 14 2 1 2 0 1 6 150 15 2 2 0 0 0 4 100 16 0 0 0 2 2 4 100 17 0 1 1 2 0 4 100 18 0 1 2 0 0 3 75 19 [3] 1 1 1 1 1 5 125 20 0 1 3 0 0 4 100 21 1 1 1 1 1 5 125 22 0 0 0 0 0 0 0 23 0 0 0 0 2 2 50 24 4 2 1 3 3 13 325 25 3 1 1 1 1 7 175 26 1 1 3 1 1 7 175 27 0 0 0 0 0 0 0 28 1 1 1 1 1 5 125 29 0 2 0 0 3 5 125 30 3 2 0 0 0 5 125 31 2 2 2 0 0 6 150 Month Total 37 29 33 23 25 147 3675 Year to Date 86 76 43 65 63 333 8325 Month Student Time Cost April Bass, James Cheruvu, Nishanth Rayan, Natasha Savory, Charlie Sheehan, Kieren (hrs) ($) 1 0 4 2 2 3 11 275 2 0 2 1 3 2 8 200 3 2 2 3 2 1 10 250 4 1 1 1 1 1 5 125 5 3 1 4 4 2 14 350 6 2 2 2 2 0 8 200 7 1 2 1 3 1 8 200 8 1 1 0 1 1 4 100 9 2 1 1 1 2 7 175 10 [4] 1 1 1 1 1 5 125 11 1 3 2 1 1 8 200 12 2 3 3 1 2 11 275 13 1 2 1 3 3 10 250 14 2 3 1 1 1 8 200 15 1 1 2 2 4 10 250 16 0 0 0 3 1 4 100 17 0 0 2 4 2 8 200 18 2 1 4 1 1 9 225 19 4 2 1 3 0 10 250 20 0 2 0 0 0 2 50 21 2 1 2 3 3 11 275 22 1 1 2 1 1 6 150 23 0 0 2 0 3 5 125 24 2 0 2 1 0 5 125
  • 173.
    25 2 12 2 2 9 225 26 3 2 2 4 0 11 275 27 2 1 1 3 1 8 200 28 3 1 1 1 1 7 175 29 2 3 1 1 2 9 225 30 0 2 1 2 2 7 175 Month Total 43 46 48 57 44 238 5950 Year to Date 129 122 91 122 107 571 14275 Month Student Time Cost May Bass, James Cheruvu, Nishanth Rayan, Natasha Savory, Charlie Sheehan, Kieren (hrs) ($) 1 0 1 1 1 1 4 100 2 0 2 2 2 2 8 200 3 2 0 3 0 1 6 150 4 1 0 0 1 3 5 125 5 2 0 2 3 0 7 175 6 2 4 4 4 4 18 450 7 1 1 1 1 1 5 125 8 0 0 2 0 1 3 75 9 [5] 0 1 1 1 1 4 100 10 2 2 4 1 2 11 275 11 2 3 1 4 1 11 275 12 0 2 0 3 2 7 175 13 0 1 5 2 3 11 275 14 3 0 1 4 1 9 225 15 3 0 0 1 2 6 150 16 0 2 0 2 3 7 175 17 0 3 2 2 0 7 175 18 2 1 1 3 3 10 250 19 1 0 2 1 2 6 150 20 2 1 4 6 0 13 325 21 1 0 2 8 1 12 300 22 1 1 2 8 1 13 325 23 2 2 2 1 2 9 225 24 1 3 3 2 0 9 225 25 2 4 2 4 3 15 375 26 2 2 6 8 4 22 550 27 3 1 4 2 0 10 250 28 3 2 6 4 2 17 425 29 2 3 2 2 1 10 250 30 2 0 3 3 1 9 225 31 4 2 6 2 2 16 400 Month Total 46 44 74 86 50 300 7500 Year to Date 175 166 165 208 157 871 21775 Month Student Time Cost June Bass, James Cheruvu, Nishanth Rayan, Natasha Savory, Charlie Sheehan, Kieren (hrs) ($) 1 2 2 3 2 1 10 250 2 3 0 2 1 3 9 225 3 1 1 1 4 3 10 250 4 1 1 1 4 5 12 300 5 4 4 4 4 4 20 500 6 0 5 5 3 3 16 400 7 0 5 3 3 0 11 275 8 2 1 5 1 0 9 225 9 1 4 2 0 5 12 300 10 1 5 5 5 4 20 500 11 2 3 1 3 0 9 225 12 3 0 1 2 1 7 175
  • 174.
    13 4 13 4 2 14 350 14 1 5 1 1 4 12 300 15 0 1 1 1 4 7 175 16 1 2 4 2 1 10 250 17 0 5 1 5 4 15 375 18 0 5 1 3 5 14 350 19 2 1 5 4 0 12 300 20 3 5 2 2 3 15 375 21 1 3 2 2 4 12 300 22 3 2 3 5 4 17 425 23 1 1 4 0 4 10 250 24 2 0 5 1 1 9 225 25 3 1 4 4 3 15 375 26 0 2 4 3 5 14 350 27 0 0 2 5 2 9 225 28 1 0 4 0 1 6 150 29 2 0 5 5 2 14 350 30 0 3 0 0 4 7 175 Month Total 44 68 84 79 82 357 8925 Year to Date 219 234 249 287 239 1228 30700 Month Student Time Cost July Bass, James Cheruvu, Nishanth Rayan, Natasha Savory, Charlie Sheehan, Kieren (hrs) ($) 1 0 3 0 1 0 4 100 2 4 1 0 3 5 13 325 3 4 0 0 1 3 8 200 4 3 1 0 2 1 7 175 5 2 2 0 0 4 8 200 6 1 2 2 4 3 12 300 7 5 2 0 3 3 13 325 8 3 2 0 3 5 13 325 9 1 2 2 5 4 14 350 10 4 2 1 1 3 11 275 11 5 4 2 4 1 16 400 12 4 3 4 1 0 12 300 13 0 0 3 3 0 6 150 14 4 3 1 1 4 13 325 15 2 0 0 4 4 10 250 16 1 3 1 1 2 8 200 17 3 2 1 2 3 11 275 18 0 4 0 3 3 10 250 19 5 0 0 0 2 7 175 20 1 3 5 1 1 11 275 21 0 5 5 4 5 19 475 22 2 1 1 4 0 8 200 23 4 2 0 0 2 8 200 24 5 1 0 4 3 13 325 25 1 5 0 5 1 12 300 26 0 0 5 3 4 12 300 27 1 5 3 2 4 15 375 28 5 3 5 0 4 17 425 29 2 3 1 3 2 11 275 30 0 4 0 1 4 9 225 31 2 3 1 0 0 6 150 Month Total 74 71 43 69 80 337 8425 Year to Date 293 305 292 356 319 1565 39125 Month Student Time Cost August Bass, James Cheruvu, Nishanth Rayan, Natasha Savory, Charlie Sheehan, Kieren (hrs) ($)
  • 175.
    1 2 35 2 3 15 375 2 2 2 2 3 5 14 350 3 1 4 5 5 1 16 400 4 4 0 4 4 0 12 300 5 0 2 1 4 0 7 175 6 1 0 5 0 5 11 275 7 5 0 3 4 4 16 400 8 2 0 1 0 5 8 200 9 2 5 0 0 3 10 250 10 4 0 3 4 4 15 375 11 1 3 4 4 5 17 425 12 0 1 0 2 0 3 75 13 3 4 0 4 1 12 300 14 5 5 4 2 2 18 450 15 3 2 5 0 3 13 325 16 0 3 3 2 3 11 275 17 4 4 2 4 5 19 475 18 2 5 4 2 3 16 400 19 5 3 2 2 1 13 325 20 3 0 1 2 4 10 250 21 1 5 2 4 4 16 400 22 3 1 4 0 5 13 325 23 3 0 3 3 3 12 300 24 5 0 3 0 5 13 325 25 4 4 1 1 1 11 275 26 1 4 3 1 2 11 275 27 1 1 0 1 0 3 75 28 2 1 1 4 2 10 250 29 2 4 5 5 3 19 475 30 2 4 0 5 2 13 325 31 1 4 1 4 0 10 250 Month Total 74 74 77 78 84 387 9675 Year to Date 367 379 369 434 403 1952 48800 Month Student Time Cost September Bass, James Cheruvu, Nishanth Rayan, Natasha Savory, Charlie Sheehan, Kieren (hrs) ($) 1 2 0 0 4 4 10 250 2 1 2 5 2 5 15 375 3 1 3 0 5 1 10 250 4 1 3 0 0 5 9 225 5 5 4 2 0 0 11 275 6 1 5 1 4 0 11 275 7 1 5 3 5 4 18 450 8 3 0 5 1 4 13 325 9 1 4 1 4 1 11 275 10 5 3 0 3 5 16 400 11 2 5 2 2 1 12 300 12 5 3 1 3 2 14 350 13 2 5 3 0 3 13 325 14 1 4 2 3 5 15 375 15 4 4 5 0 0 13 325 16 5 4 2 5 5 21 525 17 2 1 3 2 3 11 275 18 5 1 2 0 2 10 250 19 5 2 5 0 5 17 425 20 3 2 2 1 1 9 225 21 1 2 1 1 5 10 250 22 5 1 4 2 1 13 325
  • 176.
    23 4 30 4 0 11 275 24 5 3 5 2 1 16 400 25 5 3 2 4 4 18 450 26 5 1 2 3 1 12 300 27 4 2 4 3 0 13 325 28 5 2 3 4 4 18 450 29 3 1 1 4 5 14 350 30 4 1 0 1 2 8 200 Month Total 96 79 66 72 79 392 9800 Year to Date 463 458 435 506 482 2344 58600 Month Student Time Cost October Bass, James Cheruvu, Nishanth Rayan, Natasha Savory, Charlie Sheehan, Kieren (hrs) ($) 1 4 5 2 4 4 19 475 2 5 1 4 1 0 11 275 3 1 5 2 1 4 13 325 4 0 2 5 3 5 15 375 5 4 5 2 5 4 20 500 6 4 4 4 3 0 15 375 7 4 5 3 0 5 17 425 8 5 1 0 4 5 15 375 9 2 4 2 5 1 14 350 10 4 5 1 0 0 10 250 11 0 0 3 0 5 8 200 12 4 1 1 2 0 8 200 13 0 1 5 2 4 12 300 14 4 4 5 0 5 18 450 15 5 3 3 2 5 18 450 16 5 0 3 1 2 11 275 17 5 4 4 5 4 22 550 18 2 1 2 0 2 7 175 19 5 0 2 1 0 8 200 20 3 4 1 4 3 15 375 21 6 5 6 6 6 29 725 22 12 12 12 12 12 60 1500 23 12 12 12 12 12 60 1500 24 4 4 4 4 4 20 500 Month Total 100 88 88 77 92 445 11125 Year to Date 563 546 523 583 574 2789 69725
  • 177.
    Appendix J SupelTM SamplingBag Data Sheet 165
  • 180.
    Appendix K Picarro GasAnalyser Data Sheet 168
  • 181.
    © 2013 PICARRO,INC. · 3105 Patrick Henry Drive Santa Clara, CA 95054 · T 408.962.3900 · E info@picarro.com · W www.picarro.com PICARRO G2201-i CRDS Analyzer for Isotopic Carbon in CO2 and CH4 Simultaneous Insights Into Complex Carbon Source/Sink Behavior of Two Species with One Analyzer • World’s only field-deployable analyzer capable of simultaneous δ13C measurements for both CO2 and CH4 • Less hassle – Less calibration, less maintenance, no consumables • Endures harsh environments – mountains, oceans, forests, and tundra • Excellent precision at a fraction of the operating cost of IRMS • Picarro analyzers are deployed by thousands of researchers, on all seven continents and in more than 60 countries Respiration, fermentation. Oxidation, reduction. Source, sink. Carbon dioxide and methane are tightly intertwined in many biological and geological systems. If you know the behavior of only one of these species, you may only know half the story. With the new G2201-i, the isotopic carbon ratio in both CO2 and CH4 can be measured at the same time. This instrument combines the capabilities of Picarro’s two carbon isotope instruments for CO2 and CH4 into a single instrument to gather the insights that stable isotope ratios offer. With this instrument, researchers can follow the carbon as it moves from source to sink. The G2201-i operates in one of three modes: CO2-only mode, CH4-only mode, and combined CO2/CH4 mode. In the combined mode, the measurement of CO2 and CH4 are interleaved every few seconds to produce a sampling rate that is faster than the gas turn-over time in the cavity. The analyzer’s combined precision is <0.16‰ for δ13C-CO2 and <1.15‰ for δ13C-CH4. The simultaneous measurement ability of the G2201-i is a technology unique to Picarro. When the analyzer is in CO2-only mode or CH4-only mode, the precision improves because more time is devoted to one molecule. For the CO2-only mode, the δ13C-CO2 precision is <0.12‰, which is similar to the precision of our dedicated G2131-i δ13C-CO2 analyzer. For the CH4-only mode, the δ13C-CH4 precision is <0.8‰, which is the same precision as our dedicated G2132-i δ13C-CH4 analyzer. Methane concentrations vary widely in nature. Atmospheric methane is ~1.8ppm, but methane in the headspace of a water sample can be 1000ppm. To cover this large concentration range, the analyzer has two CH4-only modes. The High Precision mode provides the best precision at ambient and near-ambient concentrations of CH4 up to 12ppm, which is more than 6 times the ambient concentration. The High Range mode provides a dynamic range that goes from ambient concentration at 1.8ppm to 1000ppm. This allows one to select the best option for a given study. The G2201-i brings simplicity to research. Its small size and robustness make it easy to transport to the field where getting immediate results allows researchers to change course on-the-fly to get the most form a critical field campaign. The G2201-i can be running within minutes out of the box, and can operate for months without user interaction. In all modes, the analyzer precisely measures CO2, H2O, and CH4 concentration, which allows cross- influence of these species to be quantified and corrected, as well as eliminating the need for gas drying. Peripherals such as the Small Sample Isotope Module and the 16-Port Manifold extend the utility of the analyzer. Scientists using these systems have reported the highest quality data, day in and day out, with fewer calibrations than other spectral absorption-based instruments.    
  • 182.
    © 2013 PICARRO,INC. · 3105 Patrick Henry Drive Santa Clara, CA 95054 · T 408.962.3900 · E info@picarro.com · W www.picarro.com Performance Specifications CO2 Isotope-only mode CH4 Isotope-only mode Simultaneous mode δ13C Precision (1-σ, 1 Hr window, 5 min. average)δ13C Precision (1-σ, 1 Hr window, 5 min. average)δ13C Precision (1-σ, 1 Hr window, 5 min. average)δ13C Precision (1-σ, 1 Hr window, 5 min. average) δ13C-CO2 < 0.12 ‰ - < 0.16 ‰ δ13C-CH4 - High Precision mode: < 0.8 ‰ High Dynamic Range mode: <0.4‰ High Precision mode: < 1.15 ‰ High Dynamic Range mode: < 0.55‰ δ13C Maximum Drift (peak-to-peak, 1 hr average interval average over 24 hrs at STP)δ13C Maximum Drift (peak-to-peak, 1 hr average interval average over 24 hrs at STP)δ13C Maximum Drift (peak-to-peak, 1 hr average interval average over 24 hrs at STP)δ13C Maximum Drift (peak-to-peak, 1 hr average interval average over 24 hrs at STP) δ13C-CO2 < 0.6 ‰ - < 0.6 ‰ δ13C-CH4 - High Precision and High Dynamic Range modes: < 1.5 ‰ at 10 ppm CH4 High Precision and High Dynamic Range modes: < 1.5 ‰ at 10 ppm CH4 Concentration Precision (1-σ, 30 sec. average)Concentration Precision (1-σ, 30 sec. average)Concentration Precision (1-σ, 30 sec. average)Concentration Precision (1-σ, 30 sec. average) CO2 200 ppb + 0.05 % of reading (12C) 10 ppb + 0.05 % of reading (13C) 1 ppm + 0.25 % of reading (12C) 200 ppb + 0.05 % of reading (12C) 10 ppb + 0.05 % of reading (13C) CH4 50 ppb + 0.05 % of reading (12C) High Precision mode 5 ppb + 0.05 % of reading (12C) 1 ppb + 0.05 % of reading (13C) High Dynamic Range mode: 50 ppb + 0.05 % of reading (12C) 10 ppb + 0.05 % of reading (13C) High Precision mode 5 ppb + 0.05 % of reading (12C) 1 ppb + 0.05 % of reading (13C) High Dynamic Range mode: 50 ppb + 0.05 % of reading (12C) 10 ppb + 0.05 % of reading (13C) H2O 100 ppm100 ppm100 ppm Dynamic RangeDynamic RangeDynamic RangeDynamic Range CO2 Guaranteed Spec Range 380-2000 ppm 200-2000 ppm 380-2000 ppm CO2 Operational Range 100-4000 ppm 0-4000 ppm 100-4000 ppm CH4 Guaranteed Spec Range 1.8-500 ppm High Precision mode:1.8-12 ppm High Dynamic Range mode: 10-1000 ppm High Precision mode:1.8-12 ppm High Dynamic Range mode: 10-500 ppm CH4 Operational Range 0-1000 ppm High Precision mode:1.2-15 ppm High Dynamic Range mode: 1.8-1500 ppm High Precision mode:1.2-15 ppm High Dynamic Range mode: 1.8-1500 ppm H2O Guaranteed Spec Range 0-2.4 %0-2.4 %0-2.4 % H2O Operational Range 0-5 %0-5 %0-5 % Ambient Temperature Dependence Guaranteed < ± 0.06 ‰ / ºC, typical < ± 0.025 ‰ /ºCGuaranteed < ± 0.06 ‰ / ºC, typical < ± 0.025 ‰ /ºCGuaranteed < ± 0.06 ‰ / ºC, typical < ± 0.025 ‰ /ºC Measurement Interval ~ 3 secs ~ 3 secs ~ 5 secs Rise/Fall time (10-90 % / 90-10 %) Typical ~ 30 secTypical ~ 30 secTypical ~ 30 sec Applications Considerations Interference can occur for concentrations of H2O and CO2 well outside of the defined dynamic range, as well as other organics, ammonia, ethane, ethylene, or sulfur containing compounds. Users should verify with prepared lab samples. Please contact us to discuss the experimental conditions. Pressure drops in the instrument’s gas path can draw external air when this system is used in recirculating applications. Interference can occur for concentrations of H2O and CO2 well outside of the defined dynamic range, as well as other organics, ammonia, ethane, ethylene, or sulfur containing compounds. Users should verify with prepared lab samples. Please contact us to discuss the experimental conditions. Pressure drops in the instrument’s gas path can draw external air when this system is used in recirculating applications. Interference can occur for concentrations of H2O and CO2 well outside of the defined dynamic range, as well as other organics, ammonia, ethane, ethylene, or sulfur containing compounds. Users should verify with prepared lab samples. Please contact us to discuss the experimental conditions. Pressure drops in the instrument’s gas path can draw external air when this system is used in recirculating applications.    
  • 183.
  • 184.
    Testing & Observations Date Temperature(°C, Adelaide Airport, 9am) Temperature (°C, Adelaide Airport, 3pm) Adelaide Airport Average (°C) Temperature (°C, Kent Town, 9am) Temperature (°C, Kent Town, 3pm) Kent Town Average (°C) BOM Average Test Time (approx.) Testing Site Ambient 12/09/2012 13.7 14.7 14.2 13.9 17.2 15.55 14.875 11:00 13/09/2014 14 19.7 16.85 14.5 21.8 18.15 17.5 14/09/2014 18.1 26.2 22.15 19.4 26.1 22.75 22.45 15/09/2014 14.8 15.8 15.3 15 16.2 15.6 15.45 16/09/2014 14.9 15.4 15.15 14.8 16.8 15.8 15.475 17/09/2014 13.7 15.6 14.65 13 16.2 14.6 14.625 18/09/2014 12.4 13.3 12.85 12.1 12.5 12.3 12.575 19/09/2014 15.3 17 16.15 14.7 19.1 16.9 16.525 20/09/2014 18 20.2 19.1 18 22.5 20.25 19.675 21/09/2014 17.3 18.8 18.05 18.7 23.5 21.1 19.575 22/09/2014 20.5 22.6 21.55 20.5 26.2 23.35 22.45 9:00 30 23/09/2014 21.2 22.7 21.95 21.3 25.9 23.6 22.775 24/09/2014 19.4 18 18.7 19.2 21.9 20.55 19.625 25/09/2014 14.8 16 15.4 15.1 15.4 15.25 15.325 10:00 27 26/09/2014 14.3 16.9 15.6 13.1 18.2 15.65 15.625 27/09/2014 21.6 28.7 25.15 22 30.1 26.05 25.6 28/09/2014 25.2 20.1 22.65 25.1 25 25.05 23.85 29/09/2014 16.3 19.6 17.95 15.8 21 18.4 18.175 30/09/2014 18.4 17 17.7 19.3 16.8 18.05 17.875 11:00 28 1/10/2014 14.5 17 15.75 15 17.6 16.3 16.025 2/10/2014 14.5 15.9 15.2 14 17.7 15.85 15.525 3/10/2014 17.9 21.5 19.7 18.4 25.8 22.1 20.9 11:00 24 4/10/2014 24.4 28.8 26.6 24.4 30.9 27.65 27.125 5/10/2014 16.6 22.3 19.45 16.6 25.1 20.85 20.15 6/10/2014 26.6 20.7 23.65 27.8 22.3 25.05 24.35 7/10/2014 14.8 16.3 15.55 14.3 18 16.15 15.85 9:00 20 8/10/2014 12.9 16.9 14.9 12.9 19.4 16.15 15.525 9/10/2014 17.9 27.2 22.55 19.4 27.9 23.65 23.1 9:30 23 10/10/2014 21.6 29.35 25.475 21.8 31.7 26.75 26.1125 11/10/2014 15.7 17.9 16.8 15.2 20.5 17.85 17.325 12/10/2014 14.6 17.3 15.95 14.5 20.6 17.55 16.75 13/10/2014 12 14.7 13.35 12.3 16.1 14.2 13.775 9:00 23 14/10/2014 13.9 15.1 14.5 12.8 15.6 14.2 14.35 15/10/2014 13.2 15.9 14.55 13.1 17 15.05 14.8 16/10/2014 12.6 16.2 14.4 12 18.6 15.3 14.85 10:30 15 17/10/2014 17.4 22.7 20.05 17.2 27.4 22.3 21.175 18/10/2014 24.3 28.8 26.55 24.3 30.8 27.55 27.05 19/10/2014 24.1 28.4 26.25 24.8 30.9 27.85 27.05 20/10/2014 18.3 27.1 22.7 19.3 31.8 25.55 24.125 21/10/2014 29.7 35.8 32.75 28.8 36.9 32.85 32.8 12:00 39 22/10/2014 21.6 22.4 22 27.2 29.1 28.15 25.075
  • 185.
    Testing & Observations DateTesting Site Ambient Effluent Inlet pH Effluent Temperature (°C) pH Bag # Date analysed Methane (ppm) Carbon Dioxide (ppm) Comments 12/09/2012 1 19/09/2014 259.2375685 6300 First gas sample taken. Thermometer and litmus paper yet to be obtained. 13/09/2014 14/09/2014 15/09/2014 16/09/2014 17/09/2014 18/09/2014 19/09/2014 20/09/2014 21/09/2014 22/09/2014 30 21 32 7 1 25/09/2014 1879.879582 40779 23/09/2014 24/09/2014 25/09/2014 27 22 28 7 2 25/09/2014 3580.644796 44517 26/09/2014 27/09/2014 28/09/2014 29/09/2014 30/09/2014 28 21 26 7 1 8/10/2014 8046.674964 14890 Tanks removed from greenhouse today, lots of mixing involved. 1/10/2014 2/10/2014 3/10/2014 24 14 26 6.5 13 5 2 8/10/2014 5123.286122 20123 Ph of second tank taken. Expected lower methane, higher carbon dioxide due to shifting of tanks on 30/09 4/10/2014 5/10/2014 6/10/2014 7/10/2014 20 18 22 6.5 6 3 8/10/2014 12835.06238 45134 Methane starts to return to pre-shifted trend 8/10/2014 9/10/2014 23 15 20 6 6 2 14/10/2014 24349.73006 31981 Sample taken after fill, insulation installed. 10/10/2014 11/10/2014 12/10/2014 13/10/2014 23 17 20 6.5 18 7 4 Not yet analysed, Mike Hatch unavailable. 14/10/2014 15/10/2014 16/10/2014 15 18 20 6 16 6.5 2 Not yet analysed, Mike Hatch unavailable. 17/10/2014 18/10/2014 19/10/2014 20/10/2014 21/10/2014 39 27 36 7 27 6 4 Not yet analysed, Mike Hatch unavailable. 22/10/2014 Tank 1 Tank #2